賃貸マンション
ザ・パークハビオ神泉の賃貸物件情報(2LDK/2階)
| 家賃 | 管理費等 | 敷金 | 礼金 | 間取り | 専有面積 |
|---|---|---|---|---|---|
| 33万円 | 2万円 | 33万円 | なし | 2LDK | 54.95m2 |
入居決定でお祝い金最大100,000円
- 保証金
- -
- 償却・敷引
- -
- 築年数
- 築5年
- 所在階
- 2階
- 向き
- 東
Point
都心部の物件情報は随時流動しています。ハイクラス物件を中心とした専門のプロフェッショナルエージェントが、迅速かつ的確なご提案から諸条件交渉や細部に至るニーズまで、お客様の「住」の価値の最大化に努めます
提供:(株)T-BRIDGE(SUUMO経由)

詳細情報 ザ・パークハビオ神泉
物件紹介
ザ・パークハビオ神泉は京王井の頭線神泉駅から徒歩7分にあり、駅近で通勤通学に便利なマンションです。
このお部屋は2階以上に位置しているので、通行人や周囲の住人からの視線が気になりにくく、防犯面でも安心。建物のエントランスはオートロックがついており、インターホンにはTVモニタもついているため、相手の顔を確認してから来客対応することができます。
こちらは楽器相談が可能な物件。楽器演奏をお考えの方はぜひ相談してみてください。人気の南向き・フローリングのお部屋。角部屋でもあるため、周囲の居住者の生活音も気になりにくい場所です。室内にはウォークインクローゼットがありますので、たくさんの荷物も効率的に収納ができます。キッチンはシステムキッチン仕様になっていますので、お料理好きの方にもぴったり。バス・トイレは別なので、のんびりお風呂タイムも楽しめるでしょう。また、雨の日でも浴室乾燥機を使えば、お洗濯も問題ありません。
通信設備面では、インターネットが無料で使えるので、月々の出費を抑えられるのも魅力です。また、BSアンテナ・CSアンテナがありCATVにも対応しているので、おうち時間も充実するでしょう(別途工事、BS・CS・CATVの契約料等が必要な場合あり)。
建物にはエレベーターがついているので、重い荷物があっても安心。共用部には宅配ボックスが設定されているので、不在の時にも荷物を受け取ることができます。また、ペット飼育の相談ができますので、あなたの大切な家族の一員も快適に暮らせるか、ぜひ確認してみてください。
このお部屋は2階以上に位置しているので、通行人や周囲の住人からの視線が気になりにくく、防犯面でも安心。建物のエントランスはオートロックがついており、インターホンにはTVモニタもついているため、相手の顔を確認してから来客対応することができます。
こちらは楽器相談が可能な物件。楽器演奏をお考えの方はぜひ相談してみてください。人気の南向き・フローリングのお部屋。角部屋でもあるため、周囲の居住者の生活音も気になりにくい場所です。室内にはウォークインクローゼットがありますので、たくさんの荷物も効率的に収納ができます。キッチンはシステムキッチン仕様になっていますので、お料理好きの方にもぴったり。バス・トイレは別なので、のんびりお風呂タイムも楽しめるでしょう。また、雨の日でも浴室乾燥機を使えば、お洗濯も問題ありません。
通信設備面では、インターネットが無料で使えるので、月々の出費を抑えられるのも魅力です。また、BSアンテナ・CSアンテナがありCATVにも対応しているので、おうち時間も充実するでしょう(別途工事、BS・CS・CATVの契約料等が必要な場合あり)。
建物にはエレベーターがついているので、重い荷物があっても安心。共用部には宅配ボックスが設定されているので、不在の時にも荷物を受け取ることができます。また、ペット飼育の相談ができますので、あなたの大切な家族の一員も快適に暮らせるか、ぜひ確認してみてください。
お金・契約の情報
※「-」と表示されているものは、実際は料金が発生するものもございます。詳細はお問い合わせください。
| 家賃 | 33万円 | 管理費・共益費 | 2万円 |
|---|---|---|---|
| 敷金 | 33万円 | 礼金 | なし |
| 入居決定でお祝い金最大100,000円 | |||
| 保証金 | - | 償却・敷引 | - |
| 住宅保険料 | - | 更新料 | - |
| 保証会社利用 | 必須 | 保証会社名 | - |
| 保証会社費用 | - | 保証会社備考 | 保証会社利用必 初年度委託料:賃料等合計額の40%(最低保証料2万円)2年目以降:1年毎8千円 |
| 契約形態 | - | 契約期間 | - |
| 入居・引渡期間 | - | 現況 | - |
| 入居可能条件 | 事務所可、楽器相談、ペット相談 | ||
| 契約備考 | 巡回管理 合計1.65万円(内訳:鍵交換費用:16,500円) 室内クリーニング費用、退去時エアコンクリーニング費用、 2LDK 二人入居可/子供可/ペット相談/楽器相談/事務所利用相談 普通借家2年 損保【要】 バストイレ別、バルコニー、エアコン、クロゼット、フローリング、TVインターホン、浴室乾燥機、オートロック、室内洗濯置、シューズボックス、システムキッチン、追焚機能浴室、角住戸、温水洗浄便座、エレベーター、洗面所独立、洗面化粧台、駐輪場、宅配ボックス、CATV、光ファイバー、BS・CS、3口以上コンロ、対面式キッチン、防犯カメラ、ペット相談、グリル付、ウォークインクロゼット、保証人不要、二人入居相談、バイク置場、全居室フローリング、2沿線利用可、CS、ネット使用料不要、エアコン全室、事務所相談、24時間換気システム、楽器相談、エアコン3台、クロゼット2ヶ所、耐震構造、2駅利用可、3駅以上利用可、3沿線以上利用可、駅徒歩10分以内、敷地内ごみ置き場、LDK12畳以上、都市ガス、2WAYバルコニー、ウォークインクロゼット2、シューズWIC、BS、保証会社利用可、初期費用カード決済可、通風良好 敷金積み増し【ペット飼育の場合敷金2ヶ月(総額)】 入居日:'26年1月下旬 | ||
部屋の情報
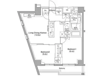
| 間取り | 2LDK | 専有面積 | 54.95m2 |
|---|---|---|---|
| 所在階 / 向き | 2階 / 東 | バルコニー面積 | - |
| 水道 / ガス | - | ||
| 設備 | バス・トイレ別、2階以上、オートロック、テレビドアホン、宅配ボックス、浴室乾燥機、ウォークインクローゼット、追い焚き、インターネット対応、システムキッチン、エアコン、エレベーター、温水洗浄便座、角部屋、バルコニー、フローリング、洗髪洗面化粧台、2口コンロ、CATV、CSアンテナ、BSアンテナ、インターネット使用料無料、洗濯機:室内 | ||
| 当社物件ID | 79569088 | ||
建物の情報
| 建物名 | ザ・パークハビオ神泉 | ||
|---|---|---|---|
| 所在地 | 東京都目黒区駒場 | ||
| 交通 | 京王井の頭線 神泉駅 徒歩7分 東急田園都市線 池尻大橋駅 徒歩11分 JR山手線 渋谷駅 徒歩13分 | ||
| 階数 | 地下1地上7階建 | 総戸数 | - |
| 築年月 | 2021年05月 / 築5年 | エレベーター | あり |
| 駐車場 | 空有 38500円 | バイク置き場 | あり |
| 駐輪場 | あり | 管理人/管理会社 | - |
| 周辺環境 | その他 まいばすけっと駒場1丁目店(スーパー)まで346m その他 ココカラファイン目黒大橋店(ドラッグストア)まで805m その他 すき家渋谷円山町店(飲食店)まで672m その他 モスバーガー渋谷円山町店(飲食店)まで674m その他 コメダ珈琲店渋谷道玄坂上店(飲食店)まで748m その他 ナチュラルローソン渋谷神泉町店(コンビニ)まで460m | ||
| 建物種別 | マンション | 建物構造 | RC(鉄筋コンクリート) |
この部屋の取扱い不動産会社
| 会社名 | (株)T-BRIDGE(SUUMO経由) | ||
|---|---|---|---|
| 所在地 | 東京都渋谷区渋谷2-19-15 MIYAMASUZAKABUILDING2階 | 交通 | - |
| 営業時間 | 9:00~21:00 | 定休日 | 年中無休 |
| 免許番号 | 東京都知事104461 | 取引態様 | 仲介 |
| 不動産会社管理番号 | 100261644482 | 当社管理番号 | 89 |
| 所属団体 | (公社)全日本不動産協会東京都本部会員 | ||
| 公正取引協議会 | (公社)首都圏不動産公正取引協議会加盟 | ||
| 取扱い物件情報 | 物件詳細へ | ||
※各種情報と現状に差異がある場合は、現状優先となります。問い合わせをすることで、より詳しい条件、情報を確認する事ができます。
提供:(株)T-BRIDGE(SUUMO経由)
この物件が気になったら掲載期限まであと10日
ザ・パークハビオ神泉に条件(家賃・エリア)が近い物件一覧
| 写真 | 家賃 管理費等 | 敷金 礼金 | 間取り 専有面積 | 築年数 | 最寄り駅 所在地 | キープ | 詳細 |
|---|---|---|---|---|---|---|---|
マンション ドゥーエ参宮橋(1LDK/2階) | |||||||
![]() | 33万円 2万円 | 33万円 なし | 1LDK 52.84m2 | 築18年 | 小田急線 参宮橋駅 徒歩4分 京王新線 初台駅 徒歩8分 東京メトロ千代田線 代々木公園駅 徒歩15分 東京都渋谷区代々木 | 詳細を見る | |
アパート セレスティア岡本(3LDK/3階) | |||||||
![]() | 23.8万円 6,000円 | なし 47.6万円 | 3LDK 56.91m2 | 新築 | 東急田園都市線 用賀駅 徒歩18分 東京都世田谷区岡本1丁目 | 詳細を見る | |
マンション GRANDUO千歳烏山(1SLDK/4階) | |||||||
![]() | 21.2万円 1.2万円 | 21.2万円 なし | 1SLDK 49.22m2 | 築1年 | 京王線 千歳烏山駅 徒歩9分 東京都世田谷区粕谷 | 詳細を見る | |
マンション GRAND ARC笹塚(1LDK/4階) | |||||||
![]() | 25.3万円 1万円 | 25.3万円 25.3万円 | 1LDK 46.35m2 | 築1年 | 京王線 笹塚駅 徒歩3分 小田急線 東北沢駅 徒歩18分 小田急線 代々木上原駅 徒歩20分 東京都渋谷区笹塚 | 詳細を見る | |
マンション パークキューブ目黒タワー(1K/1階) | |||||||
![]() | 20万円 なし | 20万円 20万円 | 1K 32.24m2 | 築18年 | 東京地下鉄南北線 目黒駅 徒歩6分 山手線 目黒駅 徒歩6分 東京都目黒区下目黒2丁目 | 詳細を見る | |
アパート リオプラド東松原(1SLDK/1階) | |||||||
![]() | 26万円 なし | 52万円 26万円 | 1SLDK 81.32m2 | 築5年 | 京王井の頭線 東松原駅 徒歩2分 京王井の頭線 新代田駅 徒歩7分 小田急線 世田谷代田駅 徒歩13分 東京都世田谷区松原 | 詳細を見る | |
マンション コスモリード大森西(2LDK/6階) | |||||||
![]() | 28.3万円 1.2万円 | 28.3万円 なし | 2LDK 62.99m2 | 築35年 | 京急本線 大森町駅 徒歩4分 京急本線 平和島駅 徒歩9分 京急本線 梅屋敷駅(東京) 徒歩12分 東京都大田区大森西 | 詳細を見る | |
マンション スタイリオ中延駅前(1LDK/7階) | |||||||
![]() | 23.8万円 1万円 | 23.8万円 なし | 1LDK 46.78m2 | 築12年 | 都営浅草線 中延駅 徒歩1分 東急池上線 荏原中延駅 徒歩9分 東急大井町線 荏原町駅 徒歩11分 東京都品川区中延 | 詳細を見る | |


/105x80-f1-q70-wp1)





