賃貸アパート
西昆陽ガレージハウスの賃貸物件情報(ワンルーム/1階)
| 家賃 | 管理費等 | 敷金 | 礼金 | 間取り | 専有面積 |
|---|---|---|---|---|---|
| 24.5万円 | なし | なし | 24.5万円 | ワンルーム | 92.74m2 |
入居決定でお祝い金最大100,000円
- 保証金
- -
- 償却・敷引
- -
- 築年数
- 新築
- 所在階
- 1階
- 向き
- 南
Point
ご来店者様全員に、クオカード2000円プレゼント!※1グループ1名様、期限12月31日まで。
提供:ミニミニFC西宮北口店シティネット(株)(SUUMO経由)

詳細情報 西昆陽ガレージハウス
物件紹介
西昆陽ガレージハウスは阪急今津線甲東園駅から徒歩33分にあるアパートです。
このお部屋のインターホンにはTVモニタがついているため、相手の顔を確認してから来客対応することができます。
おしゃれなデザイナーズ物件!人気の南向きのお部屋。また、フローリングなのでお掃除もラクラク。キッチンはシステムキッチン仕様になっていますので、お料理好きの方にもぴったり。バス・トイレは別なので、のんびりお風呂タイムも楽しめるでしょう。また、雨の日でも浴室乾燥機を使えば、お洗濯も問題ありません。
通信設備面では、インターネット接続が可能です(別途工事、契約料が必要な場合あり)。
このお部屋のインターホンにはTVモニタがついているため、相手の顔を確認してから来客対応することができます。
おしゃれなデザイナーズ物件!人気の南向きのお部屋。また、フローリングなのでお掃除もラクラク。キッチンはシステムキッチン仕様になっていますので、お料理好きの方にもぴったり。バス・トイレは別なので、のんびりお風呂タイムも楽しめるでしょう。また、雨の日でも浴室乾燥機を使えば、お洗濯も問題ありません。
通信設備面では、インターネット接続が可能です(別途工事、契約料が必要な場合あり)。
お金・契約の情報
※「-」と表示されているものは、実際は料金が発生するものもございます。詳細はお問い合わせください。
| 家賃 | 24.5万円 | 管理費・共益費 | なし |
|---|---|---|---|
| 敷金 | なし | 礼金 | 24.5万円 |
| 入居決定でお祝い金最大100,000円 | |||
| 保証金 | - | 償却・敷引 | - |
| 住宅保険料 | - | 更新料 | - |
| 保証会社利用 | 必須 | 保証会社名 | 全保連 |
| 保証会社費用 | - | 保証会社備考 | 全保連利用必 初回保証料:月額総額50% 月額手数料:1 000円 年間保証料:10 000円 |
| 契約形態 | - | 契約期間 | - |
| 入居・引渡期間 | - | 現況 | - |
| 契約備考 | 巡回管理/初期費用、入居審査の不安など、その他お困りごと是非SumoSumoにご相談下さい★女性スタッフ対応も可能☆初期費用、入居審査の不安など、その他お困りごと是非SumoSumoにご相談下さい★女性スタッフ対応も可能☆ 合計1.65万円(内訳:アクト安心ライフ24契約時1.65万円) ワンルーム 普通借家2年 損保【2万円2年】 バストイレ別、エアコン、ガスコンロ対応、クロゼット、フローリング、シャワー付洗面台、浴室乾燥機、室内洗濯置、陽当り良好、システムキッチン、南向き、温水洗浄便座、脱衣所、洗面所独立、洗面化粧台、2口コンロ、外壁タイル張り、閑静な住宅地、最上階、敷金不要、駐車場1台無料、デザイナーズ、ネット専用回線、眺望良好、24時間換気システム、クロゼット2ヶ所、ビルトガレージ、洗面所にドア、玄関収納、IT重説対応物件、通風良好 入居日:'26年1月中旬 | ||
部屋の情報
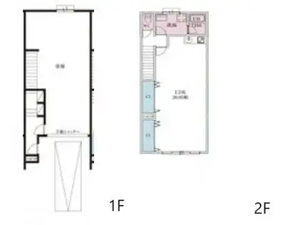
| 間取り | ワンルーム | 専有面積 | 92.74m2 |
|---|---|---|---|
| 所在階 / 向き | 1階 / 南 | バルコニー面積 | - |
| 水道 / ガス | - | ||
| 設備 | バス・トイレ別、浴室乾燥機、インターネット対応、システムキッチン、エアコン、温水洗浄便座、南向き、フローリング、洗髪洗面化粧台、2口コンロ、コンロ:ガス、デザイナーズ、洗濯機:室内 | ||
| 当社物件ID | 159621245 | ||
建物の情報
| 建物名 | 西昆陽ガレージハウス | ||
|---|---|---|---|
| 所在地 | 兵庫県尼崎市西昆陽 | ||
| 交通 | 阪急今津線 甲東園駅 徒歩33分 阪急神戸線 武庫之荘駅 徒歩40分 阪急今津線 仁川駅 徒歩45分 | ||
| 階数 | 2階建 | 総戸数 | - |
| 築年月 | 2026年01月 / 新築 | エレベーター | - |
| 駐車場 | 空有 付無料 | バイク置き場 | - |
| 駐輪場 | - | 管理人/管理会社 | - |
| 周辺環境 | その他 尼崎北警察署西昆陽交番(警察署・交番)まで286m その他 セブンイレブン 尼崎西昆陽2丁目店(コンビニ)まで314m その他 ローソン 伊丹山田五丁目店(コンビニ)まで1017m その他 尼崎時友郵便局(郵便局)まで1026m その他 ココカラファイン仁川店(ドラッグストア)まで2400m その他 mandai(万代) 仁川店(スーパー)まで2409m | ||
| 建物種別 | アパート | 建物構造 | 木造 |
この部屋の取扱い不動産会社
| 会社名 | (株)プラン・ドゥ・シー垂水店(SUUMO経由) | ||
|---|---|---|---|
| 所在地 | 兵庫県神戸市垂水区神田町 2-27 1階 | 交通 | - |
| 営業時間 | 10:00~19:00 | 定休日 | - |
| 免許番号 | 国土交通大臣9550 | 取引態様 | 仲介 |
| 不動産会社管理番号 | 100472725775 | 当社管理番号 | 89 |
| 取扱い物件情報 | 物件詳細へ | ||
※各種情報と現状に差異がある場合は、現状優先となります。問い合わせをすることで、より詳しい条件、情報を確認する事ができます。
提供:(株)プラン・ドゥ・シー垂水店(SUUMO経由)
この物件が気になったら掲載期限まであと11日
西昆陽ガレージハウスに条件(家賃・エリア)が近い物件一覧
| 写真 | 家賃 管理費等 | 敷金 礼金 | 間取り 専有面積 | 築年数 | 最寄り駅 所在地 | キープ | 詳細 |
|---|---|---|---|---|---|---|---|
マンション プラウド阪急塚口駅前(3SLDK/9階) | |||||||
![]() | 30万円 なし | 30万円 15万円 | 3SLDK 82.34m2 | 築4年 | 阪急電鉄神戸線 塚口駅(阪急) 徒歩1分 福知山線 塚口駅(JR) 徒歩13分 阪急電鉄伊丹線 稲野駅 徒歩20分 兵庫県尼崎市南塚口町2丁目 | 詳細を見る | |
一戸建て 東海道本線 立花駅 徒歩16分 築24年(3LDK) | |||||||
![]() | 19.8万円 3,000円 | 10万円 43.85万円 | 3LDK 115.92m2 | 築24年 | 東海道本線 立花駅 徒歩16分 阪急電鉄神戸線 武庫之荘駅 徒歩21分 阪急電鉄神戸線 塚口駅(阪急) 徒歩25分 兵庫県尼崎市上ノ島町3丁目 | 詳細を見る | |
マンション GROOVE上甲子園レジデンス(2SLDK/4階) | |||||||
![]() | 17.05万円 1万円 | なし なし | 2SLDK 68.44m2 | 築1年 | 阪神本線 甲子園駅 徒歩15分 阪急今津線 今津駅(阪急) 徒歩15分 阪神本線 今津駅(阪神) 徒歩15分 兵庫県西宮市上甲子園 | 詳細を見る | |
マンション フェリッツ上甲子園(2LDK/3階) | |||||||
![]() | 15万円 5,000円 | なし 30万円 | 2LDK 83.31m2 | 築29年 | 阪神電鉄本線 久寿川駅 徒歩12分 阪急電鉄今津線 阪神国道駅 徒歩15分 阪神電鉄本線 甲子園駅 徒歩16分 兵庫県西宮市上甲子園4丁目 | 詳細を見る | |
マンション 門戸厄神・M社計画工事(2LDK/2階) | |||||||
![]() | 18.6万円 8,000円 | なし 30万円 | 2LDK 70.72m2 | 新築 | 阪急今津線 門戸厄神駅 徒歩6分 阪急今津線 甲東園駅 徒歩17分 阪急神戸線 西宮北口駅 徒歩19分 兵庫県西宮市門戸岡田町 | 詳細を見る | |
アパート エテルノ塚口(2LDK/1階) | |||||||
![]() | 15.2万円 6,000円 | なし 30.4万円 | 2LDK 63.8m2 | 築2年 | 阪急神戸線 塚口駅(阪急) 徒歩9分 JR福知山線 塚口駅(JR) 徒歩24分 阪急伊丹線 稲野駅 徒歩24分 兵庫県尼崎市塚口町 | 詳細を見る | |
マンション フェルザ西宮(2LDK/6階) | |||||||
![]() | 14.7万円 1.5万円 | なし 14.7万円 | 2LDK 77.25m2 | 築38年 | 阪神本線 西宮駅(阪神) 徒歩17分 阪神本線 今津駅(阪神) 徒歩20分 阪神本線 香櫨園駅 徒歩22分 兵庫県西宮市久保町 | 詳細を見る | |
マンション レジェンダリー甲子園浦風町(3LDK/1階) | |||||||
![]() | 17万円 8,000円 | 17万円 40万円 | 3LDK 70.32m2 | 築7年 | 阪神本線 甲子園駅 徒歩5分 阪神本線 久寿川駅 徒歩7分 JR東海道本線 西宮駅(JR) 徒歩27分 兵庫県西宮市甲子園浦風町 | 詳細を見る | |







