賃貸マンション
たいらビルの賃貸物件情報(1K/2階)
| 家賃 | 管理費等 | 敷金 | 礼金 | 間取り | 専有面積 |
|---|---|---|---|---|---|
| 2.9万円 | なし | 5.8万円 | なし | 1K | 17.69m2 |
入居決定でお祝い金最大100,000円
Point
賃料重視の方!賃料2.9万円は魅力(^^♪賃料を抑えての入居をご希望されている方はぜひ☆ ストア・コンビニ・クリーニング店も近く一人暮らしにもオススメ◎
提供:たいら商事(SUUMO経由)

詳細情報 たいらビル
物件紹介
たいらビルはJR鹿児島本線鹿児島中央駅から徒歩9分にあり、駅近で通勤通学に便利なマンションです。
このお部屋は2階以上に位置しているので、通行人や周囲の住人からの視線が気になりにくく、防犯面でも安心。インターホンにはTVモニタもついているため、相手の顔を確認してから来客対応することができます。
バス・トイレ別の仕様で、のんびりお風呂タイムも楽しめます。
通信設備面では、インターネット接続が可能です(別途工事、契約料が必要な場合あり)。
このお部屋は2階以上に位置しているので、通行人や周囲の住人からの視線が気になりにくく、防犯面でも安心。インターホンにはTVモニタもついているため、相手の顔を確認してから来客対応することができます。
バス・トイレ別の仕様で、のんびりお風呂タイムも楽しめます。
通信設備面では、インターネット接続が可能です(別途工事、契約料が必要な場合あり)。
お金・契約の情報
※「-」と表示されているものは、実際は料金が発生するものもございます。詳細はお問い合わせください。
| 家賃 | 2.9万円 | 管理費・共益費 | なし |
|---|---|---|---|
| 敷金 | 5.8万円 | 礼金 | なし |
| 入居決定でお祝い金最大100,000円 | |||
| 保証金 | - | 償却・敷引 | - |
| 住宅保険料 | - | 更新料 | - |
| 保証会社利用 | 必須 | 保証会社名 | - |
| 保証会社費用 | - | 保証会社備考 | 保証会社利用必 アルファー 月額総額の50%~ |
| 契約形態 | - | 契約期間 | - |
| 入居・引渡期間 | 即時 | 現況 | - |
| 契約備考 | 山形屋ストアまで95m/ローソン鹿児島西田三丁目店まで210m/1F春山クリニック(形成外科・美容/更新料:2年ごとに5500円 1K 損保【1.24万円2年】 バストイレ別、エアコン、ガスコンロ対応、TVインターホン、温水洗浄便座、押入、光ファイバー、外壁タイル張り、即入居可、礼金不要、2面採光、仲手0.55ヶ月、駅まで平坦、キッチンに窓、敷金2ヶ月、浴室に窓、天袋、平坦地、3駅以上利用可、駅徒歩10分以内、バス停徒歩3分以内、平面駐車場、和室、都市ガス、LAN、保証会社利用可、通風良好 | ||
部屋の情報
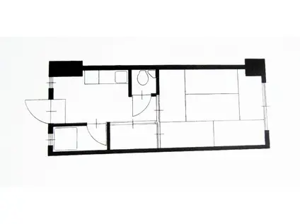
| 間取り | 1K | 専有面積 | 17.69m2 |
|---|---|---|---|
| 所在階 / 向き | 2階 / 西 | バルコニー面積 | - |
| 水道 / ガス | - | ||
| 設備 | バス・トイレ別、2階以上、テレビドアホン、インターネット対応、エアコン、温水洗浄便座、コンロ:ガス | ||
| 当社物件ID | 27134213 | ||
建物の情報
| 建物名 | たいらビル | ||
|---|---|---|---|
| 所在地 | 鹿児島県鹿児島市西田 | ||
| 交通 | JR鹿児島本線 鹿児島中央駅 徒歩9分 鹿児島市電唐湊線 鹿児島中央駅前駅 徒歩11分 | ||
| 階数 | 5階建 | 総戸数 | 24戸 |
| 築年月 | 1986年03月 / 築40年 | エレベーター | - |
| 駐車場 | 近隣 140m11000円 | バイク置き場 | - |
| 駐輪場 | - | 管理人/管理会社 | - |
| 周辺環境 | その他 春山クリニック(形成外科・美容皮膚科)(病院)まで15m その他 南香ラーメン(飲食店)まで74m その他 山形屋ストア(ショッピングセンター)まで95m その他 鹿児島西田郵便局(郵便局)まで130m その他 ローソン鹿児島西田三丁目店(コンビニ)まで210m その他 鹿児島銀行西田支店(銀行)まで270m | ||
| 建物種別 | マンション | 建物構造 | RC(鉄筋コンクリート) |
この部屋の取扱い不動産会社
| 会社名 | たいら商事(SUUMO経由) | ||
|---|---|---|---|
| 所在地 | 鹿児島県鹿児島市西田2-3-8 | 交通 | - |
| 営業時間 | 9:00~17:00 | 定休日 | 日・祝日 |
| 免許番号 | 鹿児島県知事6298 | 取引態様 | 貸主 |
| 不動産会社管理番号 | 100118876983 | 当社管理番号 | 89 |
| 所属団体 | (公社)鹿児島県宅地建物取引業協会会員 | ||
| 公正取引協議会 | (一社)九州不動産公正取引協議会加盟 | ||
| 取扱い物件情報 | 物件詳細へ | ||
※各種情報と現状に差異がある場合は、現状優先となります。問い合わせをすることで、より詳しい条件、情報を確認する事ができます。
提供:たいら商事(SUUMO経由)
この物件が気になったら掲載期限まであと0日
たいらビルに条件(家賃・エリア)が近い物件一覧
| 写真 | 家賃 管理費等 | 敷金 礼金 | 間取り 専有面積 | 築年数 | 最寄り駅 所在地 | キープ | 詳細 |
|---|---|---|---|---|---|---|---|
マンション セレンディ小松原(1K/4階) | |||||||
![]() | 2.9万円 1,000円 | なし なし | 1K 18.02m2 | 築38年 | 鹿児島市電谷山線 谷山駅(市電) 徒歩6分 JR指宿枕崎線 谷山駅(JR) 徒歩9分 鹿児島県鹿児島市小松原 | 詳細を見る | |
マンション ビレッジハウス玉里 2号棟(2DK/5階) | |||||||
![]() | 3.2万円 なし | なし なし | 2DK 38.06m2 | 築51年 | JR鹿児島本線 鹿児島駅 徒歩45分 鹿児島市電唐湊線 鹿児島駅前駅 徒歩48分 鹿児島県鹿児島市玉里団地 | 詳細を見る | |
アパート エレガンソーレII(ワンルーム/1階) | |||||||
![]() | 4.1万円 3,500円 | なし なし | ワンルーム 32.9m2 | 築15年 | 肥薩おれんじ鉄道 上川内駅 徒歩40分 JR鹿児島本線 川内駅(鹿児島) 徒歩44分 JR鹿児島本線 隈之城駅 徒歩72分 鹿児島県薩摩川内市 | 詳細を見る | |
アパート 喜入マリンハイツ(ワンルーム/1階) | |||||||
![]() | 3.9万円 1,000円 | なし なし | ワンルーム 26.49m2 | 築20年 | 鹿児島県鹿児島市喜入町 | 詳細を見る | |
マンション ペガサス9(1K/2階) | |||||||
![]() | 4.2万円 3,000円 | なし なし | 1K 28.5m2 | 築31年 | 九州新幹線 鹿児島中央駅 徒歩6分 鹿児島市電唐湊線 都通駅 徒歩6分 鹿児島県鹿児島市武 | 詳細を見る | |
マンション サンハイツ荒田(1K/1階) | |||||||
![]() | 3.1万円 2,000円 | なし なし | 1K 22m2 | 築27年 | 鹿児島市電谷山線 騎射場駅 徒歩6分 鹿児島市電谷山線 鴨池駅 徒歩10分 鹿児島市電谷山線 荒田八幡駅 徒歩10分 鹿児島県鹿児島市荒田 | 詳細を見る | |
マンション オーシャンマンション(1K/1階) | |||||||
![]() | 3.5万円 1,000円 | 5.25万円 なし | 1K 19m2 | 築45年 | 鹿児島市電唐湊線 高見橋駅 徒歩5分 鹿児島市電唐湊線 加治屋町駅 徒歩5分 鹿児島市電唐湊線 高見馬場駅 徒歩8分 鹿児島県鹿児島市加治屋町 | 詳細を見る | |
マンション スカイフラワーIII(1K/4階) | |||||||
![]() | 3.1万円 2,000円 | なし なし | 1K 18m2 | 築30年 | JR鹿児島本線 鹿児島中央駅 徒歩5分 JR指宿枕崎線 鹿児島中央駅 徒歩5分 鹿児島市電唐湊線 鹿児島中央駅前駅 徒歩9分 鹿児島県鹿児島市武 | 詳細を見る | |









