賃貸マンション
ビレッジハウス上妻1号棟の賃貸物件情報(2LDK/4階)
| 家賃 | 管理費等 | 敷金 | 礼金 | 間取り | 専有面積 |
|---|---|---|---|---|---|
| 3.82万円 | なし | なし | なし | 2LDK | 53.08m2 |
入居決定でお祝い金最大100,000円
- 保証金
- -
- 償却・敷引
- -
- 築年数
- 築34年
- 所在階
- 4階
- 向き
- 南
Point
まずはお問い合わせ!
不動産会社は街のプロ、あなたに合った物件がきっと見つかります。
提供:ビレッジハウス住まい相談センター

詳細情報 ビレッジハウス上妻1号棟
物件紹介
ビレッジハウス上妻1号棟は関東鉄道常総線騰波ノ江駅から徒歩61分にあるマンションです。
このお部屋は2階以上に位置しているので、通行人や周囲の住人からの視線が気になりにくく、防犯面でも安心です。
人気の南向きのお部屋。バス・トイレ別の仕様で、のんびりお風呂タイムも楽しめます。
このお部屋は2階以上に位置しているので、通行人や周囲の住人からの視線が気になりにくく、防犯面でも安心です。
人気の南向きのお部屋。バス・トイレ別の仕様で、のんびりお風呂タイムも楽しめます。
お金・契約の情報
※「-」と表示されているものは、実際は料金が発生するものもございます。詳細はお問い合わせください。
| 家賃 | 3.82万円 | 管理費・共益費 | なし |
|---|---|---|---|
| 敷金 | なし | 礼金 | なし |
| フリーレント | 1ヶ月 | ||
| 入居決定でお祝い金最大100,000円 | |||
| 保証金 | - | 償却・敷引 | - |
| 住宅保険料 | 1万円(2年) | 更新料 | - |
| 保証会社利用 | - | 保証会社名 | - |
| 保証会社費用 | - | 保証会社備考 | - |
| 契約形態 | - | 契約期間 | - |
| 入居・引渡期間 | - | 現況 | 空室 |
| 入居可能条件 | 2人入居可、高齢者相談、学生可 | ||
| 契約備考 | 契約種類:普通契約、24時間緊急対応 | ||
部屋の情報
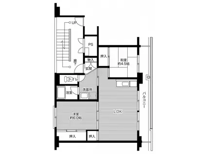
| 間取り | 2LDK | 専有面積 | 53.08m2 |
|---|---|---|---|
| 所在階 / 向き | 4階 / 南 | バルコニー面積 | - |
| 水道 / ガス | - | ||
| 設備 | バス・トイレ別、追い焚き、エアコン、バルコニー、給湯、洗濯機:室内 | ||
| 当社物件ID | 62197480 | ||
建物の情報
| 建物名 | ビレッジハウス上妻1号棟 | ||
|---|---|---|---|
| 所在地 | 茨城県下妻市黒駒1075-2 | ||
| 交通 | 関東鉄道常総線 騰波ノ江駅 徒歩61分 関東鉄道常総線 大宝駅 徒歩67分 関東鉄道常総線 黒子駅 徒歩71分 | ||
| 階数 | 5階建 | 総戸数 | - |
| 築年月 | 1992年11月 / 築34年 | エレベーター | - |
| 駐車場 | 空有 円 | バイク置き場 | - |
| 駐輪場 | - | 管理人/管理会社 | 日勤 |
| 建物種別 | マンション | 建物構造 | RC(鉄筋コンクリート) |
この部屋の取扱い不動産会社
| 会社名 | ビレッジハウス住まい相談センター | ||
|---|---|---|---|
| 所在地 | 愛知県名古屋市中区大須4-10-32 上前津KDビル5階 | 交通 | 名城線「上前津駅」徒歩3分 |
| 営業時間 | 平日:9:00-18:30/土日祝:9:00-18:00 | 定休日 | 年中無休(年末年始を除く) |
| 免許番号 | 東京都知事(2)第100758号 | 取引態様 | 貸主 |
| 不動産会社管理番号 | 00013671439 | 当社管理番号 | 459 |
| 所属団体 | 公益社団法人東京都宅地建物取引業協会会員 日本賃貸住宅管理協会会員 | ||
| 取扱い物件情報 | 物件詳細へ | ||
※各種情報と現状に差異がある場合は、現状優先となります。問い合わせをすることで、より詳しい条件、情報を確認する事ができます。
提供:ビレッジハウス住まい相談センター
この物件が気になったら掲載期限まであと13日
ビレッジハウス上妻1号棟に条件(家賃・エリア)が近い物件一覧
| 写真 | 家賃 管理費等 | 敷金 礼金 | 間取り 専有面積 | 築年数 | 最寄り駅 所在地 | キープ | 詳細 |
|---|---|---|---|---|---|---|---|
アパート TMTつくば(1K/3階) | |||||||
![]() | 3.5万円 3,000円 | 3.5万円 なし | 1K 23.18m2 | 築29年 | つくばエクスプレス つくば駅 徒歩13分 茨城県つくば市吾妻 | 詳細を見る | |
アパート リブェール(1LDK/1階) | |||||||
![]() | 5.9万円 4,500円 | なし 2万円 | 1LDK 42.11m2 | 築23年 | JR常磐線 ひたち野うしく駅 徒歩25分 茨城県つくば市高見原 | 詳細を見る | |
アパート レオパレスきららC(1K/1階) | |||||||
![]() | 4.6万円 4,500円 | なし 4.6万円 | 1K 23.18m2 | 築18年 | 茨城県つくば市観音台1丁目 | 詳細を見る | |
アパート LA MER EILLE(2LDK/2階) | |||||||
![]() | 5.7万円 3,500円 | 5.7万円 なし | 2LDK 56.99m2 | 築16年 | 関東鉄道常総線 宗道駅 徒歩48分 関東鉄道常総線 玉村駅 徒歩61分 関東鉄道常総線 下妻駅 徒歩77分 茨城県下妻市皆葉 | 詳細を見る | |
マンション レジデンスひかり(1K/1階) | |||||||
![]() | 4.5万円 3,000円 | 6万円 4.5万円 | 1K 24.5m2 | 築31年 | つくばエクスプレス つくば駅 徒歩40分 茨城県つくば市天久保 | 詳細を見る | |
アパート ラフォーレB(2LDK/2階) | |||||||
![]() | 6.1万円 6,000円 | なし なし | 2LDK 57.66m2 | 築19年 | 関東鉄道常総線 小絹駅 徒歩29分 茨城県常総市内守谷町きぬの里 | 詳細を見る | |
アパート リリックコート(1K/1階) | |||||||
![]() | 4.2万円 3,000円 | 4.2万円 なし | 1K 23.29m2 | 築21年 | JR常磐線 牛久駅 徒歩22分 JR常磐線 ひたち野うしく駅 徒歩39分 JR常磐線 荒川沖駅 徒歩74分 茨城県つくば市高見原 | 詳細を見る | |
アパート スターハウス(1K/1階) | |||||||
![]() | 3.3万円 1,000円 | なし なし | 1K 21.74m2 | 築43年 | つくばエクスプレス つくば駅 徒歩30分 つくばエクスプレス 研究学園駅 徒歩50分 茨城県つくば市天久保 | 詳細を見る | |









