賃貸マンション
京都市東西線 京都市役所前駅 徒歩5分 7階建 築30年の賃貸物件情報(3LDK/2階)
| 家賃 | 管理費等 | 敷金 | 礼金 | 間取り | 専有面積 |
|---|---|---|---|---|---|
| 14.8万円 | 1万円 | 14.8万円 | 14.8万円 | 3LDK | 69.34m2 |
入居決定でお祝い金最大100,000円
Point
御所南学区のとくゆうちん 礼金・更新料・仲介手数料が要りません
提供:株式会社 京都ライフ 河原町四条店(賃貸スモッカ経由)

詳細情報 京都市東西線 京都市役所前駅 徒歩5分 7階建 築30年
物件紹介
京都市東西線京都市役所前駅から徒歩5分にあり、駅近で通勤通学に便利なマンションです。
このお部屋は2階以上に位置しているので、通行人や周囲の住人からの視線が気になりにくく、防犯面でも安心です。
人気の角部屋で周囲の居住者の生活音も気になりにくく、また、フローリングのお部屋なのでお掃除もラクラク。バス・トイレ別の仕様で、のんびりお風呂タイムも楽しめます。
通信設備面では、インターネット接続が可能です。また、BSアンテナもありますので、おうち時間も充実するでしょう(別途工事、契約料が必要な場合あり)。
建物にはエレベーターがついているので、重い荷物があっても安心。
このお部屋は2階以上に位置しているので、通行人や周囲の住人からの視線が気になりにくく、防犯面でも安心です。
人気の角部屋で周囲の居住者の生活音も気になりにくく、また、フローリングのお部屋なのでお掃除もラクラク。バス・トイレ別の仕様で、のんびりお風呂タイムも楽しめます。
通信設備面では、インターネット接続が可能です。また、BSアンテナもありますので、おうち時間も充実するでしょう(別途工事、契約料が必要な場合あり)。
建物にはエレベーターがついているので、重い荷物があっても安心。
お金・契約の情報
※「-」と表示されているものは、実際は料金が発生するものもございます。詳細はお問い合わせください。
| 家賃 | 14.8万円 | 管理費・共益費 | 1万円 |
|---|---|---|---|
| 敷金 | 14.8万円 | 礼金 | 14.8万円 |
| 入居決定でお祝い金最大100,000円 | |||
| 保証金 | - | 償却・敷引 | - |
| 住宅保険料 | 住宅保険料あり | 更新料 | - |
| 契約形態 | - | 契約期間 | 2年 |
| 入居・引渡期間 | 相談 | 現況 | 空室 |
| 契約備考 | 収入に応じて市から家賃補助のある「とくゆうちん」物件です。地下鉄京都市役所前駅まで徒歩5分の3LDKマンション。京阪、地下鉄のダブルアクセス。礼金、更新料ナシです。嬉しい3点セパレートなど充実の設備。コンビニ、スーパー、ドラッグストアなど近くにあって便利ですよ。 更新料:無し その他設備/条件:独立洗面台、TVドアホン | ||
部屋の情報
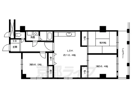
| 間取り | 3LDK | 専有面積 | 69.34m2 |
|---|---|---|---|
| 間取り詳細 | 洋室(6.2帖)、洋室(6.4帖)、和室(6帖)、LDK(12.4帖) | ||
| 所在階 / 向き | 2階 / 東 | バルコニー面積 | - |
| 水道 / ガス | ガス【都市】 | ||
| 設備 | バス・トイレ別、2階以上、追い焚き、インターネット対応、エレベーター、角部屋、バルコニー、フローリング、BSアンテナ、洗濯機:室内 | ||
| 当社物件ID | 160141503 | ||
建物の情報
| 建物名 | 京都市東西線 京都市役所前駅 徒歩5分 7階建 築30年 | ||
|---|---|---|---|
| 所在地 | 京都府京都市中京区尾張町 | ||
| 交通 | 京都市東西線 京都市役所前駅 徒歩5分 京都市烏丸線 烏丸御池駅 徒歩9分 | ||
| 階数 | 7階建 | 総戸数 | - |
| 築年月 | 1996年11月 / 築30年 | エレベーター | あり |
| 駐車場 | - | バイク置き場 | - |
| 駐輪場 | あり | 管理人/管理会社 | - |
| 建物種別 | マンション | 建物構造 | RC(鉄筋コンクリート) |
この部屋の取扱い不動産会社
| 会社名 | 株式会社 京都ライフ 河原町四条店(賃貸スモッカ経由) | ||
|---|---|---|---|
| 所在地 | 京都市中京区河原町通三条下る三丁目奈良屋町291-2 Wise core BLD.1階 | 交通 | - |
| 営業時間 | - | 定休日 | - |
| 免許番号 | 京都府知事(11)第6353号 | 取引態様 | 仲介 |
| 不動産会社管理番号 | kyotolife_09234-202-26 | 当社管理番号 | 463 |
| 所属団体 | 京都府宅地建物取引業協会\n公益社団法人近畿地区不動産公正取引協議会 | ||
| 公正取引協議会 | 全国宅地建物取引業保証協会 | ||
| 取扱い物件情報 | 物件詳細へ | ||
※各種情報と現状に差異がある場合は、現状優先となります。問い合わせをすることで、より詳しい条件、情報を確認する事ができます。
提供:株式会社 京都ライフ 河原町四条店(賃貸スモッカ経由)
この物件が気になったら掲載期限まであと5日
京都市東西線 京都市役所前駅 徒歩5分 7階建 築30年に条件(家賃・エリア)が近い物件一覧
| 写真 | 家賃 管理費等 | 敷金 礼金 | 間取り 専有面積 | 築年数 | 最寄り駅 所在地 | キープ | 詳細 |
|---|---|---|---|---|---|---|---|
アパート 京阪電気鉄道宇治線 黄檗駅(京阪) 徒歩8分 築10年(2LDK/2階) | |||||||
![]() | 8.9万円 5,000円 | 3万円 20万円 | 2LDK 58.83m2 | 築10年 | 京阪電気鉄道宇治線 黄檗駅(京阪) 徒歩8分 奈良線 黄檗駅(JR) 徒歩10分 京都府宇治市五ケ庄野添 | 詳細を見る | |
アパート 近鉄京都線 大久保駅(京都) 徒歩10分 築1年(1LDK/2階) | |||||||
![]() | 9.65万円 5,500円 | なし 13万円 | 1LDK 43.93m2 | 築1年 | 近鉄京都線 大久保駅(京都) 徒歩10分 近鉄京都線 久津川駅 徒歩14分 京都府宇治市大久保町 | 詳細を見る | |
マンション 山陰本線 円町駅 徒歩8分 新築(1LDK/1階) | |||||||
![]() | 12.6万円 1万円 | 5万円 20万円 | 1LDK 50.35m2 | 新築 | 山陰本線 円町駅 徒歩8分 京福北野線 北野白梅町駅 徒歩15分 京都府京都市中京区西ノ京馬代町 | 詳細を見る | |
アパート 京阪電気鉄道宇治線 黄檗駅(京阪) 徒歩8分 築10年(2LDK/2階) | |||||||
![]() | 8.9万円 5,000円 | 3万円 20万円 | 2LDK 58.83m2 | 築10年 | 京阪電気鉄道宇治線 黄檗駅(京阪) 徒歩8分 奈良線 黄檗駅(JR) 徒歩10分 京都府宇治市五ケ庄 | 詳細を見る | |
アパート 奈良線 木幡駅(JR) 徒歩1分 築1年(2LDK/2階) | |||||||
![]() | 10.3万円 8,000円 | 10.3万円 20.6万円 | 2LDK 48.45m2 | 築1年 | 奈良線 木幡駅(JR) 徒歩1分 京阪電気鉄道宇治線 木幡駅(京阪) 徒歩4分 京都府宇治市木幡大瀬戸 | 詳細を見る | |
マンション 京都市烏丸線 烏丸御池駅 徒歩4分 築10年(2LDK/3階) | |||||||
![]() | 17万円 5,000円 | 17万円 17万円 | 2LDK 63.01m2 | 築10年 | 京都市烏丸線 烏丸御池駅 徒歩4分 京都市烏丸線 丸太町駅(京都市営) 徒歩4分 京都府京都市中京区車屋町通二条下る仁王門突抜町 | 詳細を見る | |
マンション 京都市烏丸線 烏丸御池駅 徒歩5分 築12年(2LDK/7階) | |||||||
![]() | 20.5万円 1.5万円 | 20.5万円 41万円 | 2LDK 56.06m2 | 築12年 | 京都市烏丸線 烏丸御池駅 徒歩5分 京都市烏丸線 丸太町駅(京都市営) 徒歩9分 京都府京都市中京区中之町 | 詳細を見る | |







