賃貸マンション
クイーンズパレスⅠの賃貸物件情報(2LDK/4階)
| 家賃 | 管理費等 | 敷金 | 礼金 | 間取り | 専有面積 |
|---|---|---|---|---|---|
| 13.5万円 | 1.5万円 | 27万円 | 27万円 | 2LDK | 71.56m2 |
入居決定でお祝い金最大100,000円
- 保証金
- -
- 償却・敷引
- -
- 築年数
- 築30年
- 所在階
- 4階
- 向き
- 南
Point
片面しか隣接しない角部屋はお互いの生活音が響きにくく、騒音トラブル防止につながります。
提供:(株)FT-ハウス(SUUMO経由)

詳細情報 クイーンズパレスⅠ
物件紹介
クイーンズパレスⅠはJR総武線幕張本郷駅から徒歩4分にあり、駅近で通勤通学に便利なマンションです。
このお部屋は2階以上に位置しているので、通行人や周囲の住人からの視線が気になりにくく、防犯面でも安心。建物のエントランスはオートロックがついており、インターホンにはTVモニタもついているため、相手の顔を確認してから来客対応することができます。
人気の南向き・フローリングのお部屋。角部屋でもあるため、周囲の居住者の生活音も気になりにくい場所です。キッチンはシステムキッチン仕様になっていますので、お料理好きの方にもぴったり。また、バス・トイレは別で、のんびりお風呂タイムも楽しめるでしょう。
通信設備面では、インターネット接続が可能です。また、BSアンテナがありCATVにも対応しているので、おうち時間も充実するでしょう(別途工事、契約料が必要な場合あり)。
建物にはエレベーターがついているので、重い荷物があっても安心。共用部には宅配ボックスが設定されているので、不在の時にも荷物を受け取ることができます。
コンビニまで徒歩8分の場所にあり、日用品や食料品のお買い物にも便利です。
このお部屋は2階以上に位置しているので、通行人や周囲の住人からの視線が気になりにくく、防犯面でも安心。建物のエントランスはオートロックがついており、インターホンにはTVモニタもついているため、相手の顔を確認してから来客対応することができます。
人気の南向き・フローリングのお部屋。角部屋でもあるため、周囲の居住者の生活音も気になりにくい場所です。キッチンはシステムキッチン仕様になっていますので、お料理好きの方にもぴったり。また、バス・トイレは別で、のんびりお風呂タイムも楽しめるでしょう。
通信設備面では、インターネット接続が可能です。また、BSアンテナがありCATVにも対応しているので、おうち時間も充実するでしょう(別途工事、契約料が必要な場合あり)。
建物にはエレベーターがついているので、重い荷物があっても安心。共用部には宅配ボックスが設定されているので、不在の時にも荷物を受け取ることができます。
コンビニまで徒歩8分の場所にあり、日用品や食料品のお買い物にも便利です。
お金・契約の情報
※「-」と表示されているものは、実際は料金が発生するものもございます。詳細はお問い合わせください。
| 家賃 | 13.5万円 | 管理費・共益費 | 1.5万円 |
|---|---|---|---|
| 敷金 | 27万円 | 礼金 | 27万円 |
| 入居決定でお祝い金最大100,000円 | |||
| 保証金 | - | 償却・敷引 | - |
| 住宅保険料 | 1円 | 更新料 | - |
| 保証会社利用 | 必須 | 保証会社名 | - |
| 保証会社費用 | - | 保証会社備考 | 初回保証料:月額総賃料の50パーセント |
| 契約形態 | - | 契約期間 | 2年 |
| 入居・引渡期間 | 2026年03月下旬 | 現況 | - |
| 入居可能条件 | 事務所不可、2人入居可、楽器不可、ペット不可 | ||
| 契約備考 | 鍵交換代 22000円 月額:町会費 250円 月額(町会費 250円) 鍵交換費用:22000 その他設備/条件:室内洗濯機置き場、独立洗面台、防犯カメラ、ルームシェア不可、全居室収納、クローゼット | ||
部屋の情報
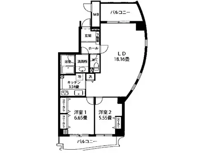
| 間取り | 2LDK | 専有面積 | 71.56m2 |
|---|---|---|---|
| 間取り詳細 | 洋室(6.6帖)、洋室(5.5帖)、LDK(18.1帖) | ||
| 所在階 / 向き | 4階 / 南 | バルコニー面積 | - |
| 水道 / ガス | 水道【公営】、ガス【都市】 | ||
| 設備 | バス・トイレ別、オートロック、テレビドアホン、追い焚き、システムキッチン、エアコン、エレベーター、温水洗浄便座、角部屋、バルコニー、フローリング、洗髪洗面化粧台、3口コンロ、コンロ:ガス、CATV、BSアンテナ、シャワー、給湯、タイル張り | ||
| 当社物件ID | 12596554 | ||
建物の情報
| 建物名 | クイーンズパレスⅠ | ||
|---|---|---|---|
| 所在地 | 千葉県千葉市花見川区幕張本郷5丁目 | ||
| 交通 | 総武・中央緩行線 幕張本郷駅 徒歩6分 京成電鉄千葉線 京成幕張本郷駅 徒歩6分 | ||
| 階数 | 4階建 | 総戸数 | 21戸 |
| 築年月 | 1996年03月 / 築30年 | エレベーター | あり |
| 駐車場 | - | バイク置き場 | - |
| 駐輪場 | あり | 管理人/管理会社 | - |
| 周辺環境 | コンビニ 徒歩8分(570m) 販売店 徒歩5分(378m) その他 ドラッグストア その他 公園 その他 銀行 その他 * | ||
| 建物種別 | マンション | 建物構造 | RC(鉄筋コンクリート) |
この部屋の取扱い不動産会社
| 会社名 | ハウスコム千葉株式会社 千葉中央店 | ||
|---|---|---|---|
| 所在地 | 千葉県千葉市中央区7-2鹿島ビル3階 | 交通 | - |
| 営業時間 | 10:00~18:00 | 定休日 | 水曜定休 |
| 免許番号 | 千葉県知事(1)第18235号 | 取引態様 | 仲介 |
| 不動産会社管理番号 | HC2-14298-401-0066 | 当社管理番号 | 468 |
| 所属団体 | 、 | ||
| 取扱い物件情報 | 物件詳細へ | ||
※各種情報と現状に差異がある場合は、現状優先となります。問い合わせをすることで、より詳しい条件、情報を確認する事ができます。
提供:ハウスコム千葉株式会社 千葉中央店
この物件が気になったら掲載期限まであと4日
クイーンズパレスⅠに条件(家賃・エリア)が近い物件一覧
| 写真 | 家賃 管理費等 | 敷金 礼金 | 間取り 専有面積 | 築年数 | 最寄り駅 所在地 | キープ | 詳細 |
|---|---|---|---|---|---|---|---|
マンション スカイグランデ津田沼(3LDK/5階) | |||||||
![]() | 20.7万円 1.5万円 | なし なし | 3LDK 65.1m2 | 築1年 | 京成松戸線 新津田沼駅 徒歩4分 JR総武線快速 津田沼駅 徒歩8分 JR総武線 津田沼駅 徒歩8分 千葉県習志野市津田沼 | 詳細を見る | |
アパート LILY津田沼(1LDK/1階) | |||||||
![]() | 9.3万円 6,000円 | 9.3万円 9.3万円 | 1LDK 35.03m2 | 築1年 | 京成本線 京成津田沼駅 徒歩10分 JR総武線快速 津田沼駅 徒歩21分 千葉県習志野市鷺沼 | 詳細を見る | |
マンション サンライズ幕張(2LDK/3階) | |||||||
![]() | 14万円 5,000円 | なし なし | 2LDK 56.45m2 | 築1年 | 総武・中央緩行線 幕張駅 徒歩13分 京成電鉄千葉線 京成幕張駅 徒歩15分 千葉県千葉市花見川区幕張町5丁目 | 詳細を見る | |
アパート バニュルス VI(2LDK/1階) | |||||||
![]() | 9.3万円 4,500円 | なし 9.3万円 | 2LDK 56.67m2 | 新築 | JR内房線 浜野駅 徒歩14分 千葉県市原市八幡 | 詳細を見る | |
マンション コンフォート津田沼壱番館(3LDK/3階) | |||||||
![]() | 19.2万円 6,000円 | 19.2万円 19.2万円 | 3LDK 65.05m2 | 築29年 | JR総武線 津田沼駅 徒歩3分 京成松戸線 新津田沼駅 徒歩9分 京成本線 京成津田沼駅 徒歩17分 千葉県習志野市谷津 | 詳細を見る | |
アパート ルッコラ(1LDK/1階) | |||||||
![]() | 8.9万円 4,500円 | なし なし | 1LDK 45.15m2 | 築18年 | JR総武線 東船橋駅 徒歩12分 JR総武線 津田沼駅 徒歩15分 京成本線 谷津駅 徒歩18分 千葉県習志野市谷津 | 詳細を見る | |
マンション パークタワー八千代緑が丘(3LDK/26階) | |||||||
![]() | 16.9万円 なし | 33.8万円 16.9万円 | 3LDK 73.73m2 | 築14年 | 東葉高速鉄道 八千代緑が丘駅 徒歩2分 千葉県八千代市緑が丘 | 詳細を見る | |
アパート ラフィーネI(1LDK/1階) | |||||||
![]() | 8.1万円 3,000円 | なし 8.1万円 | 1LDK 47.66m2 | 築4年 | 小湊鉄道線 上総村上駅 徒歩21分 JR内房線 五井駅 徒歩34分 千葉県市原市加茂 | 詳細を見る | |








