賃貸アパート
スティタス長根の賃貸物件情報(2LDK/2階)
| 家賃 | 管理費等 | 敷金 | 礼金 | 間取り | 専有面積 |
|---|---|---|---|---|---|
| 5.8万円 | なし | 11.6万円 | なし | 2LDK | 54m2 |
入居決定でお祝い金最大100,000円
Point
エアコン、FFストーブ設置!
提供:(有)らいず不動産ピタットハウス八戸店(SUUMO経由)

詳細情報 スティタス長根
物件紹介
スティタス長根はJR八戸線本八戸駅から徒歩16分にあるアパートです。
このお部屋は2階以上に位置しているので、通行人や周囲の住人からの視線が気になりにくく、防犯面でも安心です。
人気の南向きのお部屋。キッチンはシステムキッチン仕様になっていますので、お料理好きの方にもぴったり。また、バス・トイレは別で、のんびりお風呂タイムも楽しめるでしょう。
このお部屋は2階以上に位置しているので、通行人や周囲の住人からの視線が気になりにくく、防犯面でも安心です。
人気の南向きのお部屋。キッチンはシステムキッチン仕様になっていますので、お料理好きの方にもぴったり。また、バス・トイレは別で、のんびりお風呂タイムも楽しめるでしょう。
お金・契約の情報
※「-」と表示されているものは、実際は料金が発生するものもございます。詳細はお問い合わせください。
| 家賃 | 5.8万円 | 管理費・共益費 | なし |
|---|---|---|---|
| 敷金 | 11.6万円 | 礼金 | なし |
| 入居決定でお祝い金最大100,000円 | |||
| 保証金 | - | 償却・敷引 | - |
| 住宅保険料 | - | 更新料 | - |
| 保証会社利用 | 必須 | 保証会社名 | - |
| 保証会社費用 | - | 保証会社備考 | 保証会社利用必 その他 【保証料】初回:賃料総額50% 月額:賃料総額1% 更新:10,000円(1年毎) |
| 契約形態 | - | 契約期間 | - |
| 入居・引渡期間 | 相談 | 現況 | - |
| 契約備考 | 退去時の室内クリーニング費用負担があります。 2LDK 損保【2万円2年】 バストイレ別、バルコニー、エアコン、クロゼット、室内洗濯置、シューズボックス、システムキッチン、温水洗浄便座、洗面所独立、礼金不要、駐車2台可、東南向き、LDK12畳以上、プロパンガス | ||
部屋の情報
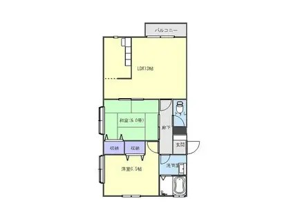
| 間取り | 2LDK | 専有面積 | 54m2 |
|---|---|---|---|
| 所在階 / 向き | 2階 / 南東 | バルコニー面積 | - |
| 水道 / ガス | - | ||
| 設備 | バス・トイレ別、2階以上、システムキッチン、エアコン、温水洗浄便座、南向き、バルコニー、洗髪洗面化粧台、洗濯機:室内 | ||
| 当社物件ID | 100974276 | ||
建物の情報
| 建物名 | スティタス長根 | ||
|---|---|---|---|
| 所在地 | 青森県八戸市長根 | ||
| 交通 | JR八戸線 本八戸駅 徒歩16分 | ||
| 階数 | 3階建 | 総戸数 | - |
| 築年月 | 1999年09月 / 築27年 | エレベーター | - |
| 駐車場 | 空有 付無料 | バイク置き場 | - |
| 駐輪場 | - | 管理人/管理会社 | - |
| 周辺環境 | その他 ファッションパルヴィアノヴァ(ショッピングセンター)まで1080m その他 ローソン八戸売市長根店(コンビニ)まで283m その他 私立千葉学園高校(高校・高専)まで2273m その他 八戸市立第二中学校(中学校)まで569m その他 八戸市立八戸小学校(小学校)まで423m その他 マエダストア売市店(スーパー)まで621m | ||
| 建物種別 | アパート | 建物構造 | 木造 |
この部屋の取扱い不動産会社
| 会社名 | (有)らいず不動産ピタットハウス八戸店(SUUMO経由) | ||
|---|---|---|---|
| 所在地 | 青森県八戸市沼館1-6-3 | 交通 | - |
| 営業時間 | 10:00~17:30 | 定休日 | 日・祝・第1第3水曜日 |
| 免許番号 | 青森県知事3094 | 取引態様 | 仲介 |
| 不動産会社管理番号 | 100243031496 | 当社管理番号 | 89 |
| 所属団体 | (公社)全日本不動産協会青森県本部会員 | ||
| 公正取引協議会 | 東北地区不動産公正取引協議会加盟 | ||
| 取扱い物件情報 | 物件詳細へ | ||
※各種情報と現状に差異がある場合は、現状優先となります。問い合わせをすることで、より詳しい条件、情報を確認する事ができます。
提供:(有)らいず不動産ピタットハウス八戸店(SUUMO経由)
この物件が気になったら掲載期限まであと11日
スティタス長根に条件(家賃・エリア)が近い物件一覧
| 写真 | 家賃 管理費等 | 敷金 礼金 | 間取り 専有面積 | 築年数 | 最寄り駅 所在地 | キープ | 詳細 |
|---|---|---|---|---|---|---|---|
アパート メゾン トゥー・ル・モンド(2DK/1階) | |||||||
![]() | 4.8万円 3,000円 | なし なし | 2DK 42.77m2 | 築25年 | JR八戸線 八戸駅 徒歩8分 青森県八戸市大字尻内町中崎 | 詳細を見る | |
アパート ドゥ・プレリー(2DK/2階) | |||||||
![]() | 5.3万円 1,700円 | 5.3万円 なし | 2DK 51.67m2 | 築27年 | JR八戸線 本八戸駅 徒歩34分 青森県八戸市南類家 | 詳細を見る | |
アパート アゼリア吹上(1LDK/1階) | |||||||
![]() | 5.7万円 4,000円 | なし 5万円 | 1LDK 34.76m2 | 築12年 | 青森県八戸市吹上2丁目 | 詳細を見る | |
アパート ルグラン小田前(2LDK/2階) | |||||||
![]() | 5.3万円 なし | なし 5.83万円 | 2LDK 58.34m2 | 築39年 | 青森県八戸市下長3丁目 | 詳細を見る | |
アパート セジュール杉本AB(2DK/1階) | |||||||
![]() | 5.2万円 なし | なし 5.72万円 | 2DK 47.8m2 | 築28年 | JR八戸線 本八戸駅 徒歩39分 青森県八戸市 | 詳細を見る | |
アパート メゾン・ルーチェ(1LDK/2階) | |||||||
![]() | 6.3万円 4,000円 | なし 6.3万円 | 1LDK 40.07m2 | 築17年 | 青森県八戸市大字上徒士町 | 詳細を見る | |
アパート アバンセレジデンス(1LDK/1階) | |||||||
![]() | 6万円 4,500円 | なし 6.6万円 | 1LDK 42.11m2 | 築13年 | 青森県八戸市 | 詳細を見る | |








