賃貸アパート
第二神山ハイツの賃貸物件情報(1DK/1階)
| 家賃 | 管理費等 | 敷金 | 礼金 | 間取り | 専有面積 |
|---|---|---|---|---|---|
| 8万円 | なし | 8万円 | 8万円 | 1DK | 24.3m2 |
入居決定でお祝い金最大100,000円
Point
女性限定 ケーブルテレビ導入済み モニター付きインターホン バス・トイレ別 2口ガスコンロ 温水洗浄便座
提供:旭住販(株)(SUUMO経由)

詳細情報 第二神山ハイツ
物件紹介
第二神山ハイツは東急東横線中目黒駅から徒歩8分にあり、駅近で通勤通学に便利なアパートです。
このお部屋のインターホンにはTVモニタがついているため、相手の顔を確認してから来客対応することができます。
人気の南向きのお部屋。また、フローリングなのでお掃除もラクラク。バス・トイレ別の仕様で、のんびりお風呂タイムも楽しめます。
通信設備面では、インターネット接続が可能です。また、CATVにも対応しているので、おうち時間も充実するでしょう(別途工事、契約料が必要な場合あり)。
このお部屋のインターホンにはTVモニタがついているため、相手の顔を確認してから来客対応することができます。
人気の南向きのお部屋。また、フローリングなのでお掃除もラクラク。バス・トイレ別の仕様で、のんびりお風呂タイムも楽しめます。
通信設備面では、インターネット接続が可能です。また、CATVにも対応しているので、おうち時間も充実するでしょう(別途工事、契約料が必要な場合あり)。
お金・契約の情報
※「-」と表示されているものは、実際は料金が発生するものもございます。詳細はお問い合わせください。
| 家賃 | 8万円 | 管理費・共益費 | なし |
|---|---|---|---|
| 敷金 | 8万円 | 礼金 | 8万円 |
| 入居決定でお祝い金最大100,000円 | |||
| 保証金 | - | 償却・敷引 | - |
| 住宅保険料 | - | 更新料 | - |
| 保証会社利用 | 必須 | 保証会社名 | 日本セーフティー |
| 保証会社費用 | - | 保証会社備考 | 日本セーフティー利用必 初回賃料の50% 2年目以降1.2万円(又は月額800円) |
| 契約形態 | - | 契約期間 | - |
| 入居・引渡期間 | 即時 | 現況 | - |
| 契約備考 | 1DK 女性限定/単身者限定/子供不可/事務所利用不可/ルームシェア不可 損保【1.7万円2年】 バストイレ別、バルコニー、エアコン、ガスコンロ対応、クロゼット、フローリング、TVインターホン、シューズボックス、温水洗浄便座、2口コンロ、CATV、即入居可、敷金1ヶ月、CATVインターネット、2沿線利用可、駅まで平坦、内装リフォーム済、ダブルロックキー、始発駅、2駅利用可、南西向き、都市ガス、礼金1ヶ月 | ||
部屋の情報
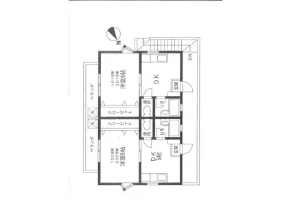
| 間取り | 1DK | 専有面積 | 24.3m2 |
|---|---|---|---|
| 所在階 / 向き | 1階 / 南西 | バルコニー面積 | - |
| 水道 / ガス | - | ||
| 設備 | バス・トイレ別、テレビドアホン、インターネット対応、エアコン、温水洗浄便座、南向き、バルコニー、フローリング、2口コンロ、コンロ:ガス、CATV | ||
| 当社物件ID | 18111154 | ||
建物の情報
| 建物名 | 第二神山ハイツ | ||
|---|---|---|---|
| 所在地 | 東京都目黒区祐天寺 | ||
| 交通 | 東急東横線 中目黒駅 徒歩8分 東急東横線 祐天寺駅 徒歩8分 | ||
| 階数 | 2階建 | 総戸数 | - |
| 築年月 | 1994年02月 / 築32年 | エレベーター | - |
| 駐車場 | なし | バイク置き場 | - |
| 駐輪場 | - | 管理人/管理会社 | - |
| 周辺環境 | その他 まいばすけっと中目黒5丁目店(スーパー)まで438m その他 まいばすけっと祐天寺駅通り店(スーパー)まで587m その他 カルディコーヒーファーム中目黒店(スーパー)まで570m その他 ナチュラルローソン祐天寺一丁目店(コンビニ)まで20m その他 ファミリーマート上目黒二丁目店(コンビニ)まで350m その他 中目黒GT(ショッピングセンター)まで586m | ||
| 建物種別 | アパート | 建物構造 | 軽量鉄骨造 |
この部屋の取扱い不動産会社
| 会社名 | 旭住販(株)(SUUMO経由) | ||
|---|---|---|---|
| 所在地 | 東京都渋谷区恵比寿南3-1-21 松崎ビル | 交通 | - |
| 営業時間 | AM9:30~PM6:30 | 定休日 | 日・祝 |
| 免許番号 | 東京都知事41696 | 取引態様 | 仲介 |
| 不動産会社管理番号 | 100477729728 | 当社管理番号 | 89 |
| 所属団体 | (公社)東京都宅地建物取引業協会会員 | ||
| 公正取引協議会 | (公社)首都圏不動産公正取引協議会加盟 | ||
| 取扱い物件情報 | 物件詳細へ | ||
※各種情報と現状に差異がある場合は、現状優先となります。問い合わせをすることで、より詳しい条件、情報を確認する事ができます。
提供:旭住販(株)(SUUMO経由)
この物件が気になったら掲載期限まであと11日
第二神山ハイツに条件(家賃・エリア)が近い物件一覧
| 写真 | 家賃 管理費等 | 敷金 礼金 | 間取り 専有面積 | 築年数 | 最寄り駅 所在地 | キープ | 詳細 |
|---|---|---|---|---|---|---|---|
マンション 菊鮨ビル(1K/3階) | |||||||
![]() | 8.2万円 3,000円 | 8.2万円 8.2万円 | 1K 22m2 | 築42年 | JR京浜東北線 蒲田駅 徒歩9分 京急本線 京急蒲田駅 徒歩10分 京急本線 梅屋敷駅(東京) 徒歩12分 東京都大田区蒲田 | 詳細を見る | |
マンション フラーレン(2K/2階) | |||||||
![]() | 9.8万円 4,000円 | 9.8万円 9.8万円 | 2K 36.52m2 | 築28年 | 東京モノレール羽田 昭和島駅 徒歩13分 京浜急行電鉄本線 梅屋敷駅(東京) 徒歩19分 東京都大田区大森南3丁目 | 詳細を見る | |
マンション SEED JUST B-BASE II(1LDK/1階) | |||||||
![]() | 10.1万円 1.5万円 | 10.1万円 10.1万円 | 1LDK 27.92m2 | 新築 | 東京モノレール 昭和島駅 徒歩11分 京急本線 梅屋敷駅(東京) 徒歩19分 東京都大田区大森南 | 詳細を見る | |
アパート M SONIA KUGAHARA(ワンルーム/1階) | |||||||
![]() | 9.5万円 3,000円 | 9.5万円 14.25万円 | ワンルーム 24.57m2 | 築1年 | 東急池上線 久が原駅 徒歩8分 東急池上線 御嶽山駅 徒歩9分 東急多摩川線 鵜の木駅 徒歩13分 東京都大田区西嶺町 | 詳細を見る | |
アパート SEED SAVE PETIRASU Ⅲ(2DK/1階) | |||||||
![]() | 12万円 1万円 | 24万円 12万円 | 2DK 35.83m2 | 新築 | 東京モノレール羽田 昭和島駅 徒歩12分 京浜急行電鉄本線 大森町駅 徒歩18分 東京都大田区大森東5丁目 | 詳細を見る | |
アパート ヴェリテ・アイケイ(1K/1階) | |||||||
![]() | 5.8万円 2,000円 | 5.8万円 なし | 1K 20.83m2 | 築33年 | 京浜急行電鉄本線 大森町駅 徒歩7分 京浜急行電鉄本線 梅屋敷駅(東京) 徒歩9分 東京都大田区大森西5丁目 | 詳細を見る | |
アパート マーレ大森町(1K/3階) | |||||||
![]() | 7.5万円 4,000円 | 3.75万円 7.5万円 | 1K 16.3m2 | 築6年 | 京浜急行電鉄本線 大森町駅 徒歩6分 東京都大田区大森西3丁目 | 詳細を見る | |
マンション グリーンパルコン(1LDK/1階) | |||||||
![]() | 12.2万円 3,000円 | 6.1万円 18.3万円 | 1LDK 48m2 | 築14年 | 京急本線 大森町駅 徒歩9分 京急本線 平和島駅 徒歩14分 京急本線 梅屋敷駅(東京) 徒歩17分 東京都大田区大森東 | 詳細を見る | |









