賃貸マンション
クオリア南麻布の賃貸物件情報(1K/4階)
| 家賃 | 管理費等 | 敷金 | 礼金 | 間取り | 専有面積 |
|---|---|---|---|---|---|
| 15万円 | なし | 15万円 | 15万円 | 1K | 28.23m2 |
入居決定でお祝い金最大100,000円
- 保証金
- -
- 償却・敷引
- -
- 築年数
- 築20年
- 所在階
- 4階
- 向き
- 西
Point
☆初期費用クレジット決済もご相談ください◎オンライン内見・契約承ります☆
提供:(株)カムグランサテライト店(SUUMO経由)

詳細情報 クオリア南麻布
物件紹介
クオリア南麻布は東京メトロ日比谷線広尾駅から徒歩4分にあり、駅近で通勤通学に便利なマンションです。
このお部屋は2階以上に位置しているので、通行人や周囲の住人からの視線が気になりにくく、防犯面でも安心。建物のエントランスはオートロックがついており、インターホンにはTVモニタもついているため、相手の顔を確認してから来客対応することができます。
フローリングのお部屋なのでお掃除もラクラク。キッチンはシステムキッチン仕様になっていますので、お料理好きの方にもぴったり。バス・トイレは別なので、のんびりお風呂タイムも楽しめるでしょう。また、雨の日でも浴室乾燥機を使えば、お洗濯も問題ありません。
通信設備面では、インターネット接続が可能です。また、CATVにも対応しているので、おうち時間も充実するでしょう(別途工事、契約料が必要な場合あり)。
床暖房があり、冬も足元から暖かく快適に過ごすことができます。建物にはエレベーターがついているので、重い荷物があっても安心。共用部には宅配ボックスが設定されているので、不在の時にも荷物を受け取ることができます。
このお部屋は2階以上に位置しているので、通行人や周囲の住人からの視線が気になりにくく、防犯面でも安心。建物のエントランスはオートロックがついており、インターホンにはTVモニタもついているため、相手の顔を確認してから来客対応することができます。
フローリングのお部屋なのでお掃除もラクラク。キッチンはシステムキッチン仕様になっていますので、お料理好きの方にもぴったり。バス・トイレは別なので、のんびりお風呂タイムも楽しめるでしょう。また、雨の日でも浴室乾燥機を使えば、お洗濯も問題ありません。
通信設備面では、インターネット接続が可能です。また、CATVにも対応しているので、おうち時間も充実するでしょう(別途工事、契約料が必要な場合あり)。
床暖房があり、冬も足元から暖かく快適に過ごすことができます。建物にはエレベーターがついているので、重い荷物があっても安心。共用部には宅配ボックスが設定されているので、不在の時にも荷物を受け取ることができます。
お金・契約の情報
※「-」と表示されているものは、実際は料金が発生するものもございます。詳細はお問い合わせください。
| 家賃 | 15万円 | 管理費・共益費 | なし |
|---|---|---|---|
| 敷金 | 15万円 | 礼金 | 15万円 |
| 入居決定でお祝い金最大100,000円 | |||
| 保証金 | - | 償却・敷引 | - |
| 住宅保険料 | - | 更新料 | - |
| 保証会社利用 | 必須 | 保証会社名 | - |
| 保証会社費用 | - | 保証会社備考 | 保証会社利用必 初回契約時:60%、内容はお問い合わせください。 |
| 契約形態 | - | 契約期間 | - |
| 入居・引渡期間 | 即時 | 現況 | - |
| 契約備考 | 通勤管理 合計2.2万円(内訳:鍵交換代 22000円税込) 更新料 1ヶ月 1K 普通借家2年 損保【2万円2年】 バストイレ別、バルコニー、エアコン、ガスコンロ対応、クロゼット、フローリング、TVインターホン、浴室乾燥機、オートロック、室内洗濯置、シューズボックス、システムキッチン、温水洗浄便座、脱衣所、エレベーター、洗面所独立、洗面化粧台、駐輪場、宅配ボックス、CATV、外壁タイル張り、即入居可、防犯カメラ、分譲賃貸、グリル付、保証人不要、敷金1ヶ月、バイク置場、全居室フローリング、ネット専用回線、床暖房、24時間換気システム、耐震構造、3駅以上利用可、3沿線以上利用可、駅徒歩5分以内、24時間ゴミ出し可、敷地内ごみ置き場、日勤管理、寝室8畳以上、全居室6畳以上、全居室8畳以上、都市ガス、シューズWIC、玄関収納、礼金1ヶ月、初期費用カード決済可、通風良好 | ||
部屋の情報
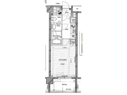
| 間取り | 1K | 専有面積 | 28.23m2 |
|---|---|---|---|
| 所在階 / 向き | 4階 / 西 | バルコニー面積 | - |
| 水道 / ガス | - | ||
| 設備 | バス・トイレ別、2階以上、オートロック、テレビドアホン、宅配ボックス、浴室乾燥機、インターネット対応、システムキッチン、エアコン、エレベーター、温水洗浄便座、バルコニー、フローリング、洗髪洗面化粧台、床暖房、コンロ:ガス、CATV、洗濯機:室内 | ||
| 当社物件ID | 34654363 | ||
建物の情報
| 建物名 | クオリア南麻布 | ||
|---|---|---|---|
| 所在地 | 東京都港区南麻布 | ||
| 交通 | 東京メトロ日比谷線 広尾駅 徒歩4分 東京メトロ南北線 白金高輪駅 徒歩18分 JR山手線 恵比寿駅 徒歩18分 | ||
| 階数 | 13階建 | 総戸数 | - |
| 築年月 | 2006年03月 / 築20年 | エレベーター | あり |
| 駐車場 | 近隣 50m40000円 | バイク置き場 | あり |
| 駐輪場 | あり | 管理人/管理会社 | - |
| 周辺環境 | その他 ファミリーマート 南麻布四丁目店(コンビニ)まで136m その他 ローソン 広尾五丁目店(コンビニ)まで258m その他 miniピアゴ 広尾5丁目店(スーパー)まで494m | ||
| 建物種別 | マンション | 建物構造 | SRC(鉄骨鉄筋コンクリート) |
この部屋の取扱い不動産会社
| 会社名 | (株)カムグランサテライト店(SUUMO経由) | ||
|---|---|---|---|
| 所在地 | 東京都日野市程久保2-10-31 クロノス日野南102 | 交通 | - |
| 営業時間 | 9:00-20:00 | 定休日 | なし |
| 免許番号 | 東京都知事113019 | 取引態様 | 仲介 |
| 不動産会社管理番号 | 100481629698 | 当社管理番号 | 89 |
| 所属団体 | (公社)東京都宅地建物取引業協会会員 | ||
| 公正取引協議会 | (公社)首都圏不動産公正取引協議会加盟 | ||
| 取扱い物件情報 | 物件詳細へ | ||
※各種情報と現状に差異がある場合は、現状優先となります。問い合わせをすることで、より詳しい条件、情報を確認する事ができます。
提供:(株)カムグランサテライト店(SUUMO経由)
この物件が気になったら掲載期限まであと10日
クオリア南麻布に条件(家賃・エリア)が近い物件一覧
| 写真 | 家賃 管理費等 | 敷金 礼金 | 間取り 専有面積 | 築年数 | 最寄り駅 所在地 | キープ | 詳細 |
|---|---|---|---|---|---|---|---|
マンション パークウェル神楽坂弐番館(1K/5階) | |||||||
![]() | 9.5万円 なし | 9.5万円 9.5万円 | 1K 20.86m2 | 築24年 | 都営大江戸線 牛込神楽坂駅 徒歩1分 東京メトロ東西線 神楽坂駅 徒歩6分 都営大江戸線 牛込柳町駅 徒歩12分 東京都新宿区箪笥町 | 詳細を見る | |
マンション 銀座二丁目レジデンス(1K/5階) | |||||||
![]() | 12.8万円 1万円 | 12.8万円 12.8万円 | 1K 25.49m2 | 築14年 | 東京地下鉄日比谷線 東銀座駅 徒歩3分 東京地下鉄有楽町線 新富町駅(東京) 徒歩3分 東京都中央区銀座2丁目 | 詳細を見る | |
マンション コンフォート・イケダ(1K/4階) | |||||||
![]() | 10万円 1.1万円 | なし 10万円 | 1K 20.72m2 | 築21年 | 都営新宿線 森下駅(東京) 徒歩4分 都営大江戸線 清澄白河駅 徒歩12分 都営新宿線 浜町駅 徒歩13分 東京都江東区新大橋 | 詳細を見る | |
マンション ルーブル日本橋(1K/4階) | |||||||
![]() | 9.2万円 9,000円 | 9.2万円 9.2万円 | 1K 20.25m2 | 築22年 | 東京都新宿線 浜町駅 徒歩3分 東京都浅草線 東日本橋駅 徒歩3分 総武本線 馬喰町駅 徒歩4分 東京都中央区日本橋浜町1丁目 | 詳細を見る | |
マンション フロリス オーランティウム3(ワンルーム/5階) | |||||||
![]() | 18.2万円 1.1万円 | なし 18.2万円 | ワンルーム 45.6m2 | 築55年 | 東京地下鉄有楽町線 月島駅 徒歩2分 東京都大江戸線 月島駅 徒歩2分 東京都大江戸線 勝どき駅 徒歩7分 東京都中央区月島1丁目 | 詳細を見る | |
マンション ガラ・グランディ日本橋(1K/9階) | |||||||
![]() | 9.2万円 9,000円 | 9.2万円 18.4万円 | 1K 24.2m2 | 築22年 | 東京地下鉄半蔵門線 水天宮前駅 徒歩4分 東京地下鉄日比谷線 人形町駅 徒歩9分 東京都新宿線 浜町駅 徒歩9分 東京都中央区日本橋浜町3丁目 | 詳細を見る | |
マンション プライムアーバン勝どき(1LDK/4階) | |||||||
![]() | 16.5万円 5,000円 | 16.5万円 16.5万円 | 1LDK 43.01m2 | 築39年 | 都営大江戸線 勝どき駅 徒歩9分 都営大江戸線 築地市場駅 徒歩21分 東京メトロ有楽町線 月島駅 徒歩21分 東京都中央区勝どき | 詳細を見る | |
マンション メイクスデザイン門前仲町グローブ(1K/11階) | |||||||
![]() | 14.1万円 1.1万円 | なし 14.1万円 | 1K 25.74m2 | 築8年 | 東京メトロ東西線 門前仲町駅 徒歩5分 都営大江戸線 清澄白河駅 徒歩10分 JR京葉線 越中島駅 徒歩15分 東京都江東区深川 | 詳細を見る | |









