賃貸マンション
京都市烏丸線 北山駅(京都) 徒歩4分 3階建 築6年の賃貸物件情報(2LDK/3階)
| 家賃 | 管理費等 | 敷金 | 礼金 | 間取り | 専有面積 |
|---|---|---|---|---|---|
| 14.5万円 | 7,000円 | 14.5万円 | 29万円 | 2LDK | 52.1m2 |
入居決定でお祝い金最大100,000円
Point
北山駅徒歩すぐ好立地 人気のシャーメゾン物件です 2020年誕生のシャーメゾン
提供:株式会社 京都ライフ 立命館大学前店(賃貸スモッカ経由)

詳細情報 京都市烏丸線 北山駅(京都) 徒歩4分 3階建 築6年
物件紹介
京都市烏丸線北山駅から徒歩4分にあり、駅近で通勤通学に便利なマンションです。
このお部屋は2階以上に位置しているので通行人や周囲の住人からの視線が気になりにくく、建物のエントランスはオートロックがついているので防犯性が高くなっています。
人気の南向き・フローリングのお部屋。角部屋でもあるため、周囲の居住者の生活音も気になりにくい場所です。キッチンはシステムキッチン仕様になっていますので、お料理好きの方にもぴったり。バス・トイレは別なので、のんびりお風呂タイムも楽しめるでしょう。また、雨の日でも浴室乾燥機を使えば、お洗濯も問題ありません。
共用部には宅配ボックスが設定されているので、不在の時にも荷物を受け取ることができます。
このお部屋は2階以上に位置しているので通行人や周囲の住人からの視線が気になりにくく、建物のエントランスはオートロックがついているので防犯性が高くなっています。
人気の南向き・フローリングのお部屋。角部屋でもあるため、周囲の居住者の生活音も気になりにくい場所です。キッチンはシステムキッチン仕様になっていますので、お料理好きの方にもぴったり。バス・トイレは別なので、のんびりお風呂タイムも楽しめるでしょう。また、雨の日でも浴室乾燥機を使えば、お洗濯も問題ありません。
共用部には宅配ボックスが設定されているので、不在の時にも荷物を受け取ることができます。
お金・契約の情報
※「-」と表示されているものは、実際は料金が発生するものもございます。詳細はお問い合わせください。
| 家賃 | 14.5万円 | 管理費・共益費 | 7,000円 |
|---|---|---|---|
| 敷金 | 14.5万円 | 礼金 | 29万円 |
| 入居決定でお祝い金最大100,000円 | |||
| 保証金 | - | 償却・敷引 | - |
| 住宅保険料 | 住宅保険料あり | 更新料 | - |
| 契約形態 | - | 契約期間 | 2年 |
| 入居・引渡期間 | 2026年03月中旬 | 現況 | 賃貸中 |
| 契約備考 | ファミリー様にとても人気の北山エリアに、ファミリー様におすすめの物件が出ました 人気大手ハウスメーカーならでは、水廻り、設備のクオリティ良好です。お洒落なお店も多く、落ち着いた環境なので、お子様にも安心していただけますよ。駐車場付きなのもすごく嬉しいですね 更新料:1ヶ月 その他設備/条件:最上階の物件、コンロ2口以上、独立洗面台、TVドアホン | ||
部屋の情報
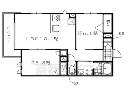
| 間取り | 2LDK | 専有面積 | 52.1m2 |
|---|---|---|---|
| 間取り詳細 | 洋室(5.3帖)、洋室(5.5帖)、LDK(10.1帖) | ||
| 所在階 / 向き | 3階 / 南 | バルコニー面積 | - |
| 水道 / ガス | ガス【都市】 | ||
| 設備 | バス・トイレ別、2階以上、オートロック、宅配ボックス、浴室乾燥機、追い焚き、システムキッチン、カウンターキッチン、温水洗浄便座、南向き、角部屋、バルコニー、フローリング、コンロ:IH、洗濯機:室内 | ||
| 当社物件ID | 160209797 | ||
建物の情報
| 建物名 | 京都市烏丸線 北山駅(京都) 徒歩4分 3階建 築6年 | ||
|---|---|---|---|
| 所在地 | 京都府京都市北区上賀茂桜井町 | ||
| 交通 | 京都市烏丸線 北山駅(京都) 徒歩4分 京都市烏丸線 北大路駅 徒歩14分 | ||
| 階数 | 3階建 | 総戸数 | - |
| 築年月 | 2020年03月 / 築6年 | エレベーター | - |
| 駐車場 | - | バイク置き場 | - |
| 駐輪場 | あり | 管理人/管理会社 | - |
| 建物種別 | マンション | 建物構造 | 鉄骨造 |
この部屋の取扱い不動産会社
| 会社名 | 株式会社 京都ライフ 立命館大学前店(賃貸スモッカ経由) | ||
|---|---|---|---|
| 所在地 | 京都市北区小松原北町26-5 | 交通 | - |
| 営業時間 | - | 定休日 | - |
| 免許番号 | 京都府知事(11)第6353号 | 取引態様 | 仲介 |
| 不動産会社管理番号 | kyotolife_75971-303-14 | 当社管理番号 | 463 |
| 所属団体 | 京都府宅地建物取引業協会\n公益社団法人近畿地区不動産公正取引協議会 | ||
| 公正取引協議会 | 全国宅地建物取引業保証協会 | ||
| 取扱い物件情報 | 物件詳細へ | ||
※各種情報と現状に差異がある場合は、現状優先となります。問い合わせをすることで、より詳しい条件、情報を確認する事ができます。
提供:株式会社 京都ライフ 立命館大学前店(賃貸スモッカ経由)
この物件が気になったら掲載期限まであと5日
京都市烏丸線 北山駅(京都) 徒歩4分 3階建 築6年に条件(家賃・エリア)が近い物件一覧
| 写真 | 家賃 管理費等 | 敷金 礼金 | 間取り 専有面積 | 築年数 | 最寄り駅 所在地 | キープ | 詳細 |
|---|---|---|---|---|---|---|---|
アパート 奈良線 木幡駅(JR) 徒歩1分 築1年(2LDK/2階) | |||||||
![]() | 10.3万円 8,000円 | なし 20.6万円 | 2LDK 48.45m2 | 築1年 | 奈良線 木幡駅(JR) 徒歩1分 京阪電気鉄道宇治線 木幡駅(京阪) 徒歩4分 京都府宇治市木幡 | 詳細を見る | |
マンション 京都市烏丸線 北大路駅 徒歩27分 新築(2LDK/1階) | |||||||
![]() | 13万円 7,500円 | 7.2万円 26万円 | 2LDK 66.44m2 | 新築 | 京都市烏丸線 北大路駅 徒歩27分 京都市烏丸線 北山駅(京都) 徒歩29分 京都府京都市北区大宮開町 | 詳細を見る | |
アパート 京都市烏丸線 北大路駅 徒歩13分 新築(2LDK/2階) | |||||||
![]() | 14万円 8,000円 | 5万円 なし | 2LDK 63.34m2 | 新築 | 京都市烏丸線 北大路駅 徒歩13分 京都市烏丸線 鞍馬口駅 徒歩18分 京都府京都市北区紫野下門前町 | 詳細を見る | |
マンション 京都市烏丸線 北大路駅 徒歩19分 築1年(1LDK/2階) | |||||||
![]() | 9.1万円 5,000円 | 9.1万円 18.2万円 | 1LDK 41.02m2 | 築1年 | 京都市烏丸線 北大路駅 徒歩19分 京都市烏丸線 北山駅(京都) 徒歩20分 京都府京都市北区紫竹上緑町 | 詳細を見る | |
アパート 東海道本線 長岡京駅 徒歩10分 築1年(1LDK/1階) | |||||||
![]() | 9.4万円 5,000円 | なし 18.8万円 | 1LDK 39.98m2 | 築1年 | 東海道本線 長岡京駅 徒歩10分 阪急電鉄京都線 長岡天神駅 徒歩12分 京都府長岡京市馬場1丁目 | 詳細を見る | |
アパート 阪急電鉄京都線 長岡天神駅 徒歩24分 築1年(2LDK/2階) | |||||||
![]() | 10.08万円 8,000円 | なし なし | 2LDK 57.37m2 | 築1年 | 阪急電鉄京都線 長岡天神駅 徒歩24分 東海道本線 長岡京駅 徒歩33分 京都府長岡京市奥海印寺八戸木 | 詳細を見る | |
アパート 京都市烏丸線 北山駅(京都) 徒歩7分 築2年(1LDK/2階) | |||||||
![]() | 12.5万円 8,500円 | なし 12.5万円 | 1LDK 40.05m2 | 築2年 | 京都市烏丸線 北山駅(京都) 徒歩7分 京都市烏丸線 北大路駅 徒歩18分 京都府京都市北区上賀茂石計町 | 詳細を見る | |
マンション 京都市烏丸線 鞍馬口駅 徒歩19分 築53年(3LDK/2階) | |||||||
![]() | 9.4万円 5,000円 | 15万円 なし | 3LDK 61.7m2 | 築53年 | 京都市烏丸線 鞍馬口駅 徒歩19分 京都市烏丸線 北大路駅 徒歩23分 京都府京都市北区紫野南舟岡町 | 詳細を見る | |









