賃貸マンション
京阪電気鉄道京阪線 墨染駅 徒歩5分 7階建 築27年の賃貸物件情報(3LDK/2階)
| 家賃 | 管理費等 | 敷金 | 礼金 | 間取り | 専有面積 |
|---|---|---|---|---|---|
| 10.6万円 | 9,000円 | 10.6万円 | 10.6万円 | 3LDK | 71.3m2 |
入居決定でお祝い金最大100,000円
Point
分譲みたいだけど賃貸 京阪墨染駅まで徒歩5分の3LDKマンションです。JR、京阪のダブルアクセス。
提供:株式会社 京都ライフ 小倉店(賃貸スモッカ経由)

詳細情報 京阪電気鉄道京阪線 墨染駅 徒歩5分 7階建 築27年
物件紹介
京阪電気鉄道京阪線墨染駅から徒歩5分にあり、駅近で通勤通学に便利なマンションです。
このお部屋は2階以上に位置しているので通行人や周囲の住人からの視線が気になりにくく、建物のエントランスはオートロックがついているので防犯性が高くなっています。
人気の角部屋で周囲の居住者の生活音も気になりにくく、また、フローリングのお部屋なのでお掃除もラクラク。バス・トイレ別の仕様で、のんびりお風呂タイムも楽しめます。
通信設備面では、インターネット接続が可能です。また、BSアンテナがありCATVにも対応しているので、おうち時間も充実するでしょう(別途工事、契約料が必要な場合あり)。
建物にはエレベーターがついているので、重い荷物があっても安心。共用部には宅配ボックスが設定されているので、不在の時にも荷物を受け取ることができます。
このお部屋は2階以上に位置しているので通行人や周囲の住人からの視線が気になりにくく、建物のエントランスはオートロックがついているので防犯性が高くなっています。
人気の角部屋で周囲の居住者の生活音も気になりにくく、また、フローリングのお部屋なのでお掃除もラクラク。バス・トイレ別の仕様で、のんびりお風呂タイムも楽しめます。
通信設備面では、インターネット接続が可能です。また、BSアンテナがありCATVにも対応しているので、おうち時間も充実するでしょう(別途工事、契約料が必要な場合あり)。
建物にはエレベーターがついているので、重い荷物があっても安心。共用部には宅配ボックスが設定されているので、不在の時にも荷物を受け取ることができます。
お金・契約の情報
※「-」と表示されているものは、実際は料金が発生するものもございます。詳細はお問い合わせください。
| 家賃 | 10.6万円 | 管理費・共益費 | 9,000円 |
|---|---|---|---|
| 敷金 | 10.6万円 | 礼金 | 10.6万円 |
| 入居決定でお祝い金最大100,000円 | |||
| 保証金 | - | 償却・敷引 | - |
| 住宅保険料 | 住宅保険料あり | 更新料 | - |
| 契約形態 | - | 契約期間 | 2年 |
| 入居・引渡期間 | 2026年01月下旬 | 現況 | 賃貸中 |
| 契約備考 | 更新料ナシです。嬉しい3点セパレートなど充実の設備。オートロックでセキュリティも安心です。コンビニ、スーパーなど近くにあって便利ですよ。光ファイバー対応しています。 更新料:無し | ||
部屋の情報
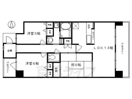
| 間取り | 3LDK | 専有面積 | 71.3m2 |
|---|---|---|---|
| 間取り詳細 | 洋室(6帖)、和室(6帖)、洋室(5帖)、LDK(13帖) | ||
| 所在階 / 向き | 2階 / 東 | バルコニー面積 | - |
| 水道 / ガス | ガス【都市】 | ||
| 設備 | バス・トイレ別、2階以上、オートロック、宅配ボックス、インターネット対応、カウンターキッチン、エレベーター、角部屋、バルコニー、フローリング、CATV、BSアンテナ、洗濯機:室内 | ||
| 当社物件ID | 160186641 | ||
建物の情報
| 建物名 | 京阪電気鉄道京阪線 墨染駅 徒歩5分 7階建 築27年 | ||
|---|---|---|---|
| 所在地 | 京都府京都市伏見区深草十九軒町 | ||
| 交通 | 京阪電気鉄道京阪線 墨染駅 徒歩5分 奈良線 JR藤森駅 徒歩9分 | ||
| 階数 | 7階建 | 総戸数 | - |
| 築年月 | 1999年02月 / 築27年 | エレベーター | あり |
| 駐車場 | - | バイク置き場 | - |
| 駐輪場 | あり | 管理人/管理会社 | - |
| 建物種別 | マンション | 建物構造 | RC(鉄筋コンクリート) |
この部屋の取扱い不動産会社
| 会社名 | 株式会社 京都ライフ 小倉店(賃貸スモッカ経由) | ||
|---|---|---|---|
| 所在地 | 宇治市小倉町神楽田21-5 | 交通 | - |
| 営業時間 | - | 定休日 | - |
| 免許番号 | 京都府知事(11)第6353号 | 取引態様 | 仲介 |
| 不動産会社管理番号 | kyotolife_057B8-106-11 | 当社管理番号 | 463 |
| 所属団体 | 京都府宅地建物取引業協会\n公益社団法人近畿地区不動産公正取引協議会 | ||
| 公正取引協議会 | 全国宅地建物取引業保証協会 | ||
| 取扱い物件情報 | 物件詳細へ | ||
※各種情報と現状に差異がある場合は、現状優先となります。問い合わせをすることで、より詳しい条件、情報を確認する事ができます。
提供:株式会社 京都ライフ 小倉店(賃貸スモッカ経由)
この物件が気になったら掲載期限まであと6日
京阪電気鉄道京阪線 墨染駅 徒歩5分 7階建 築27年に条件(家賃・エリア)が近い物件一覧
| 写真 | 家賃 管理費等 | 敷金 礼金 | 間取り 専有面積 | 築年数 | 最寄り駅 所在地 | キープ | 詳細 |
|---|---|---|---|---|---|---|---|
マンション NSマンション(3DK/3階) | |||||||
![]() | 6.6万円 4,000円 | 6.6万円 6.6万円 | 3DK 45m2 | 築37年 | 京阪本線 淀駅 徒歩2分 阪急京都線 西山天王山駅 徒歩40分 JR東海道本線 長岡京駅 徒歩42分 京都府京都市伏見区淀本町 | 詳細を見る | |
アパート KTIレジデンス淀(1LDK/2階) | |||||||
![]() | 6.9万円 5,000円 | なし 6.9万円 | 1LDK 35.43m2 | 築2年 | 京阪電気鉄道京阪線 淀駅 徒歩6分 阪急電鉄京都線 西山天王山駅 徒歩45分 阪急電鉄京都線 西向日駅 徒歩76分 京都府京都市伏見区納所町 | 詳細を見る | |
マンション PORTOFINO六地蔵(1LDK/3階) | |||||||
![]() | 7.9万円 5,000円 | なし 11.85万円 | 1LDK 29.86m2 | 新築 | 京都市東西線 六地蔵駅(京都市営) 徒歩3分 奈良線 六地蔵駅(JR) 徒歩4分 京都府宇治市六地蔵 | 詳細を見る | |
アパート 京阪電気鉄道京阪線 淀駅 徒歩5分 築2年(1LDK/2階) | |||||||
![]() | 6.9万円 5,000円 | なし 6.9万円 | 1LDK 35.43m2 | 築2年 | 京阪電気鉄道京阪線 淀駅 徒歩5分 阪急電鉄京都線 西山天王山駅 徒歩37分 京都府京都市伏見区納所町 | 詳細を見る | |
アパート 阪急電鉄京都線 西山天王山駅 徒歩17分 築35年(3LDK/1階) | |||||||
![]() | 6.6万円 3,000円 | 5万円 10万円 | 3LDK 57.5m2 | 築35年 | 阪急電鉄京都線 西山天王山駅 徒歩17分 東海道本線 長岡京駅 徒歩27分 京都府乙訓郡大山崎町字下植野寺門 | 詳細を見る | |
アパート マジェスティ サザン Ⅱ棟(1LDK/1階) | |||||||
![]() | 8.1万円 8,000円 | なし 8.1万円 | 1LDK 45.05m2 | 築12年 | 近鉄京都線 伏見駅(京都) 徒歩20分 近鉄京都線 竹田駅(京都) 徒歩25分 地下鉄烏丸線 竹田駅(京都) 徒歩25分 京都府京都市伏見区中島外山町 | 詳細を見る | |
マンション 京阪電気鉄道宇治線 桃山南口駅 徒歩2分 築54年(2LDK/3階) | |||||||
![]() | 7万円 6,000円 | なし 7万円 | 2LDK 48.67m2 | 築54年 | 京阪電気鉄道宇治線 桃山南口駅 徒歩2分 奈良線 六地蔵駅(JR) 徒歩12分 京都府京都市伏見区桃山町丹後 | 詳細を見る | |
アパート 近鉄京都線 伊勢田駅 徒歩3分 築37年(1LDK/2階) | |||||||
![]() | 6.8万円 7,000円 | なし 15万円 | 1LDK 40.29m2 | 築37年 | 近鉄京都線 伊勢田駅 徒歩3分 近鉄京都線 大久保駅(京都) 徒歩9分 京都府宇治市開町 | 詳細を見る | |









