賃貸マンション
明和マンションの賃貸物件情報(1LDK/2階)
| 家賃 | 管理費等 | 敷金 | 礼金 | 間取り | 専有面積 |
|---|---|---|---|---|---|
| 6.8万円 | 3,000円 | なし | なし | 1LDK | 69m2 |
入居決定でお祝い金最大100,000円
- 保証金
- -
- 償却・敷引
- -
- 築年数
- 築42年
- 所在階
- 2階
- 向き
- 南
Point
共用部には宅配ボックスが付いているため、好きなタイミングで荷物を受け取ることができます。カメラで訪問者を確認できるTVインターホンが設置されています。駐輪場付きの物件です。
提供:LIFUKU 福山店中国バス不動産(株)(SUUMO経由)

詳細情報 明和マンション
物件紹介
明和マンションはJR山陽本線東福山駅から徒歩15分にあるマンションです。
このお部屋は2階以上に位置しているので、通行人や周囲の住人からの視線が気になりにくく、防犯面でも安心。インターホンにはTVモニタもついているため、相手の顔を確認してから来客対応することができます。
人気の南向きのお部屋。バス・トイレ別の仕様で、のんびりお風呂タイムも楽しめます。
通信設備面では、インターネットが無料で使えるので、月々の出費を抑えられるのも魅力です。また、BSアンテナもありますので、おうち時間も充実するでしょう(別途工事、BSの契約料等が必要な場合あり)。
共用部には宅配ボックスが設定されているので、不在の時にも荷物を受け取ることができます。また、ペット飼育の相談ができますので、あなたの大切な家族の一員も快適に暮らせるか、ぜひ確認してみてください。
このお部屋は2階以上に位置しているので、通行人や周囲の住人からの視線が気になりにくく、防犯面でも安心。インターホンにはTVモニタもついているため、相手の顔を確認してから来客対応することができます。
人気の南向きのお部屋。バス・トイレ別の仕様で、のんびりお風呂タイムも楽しめます。
通信設備面では、インターネットが無料で使えるので、月々の出費を抑えられるのも魅力です。また、BSアンテナもありますので、おうち時間も充実するでしょう(別途工事、BSの契約料等が必要な場合あり)。
共用部には宅配ボックスが設定されているので、不在の時にも荷物を受け取ることができます。また、ペット飼育の相談ができますので、あなたの大切な家族の一員も快適に暮らせるか、ぜひ確認してみてください。
お金・契約の情報
※「-」と表示されているものは、実際は料金が発生するものもございます。詳細はお問い合わせください。
| 家賃 | 6.8万円 | 管理費・共益費 | 3,000円 |
|---|---|---|---|
| 敷金 | なし | 礼金 | なし |
| 入居決定でお祝い金最大100,000円 | |||
| 保証金 | - | 償却・敷引 | - |
| 住宅保険料 | - | 更新料 | - |
| 保証会社利用 | 必須 | 保証会社名 | - |
| 保証会社費用 | - | 保証会社備考 | 保証会社利用必 加入要(賃貸保証会社:株式会社エポスカード、契約時/賃料総額の50% 月額/賃料総額1%) |
| 契約形態 | - | 契約期間 | - |
| 入居・引渡期間 | - | 現況 | - |
| 入居可能条件 | ペット相談 | ||
| 契約備考 | 合計9.94万円(内訳:抗菌施工費1.87万円消火剤0.693万円退去時エアコンクリーニング費用(契約時)1.32万円退去時クリーニング費用(契約時)4.4万円鍵交換代1.65万円) ライフサポート 月額1320円 1LDK ペット相談/ルームシェア相談 普通借家2年 バストイレ別、エアコン、ガスコンロ対応、TVインターホン、室内洗濯置、陽当り良好、南向き、駐輪場、宅配ボックス、礼金不要、敷金不要、防犯カメラ、ペット相談、照明付、バイク置場、ネット使用料不要、ルームシェア相談、プロパンガス、BS、敷金・礼金不要 入居日:'26年2月中旬 | ||
部屋の情報
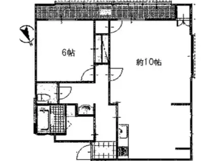
| 間取り | 1LDK | 専有面積 | 69m2 |
|---|---|---|---|
| 所在階 / 向き | 2階 / 南 | バルコニー面積 | - |
| 水道 / ガス | - | ||
| 設備 | バス・トイレ別、2階以上、テレビドアホン、宅配ボックス、インターネット対応、エアコン、南向き、コンロ:ガス、BSアンテナ、インターネット使用料無料、洗濯機:室内 | ||
| 当社物件ID | 124368311 | ||
建物の情報
| 建物名 | 明和マンション | ||
|---|---|---|---|
| 所在地 | 広島県福山市南蔵王町 | ||
| 交通 | JR山陽本線 東福山駅 徒歩15分 JR山陽本線 大門駅(広島) 徒歩52分 JR山陽本線 福山駅 徒歩54分 | ||
| 階数 | 4階建 | 総戸数 | 18戸 |
| 築年月 | 1984年04月 / 築42年 | エレベーター | - |
| 駐車場 | 空有 5000円 | バイク置き場 | あり |
| 駐輪場 | あり | 管理人/管理会社 | - |
| 建物種別 | マンション | 建物構造 | 鉄骨造 |
この部屋の取扱い不動産会社
| 会社名 | エイブルネットワーク神辺店(株)アークス(SUUMO経由) | ||
|---|---|---|---|
| 所在地 | 広島県福山市神辺町大字新十九 1-17 | 交通 | - |
| 営業時間 | 10:00~18:00 | 定休日 | なし |
| 免許番号 | 国土交通大臣9898 | 取引態様 | 仲介 |
| 不動産会社管理番号 | 100480295972 | 当社管理番号 | 89 |
| 所属団体 | (公社)全日本不動産協会広島県本部会員 | ||
| 公正取引協議会 | 中国地区不動産公正取引協議会加盟 | ||
| 取扱い物件情報 | 物件詳細へ | ||
※各種情報と現状に差異がある場合は、現状優先となります。問い合わせをすることで、より詳しい条件、情報を確認する事ができます。
提供:エイブルネットワーク神辺店(株)アークス(SUUMO経由)
この物件が気になったら掲載期限まであと12日
明和マンションに条件(家賃・エリア)が近い物件一覧
| 写真 | 家賃 管理費等 | 敷金 礼金 | 間取り 専有面積 | 築年数 | 最寄り駅 所在地 | キープ | 詳細 |
|---|---|---|---|---|---|---|---|
アパート グランディールA(2LDK/2階) | |||||||
![]() | 6.4万円 3,500円 | 6.4万円 なし | 2LDK 57.46m2 | 築10年 | 広島県福山市本郷町 | 詳細を見る | |
アパート セントーレア(3LDK/2階) | |||||||
![]() | 8.5万円 4,500円 | なし 8.5万円 | 3LDK 75.83m2 | 築11年 | JR山陽本線 東尾道駅 徒歩17分 山陽新幹線 新尾道駅 徒歩59分 JR山陽本線 尾道駅 徒歩68分 広島県尾道市山波町 | 詳細を見る | |
マンション フォブール春日Ⅰ(3LDK/2階) | |||||||
![]() | 6.8万円 3,000円 | 13.6万円 6.8万円 | 3LDK 67.08m2 | 築25年 | 山陽本線 東福山駅 徒歩20分 広島県福山市春日町5丁目 | 詳細を見る | |
マンション 西町ロイヤルスクエア(1K/5階) | |||||||
![]() | 5.6万円 4,000円 | なし 5.6万円 | 1K 30.6m2 | 築24年 | JR山陽本線 福山駅 徒歩9分 JR福塩線 備後本庄駅 徒歩19分 JR福塩線 横尾駅 徒歩62分 広島県福山市西町 | 詳細を見る | |
アパート シティハイツ下河内B(2DK/1階) | |||||||
![]() | 4.3万円 1,100円 | なし 4.3万円 | 2DK 39.6m2 | 築37年 | 広島県福山市沖野上町2丁目 | 詳細を見る | |
マンション シンメイロード(1K/3階) | |||||||
![]() | 6.25万円 8,000円 | なし 6.25万円 | 1K 29.1m2 | 築23年 | 山陽新幹線 福山駅 徒歩6分 JR山陽本線 福山駅 徒歩9分 JR福塩線 備後本庄駅 徒歩22分 広島県福山市西町 | 詳細を見る | |
アパート ARAHIRUK.O(1K/2階) | |||||||
![]() | 4.6万円 4,000円 | なし 4.6万円 | 1K 34.39m2 | 築15年 | 東海道・山陽新幹線 新尾道駅 徒歩5分 広島県尾道市栗原町 | 詳細を見る | |
アパート エクセレントパレスB(2DK/1階) | |||||||
![]() | 4.25万円 3,500円 | なし 5.25万円 | 2DK 45.93m2 | 築16年 | 福塩線 駅家駅 徒歩37分 広島県福山市駅家町大字今岡駅家町大字今岡 | 詳細を見る | |







/105x80-f1-q70-wp1)
