賃貸マンション
フルール新開地の賃貸物件情報(ワンルーム/4階)
| 家賃 | 管理費等 | 敷金 | 礼金 | 間取り | 専有面積 |
|---|---|---|---|---|---|
| 5万円 | 4,000円 | なし | なし | ワンルーム | 22m2 |
入居決定でお祝い金最大100,000円
- 保証金
- -
- 償却・敷引
- -
- 築年数
- 築44年
- 所在階
- 4階
- 向き
- 西
Point
☆シャワーブース・トイレセパレート!インターネット無料♪弊社なら仲介手数料半額です!
提供:センチュリー21(株)リライフ神戸駅前店(SUUMO経由)

詳細情報 フルール新開地
物件紹介
フルール新開地は神戸高速鉄道南北線新開地駅から徒歩3分にあり、駅近で通勤通学に便利なマンションです。
このお部屋は2階以上に位置しているので、通行人や周囲の住人からの視線が気になりにくく、防犯面でも安心です。
こちらは楽器相談が可能な物件。楽器演奏をお考えの方はぜひ相談してみてください。フローリングのお部屋なのでお掃除もラクラク。キッチンはシステムキッチン仕様になっていますので、お料理好きの方にもぴったり。また、バス・トイレは別で、のんびりお風呂タイムも楽しめるでしょう。
通信設備面では、インターネットが無料で使えるので、月々の出費を抑えられるのも魅力です。また、BSアンテナ・CSアンテナがありCATVにも対応しているので、おうち時間も充実するでしょう(別途工事、BS・CS・CATVの契約料等が必要な場合あり)。
このお部屋は2階以上に位置しているので、通行人や周囲の住人からの視線が気になりにくく、防犯面でも安心です。
こちらは楽器相談が可能な物件。楽器演奏をお考えの方はぜひ相談してみてください。フローリングのお部屋なのでお掃除もラクラク。キッチンはシステムキッチン仕様になっていますので、お料理好きの方にもぴったり。また、バス・トイレは別で、のんびりお風呂タイムも楽しめるでしょう。
通信設備面では、インターネットが無料で使えるので、月々の出費を抑えられるのも魅力です。また、BSアンテナ・CSアンテナがありCATVにも対応しているので、おうち時間も充実するでしょう(別途工事、BS・CS・CATVの契約料等が必要な場合あり)。
お金・契約の情報
※「-」と表示されているものは、実際は料金が発生するものもございます。詳細はお問い合わせください。
| 家賃 | 5万円 | 管理費・共益費 | 4,000円 |
|---|---|---|---|
| 敷金 | なし | 礼金 | なし |
| 入居決定でお祝い金最大100,000円 | |||
| 保証金 | - | 償却・敷引 | - |
| 住宅保険料 | - | 更新料 | - |
| 契約形態 | - | 契約期間 | - |
| 入居・引渡期間 | 相談 | 現況 | - |
| 入居可能条件 | 事務所可、楽器相談 | ||
| 契約備考 | 神鉄食彩館新開地店まで256m/ローソン神戸新開地四丁目店まで49m/☆シャワーブース・トイレセパレート!インターネット無料♪使いやすい1DKのお部屋です! ワンルーム 単身者可/二人入居可/子供可/楽器相談/事務所利用相談/ルームシェア相談 普通借家2年 損保【1.8万円2年】 バストイレ別、バルコニー、エアコン、ガスコンロ対応、クロゼット、フローリング、室内洗濯置、システムキッチン、駐輪場、CATV、光ファイバー、礼金不要、BS・CS、敷金不要、照明付、全居室洋室、保証人不要、単身者相談、二人入居相談、仲手0.55ヶ月、ネット使用料不要、キッチンに窓、事務所相談、楽器相談、ルームシェア相談、学生相談、3駅以上利用可、3沿線以上利用可、駅徒歩5分以内、駅徒歩10分以内、都市ガス、シャワールーム、高速ネット対応、LAN、リノベーション、敷金・礼金不要、保証会社利用可、IT重説対応物件、高齢者歓迎、初期費用カード決済可 | ||
部屋の情報
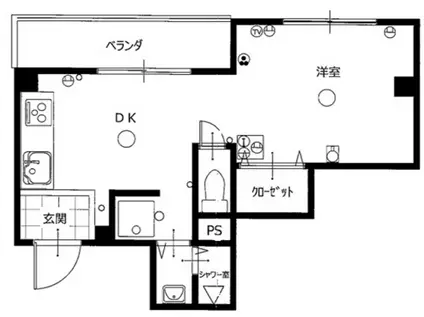
| 間取り | ワンルーム | 専有面積 | 22m2 |
|---|---|---|---|
| 所在階 / 向き | 4階 / 西 | バルコニー面積 | - |
| 水道 / ガス | - | ||
| 設備 | バス・トイレ別、2階以上、インターネット対応、システムキッチン、エアコン、バルコニー、フローリング、コンロ:ガス、CATV、CSアンテナ、BSアンテナ、インターネット使用料無料、洗濯機:室内 | ||
| 当社物件ID | 101526382 | ||
建物の情報
| 建物名 | フルール新開地 | ||
|---|---|---|---|
| 所在地 | 兵庫県神戸市兵庫区湊町 | ||
| 交通 | 神戸高速鉄道南北線 新開地駅 徒歩3分 JR東海道本線 神戸駅(兵庫) 徒歩8分 神戸高速鉄道東西線 高速神戸駅 徒歩8分 | ||
| 階数 | 5階建 | 総戸数 | - |
| 築年月 | 1982年10月 / 築44年 | エレベーター | - |
| 駐車場 | 近隣 100m20000円 | バイク置き場 | - |
| 駐輪場 | あり | 管理人/管理会社 | - |
| 周辺環境 | その他 神鉄食彩館新開地店(スーパー)まで256m その他 ローソン神戸新開地四丁目店(コンビニ)まで49m | ||
| 建物種別 | マンション | 建物構造 | 鉄骨造 |
この部屋の取扱い不動産会社
| 会社名 | センチュリー21(株)リライフ神戸駅前店(SUUMO経由) | ||
|---|---|---|---|
| 所在地 | 兵庫県神戸市中央区相生町4-4-20 原田ビル2階 | 交通 | - |
| 営業時間 | 10:00~19:00 | 定休日 | 年末年始.水曜日 |
| 免許番号 | 兵庫県知事11692 | 取引態様 | 仲介 |
| 不動産会社管理番号 | 100486302219 | 当社管理番号 | 89 |
| 所属団体 | (公社)全日本不動産協会兵庫県本部会員 | ||
| 公正取引協議会 | (公社)近畿地区不動産公正取引協議会加盟 | ||
| 取扱い物件情報 | 物件詳細へ | ||
※各種情報と現状に差異がある場合は、現状優先となります。問い合わせをすることで、より詳しい条件、情報を確認する事ができます。
提供:センチュリー21(株)リライフ神戸駅前店(SUUMO経由)
この物件が気になったら掲載期限まであと5日
フルール新開地に条件(家賃・エリア)が近い物件一覧
| 写真 | 家賃 管理費等 | 敷金 礼金 | 間取り 専有面積 | 築年数 | 最寄り駅 所在地 | キープ | 詳細 |
|---|---|---|---|---|---|---|---|
アパート ルナ パレス A(1LDK/1階) | |||||||
![]() | 6.2万円 2,300円 | なし 6.2万円 | 1LDK 45.72m2 | 築20年 | 山陽電気鉄道本線 人丸前駅 徒歩16分 山陽電気鉄道本線 大蔵谷駅 徒歩16分 山陽本線 明石駅 徒歩24分 兵庫県明石市荷山町 | 詳細を見る | |
アパート カーサ・フェリーチェ平田(1K/2階) | |||||||
![]() | 6.2万円 6,000円 | 2万円 10万円 | 1K 26.49m2 | 築7年 | 神戸電鉄粟生線 大村駅(兵庫) 徒歩10分 神戸電鉄粟生線 三木駅(神戸電鉄) 徒歩13分 神戸電鉄粟生線 三木上の丸駅 徒歩16分 兵庫県三木市平田 | 詳細を見る | |
アパート サニーパーク(3LDK/2階) | |||||||
![]() | 6万円 なし | 2万円 なし | 3LDK 62m2 | 築35年 | 山陽電鉄本線 東二見駅 徒歩17分 JR山陽本線 魚住駅 徒歩17分 兵庫県明石市魚住町清水 | 詳細を見る | |
マンション 神戸電鉄公園都市線 ウッディタウン中央駅 徒歩8分 築38年(3LDK/5階) | |||||||
![]() | 5.84万円 4,100円 | 11.68万円 なし | 3LDK 73m2 | 築38年 | 神戸電鉄公園都市線 ウッディタウン中央駅 徒歩8分 兵庫県三田市あかしあ台3丁目 | 詳細を見る | |
アパート ヒカルサ稲美天満Ⅱ(1LDK/1階) | |||||||
![]() | 7.65万円 3,900円 | なし 7.65万円 | 1LDK 44.7m2 | 築1年 | 兵庫県加古郡稲美町六分一 | 詳細を見る | |
アパート エスペランサ二見 B棟(1LDK/2階) | |||||||
![]() | 7.8万円 5,000円 | 3万円 15万円 | 1LDK 45.04m2 | 築20年 | 山陽電気鉄道本線 西二見駅 徒歩9分 山陽電気鉄道本線 東二見駅 徒歩12分 山陽電気鉄道本線 播磨町駅 徒歩21分 兵庫県明石市二見町西二見駅前2丁目 | 詳細を見る | |
アパート サンエイトB(3DK/2階) | |||||||
![]() | 5.5万円 2,200円 | なし 5.5万円 | 3DK 63.19m2 | 築31年 | 兵庫県加古郡稲美町六分一 | 詳細を見る | |
マンション ベネフィス土山2(2DK/2階) | |||||||
![]() | 4.9万円 3,000円 | なし なし | 2DK 47m2 | 築37年 | 山陽本線 土山駅 徒歩15分 兵庫県加古郡稲美町六分一 | 詳細を見る | |









