賃貸マンション
野口町レジデンスの賃貸物件情報(ワンルーム/2階)
| 家賃 | 管理費等 | 敷金 | 礼金 | 間取り | 専有面積 |
|---|---|---|---|---|---|
| 5.8万円 | 1,000円 | なし | なし | ワンルーム | 18.36m2 |
入居決定でお祝い金最大100,000円
- 保証金
- -
- 償却・敷引
- -
- 築年数
- 築15年
- 所在階
- 2階
- 向き
- 北東
Point
当社管理物件ですので、ご内見やご契約、入居中のサポートまで全て当店でご対応ができます!当店は物件管理もしている地元密着型の店舗で、特に中央線・丸ノ内線の駅周り等の地域情報も含め、何でもご相談下さい♪
提供:アルファ丸嶋(株)荻窪支店(SUUMO経由)

詳細情報 野口町レジデンス
物件紹介
野口町レジデンスは西武新宿線東村山駅から徒歩1分にあり、駅近で通勤通学に便利なマンションです。
このお部屋は2階以上に位置しているので、通行人や周囲の住人からの視線が気になりにくく、防犯面でも安心。建物のエントランスはオートロックがついており、インターホンにはTVモニタもついているため、相手の顔を確認してから来客対応することができます。
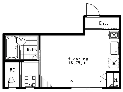
フローリングのお部屋なのでお掃除もラクラク。キッチンはシステムキッチン仕様になっていますので、お料理好きの方にもぴったり。バス・トイレは別なので、のんびりお風呂タイムも楽しめるでしょう。また、雨の日でも浴室乾燥機を使えば、お洗濯も問題ありません。
通信設備面では、インターネットが無料で使えるので、月々の出費を抑えられるのも魅力です。また、CATVにも対応しているので、おうち時間も充実するでしょう(別途工事、CATVの契約料等が必要な場合あり)。
このお部屋は2階以上に位置しているので、通行人や周囲の住人からの視線が気になりにくく、防犯面でも安心。建物のエントランスはオートロックがついており、インターホンにはTVモニタもついているため、相手の顔を確認してから来客対応することができます。
フローリングのお部屋なのでお掃除もラクラク。キッチンはシステムキッチン仕様になっていますので、お料理好きの方にもぴったり。バス・トイレは別なので、のんびりお風呂タイムも楽しめるでしょう。また、雨の日でも浴室乾燥機を使えば、お洗濯も問題ありません。
通信設備面では、インターネットが無料で使えるので、月々の出費を抑えられるのも魅力です。また、CATVにも対応しているので、おうち時間も充実するでしょう(別途工事、CATVの契約料等が必要な場合あり)。
お金・契約の情報
※「-」と表示されているものは、実際は料金が発生するものもございます。詳細はお問い合わせください。
| 家賃 | 5.8万円 | 管理費・共益費 | 1,000円 |
|---|---|---|---|
| 敷金 | なし | 礼金 | なし |
| 入居決定でお祝い金最大100,000円 | |||
| 保証金 | - | 償却・敷引 | - |
| 住宅保険料 | - | 更新料 | - |
| 保証会社利用 | 必須 | 保証会社名 | リクルートフォレントインシュア |
| 保証会社費用 | - | 保証会社備考 | オリコフォレントインシュア利用必 初回保証料:総賃料50%・月額保証料:総賃料1%(家賃引落手数料不要) (詳細は担当まで) |
| 契約形態 | - | 契約期間 | - |
| 入居・引渡期間 | - | 現況 | - |
| 契約備考 | ※1年以内での解約の場合、総賃料1ヶ月の違約金あり。スーモ掲載よりも早い情報が当店にはあります★非公開物件もどこよりも多く取り扱っています!不動産業界が長いスタッフが多い当店だから、お部屋探しのコツやいろんなアドバイスもできるんです★あなたのお部屋探しを応援します!お問い合わせお待ちしております。※携帯アドレスからのお問合せはパソコンから受信できるように設定をお願い致します。 合計7.2万円(内訳:クリーニング代5万円鍵交換代2.2万円) 更新料 新賃料1.00ヶ月分 ワンルーム 単身者限定/子供不可/事務所利用不可/ルームシェア不可 普通借家2年 損保【2万円2年】 バストイレ別、エアコン、ガスコンロ対応、クロゼット、フローリング、TVインターホン、浴室乾燥機、オートロック、室内洗濯置、システムキッチン、温水洗浄便座、脱衣所、2口コンロ、CATV、礼金不要、敷金不要、防犯カメラ、全居室洋室、CATVインターネット、ガスレンジ付、ネット専用回線、ネット使用料不要、2駅利用可、3駅以上利用可、駅徒歩5分以内、駅徒歩10分以内、当社管理物件、全居室6畳以上、都市ガス、年内入居可、年度内入居可、敷金・礼金不要、IT重説対応物件 入居日:'26年2月下旬 | ||
部屋の情報
| 間取り | ワンルーム | 専有面積 | 18.36m2 |
|---|---|---|---|
| 所在階 / 向き | 2階 / 北東 | バルコニー面積 | - |
| 水道 / ガス | - | ||
| 設備 | バス・トイレ別、2階以上、オートロック、テレビドアホン、浴室乾燥機、インターネット対応、システムキッチン、エアコン、温水洗浄便座、フローリング、2口コンロ、コンロ:ガス、CATV、インターネット使用料無料、洗濯機:室内 | ||
| 当社物件ID | 19046881 | ||
建物の情報
| 建物名 | 野口町レジデンス | ||
|---|---|---|---|
| 所在地 | 東京都東村山市野口町 | ||
| 交通 | 西武新宿線 東村山駅 徒歩1分 西武西武園線 西武園駅 徒歩24分 西武新宿線 久米川駅 徒歩25分 | ||
| 階数 | 3階建 | 総戸数 | 9戸 |
| 築年月 | 2011年12月 / 築15年 | エレベーター | - |
| 駐車場 | なし | バイク置き場 | - |
| 駐輪場 | - | 管理人/管理会社 | - |
| 周辺環境 | その他 ホットヨガスタジオLAVA(ラバ) 東村山店(その他)まで297m その他 日高屋 東村山東口店(飲食店)まで365m その他 マクドナルド 東村山店(飲食店)まで422m その他 不二家F、C東村山(飲食店)まで309m その他 松屋 東村山店(飲食店)まで361m その他 イトーヨーカドー 東村山店(その他)まで478m | ||
| 建物種別 | マンション | 建物構造 | 鉄骨造 |
この部屋の取扱い不動産会社
| 会社名 | アルファ丸嶋(株)荻窪支店(SUUMO経由) | ||
|---|---|---|---|
| 所在地 | 東京都杉並区天沼3-3-1 | 交通 | - |
| 営業時間 | 10:00~19:00 | 定休日 | 水曜日 |
| 免許番号 | 東京都知事78681 | 取引態様 | 仲介 |
| 不動産会社管理番号 | 100481228996 | 当社管理番号 | 89 |
| 所属団体 | (公社)東京都宅地建物取引業協会会員 | ||
| 公正取引協議会 | (公社)首都圏不動産公正取引協議会加盟 | ||
| 取扱い物件情報 | 物件詳細へ | ||
※各種情報と現状に差異がある場合は、現状優先となります。問い合わせをすることで、より詳しい条件、情報を確認する事ができます。
提供:アルファ丸嶋(株)荻窪支店(SUUMO経由)
この物件が気になったら掲載期限まであと10日
野口町レジデンスに条件(家賃・エリア)が近い物件一覧
| 写真 | 家賃 管理費等 | 敷金 礼金 | 間取り 専有面積 | 築年数 | 最寄り駅 所在地 | キープ | 詳細 |
|---|---|---|---|---|---|---|---|
マンション ボヌール金原(1K/4階) | |||||||
![]() | 5.2万円 3,000円 | 5.2万円 なし | 1K 22m2 | 築28年 | 西武多摩湖線 武蔵大和駅 徒歩17分 西武拝島線 東大和市駅 徒歩20分 多摩都市モノレール 上北台駅 徒歩29分 東京都東大和市仲原 | 詳細を見る | |
アパート モナリエ東村山(1K/2階) | |||||||
![]() | 6.7万円 6,000円 | なし 10万円 | 1K 30.3m2 | 築19年 | 西武鉄道新宿線 東村山駅 徒歩16分 西武鉄道多摩湖線 武蔵大和駅 徒歩16分 西武鉄道新宿線 西武園駅 徒歩17分 東京都東村山市野口町2丁目 | 詳細を見る | |
マンション グランベル3(2DK/1階) | |||||||
![]() | 8.2万円 4,000円 | 8.2万円 8.2万円 | 2DK 46.31m2 | 築11年 | 西武鉄道拝島線 東大和市駅 徒歩17分 西武鉄道多摩湖線 武蔵大和駅 徒歩19分 多摩モノレール 上北台駅 徒歩27分 東京都東大和市仲原4丁目 | 詳細を見る | |
アパート オーランジェ(2LDK/2階) | |||||||
![]() | 7.2万円 3,500円 | なし 14.4万円 | 2LDK 51.06m2 | 築12年 | 多摩都市モノレール 上北台駅 徒歩22分 東京都東大和市奈良橋 | 詳細を見る | |
アパート リュエル松山(1K/2階) | |||||||
![]() | 5.5万円 3,000円 | 5.5万円 なし | 1K 24m2 | 築29年 | 西武池袋・豊島線 清瀬駅 徒歩4分 西武池袋・豊島線 東久留米駅 徒歩29分 西武池袋・豊島線 秋津駅 徒歩33分 東京都清瀬市松山1丁目 | 詳細を見る | |
アパート プロニティ・キャトル(2LDK/1階) | |||||||
![]() | 8.5万円 2,000円 | 8.5万円 8.5万円 | 2LDK 51.14m2 | 築9年 | 武蔵野線 東所沢駅 徒歩36分 武蔵野線 新座駅 徒歩39分 東京都清瀬市下清戸2丁目 | 詳細を見る | |
アパート メゾン グレシア(1LDK/1階) | |||||||
![]() | 7.6万円 2,000円 | 7.6万円 7.6万円 | 1LDK 36.49m2 | 築8年 | 西武鉄道新宿線 久米川駅 徒歩16分 西武鉄道拝島線 萩山駅 徒歩21分 西武鉄道新宿線 小平駅 徒歩22分 東京都東村山市恩多町2丁目 | 詳細を見る | |
マンション リブリ・ACEⅡ(1K/1階) | |||||||
![]() | 6.6万円 4,000円 | なし 6.6万円 | 1K 23.18m2 | 築9年 | 西武鉄道新宿線 所沢駅 徒歩16分 武蔵野線 新秋津駅 徒歩20分 西武池袋・豊島線 秋津駅 徒歩24分 東京都東村山市秋津町3丁目 | 詳細を見る | |









