賃貸アパート
ドミアゼリアBの賃貸物件情報(2LDK/2階)
| 家賃 | 管理費等 | 敷金 | 礼金 | 間取り | 専有面積 |
|---|---|---|---|---|---|
| 5.5万円 | 3,000円 | 11万円 | 5.5万円 | 2LDK | 48.02m2 |
入居決定でお祝い金最大100,000円
- 保証金
- -
- 償却・敷引
- -
- 築年数
- 築39年
- 所在階
- 2階
- 向き
- 南
Point
こちらの物件はアパートです。自宅から2駅利用できる、利便性の高いアパートです。全居室フローリング仕様のアパートです。防犯効果の高い、管理人巡回あり。駅から徒歩6分に立地する物件です。車を2台所有している方、駐2台可なので、大丈夫です。来客時にはTVインターホンで訪問者の顔を確認することがきるので安心
提供:株式会社後楽不動産 ホームメイトFC門田屋敷店(賃貸スモッカ経由)

詳細情報 ドミアゼリアB
物件紹介
ドミアゼリアBは山陽本線西川原駅から徒歩6分にあり、駅近で通勤通学に便利なアパートです。
このお部屋は2階以上に位置しているので、通行人や周囲の住人からの視線が気になりにくく、防犯面でも安心です。
人気の南向きのお部屋。また、フローリングなのでお掃除もラクラク。バス・トイレ別の仕様で、のんびりお風呂タイムも楽しめます。
通信設備面ではBSアンテナがありますので、おうち時間も充実するでしょう(別途工事、契約料が必要な場合あり)。
このお部屋は2階以上に位置しているので、通行人や周囲の住人からの視線が気になりにくく、防犯面でも安心です。
人気の南向きのお部屋。また、フローリングなのでお掃除もラクラク。バス・トイレ別の仕様で、のんびりお風呂タイムも楽しめます。
通信設備面ではBSアンテナがありますので、おうち時間も充実するでしょう(別途工事、契約料が必要な場合あり)。
お金・契約の情報
※「-」と表示されているものは、実際は料金が発生するものもございます。詳細はお問い合わせください。
| 家賃 | 5.5万円 | 管理費・共益費 | 3,000円 |
|---|---|---|---|
| 敷金 | 11万円 | 礼金 | 5.5万円 |
| 入居決定でお祝い金最大100,000円 | |||
| 保証金 | - | 償却・敷引 | - |
| 住宅保険料 | 住宅保険料あり | 更新料 | - |
| 契約形態 | - | 契約期間 | 2年 |
| 入居・引渡期間 | 2025年12月中旬 | 現況 | 空室 |
| 契約備考 | どこの不動産会社にお願いしようか迷っている方☆お部屋探しはホームメイト後楽不動産へ♪当社スタッフはお客様に寄り添った提案を心がけております♪女性スタッフ対応の要望や、初めてのお引越し時のアドバイス、初期費用についてや、保証人について、などなど何でもお気軽にご相談いただけたらと思います!お客様の条件に合う物件を納得いくまで一生懸命お探します♪ 新しい生活にお勧めなのが、こちらのアパートです。好評の駅近物件となっており、駅より徒歩6分に立地しています。家賃を10万円以下に抑えることができます。2面に窓が配置されているため複数の方角から日光を採り入れることができる角部屋になります。敷地内ごみ置き場付き物件でゴミ出しを楽にできます。ぜひご覧いただきたい賃貸物件です。知らない人が来た時でも玄関を開ける必要がなくなるモニター付きインターホンがあります。収納はクロゼット・押入など豊富なので、広々と空間を利用することも可能です。室内設備はBS・エアコンなど充実した設備を備え付けています。新生活を失敗せず、スタートさせたいならこちらの「ドミ・アゼリアB」はいかがでしょうか。 鍵交換費:19,800円 保証会社:利用必須 賃料等合計の50%(最低2万円)・月額保証料:賃料等合計の1% その他設備/条件:IT重説 対応物件、免震・耐震・制震、最上階の物件、TVドアホン、敷地内ゴミ置場 | ||
部屋の情報
| 間取り | 2LDK | 専有面積 | 48.02m2 |
|---|---|---|---|
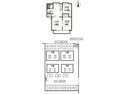
| 間取り詳細 | 洋室(4.5帖)、洋室(6帖)、LDK(13帖) | ||
| 所在階 / 向き | 2階 / 南 | バルコニー面積 | - |
| 水道 / ガス | ガス【都市】 | ||
| 設備 | バス・トイレ別、2階以上、エアコン、南向き、バルコニー、フローリング、コンロ:ガス、BSアンテナ、出窓、洗濯機:室内 | ||
| 当社物件ID | 89169079 | ||
建物の情報
| 建物名 | ドミアゼリアB | ||
|---|---|---|---|
| 所在地 | 岡山県岡山市中区浜1丁目 | ||
| 交通 | 山陽本線 西川原駅 徒歩6分 赤穂線 西川原駅 徒歩6分 岡山電軌東山本線 城下駅(岡山) 徒歩23分 | ||
| 階数 | 2階建 | 総戸数 | - |
| 築年月 | 1987年06月 / 築39年 | エレベーター | - |
| 駐車場 | - | バイク置き場 | - |
| 駐輪場 | あり | 管理人/管理会社 | - |
| 建物種別 | アパート | 建物構造 | 木造 |
この部屋の取扱い不動産会社
| 会社名 | 株式会社後楽不動産 ホームメイトFC門田屋敷店(賃貸スモッカ経由) | ||
|---|---|---|---|
| 所在地 | 岡山県岡山市中区門田屋敷1-7-38 | 交通 | - |
| 営業時間 | - | 定休日 | - |
| 免許番号 | 岡山県知事免許(1)第6267号 | 取引態様 | 仲介 |
| 不動産会社管理番号 | kouraku-fudousan3_330730000429631 | 当社管理番号 | 463 |
| 所属団体 | (公社)全国宅地建物取引業協会連合会\n(一社)岡山県宅地建物取引業協会\n四国地区不動産公正取引協議会 | ||
| 公正取引協議会 | (公社)全国宅地建物取引業保証協会 | ||
| 取扱い物件情報 | 物件詳細へ | ||
※各種情報と現状に差異がある場合は、現状優先となります。問い合わせをすることで、より詳しい条件、情報を確認する事ができます。
提供:株式会社後楽不動産 ホームメイトFC門田屋敷店(賃貸スモッカ経由)
この物件が気になったら掲載期限まであと7日
ドミアゼリアBに条件(家賃・エリア)が近い物件一覧
| 写真 | 家賃 管理費等 | 敷金 礼金 | 間取り 専有面積 | 築年数 | 最寄り駅 所在地 | キープ | 詳細 |
|---|---|---|---|---|---|---|---|
アパート コンチネンタル学南町(ワンルーム/2階) | |||||||
![]() | 3.4万円 なし | なし なし | ワンルーム 16.6m2 | 築40年 | 津山線 法界院駅 徒歩9分 山陽本線 西川原駅 徒歩27分 山陽本線 岡山駅 徒歩31分 岡山県岡山市北区学南町2丁目 | 詳細を見る | |
アパート カルムM A棟(2LDK/2階) | |||||||
![]() | 6万円 なし | なし 6万円 | 2LDK 53.72m2 | 築22年 | 山陽本線 東岡山駅 徒歩13分 赤穂線 大多羅駅 徒歩33分 岡山県岡山市中区長岡 | 詳細を見る | |
アパート ピュアメゾンB棟(1DK/2階) | |||||||
![]() | 3.9万円 3,000円 | なし なし | 1DK 24.24m2 | 築28年 | 山陽本線 東岡山駅 徒歩20分 山陽本線 上道駅(岡山) 徒歩46分 山陽本線 高島駅(岡山) 徒歩46分 岡山県岡山市中区土田 | 詳細を見る | |
アパート 虹の奏音(ワンルーム/2階) | |||||||
![]() | 5万円 4,000円 | なし 2万円 | ワンルーム 35.1m2 | 築20年 | 山陽本線 東岡山駅 徒歩14分 山陽本線 高島駅(岡山) 徒歩33分 岡山県岡山市中区土田 | 詳細を見る | |
一戸建て 山陽本線 高島駅(岡山) 徒歩13分 築58年(2LDK) | |||||||
![]() | 5万円 なし | 5万円 5万円 | 2LDK 49.68m2 | 築58年 | 山陽本線 高島駅(岡山) 徒歩13分 岡山県岡山市中区さい東町1丁目 | 詳細を見る | |
アパート ピローサイド四御神A棟(2DK/2階) | |||||||
![]() | 5.2万円 3,000円 | なし なし | 2DK 48.74m2 | 築31年 | 山陽本線 東岡山駅 徒歩13分 岡山県岡山市中区四御神 | 詳細を見る | |







