賃貸アパート
COTOの賃貸物件情報(1LDK/2階)
| 家賃 | 管理費等 | 敷金 | 礼金 | 間取り | 専有面積 |
|---|---|---|---|---|---|
| 15.7万円 | 3,000円 | 15.7万円 | 15.7万円 | 1LDK | 44.51m2 |
入居決定でお祝い金最大100,000円
- 保証金
- -
- 償却・敷引
- -
- 築年数
- 築8年
- 所在階
- 2階
- 向き
- -
Point
収納はシューズボックス・クロゼットなどが備え付けられているので、衣類や日用品の収納に重宝します。室内設備は洗面化粧台・浴室乾燥機など充実した設備を備え付けています。
提供:(株)SKCrew(SUUMO経由)

詳細情報 COTO
物件紹介
COTOは京王新線初台駅から徒歩8分にあり、駅近で通勤通学に便利なアパートです。
このお部屋は2階以上に位置しているので、通行人や周囲の住人からの視線が気になりにくく、防犯面でも安心。建物のエントランスはオートロックがついており、インターホンにはTVモニタもついているため、相手の顔を確認してから来客対応することができます。
人気の角部屋で周囲の居住者の生活音も気になりにくく、また、フローリングのお部屋なのでお掃除もラクラク。キッチンはシステムキッチン仕様になっていますので、お料理好きの方にもぴったり。バス・トイレは別なので、のんびりお風呂タイムも楽しめるでしょう。また、雨の日でも浴室乾燥機を使えば、お洗濯も問題ありません。
通信設備面では、インターネットが無料で使えるので、月々の出費を抑えられるのも魅力です(別途工事等が必要な場合あり)。
共用部には宅配ボックスが設定されているので、不在の時にも荷物を受け取ることができます。
このお部屋は2階以上に位置しているので、通行人や周囲の住人からの視線が気になりにくく、防犯面でも安心。建物のエントランスはオートロックがついており、インターホンにはTVモニタもついているため、相手の顔を確認してから来客対応することができます。
人気の角部屋で周囲の居住者の生活音も気になりにくく、また、フローリングのお部屋なのでお掃除もラクラク。キッチンはシステムキッチン仕様になっていますので、お料理好きの方にもぴったり。バス・トイレは別なので、のんびりお風呂タイムも楽しめるでしょう。また、雨の日でも浴室乾燥機を使えば、お洗濯も問題ありません。
通信設備面では、インターネットが無料で使えるので、月々の出費を抑えられるのも魅力です(別途工事等が必要な場合あり)。
共用部には宅配ボックスが設定されているので、不在の時にも荷物を受け取ることができます。
お金・契約の情報
※「-」と表示されているものは、実際は料金が発生するものもございます。詳細はお問い合わせください。
| 家賃 | 15.7万円 | 管理費・共益費 | 3,000円 |
|---|---|---|---|
| 敷金 | 15.7万円 | 礼金 | 15.7万円 |
| 入居決定でお祝い金最大100,000円 | |||
| 保証金 | - | 償却・敷引 | - |
| 住宅保険料 | - | 更新料 | - |
| 保証会社利用 | 必須 | 保証会社名 | - |
| 保証会社費用 | - | 保証会社備考 | 保証会社利用必 初回保証料:総賃料の50% |
| 契約形態 | 定期借家 | 契約期間 | 2年 |
| 入居・引渡期間 | 即時 | 現況 | - |
| 契約備考 | 巡回管理/24時間お問い合わせ可能となっております!いつでもご連絡くださいませ!検索だけでは探しにくい条件でも、お客様一人一人に担当者が付き、お話を伺った上でご提案させて頂きますので、本音でご相談ください! 合計2万円(内訳:鍵交換代2万円) 更新料 新賃料1.00ヶ月分 1LDK 二人入居可 定期借家2年 損保【2万円2年】 バストイレ別、バルコニー、エアコン、ガスコンロ対応、クロゼット、フローリング、TVインターホン、浴室乾燥機、オートロック、室内洗濯置、シューズボックス、システムキッチン、追焚機能浴室、角住戸、温水洗浄便座、脱衣所、洗面所独立、洗面化粧台、駐輪場、宅配ボックス、光ファイバー、即入居可、2面採光、3口以上コンロ、オートバス、グリル付、全居室洋室、保証人不要、敷金1ヶ月、全居室フローリング、ガスレンジ付、2沿線利用可、ネット専用回線、ネット使用料不要、眺望良好、保証金不要、24時間換気システム、2駅利用可、3駅以上利用可、3沿線以上利用可、駅徒歩10分以内、敷地内ごみ置き場、都市ガス、玄関収納、マルチメディアコンセント、礼金1ヶ月、IT重説対応物件、初期費用カード決済可、通風良好 | ||
部屋の情報
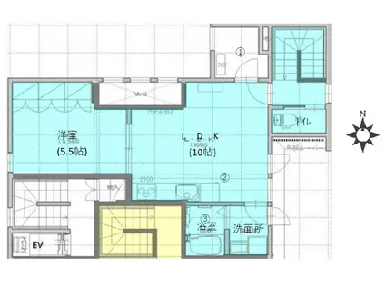
| 間取り | 1LDK | 専有面積 | 44.51m2 |
|---|---|---|---|
| 所在階 / 向き | 2階 / - | バルコニー面積 | - |
| 水道 / ガス | - | ||
| 設備 | バス・トイレ別、2階以上、オートロック、テレビドアホン、宅配ボックス、浴室乾燥機、追い焚き、インターネット対応、システムキッチン、エアコン、温水洗浄便座、角部屋、バルコニー、フローリング、洗髪洗面化粧台、2口コンロ、コンロ:ガス、インターネット使用料無料、洗濯機:室内 | ||
| 当社物件ID | 160302175 | ||
建物の情報
| 建物名 | COTO | ||
|---|---|---|---|
| 所在地 | 東京都渋谷区本町 | ||
| 交通 | 京王新線 初台駅 徒歩8分 都営大江戸線 西新宿五丁目駅 徒歩9分 東京メトロ丸ノ内線 中野坂上駅 徒歩17分 | ||
| 階数 | 3階建 | 総戸数 | - |
| 築年月 | 2018年09月 / 築8年 | エレベーター | - |
| 駐車場 | なし | バイク置き場 | - |
| 駐輪場 | あり | 管理人/管理会社 | - |
| 周辺環境 | その他 mini(ミニ)ピアゴ 渋谷本町3丁目店(スーパー)まで187m その他 セブンイレブン 渋谷本町3丁目店(コンビニ)まで189m その他 ローソンストア100 LS渋谷本町三丁目店(その他)まで268m その他 まいばすけっと 渋谷本町2丁目店(スーパー)まで250m その他 代々木警察署 清水橋交番(警察署・交番)まで429m その他 ファミリーマート サンズ西新宿店(コンビニ)まで587m | ||
| 建物種別 | アパート | 建物構造 | 木造 |
この部屋の取扱い不動産会社
| 会社名 | (株)SKCrew(SUUMO経由) | ||
|---|---|---|---|
| 所在地 | 東京都中野区東中野3-8-13 ドーンNSビル6階 | 交通 | - |
| 営業時間 | 10:00~20:00 | 定休日 | なし |
| 免許番号 | 東京都知事107658 | 取引態様 | 仲介 |
| 不動産会社管理番号 | 100485508839 | 当社管理番号 | 89 |
| 所属団体 | (公社)全日本不動産協会東京都本部会員 | ||
| 公正取引協議会 | (公社)首都圏不動産公正取引協議会加盟 | ||
| 取扱い物件情報 | 物件詳細へ | ||
※各種情報と現状に差異がある場合は、現状優先となります。問い合わせをすることで、より詳しい条件、情報を確認する事ができます。
提供:(株)SKCrew(SUUMO経由)
この物件が気になったら掲載期限まであと10日
COTOに条件(家賃・エリア)が近い物件一覧
| 写真 | 家賃 管理費等 | 敷金 礼金 | 間取り 専有面積 | 築年数 | 最寄り駅 所在地 | キープ | 詳細 |
|---|---|---|---|---|---|---|---|
アパート フォレスタ世田谷(2LDK/2階) | |||||||
![]() | 17.5万円 1,000円 | 17.5万円 17.5万円 | 2LDK 47.7m2 | 築55年 | 東急池上線 雪が谷大塚駅 徒歩6分 東急東横線 田園調布駅 徒歩16分 東急目黒線 多摩川駅 徒歩16分 東京都世田谷区東玉川 | 詳細を見る | |
マンション アプリコットフィズ(1LDK/2階) | |||||||
![]() | 15.8万円 1万円 | 15.8万円 31.6万円 | 1LDK 42.34m2 | 築5年 | 小田急電鉄小田原線 千歳船橋駅 徒歩7分 小田急電鉄小田原線 経堂駅 徒歩12分 東急世田谷線 宮の坂駅 徒歩23分 東京都世田谷区経堂4丁目 | 詳細を見る | |
マンション ハイツ髙沢(1LDK/2階) | |||||||
![]() | 13.5万円 5,000円 | 13.5万円 27万円 | 1LDK 32.89m2 | 築7年 | 東急池上線 旗の台駅 徒歩5分 東急大井町線 荏原町駅 徒歩6分 横須賀線 西大井駅 徒歩21分 東京都品川区旗の台4丁目 | 詳細を見る | |
マンション エスタート品川戸越Ⅱ(1K/8階) | |||||||
![]() | 12.8万円 8,000円 | 12.8万円 なし | 1K 21.17m2 | 築9年 | 東急池上線 荏原中延駅 徒歩4分 東京都浅草線 戸越駅 徒歩5分 山手線 大崎駅 徒歩20分 東京都品川区東中延1丁目 | 詳細を見る | |
マンション GRAN PASEO大森Ⅲ(2LDK/1階) | |||||||
![]() | 22万円 1.2万円 | なし なし | 2LDK 42.55m2 | 築2年 | 京浜急行電鉄本線 大森海岸駅 徒歩6分 東京都品川区南大井3丁目 | 詳細を見る | |
アパート 御殿山テラスⅡ(2LDK/1階) | |||||||
![]() | 22.5万円 3,000円 | 22.5万円 45万円 | 2LDK 57.6m2 | 築2年 | 山手線 大崎駅 徒歩8分 京浜急行電鉄本線 北品川駅 徒歩14分 東京都品川区北品川5丁目 | 詳細を見る | |
マンション レジディア南品川Ⅱ(2DK/8階) | |||||||
![]() | 21.8万円 2万円 | 21.8万円 21.8万円 | 2DK 41.9m2 | 築11年 | 京浜急行電鉄本線 新馬場駅 徒歩6分 東京都品川区南品川2丁目 | 詳細を見る | |
マンション オーキッドレジデンス戸越公園(2LDK/7階) | |||||||
![]() | 24万円 1.5万円 | 24万円 なし | 2LDK 42.43m2 | 築5年 | 東急大井町線 戸越公園駅 徒歩6分 都営浅草線 中延駅 徒歩7分 湘南新宿ライン宇須 西大井駅 徒歩9分 東京都品川区豊町 | 詳細を見る | |









