賃貸マンション
ザ・パークハウス西新宿タワー60の賃貸物件情報(2LDK/24階)
| 家賃 | 管理費等 | 敷金 | 礼金 | 間取り | 専有面積 |
|---|---|---|---|---|---|
| 41万円 | なし | 41万円 | 41万円 | 2LDK | 71.04m2 |
入居決定でお祝い金最大100,000円
- 保証金
- -
- 償却・敷引
- -
- 築年数
- 築9年
- 所在階
- 24階
- 向き
- 南東
Point
【当社管理物件・仲介手数料半額】高級タワーマンション分譲賃貸・高層階・エレベーター3基・各階専用ゴミ置場・オートロック・モニタ付きインターホン・宅配BOX・床暖房・浴室乾燥機・温水洗浄便座・3口IHコ
提供:(株)タウンハウス四谷三丁目店(SUUMO経由)

詳細情報 ザ・パークハウス西新宿タワー60
物件紹介
ザ・パークハウス西新宿タワー60は都営大江戸線西新宿五丁目駅から徒歩8分にあり、駅近で通勤通学に便利なマンションです。
このお部屋は2階以上に位置しているので、通行人や周囲の住人からの視線が気になりにくく、防犯面でも安心。建物のエントランスはオートロックがついており、インターホンにはTVモニタもついているため、相手の顔を確認してから来客対応することができます。
人気の南向き・フローリングのお部屋。室内にはウォークインクローゼットがありますので、たくさんの荷物も効率的に収納ができます。キッチンはシステムキッチン仕様になっていますので、お料理好きの方にもぴったり。バス・トイレは別なので、のんびりお風呂タイムも楽しめるでしょう。また、雨の日でも浴室乾燥機を使えば、お洗濯も問題ありません。
床暖房があり、冬も足元から暖かく快適に過ごすことができます。建物にはエレベーターがついているので、重い荷物があっても安心。共用部には宅配ボックスが設定されているので、不在の時にも荷物を受け取ることができます。
このお部屋は2階以上に位置しているので、通行人や周囲の住人からの視線が気になりにくく、防犯面でも安心。建物のエントランスはオートロックがついており、インターホンにはTVモニタもついているため、相手の顔を確認してから来客対応することができます。
人気の南向き・フローリングのお部屋。室内にはウォークインクローゼットがありますので、たくさんの荷物も効率的に収納ができます。キッチンはシステムキッチン仕様になっていますので、お料理好きの方にもぴったり。バス・トイレは別なので、のんびりお風呂タイムも楽しめるでしょう。また、雨の日でも浴室乾燥機を使えば、お洗濯も問題ありません。
床暖房があり、冬も足元から暖かく快適に過ごすことができます。建物にはエレベーターがついているので、重い荷物があっても安心。共用部には宅配ボックスが設定されているので、不在の時にも荷物を受け取ることができます。
お金・契約の情報
※「-」と表示されているものは、実際は料金が発生するものもございます。詳細はお問い合わせください。
| 家賃 | 41万円 | 管理費・共益費 | なし |
|---|---|---|---|
| 敷金 | 41万円 | 礼金 | 41万円 |
| 入居決定でお祝い金最大100,000円 | |||
| 保証金 | - | 償却・敷引 | - |
| 住宅保険料 | - | 更新料 | - |
| 保証会社利用 | 必須 | 保証会社名 | - |
| 保証会社費用 | - | 保証会社備考 | 保証会社利用必 エポスカード初回賃料等総額50%・年毎14000円 |
| 契約形態 | - | 契約期間 | - |
| 入居・引渡期間 | 即時 | 現況 | - |
| 契約備考 | ※室内喫煙不可(電子タバコ・バルコニー喫煙も不可) 合計1.65万円(内訳:安心入居サポート16500円) 2LDK 二人入居可 損保【2.1万円2年】 バストイレ別、バルコニー、エアコン、クロゼット、フローリング、TVインターホン、浴室乾燥機、オートロック、室内洗濯置、陽当り良好、シューズボックス、システムキッチン、温水洗浄便座、脱衣所、エレベーター、洗面所独立、洗面化粧台、宅配ボックス、即入居可、3口以上コンロ、IHクッキングヒーター、分譲賃貸、全居室洋室、ウォークインクロゼット、敷金1ヶ月、二人入居相談、オール電化、全居室フローリング、2沿線利用可、床暖房、食器洗乾燥機、眺望良好、LDK20畳以上、フロントサービス、3駅以上利用可、駅徒歩10分以内、タワー型マンション、高層階、24時間ゴミ出し可、敷地内ごみ置き場、東南向き、洗面所にドア、礼金1ヶ月 | ||
部屋の情報
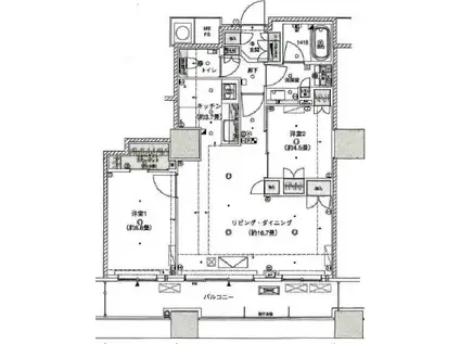
| 間取り | 2LDK | 専有面積 | 71.04m2 |
|---|---|---|---|
| 所在階 / 向き | 24階 / 南東 | バルコニー面積 | - |
| 水道 / ガス | - | ||
| 設備 | バス・トイレ別、2階以上、オートロック、テレビドアホン、宅配ボックス、浴室乾燥機、ウォークインクローゼット、システムキッチン、エアコン、エレベーター、温水洗浄便座、南向き、バルコニー、フローリング、洗髪洗面化粧台、タワーマンション、オール電化、床暖房、2口コンロ、コンロ:IH、洗濯機:室内 | ||
| 当社物件ID | 125064896 | ||
建物の情報
| 建物名 | ザ・パークハウス西新宿タワー60 | ||
|---|---|---|---|
| 所在地 | 東京都新宿区西新宿 | ||
| 交通 | 都営大江戸線 西新宿五丁目駅 徒歩8分 東京メトロ丸ノ内線 西新宿駅 徒歩10分 東京メトロ丸ノ内線 中野坂上駅 徒歩11分 | ||
| 階数 | 地下2地上26階建 | 総戸数 | - |
| 築年月 | 2017年08月 / 築9年 | エレベーター | あり |
| 駐車場 | なし | バイク置き場 | - |
| 駐輪場 | - | 管理人/管理会社 | - |
| 周辺環境 | その他 もとまちユニオン新宿店(スーパー)まで418m その他 イオンフードスタイル西新宿店(スーパー)まで279m その他 ウエルシア西新宿三井ビル店(ドラッグストア)まで312m その他 セブンイレブン西新宿5丁目中央店(コンビニ)まで71m その他 新宿アイタウン郵便局(郵便局)まで156m その他 東京医科大学図書館(図書館)まで705m | ||
| 建物種別 | マンション | 建物構造 | RC(鉄筋コンクリート) |
この部屋の取扱い不動産会社
| 会社名 | (株)タウンハウス四谷三丁目店(SUUMO経由) | ||
|---|---|---|---|
| 所在地 | 東京都新宿区左門町 6-17 | 交通 | - |
| 営業時間 | 10:00~17:00 | 定休日 | 日曜祝日 |
| 免許番号 | 東京都知事63585 | 取引態様 | 仲介 |
| 不動産会社管理番号 | 100486768111 | 当社管理番号 | 89 |
| 所属団体 | (公社)全日本不動産協会東京都本部会員 | ||
| 公正取引協議会 | (公社)首都圏不動産公正取引協議会加盟 | ||
| 取扱い物件情報 | 物件詳細へ | ||
※各種情報と現状に差異がある場合は、現状優先となります。問い合わせをすることで、より詳しい条件、情報を確認する事ができます。
提供:(株)タウンハウス四谷三丁目店(SUUMO経由)
この物件が気になったら掲載期限まであと11日
ザ・パークハウス西新宿タワー60の空き部屋一覧
全部で27の空き部屋があります。
ザ・パークハウス西新宿タワー60に条件(家賃・エリア)が近い物件一覧
| 写真 | 家賃 管理費等 | 敷金 礼金 | 間取り 専有面積 | 築年数 | 最寄り駅 所在地 | キープ | 詳細 |
|---|---|---|---|---|---|---|---|
マンション デンフラット南平台(1LDK/3階) | |||||||
![]() | 39.8万円 なし | 79.6万円 39.8万円 | 1LDK 64.04m2 | 築23年 | 京王井の頭線 神泉駅 徒歩8分 JR山手線 渋谷駅 徒歩9分 東京メトロ銀座線 渋谷駅 徒歩9分 東京都渋谷区南平台町 | 詳細を見る | |
マンション ワテラスタワーレジデンス(1LDK/32階) | |||||||
![]() | 45万円 なし | 90万円 45万円 | 1LDK 60.01m2 | 築13年 | 東京メトロ千代田線 新御茶ノ水駅 徒歩4分 東京メトロ丸ノ内線 淡路町駅 徒歩5分 JR中央線 御茶ノ水駅 徒歩6分 東京都千代田区神田淡路町 | 詳細を見る | |
マンション 富久クロスコンフォートタワー(2LDK/30階) | |||||||
![]() | 39.5万円 2万円 | 39.5万円 39.5万円 | 2LDK 61.44m2 | 築11年 | 東京メトロ丸ノ内線 新宿御苑前駅 徒歩7分 東京メトロ副都心線 新宿三丁目駅 徒歩9分 JR山手線 新宿駅 徒歩18分 東京都新宿区富久町 | 詳細を見る | |
マンション リビオメゾン西麻布(2LDK/9階) | |||||||
![]() | 36万円 2万円 | 36万円 なし | 2LDK 50.47m2 | 築1年 | 東京メトロ千代田線 乃木坂駅 徒歩8分 東京メトロ日比谷線 六本木駅 徒歩9分 東京メトロ半蔵門線 表参道駅 徒歩15分 東京都港区西麻布 | 詳細を見る | |
マンション 新築★ペット可賃貸(2LDK/3階) | |||||||
![]() | 30.4万円 1.5万円 | なし なし | 2LDK 44.77m2 | 築1年 | 東京メトロ銀座線 外苑前駅 徒歩10分 都営大江戸線 国立競技場駅 徒歩13分 東京メトロ副都心線 北参道駅 徒歩14分 東京都渋谷区神宮前 | 詳細を見る | |
マンション LASANTE 麻布十番(1LDK/9階) | |||||||
![]() | 37.8万円 1万円 | 37.8万円 37.8万円 | 1LDK 43.96m2 | 築19年 | 東京メトロ南北線 麻布十番駅 徒歩2分 都営大江戸線 麻布十番駅 徒歩2分 都営大江戸線 赤羽橋駅 徒歩12分 東京都港区麻布十番 | 詳細を見る | |
マンション リビオメゾン新宿ウエスト(2LDK/10階) | |||||||
![]() | 28.8万円 1.5万円 | 28.8万円 なし | 2LDK 40.98m2 | 築1年 | 都営大江戸線 新宿西口駅 徒歩4分 JR山手線 新宿駅 徒歩8分 東京メトロ丸ノ内線 西新宿駅 徒歩9分 東京都新宿区西新宿 | 詳細を見る | |
マンション ベルファース芝浦タワー(1LDK/26階) | |||||||
![]() | 28.3万円 1.2万円 | 28.3万円 なし | 1LDK 55.59m2 | 築16年 | JR山手線 田町駅(東京) 徒歩14分 JR京浜東北線 田町駅(東京) 徒歩14分 東京都港区芝浦 | 詳細を見る | |









