賃貸アパート
シャンファーレルリエ一之江サウスの賃貸物件情報(1K/2階)
| 家賃 | 管理費等 | 敷金 | 礼金 | 間取り | 専有面積 |
|---|---|---|---|---|---|
| 7.3万円 | 5,000円 | 7.3万円 | 7.3万円 | 1K | 19.02m2 |
入居決定でお祝い金最大100,000円
- 保証金
- -
- 償却・敷引
- -
- 築年数
- 新築
- 所在階
- 2階
- 向き
- 北
Point
まずはお問い合わせ!
不動産会社は街のプロ、あなたに合った物件がきっと見つかります。
提供:いい部屋ネット神田駅東口店(株)COLORSリアルエステート(SUUMO経由)

詳細情報 シャンファーレルリエ一之江サウス
物件紹介
シャンファーレルリエ一之江サウスは都営新宿線一之江駅から徒歩10分にあり、駅近で通勤通学に便利なアパートです。
このお部屋は2階以上に位置しているので、通行人や周囲の住人からの視線が気になりにくく、防犯面でも安心。建物のエントランスはオートロックがついており、インターホンにはTVモニタもついているため、相手の顔を確認してから来客対応することができます。
フローリングのお部屋なのでお掃除もラクラク。キッチンはシステムキッチン仕様になっていますので、お料理好きの方にもぴったり。また、バス・トイレは別で、のんびりお風呂タイムも楽しめるでしょう。
通信設備面では、インターネットが無料で使えるので、月々の出費を抑えられるのも魅力です(別途工事等が必要な場合あり)。
共用部には宅配ボックスが設定されているので、不在の時にも荷物を受け取ることができます。
このお部屋は2階以上に位置しているので、通行人や周囲の住人からの視線が気になりにくく、防犯面でも安心。建物のエントランスはオートロックがついており、インターホンにはTVモニタもついているため、相手の顔を確認してから来客対応することができます。
フローリングのお部屋なのでお掃除もラクラク。キッチンはシステムキッチン仕様になっていますので、お料理好きの方にもぴったり。また、バス・トイレは別で、のんびりお風呂タイムも楽しめるでしょう。
通信設備面では、インターネットが無料で使えるので、月々の出費を抑えられるのも魅力です(別途工事等が必要な場合あり)。
共用部には宅配ボックスが設定されているので、不在の時にも荷物を受け取ることができます。
お金・契約の情報
※「-」と表示されているものは、実際は料金が発生するものもございます。詳細はお問い合わせください。
| 家賃 | 7.3万円 | 管理費・共益費 | 5,000円 |
|---|---|---|---|
| 敷金 | 7.3万円 | 礼金 | 7.3万円 |
| 入居決定でお祝い金最大100,000円 | |||
| 保証金 | - | 償却・敷引 | - |
| 住宅保険料 | - | 更新料 | - |
| 保証会社利用 | 必須 | 保証会社名 | - |
| 保証会社費用 | - | 保証会社備考 | 保証会社利用必 詳細はお問い合わせください。 |
| 契約形態 | - | 契約期間 | - |
| 入居・引渡期間 | - | 現況 | - |
| 契約備考 | 巡回管理/事前にご予約を頂戴できれば、お仕事終わりのご対応も可能です。 また、弊社ではリモート内覧、リモート応対等、今の時代に合ったご案内方法がご選択可能です。 個室でのご対応、大型モニターを使いながらお部屋のご提案もできますので、ファミリーの方も安心してご来店頂けます。 不動産経験10年以上の経験豊富なスタッフが、お客様より一つでも多くの笑顔が頂けるよう誠心誠意サポート致します。 合計1.1万円(内訳:契約事務手数料:11000円) LifeAssist24:1980円(月額)、更新料:1ヶ月 1K 損保【要】 バストイレ別、エアコン、クロゼット、フローリング、TVインターホン、オートロック、室内洗濯置、シューズボックス、システムキッチン、温水洗浄便座、洗面所独立、2口コンロ、宅配ボックス、保証人不要、敷金1ヶ月、ネット使用料不要、保証金不要、築2年以内、24時間換気システム、駅徒歩10分以内、敷地内ごみ置き場、プロパンガス、礼金1ヶ月、初期費用カード決済可 入居日:'26年5月上旬 | ||
部屋の情報
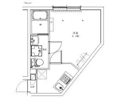
| 間取り | 1K | 専有面積 | 19.02m2 |
|---|---|---|---|
| 所在階 / 向き | 2階 / 北 | バルコニー面積 | - |
| 水道 / ガス | - | ||
| 設備 | バス・トイレ別、2階以上、オートロック、テレビドアホン、宅配ボックス、インターネット対応、システムキッチン、エアコン、温水洗浄便座、フローリング、洗髪洗面化粧台、2口コンロ、インターネット使用料無料、洗濯機:室内 | ||
| 当社物件ID | 160548240 | ||
建物の情報
| 建物名 | シャンファーレルリエ一之江サウス | ||
|---|---|---|---|
| 所在地 | 東京都江戸川区春江町 | ||
| 交通 | 都営新宿線 一之江駅 徒歩10分 都営新宿線 船堀駅 徒歩22分 東京メトロ東西線 葛西駅 徒歩30分 | ||
| 階数 | 3階建 | 総戸数 | 9戸 |
| 築年月 | 2026年04月 / 新築 | エレベーター | - |
| 駐車場 | なし | バイク置き場 | - |
| 駐輪場 | - | 管理人/管理会社 | - |
| 周辺環境 | その他 DAISO マルエツ一之江駅前店(ショッピングセンター)まで755m その他 まいばすけっと 西瑞江5丁目店(スーパー)まで303m その他 コモディイイダ 西瑞江環七店(スーパー)まで360m その他 ローソン 西瑞江五丁目店(コンビニ)まで224m その他 ファミリーマート 春江町四丁目店(コンビニ)まで338m その他 ローソン 二之江町店(コンビニ)まで383m | ||
| 建物種別 | アパート | 建物構造 | 木造 |
この部屋の取扱い不動産会社
| 会社名 | いい部屋ネット神田駅東口店(株)COLORSリアルエステート(SUUMO経由) | ||
|---|---|---|---|
| 所在地 | 東京都千代田区鍛冶町2-6-2 上野ビルディング8階 | 交通 | - |
| 営業時間 | 10:00~19:00 | 定休日 | 無し |
| 免許番号 | 東京都知事92312 | 取引態様 | 仲介 |
| 不動産会社管理番号 | 100493211768 | 当社管理番号 | 89 |
| 所属団体 | (公社)全日本不動産協会東京都本部会員 | ||
| 公正取引協議会 | (公社)首都圏不動産公正取引協議会加盟 | ||
| 取扱い物件情報 | 物件詳細へ | ||
※各種情報と現状に差異がある場合は、現状優先となります。問い合わせをすることで、より詳しい条件、情報を確認する事ができます。
提供:いい部屋ネット神田駅東口店(株)COLORSリアルエステート(SUUMO経由)
この物件が気になったら掲載期限まであと11日
シャンファーレルリエ一之江サウスに条件(家賃・エリア)が近い物件一覧
| 写真 | 家賃 管理費等 | 敷金 礼金 | 間取り 専有面積 | 築年数 | 最寄り駅 所在地 | キープ | 詳細 |
|---|---|---|---|---|---|---|---|
マンション フュージョナル菊川(1K/6階) | |||||||
![]() | 10万円 1.5万円 | 10万円 10万円 | 1K 25.24m2 | 築11年 | 東京都新宿線 菊川駅(東京) 徒歩7分 東京都新宿線 森下駅(東京) 徒歩13分 東京都大江戸線 両国駅 徒歩13分 東京都墨田区立川3丁目 | 詳細を見る | |
マンション ラヴァンド大島(1K/4階) | |||||||
![]() | 11.1万円 1万円 | なし なし | 1K 25.69m2 | 築8年 | 都営新宿線 大島駅(東京) 徒歩3分 都営新宿線 西大島駅 徒歩7分 JR総武線 亀戸駅 徒歩14分 東京都江東区大島 | 詳細を見る | |
マンション GENOVIA本所吾妻橋SKYGARDEN(1K/1階) | |||||||
![]() | 11万円 1.5万円 | なし なし | 1K 25.57m2 | 築5年 | 東京都浅草線 本所吾妻橋駅 徒歩10分 東京都大江戸線 両国駅 徒歩12分 東京地下鉄銀座線 浅草駅(東武・都営・メトロ) 徒歩15分 東京都墨田区石原3丁目 | 詳細を見る | |
マンション ジェノヴィア鐘ヶ淵(1DK/5階) | |||||||
![]() | 9.25万円 1万円 | なし なし | 1DK 27.14m2 | 築3年 | 東武伊勢崎・大師線 鐘ケ淵駅 徒歩3分 東武伊勢崎・大師線 堀切駅 徒歩14分 東武伊勢崎・大師線 東向島駅 徒歩15分 東京都墨田区墨田2丁目 | 詳細を見る | |
マンション プレール・ドゥーク木場親水公園(1K/2階) | |||||||
![]() | 10.9万円 1.1万円 | なし 10.9万円 | 1K 21.87m2 | 築20年 | 東京地下鉄東西線 木場駅 徒歩8分 東京都大江戸線 門前仲町駅 徒歩12分 東京地下鉄東西線 門前仲町駅 徒歩12分 東京都江東区木場3丁目 | 詳細を見る | |
マンション エルプレイス隅田 東棟(ワンルーム/4階) | |||||||
![]() | 10.3万円 なし | 20.6万円 20.6万円 | ワンルーム 17.84m2 | 築32年 | 東武伊勢崎・大師線 東向島駅 徒歩9分 東京都墨田区堤通1丁目 | 詳細を見る | |
マンション 木下ダイヤモンドパレス(1K/4階) | |||||||
![]() | 7万円 7,000円 | 7万円 7万円 | 1K 18.34m2 | 築37年 | 東京都新宿線 森下駅(東京) 徒歩6分 総武・中央緩行線 両国駅 徒歩8分 東京都大江戸線 両国駅 徒歩9分 東京都墨田区千歳2丁目 | 詳細を見る | |
マンション アクシルコート新大橋(1K/9階) | |||||||
![]() | 7.7万円 7,000円 | 7.7万円 7.7万円 | 1K 21.21m2 | 築36年 | 都営新宿線 森下駅(東京) 徒歩8分 JR総武線 両国駅 徒歩11分 都営浅草線 東日本橋駅 徒歩18分 東京都墨田区千歳 | 詳細を見る | |









