賃貸アパート
デザイナーズAP・68B棟の賃貸物件情報(1LDK/2階)
| 家賃 | 管理費等 | 敷金 | 礼金 | 間取り | 専有面積 |
|---|---|---|---|---|---|
| 4.2万円 | なし | 4.2万円 | なし | 1LDK | 36m2 |
入居決定でお祝い金最大100,000円
Point
お一人お一人のお客様のご条件・悩みに沿いながら、ご希望にぴったりのお部屋探しをさせていただきます。「不動産のビッグ」にて、お客様の本当の声をぜひお聞かせください。
提供:(株)生活プロデュース管理部(SUUMO経由)

詳細情報 デザイナーズAP・68B棟
物件紹介
デザイナーズAP・68B棟はJR函館本線旭川駅から徒歩65分にあるアパートです。
このお部屋は2階以上に位置しているので、通行人や周囲の住人からの視線が気になりにくく、防犯面でも安心。インターホンにはTVモニタもついているため、相手の顔を確認してから来客対応することができます。
人気の南向きのお部屋。また、フローリングなのでお掃除もラクラク。キッチンはシステムキッチン仕様になっていますので、お料理好きの方にもぴったり。また、バス・トイレは別で、のんびりお風呂タイムも楽しめるでしょう。
通信設備面では、インターネット接続が可能です(別途工事、契約料が必要な場合あり)。
このお部屋は2階以上に位置しているので、通行人や周囲の住人からの視線が気になりにくく、防犯面でも安心。インターホンにはTVモニタもついているため、相手の顔を確認してから来客対応することができます。
人気の南向きのお部屋。また、フローリングなのでお掃除もラクラク。キッチンはシステムキッチン仕様になっていますので、お料理好きの方にもぴったり。また、バス・トイレは別で、のんびりお風呂タイムも楽しめるでしょう。
通信設備面では、インターネット接続が可能です(別途工事、契約料が必要な場合あり)。
お金・契約の情報
※「-」と表示されているものは、実際は料金が発生するものもございます。詳細はお問い合わせください。
| 家賃 | 4.2万円 | 管理費・共益費 | なし |
|---|---|---|---|
| 敷金 | 4.2万円 | 礼金 | なし |
| 入居決定でお祝い金最大100,000円 | |||
| 保証金 | - | 償却・敷引 | - |
| 住宅保険料 | - | 更新料 | - |
| 保証会社利用 | 必須 | 保証会社名 | - |
| 保証会社費用 | - | 保証会社備考 | 保証会社利用必 保証会社要加入:保証料月額総賃料の50%~100%(敷金無料) |
| 契約形態 | - | 契約期間 | - |
| 入居・引渡期間 | 即時 | 現況 | - |
| 契約備考 | 合計2.75万円(内訳:水廻り清掃代 27500円税込) 安心サービス24 1650円/月額 証明書発行手数料 2200円 町内会費 300円/月額 ストーブ分解清掃 22000円/退去時 1LDK 二人入居可 普通借家2年 損保【2万円2年】 バストイレ別、エアコン、クロゼット、フローリング、シャワー付洗面台、TVインターホン、室内洗濯置、陽当り良好、シューズボックス、システムキッチン、温水洗浄便座、脱衣所、洗面所独立、洗面化粧台、2口コンロ、光ファイバー、即入居可、礼金不要、最上階、独立型キッチン、IHクッキングヒーター、照明付、二人入居相談、オール電化、全居室フローリング、玄関ホール、2沿線利用可、ロードヒーティング、複層ガラス、南面リビング、2駅利用可、バス停徒歩3分以内、敷地内ごみ置き場、南西向き、全居室6畳以上、蓄熱式暖房、高速ネット対応、IT重説対応物件、初期費用カード決済可、全室照明付 | ||
部屋の情報
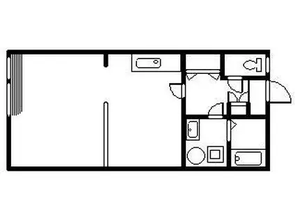
| 間取り | 1LDK | 専有面積 | 36m2 |
|---|---|---|---|
| 所在階 / 向き | 2階 / 南西 | バルコニー面積 | - |
| 水道 / ガス | - | ||
| 設備 | バス・トイレ別、2階以上、テレビドアホン、インターネット対応、システムキッチン、エアコン、温水洗浄便座、南向き、フローリング、洗髪洗面化粧台、オール電化、2口コンロ、コンロ:IH、洗濯機:室内 | ||
| 当社物件ID | 21705925 | ||
建物の情報
| 建物名 | デザイナーズAP・68B棟 | ||
|---|---|---|---|
| 所在地 | 北海道旭川市東光六条 | ||
| 交通 | JR函館本線 旭川駅 徒歩65分 JR富良野線 緑が丘駅(北海道) 徒歩66分 | ||
| 階数 | 2階建 | 総戸数 | 6戸 |
| 築年月 | 2006年05月 / 築20年 | エレベーター | - |
| 駐車場 | 空有 3000円 | バイク置き場 | - |
| 駐輪場 | - | 管理人/管理会社 | - |
| 周辺環境 | その他 旭川第3小学校(小学校)まで400m その他 東明中学校(中学校)まで1300m | ||
| 建物種別 | アパート | 建物構造 | 木造 |
この部屋の取扱い不動産会社
| 会社名 | (株)生活プロデュース管理部(SUUMO経由) | ||
|---|---|---|---|
| 所在地 | 北海道旭川市神楽二条9-1-1 | 交通 | - |
| 営業時間 | 9:30~18:00 | 定休日 | 不定休 |
| 免許番号 | 北海道知事上川1074 | 取引態様 | 仲介 |
| 不動産会社管理番号 | 100480050625 | 当社管理番号 | 89 |
| 所属団体 | (公社)北海道宅地建物取引業協会会員 | ||
| 公正取引協議会 | (一社)北海道不動産公正取引協議会加盟 | ||
| 取扱い物件情報 | 物件詳細へ | ||
※各種情報と現状に差異がある場合は、現状優先となります。問い合わせをすることで、より詳しい条件、情報を確認する事ができます。
提供:(株)生活プロデュース管理部(SUUMO経由)
この物件が気になったら掲載期限まであと11日
デザイナーズAP・68B棟に条件(家賃・エリア)が近い物件一覧
| 写真 | 家賃 管理費等 | 敷金 礼金 | 間取り 専有面積 | 築年数 | 最寄り駅 所在地 | キープ | 詳細 |
|---|---|---|---|---|---|---|---|
マンション レジデンス5条(3LDK/8階) | |||||||
![]() | 5.7万円 2,000円 | なし なし | 3LDK 68.5m2 | 築44年 | JR函館本線 旭川駅 徒歩13分 JR宗谷本線 旭川四条駅 徒歩20分 北海道旭川市五条通 | 詳細を見る | |
アパート CACAO (2LDK/2階) | |||||||
![]() | 3.4万円 2,000円 | 3.4万円 なし | 2LDK 52.65m2 | 築43年 | 函館本線 近文駅 徒歩24分 北海道旭川市錦町14丁目 | 詳細を見る | |
アパート JR宗谷本線 旭川四条駅 徒歩37分 築49年(2LDK/1階) | |||||||
![]() | 4万円 なし | なし なし | 2LDK 53m2 | 築49年 | JR宗谷本線 旭川四条駅 徒歩37分 JR石北本線 旭川四条駅 徒歩37分 北海道旭川市豊岡一条 | 詳細を見る | |
アパート ウラキハイツB(2LDK/2階) | |||||||
![]() | 4.5万円 なし | 4.5万円 なし | 2LDK 48.19m2 | 築33年 | 函館本線 近文駅 徒歩29分 北海道旭川市緑町20丁目 | 詳細を見る | |
アパート イースト1・3(1LDK/1階) | |||||||
![]() | 3.5万円 なし | 3.5万円 なし | 1LDK 34.02m2 | 築33年 | JR宗谷本線 新旭川駅 徒歩17分 JR宗谷本線 旭川四条駅 徒歩31分 JR函館本線 旭川駅 徒歩34分 北海道旭川市東一条 | 詳細を見る | |
アパート コルドバA棟(1DK/2階) | |||||||
![]() | 3万円 なし | なし なし | 1DK 25.92m2 | 築36年 | 石北本線 新旭川駅 徒歩40分 北海道旭川市花咲町7丁目 | 詳細を見る | |
アパート シルク近文(ワンルーム/2階) | |||||||
![]() | 3万円 2,000円 | 3万円 なし | ワンルーム 22.27m2 | 築20年 | 函館本線 近文駅 徒歩20分 北海道旭川市近文町16丁目 | 詳細を見る | |
アパート オデッセイ(1LDK/1階) | |||||||
![]() | 4.9万円 3,000円 | なし なし | 1LDK 47.92m2 | 築10年 | 函館本線 旭川駅 徒歩28分 北海道旭川市曙北二条7丁目 | 詳細を見る | |









