賃貸マンション
エバーライフ平成東の賃貸物件情報(3LDK/2階)
| 家賃 | 管理費等 | 敷金 | 礼金 | 間取り | 専有面積 |
|---|---|---|---|---|---|
| 12万円 | 1万円 | 24万円 | 12万円 | 3LDK | 72.26m2 |
入居決定でお祝い金最大100,000円
- 保証金
- -
- 償却・敷引
- -
- 築年数
- 築22年
- 所在階
- 2階
- 向き
- 東
Point
インターネット使用料無料☆駐車場一台無料♪
提供:(有)住まいのオオツ(SUUMO経由)

詳細情報 エバーライフ平成東
物件紹介
エバーライフ平成東はJR豊肥本線平成駅から徒歩16分にあるマンションです。
このお部屋は2階以上に位置しているので通行人や周囲の住人からの視線が気になりにくく、建物のエントランスはオートロックがついているので防犯性が高くなっています。
フローリングのお部屋なのでお掃除もラクラク。キッチンはシステムキッチン仕様になっていますので、お料理好きの方にもぴったり。バス・トイレは別なので、のんびりお風呂タイムも楽しめるでしょう。また、雨の日でも浴室乾燥機を使えば、お洗濯も問題ありません。
通信設備面では、インターネットが無料で使えるので、月々の出費を抑えられるのも魅力です(別途工事等が必要な場合あり)。
建物にはエレベーターがついているので、重い荷物があっても安心。共用部には宅配ボックスが設定されているので、不在の時にも荷物を受け取ることができます。また、ペット飼育の相談ができますので、あなたの大切な家族の一員も快適に暮らせるか、ぜひ確認してみてください。
このお部屋は2階以上に位置しているので通行人や周囲の住人からの視線が気になりにくく、建物のエントランスはオートロックがついているので防犯性が高くなっています。
フローリングのお部屋なのでお掃除もラクラク。キッチンはシステムキッチン仕様になっていますので、お料理好きの方にもぴったり。バス・トイレは別なので、のんびりお風呂タイムも楽しめるでしょう。また、雨の日でも浴室乾燥機を使えば、お洗濯も問題ありません。
通信設備面では、インターネットが無料で使えるので、月々の出費を抑えられるのも魅力です(別途工事等が必要な場合あり)。
建物にはエレベーターがついているので、重い荷物があっても安心。共用部には宅配ボックスが設定されているので、不在の時にも荷物を受け取ることができます。また、ペット飼育の相談ができますので、あなたの大切な家族の一員も快適に暮らせるか、ぜひ確認してみてください。
お金・契約の情報
※「-」と表示されているものは、実際は料金が発生するものもございます。詳細はお問い合わせください。
| 家賃 | 12万円 | 管理費・共益費 | 1万円 |
|---|---|---|---|
| 敷金 | 24万円 | 礼金 | 12万円 |
| 入居決定でお祝い金最大100,000円 | |||
| 保証金 | - | 償却・敷引 | - |
| 住宅保険料 | - | 更新料 | - |
| 保証会社利用 | 必須 | 保証会社名 | - |
| 保証会社費用 | - | 保証会社備考 | 保証会社利用必 アルファー・総賃料の50%~ |
| 契約形態 | - | 契約期間 | - |
| 入居・引渡期間 | 即時 | 現況 | - |
| 入居可能条件 | ペット相談 | ||
| 契約備考 | セブンイレブン熊本萩原町店まで428m/ディスカウントドラッグコスモスまで84m/巡回管理 鍵交換費用16500円 3LDK ペット相談 損保【2万円2年】 バストイレ別、バルコニー、クロゼット、フローリング、浴室乾燥機、オートロック、室内洗濯置、シューズボックス、システムキッチン、追焚機能浴室、温水洗浄便座、エレベーター、洗面所独立、駐輪場、宅配ボックス、外壁タイル張り、即入居可、閑静な住宅地、3口以上コンロ、対面式キッチン、ペット相談、分譲賃貸、グリル付、保証人不要、エアコン2台、ディンプルキー、ネット使用料不要、敷地内ごみ置き場、平面駐車場、日勤管理、LDK12畳以上、和室 | ||
部屋の情報
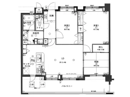
| 間取り | 3LDK | 専有面積 | 72.26m2 |
|---|---|---|---|
| 所在階 / 向き | 2階 / 東 | バルコニー面積 | - |
| 水道 / ガス | - | ||
| 設備 | バス・トイレ別、2階以上、オートロック、宅配ボックス、浴室乾燥機、追い焚き、インターネット対応、システムキッチン、エアコン、エレベーター、温水洗浄便座、バルコニー、フローリング、洗髪洗面化粧台、2口コンロ、インターネット使用料無料、洗濯機:室内 | ||
| 当社物件ID | 160109643 | ||
建物の情報
| 建物名 | エバーライフ平成東 | ||
|---|---|---|---|
| 所在地 | 熊本県熊本市南区田迎 | ||
| 交通 | JR豊肥本線 平成駅 徒歩16分 JR豊肥本線 南熊本駅 徒歩16分 熊本市電健軍線 河原町駅(熊本) 徒歩34分 | ||
| 階数 | 9階建 | 総戸数 | - |
| 築年月 | 2004年10月 / 築22年 | エレベーター | あり |
| 駐車場 | 空有 平置屋根付駐 | バイク置き場 | - |
| 駐輪場 | あり | 管理人/管理会社 | - |
| 周辺環境 | その他 セブンイレブン熊本萩原町店(コンビニ)まで428m その他 ディスカウントドラッグコスモス田迎店(ドラッグストア)まで84m その他 熊本出仲間郵便局(郵便局)まで609m その他 肥後銀行浜線支店(銀行)まで864m | ||
| 建物種別 | マンション | 建物構造 | RC(鉄筋コンクリート) |
この部屋の取扱い不動産会社
| 会社名 | (有)住まいのオオツ(SUUMO経由) | ||
|---|---|---|---|
| 所在地 | 熊本県熊本市中央区上水前寺2-1-43 | 交通 | - |
| 営業時間 | - | 定休日 | - |
| 免許番号 | 熊本県知事4159 | 取引態様 | 仲介 |
| 不動産会社管理番号 | 100479848566 | 当社管理番号 | 89 |
| 所属団体 | (公社)熊本県宅地建物取引業協会会員 | ||
| 公正取引協議会 | (一社)九州不動産公正取引協議会加盟 | ||
| 取扱い物件情報 | 物件詳細へ | ||
※各種情報と現状に差異がある場合は、現状優先となります。問い合わせをすることで、より詳しい条件、情報を確認する事ができます。
提供:(有)住まいのオオツ(SUUMO経由)
この物件が気になったら掲載期限まであと10日
エバーライフ平成東に条件(家賃・エリア)が近い物件一覧
| 写真 | 家賃 管理費等 | 敷金 礼金 | 間取り 専有面積 | 築年数 | 最寄り駅 所在地 | キープ | 詳細 |
|---|---|---|---|---|---|---|---|
マンション LH5101 KUHONJI(1LDK/2階) | |||||||
![]() | 12.3万円 9,000円 | なし 24.6万円 | 1LDK 60.76m2 | 築4年 | JR豊肥本線 南熊本駅 徒歩12分 熊本市電健軍線 交通局前駅(熊本) 徒歩16分 JR豊肥本線 新水前寺駅 徒歩17分 熊本県熊本市中央区九品寺 | 詳細を見る | |
マンション DEUXリジエール(1LDK/2階) | |||||||
![]() | 8.5万円 8,000円 | なし 17万円 | 1LDK 48m2 | 築1年 | JR豊肥本線 南熊本駅 徒歩20分 JR豊肥本線 平成駅 徒歩26分 JR豊肥本線 新水前寺駅 徒歩29分 熊本県熊本市南区田迎 | 詳細を見る | |
マンション 香梅マンション菅(3LDK/2階) | |||||||
![]() | 8.5万円 なし | なし 17万円 | 3LDK 67.2m2 | 築30年 | JR豊肥本線 新水前寺駅 徒歩12分 JR豊肥本線 南熊本駅 徒歩14分 熊本市電健軍線 新水前寺駅前駅 徒歩14分 熊本県熊本市中央区菅原町 | 詳細を見る | |
マンション TAMUKAE SIX(2LDK/9階) | |||||||
![]() | 8.5万円 4,000円 | 8.5万円 なし | 2LDK 58.5m2 | 築7年 | JR豊肥本線 南熊本駅 徒歩21分 熊本県熊本市南区田迎 | 詳細を見る | |
アパート グランドパレス田迎小前(2LDK/3階) | |||||||
![]() | 10.8万円 8,500円 | なし 10.8万円 | 2LDK 59.49m2 | 築1年 | JR豊肥本線 南熊本駅 徒歩32分 JR豊肥本線 平成駅 徒歩34分 熊本県熊本市南区出仲間 | 詳細を見る | |
アパート ルシール(2LDK/1階) | |||||||
![]() | 7.35万円 2,500円 | なし 7.35万円 | 2LDK 53.62m2 | 新築 | JR鹿児島本線 西熊本駅 徒歩25分 熊本県熊本市南区土河原町 | 詳細を見る | |
アパート ラフィネイオス (2LDK/1階) | |||||||
![]() | 7.2万円 4,000円 | なし 14.4万円 | 2LDK 54.78m2 | 築16年 | JR豊肥本線 南熊本駅 徒歩37分 熊本県熊本市南区 | 詳細を見る | |
マンション アーバニスト本山(2LDK/6階) | |||||||
![]() | 8.4万円 4,500円 | 12.6万円 なし | 2LDK 58.46m2 | 築18年 | JR豊肥本線 平成駅 徒歩5分 熊本県熊本市中央区本山町 | 詳細を見る | |
熊本市南区の町名から探す
熊本市南区の部屋を間取りから探す
熊本市南区の駅から探す
熊本市南区と隣接している市区町村から探す
- 熊本市南区(1,589)








