賃貸マンション
京都市烏丸線 丸太町駅(京都市営) 徒歩4分 5階建 築13年の賃貸物件情報(1LDK/4階)
| 家賃 | 管理費等 | 敷金 | 礼金 | 間取り | 専有面積 |
|---|---|---|---|---|---|
| 13.5万円 | 7,000円 | 13.5万円 | 27万円 | 1LDK | 48.2m2 |
入居決定でお祝い金最大100,000円
- 保証金
- -
- 償却・敷引
- -
- 築年数
- 築13年
- 所在階
- 4階
- 向き
- 西
- 交通
- 京都市烏丸線 丸太町駅(京都市営) 徒歩4分
京都市烏丸線 烏丸御池駅 徒歩6分
- 所在地
- 京都府京都市中京区壺屋町
[地図を表示]
Point
烏丸御池に登場 利便性と環境の良さを兼ね備えた物件
提供:株式会社 京都ライフ 河原町四条店(賃貸スモッカ経由)

詳細情報 京都市烏丸線 丸太町駅(京都市営) 徒歩4分 5階建 築13年
物件紹介
京都市烏丸線丸太町駅から徒歩4分にあり、駅近で通勤通学に便利なマンションです。
このお部屋は2階以上に位置しているので通行人や周囲の住人からの視線が気になりにくく、建物のエントランスはオートロックがついているので防犯性が高くなっています。
人気の角部屋で周囲の居住者の生活音も気になりにくく、また、フローリングのお部屋なのでお掃除もラクラク。バス・トイレ別の仕様で、のんびりお風呂タイムも楽しめます。また、浴室乾燥機を使えば、雨の日でもお洗濯は問題ありません。
建物にはエレベーターがついているので、重い荷物があっても安心。
このお部屋は2階以上に位置しているので通行人や周囲の住人からの視線が気になりにくく、建物のエントランスはオートロックがついているので防犯性が高くなっています。
人気の角部屋で周囲の居住者の生活音も気になりにくく、また、フローリングのお部屋なのでお掃除もラクラク。バス・トイレ別の仕様で、のんびりお風呂タイムも楽しめます。また、浴室乾燥機を使えば、雨の日でもお洗濯は問題ありません。
建物にはエレベーターがついているので、重い荷物があっても安心。
お金・契約の情報
※「-」と表示されているものは、実際は料金が発生するものもございます。詳細はお問い合わせください。
| 家賃 | 13.5万円 | 管理費・共益費 | 7,000円 |
|---|---|---|---|
| 敷金 | 13.5万円 | 礼金 | 27万円 |
| 入居決定でお祝い金最大100,000円 | |||
| 保証金 | - | 償却・敷引 | - |
| 住宅保険料 | 住宅保険料あり | 更新料 | - |
| 契約形態 | - | 契約期間 | 2年 |
| 入居・引渡期間 | 即時 | 現況 | 空室 |
| 契約備考 | 2014年2月完成の築浅1LDKマンションです。地下鉄丸太町駅まで徒歩4分。阪急、地下鉄のダブルアクセス。更新料ナシです。嬉しい3点セパレートに浴室乾燥機、追い焚き機能付浴室、温水洗浄便座など充実の設備。オートロックでセキュリティも安心です。コンビニ、スーパーなど近くにあって便利ですよ。 更新料:1ヶ月 その他設備/条件:コンロ2口以上、独立洗面台、即入居可 | ||
部屋の情報
| 間取り | 1LDK | 専有面積 | 48.2m2 |
|---|---|---|---|
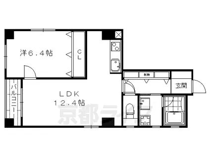
| 間取り詳細 | 洋室(6.4帖)、LDK(12.4帖) | ||
| 所在階 / 向き | 4階 / 西 | バルコニー面積 | - |
| 水道 / ガス | ガス【都市】 | ||
| 設備 | バス・トイレ別、2階以上、オートロック、浴室乾燥機、追い焚き、エアコン、エレベーター、温水洗浄便座、角部屋、バルコニー、フローリング、コンロ:IH、洗濯機:室内 | ||
| 当社物件ID | 160582645 | ||
建物の情報
| 建物名 | 京都市烏丸線 丸太町駅(京都市営) 徒歩4分 5階建 築13年 | ||
|---|---|---|---|
| 所在地 | 京都府京都市中京区壺屋町 | ||
| 交通 | 京都市烏丸線 丸太町駅(京都市営) 徒歩4分 京都市烏丸線 烏丸御池駅 徒歩6分 | ||
| 階数 | 5階建 | 総戸数 | - |
| 築年月 | 2014年02月 / 築13年 | エレベーター | あり |
| 駐車場 | - | バイク置き場 | - |
| 駐輪場 | あり | 管理人/管理会社 | - |
| 建物種別 | マンション | 建物構造 | RC(鉄筋コンクリート) |
この部屋の取扱い不動産会社
| 会社名 | 株式会社 京都ライフ 河原町四条店(賃貸スモッカ経由) | ||
|---|---|---|---|
| 所在地 | 京都市中京区河原町通三条下る三丁目奈良屋町291-2 Wise core BLD.1階 | 交通 | - |
| 営業時間 | - | 定休日 | - |
| 免許番号 | 京都府知事(11)第6353号 | 取引態様 | 仲介 |
| 不動産会社管理番号 | kyotolife_58864-401-26 | 当社管理番号 | 463 |
| 所属団体 | 京都府宅地建物取引業協会\n公益社団法人近畿地区不動産公正取引協議会 | ||
| 公正取引協議会 | 全国宅地建物取引業保証協会 | ||
| 取扱い物件情報 | 物件詳細へ | ||
※各種情報と現状に差異がある場合は、現状優先となります。問い合わせをすることで、より詳しい条件、情報を確認する事ができます。
提供:株式会社 京都ライフ 河原町四条店(賃貸スモッカ経由)
この物件が気になったら掲載期限まであと6日
京都市烏丸線 丸太町駅(京都市営) 徒歩4分 5階建 築13年に条件(家賃・エリア)が近い物件一覧
| 写真 | 家賃 管理費等 | 敷金 礼金 | 間取り 専有面積 | 築年数 | 最寄り駅 所在地 | キープ | 詳細 |
|---|---|---|---|---|---|---|---|
マンション リーガル京都二条城前(1LDK/2階) | |||||||
![]() | 11.8万円 1.157万円 | なし 15万円 | 1LDK 42.56m2 | 築5年 | 地下鉄東西線 二条城前駅 徒歩1分 JR山陰本線 二条駅 徒歩12分 京福電鉄嵐山本線 四条大宮駅 徒歩12分 京都府京都市中京区織物屋町 | 詳細を見る | |
マンション 京都市烏丸線 丸太町駅(京都市営) 徒歩3分 築9年(1DK/1階) | |||||||
![]() | 10万円 6,000円 | 3万円 20万円 | 1DK 36.3m2 | 築9年 | 京都市烏丸線 丸太町駅(京都市営) 徒歩3分 京都市烏丸線 烏丸御池駅 徒歩8分 京都府京都市中京区鏡屋町 | 詳細を見る | |
マンション ヴィラスタジオーネ御所南(1LDK/3階) | |||||||
![]() | 18万円 1.2万円 | なし 36万円 | 1LDK 58.05m2 | 築10年 | 京都市東西線 京都市役所前駅 徒歩6分 京都市烏丸線 烏丸御池駅 徒歩9分 京都府京都市中京区橘町 | 詳細を見る | |
アパート 阪急電鉄京都線 西院駅(阪急) 徒歩6分 築5年(1LDK/1階) | |||||||
![]() | 10.2万円 5,000円 | 3万円 28万円 | 1LDK 42.68m2 | 築5年 | 阪急電鉄京都線 西院駅(阪急) 徒歩6分 京都市東西線 西大路御池駅 徒歩13分 京都府京都市中京区壬生東淵田町 | 詳細を見る | |
マンション 京都市烏丸線 烏丸御池駅 徒歩7分 築38年(1LDK/4階) | |||||||
![]() | 11万円 1万円 | 11万円 22万円 | 1LDK 54.08m2 | 築38年 | 京都市烏丸線 烏丸御池駅 徒歩7分 京都市烏丸線 四条駅(京都市営) 徒歩10分 京都府京都市中京区塩屋町 | 詳細を見る | |
マンション 阪急電鉄京都線 大宮駅(京都) 徒歩7分 築19年(2LDK/5階) | |||||||
![]() | 15.1万円 8,000円 | 15.1万円 15.1万円 | 2LDK 51.71m2 | 築19年 | 阪急電鉄京都線 大宮駅(京都) 徒歩7分 阪急電鉄京都線 西院駅(阪急) 徒歩14分 京都府京都市中京区壬生相合町 | 詳細を見る | |
マンション 阪急電鉄京都線 大宮駅(京都) 徒歩8分 築19年(2LDK/7階) | |||||||
![]() | 15.7万円 1万円 | 15.7万円 15.7万円 | 2LDK 54.7m2 | 築19年 | 阪急電鉄京都線 大宮駅(京都) 徒歩8分 京都市烏丸線 四条駅(京都市営) 徒歩13分 京都府京都市中京区壺屋町 | 詳細を見る | |
アパート 阪急電鉄京都線 西山天王山駅 徒歩10分 築1年(1LDK/2階) | |||||||
![]() | 8.2万円 5,000円 | なし 8.2万円 | 1LDK 34.78m2 | 築1年 | 阪急電鉄京都線 西山天王山駅 徒歩10分 東海道本線 長岡京駅 徒歩22分 京都府長岡京市調子1丁目 | 詳細を見る | |









