賃貸マンション
日本橋センチュリープラザの賃貸物件情報(ワンルーム/8階)
| 家賃 | 管理費等 | 敷金 | 礼金 | 間取り | 専有面積 |
|---|---|---|---|---|---|
| 9万円 | なし | 9万円 | 9万円 | ワンルーム | 30.94m2 |
入居決定でお祝い金最大100,000円
- 保証金
- -
- 償却・敷引
- 9万円
- 築年数
- 築42年
- 所在階
- 8階
- 向き
- 南東
Point
◆エリア成約数No.1!Google口コミ数&評価No.1!◆当社グループ引越業者での荷造り5時間無料サービス有◆ご成約者様限定で毎月抽選でディズニーペアチケットプレゼント中◆購入・売却もお任せ!◆
提供:みんなのへや八丁堀駅前店(株)Lotus Link(SUUMO経由)

詳細情報 日本橋センチュリープラザ
物件紹介
日本橋センチュリープラザは東京メトロ日比谷線人形町駅から徒歩1分にあり、駅近で通勤通学に便利なマンションです。
このお部屋は2階以上に位置しているので、通行人や周囲の住人からの視線が気になりにくく、防犯面でも安心。建物のエントランスはオートロックがついており、インターホンにはTVモニタもついているため、相手の顔を確認してから来客対応することができます。
人気の南向き・フローリングのお部屋。角部屋でもあるため、周囲の居住者の生活音も気になりにくい場所です。キッチンはシステムキッチン仕様になっていますので、お料理好きの方にもぴったり。また、浴室乾燥機付きで、雨の日でもお洗濯は問題ありません。
通信設備面では、インターネット接続が可能です(別途工事、契約料が必要な場合あり)。
建物にはエレベーターがついているので、重い荷物があっても安心。
このお部屋は2階以上に位置しているので、通行人や周囲の住人からの視線が気になりにくく、防犯面でも安心。建物のエントランスはオートロックがついており、インターホンにはTVモニタもついているため、相手の顔を確認してから来客対応することができます。
人気の南向き・フローリングのお部屋。角部屋でもあるため、周囲の居住者の生活音も気になりにくい場所です。キッチンはシステムキッチン仕様になっていますので、お料理好きの方にもぴったり。また、浴室乾燥機付きで、雨の日でもお洗濯は問題ありません。
通信設備面では、インターネット接続が可能です(別途工事、契約料が必要な場合あり)。
建物にはエレベーターがついているので、重い荷物があっても安心。
お金・契約の情報
※「-」と表示されているものは、実際は料金が発生するものもございます。詳細はお問い合わせください。
| 家賃 | 9万円 | 管理費・共益費 | なし |
|---|---|---|---|
| 敷金 | 9万円 | 礼金 | 9万円 |
| 入居決定でお祝い金最大100,000円 | |||
| 保証金 | - | 償却・敷引 | 9万円 |
| 住宅保険料 | - | 更新料 | - |
| 保証会社利用 | 必須 | 保証会社名 | - |
| 保証会社費用 | - | 保証会社備考 | 保証会社利用必 契約時相家賃の50%+月次保証料総家賃の1.5%借主負担有 |
| 契約形態 | - | 契約期間 | - |
| 入居・引渡期間 | 即時 | 現況 | - |
| 入居可能条件 | 事務所可 | ||
| 契約備考 | ◆事務所利用の場合、原則は家賃1ヶ月・敷金3ヶ月・償却2ヶ月へ変更◆本物件の諸条件、その他ご質問は、迅速対応可能なお電話でのお問い合わせがおすすめです(通話料無料)※メールでのお問い合わせの際は電話番号を記載して頂きますとスムーズなご案内が可能です◆住宅ローンや資金計画の無料相談も承ります! 合計4.15万円(内訳:コールセンター代(初回のみ)1.65万円鍵交換代2.5万円) 更新料 新賃料1.00ヶ月分 ワンルーム 事務所利用相談 普通借家2年 損保【2万円2年】 バルコニー、エアコン、ガスコンロ対応、フローリング、TVインターホン、浴室乾燥機、オートロック、室内洗濯置、陽当り良好、シューズボックス、システムキッチン、角住戸、温水洗浄便座、エレベーター、洗面所独立、駐輪場、即入居可、2面採光、防犯カメラ、照明付、分譲賃貸、グリル付、全居室洋室、全居室フローリング、ガスレンジ付、2沿線利用可、ネット専用回線、エアコン全室、保証金不要、事務所相談、24時間換気システム、耐震構造、2駅利用可、3駅以上利用可、3沿線以上利用可、駅徒歩5分以内、駅徒歩10分以内、東南向き、寝室8畳以上、寝室10畳以上、全居室6畳以上、全居室8畳以上、都市ガス、保証会社利用可、通風良好 | ||
部屋の情報
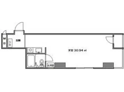
| 間取り | ワンルーム | 専有面積 | 30.94m2 |
|---|---|---|---|
| 所在階 / 向き | 8階 / 南東 | バルコニー面積 | - |
| 水道 / ガス | - | ||
| 設備 | 2階以上、オートロック、テレビドアホン、浴室乾燥機、インターネット対応、システムキッチン、エアコン、エレベーター、温水洗浄便座、南向き、角部屋、バルコニー、フローリング、洗髪洗面化粧台、コンロ:ガス、洗濯機:室内 | ||
| 当社物件ID | 124079919 | ||
建物の情報
| 建物名 | 日本橋センチュリープラザ | ||
|---|---|---|---|
| 所在地 | 東京都中央区日本橋人形町 | ||
| 交通 | 東京メトロ日比谷線 人形町駅 徒歩1分 東京メトロ半蔵門線 水天宮前駅 徒歩4分 東京メトロ銀座線 三越前駅 徒歩8分 | ||
| 階数 | 12階建 | 総戸数 | - |
| 築年月 | 1984年04月 / 築42年 | エレベーター | あり |
| 駐車場 | なし | バイク置き場 | - |
| 駐輪場 | あり | 管理人/管理会社 | - |
| 周辺環境 | その他 中央警察署 東京証券取引所警備派出所(警察署・交番)まで539m その他 まいばすけっと 日本橋小網町店(スーパー)まで252m その他 セブンイレブン 人形町駅西店(コンビニ)まで102m その他 どらっぐぱぱす 新人形町店(ドラッグストア)まで244m その他 スギ薬局 江戸橋店(ドラッグストア)まで287m その他 堀留児童公園(公園)まで183m | ||
| 建物種別 | マンション | 建物構造 | SRC(鉄骨鉄筋コンクリート) |
この部屋の取扱い不動産会社
| 会社名 | みんなのへや新橋店(株)Lotus Link(SUUMO経由) | ||
|---|---|---|---|
| 所在地 | 東京都港区新橋2-16-1 ニュー新橋ビル5階 | 交通 | - |
| 営業時間 | 9:30~18:30※営業時間外もご相談ください | 定休日 | 年中無休 |
| 免許番号 | 東京都知事96398 | 取引態様 | 仲介 |
| 不動産会社管理番号 | 100485942447 | 当社管理番号 | 89 |
| 所属団体 | (公社)全日本不動産協会東京都本部会員 | ||
| 公正取引協議会 | (公社)首都圏不動産公正取引協議会加盟 | ||
| 取扱い物件情報 | 物件詳細へ | ||
※各種情報と現状に差異がある場合は、現状優先となります。問い合わせをすることで、より詳しい条件、情報を確認する事ができます。
提供:みんなのへや新橋店(株)Lotus Link(SUUMO経由)
この物件が気になったら掲載期限まであと10日
日本橋センチュリープラザに条件(家賃・エリア)が近い物件一覧
| 写真 | 家賃 管理費等 | 敷金 礼金 | 間取り 専有面積 | 築年数 | 最寄り駅 所在地 | キープ | 詳細 |
|---|---|---|---|---|---|---|---|
マンション パスィフィーク(1K/4階) | |||||||
![]() | 7.9万円 6,000円 | 7.9万円 7.9万円 | 1K 30.19m2 | 築19年 | 東武鉄道亀戸線 小村井駅 徒歩9分 総武・中央緩行線 平井駅(東京) 徒歩16分 京成電鉄押上線 京成曳舟駅 徒歩20分 東京都墨田区立花5丁目 | 詳細を見る | |
マンション プラム二長町(1K/3階) | |||||||
![]() | 10.4万円 5,000円 | なし 20.8万円 | 1K 22.08m2 | 築7年 | 山手線 秋葉原駅 徒歩8分 総武・中央緩行線 浅草橋駅 徒歩10分 東京都大江戸線 新御徒町駅 徒歩11分 東京都台東区台東1丁目 | 詳細を見る | |
マンション ベルファース錦糸町サウス(1DK/6階) | |||||||
![]() | 14.2万円 1万円 | 14.2万円 なし | 1DK 25.12m2 | 築3年 | 総武本線 錦糸町駅 徒歩8分 東京地下鉄半蔵門線 錦糸町駅 徒歩8分 東京都墨田区江東橋1丁目 | 詳細を見る | |
マンション ソル・レヴェンテ浅草橋(1K/2階) | |||||||
![]() | 9.3万円 4,000円 | 9.3万円 9.3万円 | 1K 20.43m2 | 築22年 | 総武・中央緩行線 浅草橋駅 徒歩8分 山手線 秋葉原駅 徒歩10分 東京都大江戸線 新御徒町駅 徒歩12分 東京都台東区浅草橋5丁目 | 詳細を見る | |
マンション パークアクシス御徒町(ワンルーム/12階) | |||||||
![]() | 13.3万円 8,000円 | 13.3万円 13.3万円 | ワンルーム 30.28m2 | 築21年 | 東京都大江戸線 新御徒町駅 徒歩6分 京浜東北・根岸線 御徒町駅 徒歩11分 山手線 秋葉原駅 徒歩13分 東京都台東区台東2丁目 | 詳細を見る | |
マンション スカイコート神田須田町(1K/4階) | |||||||
![]() | 9.8万円 1万円 | 9.8万円 9.8万円 | 1K 22.99m2 | 築22年 | 都営新宿線 岩本町駅 徒歩1分 JR山手線 秋葉原駅 徒歩3分 JR山手線 神田駅(東京) 徒歩8分 東京都千代田区神田須田町 | 詳細を見る | |
マンション GENOVIA本所吾妻橋III(ワンルーム/10階) | |||||||
![]() | 11.8万円 1万円 | なし なし | ワンルーム 26.04m2 | 築3年 | 都営浅草線 本所吾妻橋駅 徒歩11分 都営大江戸線 両国駅 徒歩13分 JR総武線 錦糸町駅 徒歩15分 東京都墨田区石原 | 詳細を見る | |
マンション ライオンズ浅草橋ミレス(ワンルーム/6階) | |||||||
![]() | 11.5万円 5,000円 | 11.5万円 11.5万円 | ワンルーム 25.3m2 | 築8年 | 東京都大江戸線 新御徒町駅 徒歩8分 総武・中央緩行線 浅草橋駅 徒歩9分 東京都浅草線 蔵前駅 徒歩9分 東京都台東区鳥越1丁目 | 詳細を見る | |








