賃貸アパート
京阪電気鉄道京阪線 龍谷大前深草駅 徒歩6分 2階建 築32年の賃貸物件情報(2LDK/1階)
| 家賃 | 管理費等 | 敷金 | 礼金 | 間取り | 専有面積 |
|---|---|---|---|---|---|
| 7.7万円 | 3,000円 | なし | なし | 2LDK | 50.4m2 |
入居決定でお祝い金最大100,000円
Point
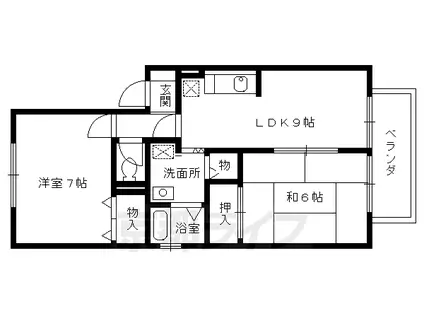
大型スーパーが近所 寝室になる洋室7帖が広い 室内設備も充実、大型スーパーも近所
提供:株式会社 京都ライフ 小倉店(賃貸スモッカ経由)

詳細情報 京阪電気鉄道京阪線 龍谷大前深草駅 徒歩6分 2階建 築32年
物件紹介
京阪電気鉄道京阪線龍谷大前深草駅から徒歩6分にあり、駅近で通勤通学に便利なアパートです。
キッチンはシステムキッチン仕様になっていますので、お料理好きの方にもぴったり。また、バス・トイレは別で、のんびりお風呂タイムも楽しめるでしょう。
通信設備面では、インターネット接続が可能です。また、BSアンテナ・CSアンテナもありますので、おうち時間も充実するでしょう(別途工事、契約料が必要な場合あり)。
キッチンはシステムキッチン仕様になっていますので、お料理好きの方にもぴったり。また、バス・トイレは別で、のんびりお風呂タイムも楽しめるでしょう。
通信設備面では、インターネット接続が可能です。また、BSアンテナ・CSアンテナもありますので、おうち時間も充実するでしょう(別途工事、契約料が必要な場合あり)。
お金・契約の情報
※「-」と表示されているものは、実際は料金が発生するものもございます。詳細はお問い合わせください。
| 家賃 | 7.7万円 | 管理費・共益費 | 3,000円 |
|---|---|---|---|
| 敷金 | なし | 礼金 | なし |
| 入居決定でお祝い金最大100,000円 | |||
| 保証金 | - | 償却・敷引 | - |
| 住宅保険料 | 住宅保険料あり | 更新料 | - |
| 契約形態 | - | 契約期間 | 2年 |
| 入居・引渡期間 | 2026年06月中旬 | 現況 | 賃貸中 |
| 契約備考 | 京阪深草エリアからオススメ2LDKのご紹介。寝室になる洋室7帖が広い 室内設備も充実、大型スーパーも近所。住環境も良くオススメです 書類代:10,000円 更新料:無し 保証会社:利用必須 初回:月額賃料等の50%、月額:システム利用料330円、更新時:1万円/1年 その他設備/条件:1階の物件、コンロ2口以上 | ||
部屋の情報
| 間取り | 2LDK | 専有面積 | 50.4m2 |
|---|---|---|---|
| 間取り詳細 | 洋室(7帖)、和室(6帖)、LDK(9帖) | ||
| 所在階 / 向き | 1階 / 東 | バルコニー面積 | - |
| 水道 / ガス | ガス【都市】 | ||
| 設備 | バス・トイレ別、インターネット対応、システムキッチン、バルコニー、コンロ:ガス、CSアンテナ、BSアンテナ、洗濯機:室内 | ||
| 当社物件ID | 160759951 | ||
建物の情報
| 建物名 | 京阪電気鉄道京阪線 龍谷大前深草駅 徒歩6分 2階建 築32年 | ||
|---|---|---|---|
| 所在地 | 京都府京都市伏見区深草綿森町 | ||
| 交通 | 京阪電気鉄道京阪線 龍谷大前深草駅 徒歩6分 京阪電気鉄道京阪線 藤森駅 徒歩7分 | ||
| 階数 | 2階建 | 総戸数 | - |
| 築年月 | 1994年08月 / 築32年 | エレベーター | - |
| 駐車場 | - | バイク置き場 | - |
| 駐輪場 | あり | 管理人/管理会社 | - |
| 建物種別 | アパート | 建物構造 | 軽量鉄骨造 |
この部屋の取扱い不動産会社
| 会社名 | 株式会社 京都ライフ 小倉店(賃貸スモッカ経由) | ||
|---|---|---|---|
| 所在地 | 宇治市小倉町神楽田21-5 | 交通 | - |
| 営業時間 | - | 定休日 | - |
| 免許番号 | 京都府知事(11)第6353号 | 取引態様 | 仲介 |
| 不動産会社管理番号 | kyotolife_12629-102-11 | 当社管理番号 | 463 |
| 所属団体 | 京都府宅地建物取引業協会\n公益社団法人近畿地区不動産公正取引協議会 | ||
| 公正取引協議会 | 全国宅地建物取引業保証協会 | ||
| 取扱い物件情報 | 物件詳細へ | ||
※各種情報と現状に差異がある場合は、現状優先となります。問い合わせをすることで、より詳しい条件、情報を確認する事ができます。
提供:株式会社 京都ライフ 小倉店(賃貸スモッカ経由)
この物件が気になったら掲載期限まであと6日
京阪電気鉄道京阪線 龍谷大前深草駅 徒歩6分 2階建 築32年に条件(家賃・エリア)が近い物件一覧
| 写真 | 家賃 管理費等 | 敷金 礼金 | 間取り 専有面積 | 築年数 | 最寄り駅 所在地 | キープ | 詳細 |
|---|---|---|---|---|---|---|---|
アパート 東海道本線 長岡京駅 徒歩41分 築23年(1K/1階) | |||||||
![]() | 5.8万円 7,000円 | なし 5.8万円 | 1K 19.87m2 | 築23年 | 東海道本線 長岡京駅 徒歩41分 京阪電気鉄道京阪線 中書島駅 徒歩48分 京都府京都市伏見区羽束師志水町 | 詳細を見る | |
一戸建て 阪急電鉄京都線 長岡天神駅 徒歩9分 築34年(3LDK) | |||||||
![]() | 9万円 なし | 13.5万円 13.5万円 | 3LDK 78.49m2 | 築34年 | 阪急電鉄京都線 長岡天神駅 徒歩9分 阪急電鉄京都線 西向日駅 徒歩29分 京都府長岡京市長岡2丁目 | 詳細を見る | |
一戸建て 京阪電気鉄道宇治線 桃山南口駅 徒歩7分 築46年(3LDK) | |||||||
![]() | 8.5万円 なし | なし 13.3万円 | 3LDK 71.45m2 | 築46年 | 京阪電気鉄道宇治線 桃山南口駅 徒歩7分 奈良線 木幡駅(JR) 徒歩15分 京都市東西線 六地蔵駅(京都市営) 徒歩18分 京都府京都市伏見区桃山町大島 | 詳細を見る | |
アパート 京阪電気鉄道京阪線 中書島駅 徒歩33分 築8年(1LDK/1階) | |||||||
![]() | 7万円 8,000円 | なし 3万円 | 1LDK 41.12m2 | 築8年 | 京阪電気鉄道京阪線 中書島駅 徒歩33分 京阪電気鉄道京阪線 淀駅 徒歩35分 京都府京都市伏見区横大路畑中町 | 詳細を見る | |
アパート 京阪電気鉄道宇治線 黄檗駅(京阪) 徒歩4分 築18年(1K/2階) | |||||||
![]() | 6.5万円 7,000円 | なし 6.5万円 | 1K 22.35m2 | 築18年 | 京阪電気鉄道宇治線 黄檗駅(京阪) 徒歩4分 奈良線 黄檗駅(JR) 徒歩8分 京都府宇治市五ケ庄 | 詳細を見る | |
マンション スクエアメゾン並河A棟(3LDK/3階) | |||||||
![]() | 5.9万円 5,000円 | なし なし | 3LDK 65.68m2 | 築35年 | 山陰本線 並河駅 徒歩9分 山陰本線 亀岡駅 徒歩34分 京都府亀岡市大井町並河1丁目 | 詳細を見る | |
マンション レオパレス三井田(1K/8階) | |||||||
![]() | 9.2万円 7,800円 | なし 9.2万円 | 1K 26m2 | 築18年 | 地下鉄烏丸線 竹田駅(京都) 徒歩8分 近鉄京都線 竹田駅(京都) 徒歩8分 地下鉄烏丸線 くいな橋駅 徒歩20分 京都府京都市伏見区竹田西内畑町 | 詳細を見る | |
アパート 阪急電鉄京都線 西向日駅 徒歩40分 新築(2LDK/2階) | |||||||
![]() | 7.9万円 5,000円 | なし 7.9万円 | 2LDK 49.4m2 | 新築 | 阪急電鉄京都線 西向日駅 徒歩40分 東海道本線 長岡京駅 徒歩50分 京都府京都市伏見区羽束師鴨川町 | 詳細を見る | |









