賃貸アパート
ベルリード北仙台の賃貸物件情報(1LDK/1階)
| 家賃 | 管理費等 | 敷金 | 礼金 | 間取り | 専有面積 |
|---|---|---|---|---|---|
| 11.7万円 | 3,000円 | 11.7万円 | 11.7万円 | 1LDK | 50.92m2 |
入居決定でお祝い金最大100,000円
- 保証金
- -
- 償却・敷引
- -
- 築年数
- 築3年
- 所在階
- 1階
- 向き
- 南
Point
北仙台駅近くの好立地◎オール電化に充実設備◇オートロック付きなので女性も安心◇お気軽にお問い合わせ下さい♪
提供:ピタットハウス南仙台店(株)大介(SUUMO経由)

詳細情報 ベルリード北仙台
物件紹介
ベルリード北仙台は仙台市地下鉄南北線北仙台駅から徒歩4分にあり、駅近で通勤通学に便利なアパートです。
建物のエントランスはオートロックがついており、インターホンにはTVモニタもついているため、相手の顔を確認してから来客対応することができます。
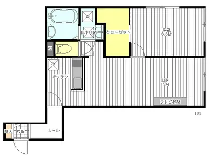
人気の南向き・フローリングのお部屋。角部屋でもあるため、周囲の居住者の生活音も気になりにくい場所です。室内にはウォークインクローゼットがありますので、たくさんの荷物も効率的に収納ができます。キッチンはシステムキッチン仕様になっていますので、お料理好きの方にもぴったり。バス・トイレは別なので、のんびりお風呂タイムも楽しめるでしょう。また、雨の日でも浴室乾燥機を使えば、お洗濯も問題ありません。
通信設備面では、インターネットが無料で使えるので、月々の出費を抑えられるのも魅力です(別途工事等が必要な場合あり)。
共用部には宅配ボックスが設定されているので、不在の時にも荷物を受け取ることができます。
建物のエントランスはオートロックがついており、インターホンにはTVモニタもついているため、相手の顔を確認してから来客対応することができます。
人気の南向き・フローリングのお部屋。角部屋でもあるため、周囲の居住者の生活音も気になりにくい場所です。室内にはウォークインクローゼットがありますので、たくさんの荷物も効率的に収納ができます。キッチンはシステムキッチン仕様になっていますので、お料理好きの方にもぴったり。バス・トイレは別なので、のんびりお風呂タイムも楽しめるでしょう。また、雨の日でも浴室乾燥機を使えば、お洗濯も問題ありません。
通信設備面では、インターネットが無料で使えるので、月々の出費を抑えられるのも魅力です(別途工事等が必要な場合あり)。
共用部には宅配ボックスが設定されているので、不在の時にも荷物を受け取ることができます。
お金・契約の情報
※「-」と表示されているものは、実際は料金が発生するものもございます。詳細はお問い合わせください。
| 家賃 | 11.7万円 | 管理費・共益費 | 3,000円 |
|---|---|---|---|
| 敷金 | 11.7万円 | 礼金 | 11.7万円 |
| 入居決定でお祝い金最大100,000円 | |||
| 保証金 | - | 償却・敷引 | - |
| 住宅保険料 | - | 更新料 | - |
| 保証会社利用 | 必須 | 保証会社名 | - |
| 保証会社費用 | - | 保証会社備考 | 保証会社利用必 初回保証料:家賃総合計の50% |
| 契約形態 | - | 契約期間 | - |
| 入居・引渡期間 | 相談 | 現況 | - |
| 契約備考 | 1LDK 二人入居可 損保【要】 バストイレ別、バルコニー、エアコン、クロゼット、フローリング、シャワー付洗面台、TVインターホン、浴室乾燥機、オートロック、室内洗濯置、シューズボックス、システムキッチン、南向き、追焚機能浴室、温水洗浄便座、洗面所独立、礼金不要、対面式キッチン、IHクッキングヒーター、保証人不要、オール電化、全居室フローリング、2沿線利用可、エアコン2台、駅まで平坦、ネット使用料不要、平坦地、2駅利用可、駅徒歩5分以内、バス停徒歩3分以内、敷地内ごみ置き場、LDK12畳以上、初期費用カード決済可 | ||
部屋の情報
| 間取り | 1LDK | 専有面積 | 50.92m2 |
|---|---|---|---|
| 所在階 / 向き | 1階 / 南 | バルコニー面積 | - |
| 水道 / ガス | - | ||
| 設備 | バス・トイレ別、オートロック、テレビドアホン、浴室乾燥機、追い焚き、インターネット対応、システムキッチン、エアコン、温水洗浄便座、南向き、バルコニー、フローリング、洗髪洗面化粧台、オール電化、コンロ:IH、インターネット使用料無料、洗濯機:室内 | ||
| 当社物件ID | 148670651 | ||
建物の情報
| 建物名 | ベルリード北仙台 | ||
|---|---|---|---|
| 所在地 | 宮城県仙台市青葉区通町 | ||
| 交通 | 仙台市地下鉄南北線 北仙台駅 徒歩4分 JR仙山線 北仙台駅 徒歩4分 仙台市地下鉄南北線 北四番丁駅 徒歩17分 | ||
| 階数 | 2階建 | 総戸数 | - |
| 築年月 | 2023年12月 / 築3年 | エレベーター | - |
| 駐車場 | 空有 17600円 | バイク置き場 | - |
| 駐輪場 | - | 管理人/管理会社 | - |
| 周辺環境 | その他 ツルハドラッグ北仙台駅前店(ドラッグストア)まで236m その他 西友北仙台店(スーパー)まで432m その他 ファミリーマート仙台堤通店(コンビニ)まで417m その他 セブンイレブン仙台通町2丁目店(コンビニ)まで310m その他 イオンモール仙台上杉(ショッピングセンター)まで1274m その他 七十七銀行北仙台支店(銀行)まで471m | ||
| 建物種別 | アパート | 建物構造 | 木造 |
この部屋の取扱い不動産会社
| 会社名 | (株)ベストハウジング(SUUMO経由) | ||
|---|---|---|---|
| 所在地 | 宮城県仙台市青葉区昭和町 5-29 平和マンション北仙台1階 | 交通 | - |
| 営業時間 | 9:00~18:30 | 定休日 | 無休 |
| 免許番号 | 宮城県知事6229 | 取引態様 | 仲介 |
| 不動産会社管理番号 | 100475554665 | 当社管理番号 | 89 |
| 所属団体 | (公社)全日本不動産協会宮城県本部会員 | ||
| 公正取引協議会 | 東北地区不動産公正取引協議会加盟 | ||
| 取扱い物件情報 | 物件詳細へ | ||
※各種情報と現状に差異がある場合は、現状優先となります。問い合わせをすることで、より詳しい条件、情報を確認する事ができます。
提供:(株)ベストハウジング(SUUMO経由)
この物件が気になったら掲載期限まであと5日
ベルリード北仙台に条件(家賃・エリア)が近い物件一覧
| 写真 | 家賃 管理費等 | 敷金 礼金 | 間取り 専有面積 | 築年数 | 最寄り駅 所在地 | キープ | 詳細 |
|---|---|---|---|---|---|---|---|
アパート BAU宮町2号棟(1LDK/3階) | |||||||
![]() | 7.8万円 3,000円 | なし なし | 1LDK 27.74m2 | 築1年 | JR仙山線 東照宮駅 徒歩10分 仙台市地下鉄南北線 広瀬通駅 徒歩14分 仙台市地下鉄南北線 勾当台公園駅 徒歩15分 宮城県仙台市青葉区宮町 | 詳細を見る | |
アパート グレースコート壱番館(2LDK/2階) | |||||||
![]() | 9万円 4,000円 | なし 9万円 | 2LDK 53.48m2 | 築27年 | 仙台市地下鉄南北線 北仙台駅 徒歩13分 仙台市地下鉄南北線 北四番丁駅 徒歩14分 JR仙山線 北山駅(宮城) 徒歩18分 宮城県仙台市青葉区木町 | 詳細を見る | |
アパート GARAGE VILLA SHIVERS B(1LDK/1階) | |||||||
![]() | 12万円 なし | なし なし | 1LDK 64.89m2 | 築1年 | JR仙山線 国見駅(宮城) 徒歩14分 JR仙山線 東北福祉大前駅 徒歩14分 仙台市地下鉄東西線 川内駅(宮城) 徒歩24分 宮城県仙台市青葉区国見 | 詳細を見る | |
マンション べレオ真栄広瀬町(1LDK/2階) | |||||||
![]() | 9.4万円 4,000円 | 9.4万円 9.4万円 | 1LDK 40.46m2 | 築6年 | 仙台市地下鉄南北線 北四番丁駅 徒歩13分 仙台市地下鉄東西線 国際センター駅(宮城) 徒歩18分 仙台市地下鉄南北線 勾当台公園駅 徒歩20分 宮城県仙台市青葉区広瀬町 | 詳細を見る | |
アパート イリアス(2LDK/2階) | |||||||
![]() | 9.2万円 4,000円 | 9.2万円 なし | 2LDK 53.8m2 | 築1年 | 常磐線 南仙台駅 徒歩16分 宮城県名取市上余田字市坪 | 詳細を見る | |
マンション レジデンス勾当台(1DK/4階) | |||||||
![]() | 8万円 5,000円 | 8万円 8万円 | 1DK 43.77m2 | 築25年 | 仙台市地下鉄南北線 勾当台公園駅 徒歩5分 宮城県仙台市青葉区国分町3丁目 | 詳細を見る | |
マンション シーズンフラッツ上杉(1LDK/3階) | |||||||
![]() | 10.7万円 8,000円 | 10.7万円 なし | 1LDK 39.76m2 | 築18年 | 仙台市地下鉄南北線 勾当台公園駅 徒歩3分 宮城県仙台市青葉区上杉1丁目 | 詳細を見る | |
アパート ティーブリッジ南吉成(2LDK/1階) | |||||||
![]() | 7.7万円 2,300円 | なし 7.7万円 | 2LDK 74.67m2 | 築18年 | 宮城県仙台市青葉区南吉成3丁目 | 詳細を見る | |





/105x80-f1-q70-wp1)
/105x80-f1-q70-wp1)
/105x80-f1-q70-wp1)
