賃貸マンション
クオス横浜大通公園の賃貸物件情報(1SLDK/10階)
| 家賃 | 管理費等 | 敷金 | 礼金 | 間取り | 専有面積 |
|---|---|---|---|---|---|
| 16万円 | 1万円 | なし | 16万円 | 1SLDK | 55.73m2 |
入居決定でお祝い金最大100,000円
- 保証金
- -
- 償却・敷引
- -
- 築年数
- 築13年
- 所在階
- 10階
- 向き
- 南西
Point
駅徒歩3分の好立地。南西向きで日当たり良好。高層階で眺望良好。充実した設備に安心のセキュリティ。近隣にはスーパー、コンビニ、飲食店などあり便利な環境で快適に暮らせます。
提供:good residence(株)SKコンサルティング(SUUMO経由)

詳細情報 クオス横浜大通公園
物件紹介
クオス横浜大通公園はブルーライン阪東橋駅から徒歩3分にあり、駅近で通勤通学に便利なマンションです。
このお部屋は2階以上に位置しているので、通行人や周囲の住人からの視線が気になりにくく、防犯面でも安心。建物のエントランスはオートロックがついており、インターホンにはTVモニタもついているため、相手の顔を確認してから来客対応することができます。
人気の南向き・フローリングのお部屋。室内にはウォークインクローゼットがありますので、たくさんの荷物も効率的に収納ができます。キッチンはシステムキッチン仕様になっていますので、お料理好きの方にもぴったり。バス・トイレは別なので、のんびりお風呂タイムも楽しめるでしょう。また、雨の日でも浴室乾燥機を使えば、お洗濯も問題ありません。
建物にはエレベーターがついているので、重い荷物があっても安心。共用部には宅配ボックスが設定されているので、不在の時にも荷物を受け取ることができます。
このお部屋は2階以上に位置しているので、通行人や周囲の住人からの視線が気になりにくく、防犯面でも安心。建物のエントランスはオートロックがついており、インターホンにはTVモニタもついているため、相手の顔を確認してから来客対応することができます。
人気の南向き・フローリングのお部屋。室内にはウォークインクローゼットがありますので、たくさんの荷物も効率的に収納ができます。キッチンはシステムキッチン仕様になっていますので、お料理好きの方にもぴったり。バス・トイレは別なので、のんびりお風呂タイムも楽しめるでしょう。また、雨の日でも浴室乾燥機を使えば、お洗濯も問題ありません。
建物にはエレベーターがついているので、重い荷物があっても安心。共用部には宅配ボックスが設定されているので、不在の時にも荷物を受け取ることができます。
お金・契約の情報
※「-」と表示されているものは、実際は料金が発生するものもございます。詳細はお問い合わせください。
| 家賃 | 16万円 | 管理費・共益費 | 1万円 |
|---|---|---|---|
| 敷金 | なし | 礼金 | 16万円 |
| 入居決定でお祝い金最大100,000円 | |||
| 保証金 | - | 償却・敷引 | - |
| 住宅保険料 | - | 更新料 | - |
| 保証会社利用 | 必須 | 保証会社名 | - |
| 保証会社費用 | - | 保証会社備考 | 保証会社利用必 初回保証料総賃料50% 月々総賃料1.1% |
| 契約形態 | - | 契約期間 | - |
| 入居・引渡期間 | - | 現況 | - |
| 契約備考 | 巡回管理/こちらの物件は多数お問い合わせいただいておりますのでお早めのご連絡をお勧めいたします。先行申込可能(電話、メール対応可)。オンライン内見可能。初期費用分割払いまたはクレジット決済も可能。家賃・初期費用・入居審査、何でもお気軽にご相談ください。その他、引っ越し業者、インターネット、家具家電レンタルなど各種ご紹介、お手続きもトータルサポート致します。お客様のご来店お待ちしております。 合計3.3万円(内訳:鍵交換代3.3万円) 更新料 新賃料1.00ヶ月分 火災保険+24サポート 月額1650円 1SLDK 二人入居可/子供可 普通借家2年 損保【要】 バストイレ別、バルコニー、エアコン、ガスコンロ対応、フローリング、TVインターホン、浴室乾燥機、オートロック、室内洗濯置、シューズボックス、システムキッチン、南向き、追焚機能浴室、温水洗浄便座、エレベーター、洗面所独立、駐輪場、宅配ボックス、閑静な住宅地、2面採光、敷金不要、3口以上コンロ、対面式キッチン、防犯カメラ、分譲賃貸、オートバス、グリル付、全居室洋室、ウォークインクロゼット、保証人不要、24時間緊急通報システム、カードキー、全居室フローリング、2沿線利用可、駅まで平坦、浄水器、食器洗乾燥機、24時間換気システム、複層ガラス、L字型キッチン、平坦地、南面リビング、玄関ポーチ、2駅利用可、3駅以上利用可、3沿線以上利用可、駅前、駅徒歩5分以内、駅徒歩10分以内、高層階、アルコーブ、24時間ゴミ出し可、敷地内ごみ置き場、南西向き、日勤管理、セキュリティ会社加入済、都市ガス、南面バルコニー、IT重説対応物件、初期費用カード決済可 入居日:'26年3月下旬 | ||
部屋の情報
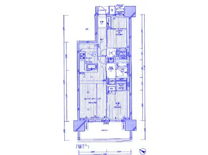
| 間取り | 1SLDK | 専有面積 | 55.73m2 |
|---|---|---|---|
| 所在階 / 向き | 10階 / 南西 | バルコニー面積 | - |
| 水道 / ガス | - | ||
| 設備 | バス・トイレ別、2階以上、オートロック、テレビドアホン、宅配ボックス、浴室乾燥機、ウォークインクローゼット、追い焚き、システムキッチン、エアコン、エレベーター、温水洗浄便座、南向き、バルコニー、フローリング、洗髪洗面化粧台、2口コンロ、コンロ:ガス、洗濯機:室内 | ||
| 当社物件ID | 153793163 | ||
建物の情報
| 建物名 | クオス横浜大通公園 | ||
|---|---|---|---|
| 所在地 | 神奈川県横浜市南区真金町 | ||
| 交通 | ブルーライン 阪東橋駅 徒歩3分 京急本線 黄金町駅 徒歩8分 JR京浜東北線 関内駅 徒歩12分 | ||
| 階数 | 11階建 | 総戸数 | - |
| 築年月 | 2014年02月 / 築13年 | エレベーター | あり |
| 駐車場 | 近隣 100m22000円 | バイク置き場 | - |
| 駐輪場 | あり | 管理人/管理会社 | - |
| 周辺環境 | その他 ラーメン二郎 横浜関内店(飲食店)まで571m その他 ドン・キホーテ 伊勢佐木町店(その他)まで665m その他 サミットストア 横浜曙町店(スーパー)まで339m その他 まいばすけっと 阪東橋駅前店(スーパー)まで355m その他 横浜ヤオソク(スーパー)まで656m その他 ファミリーマート 伊勢佐木町六丁目店(コンビニ)まで417m | ||
| 建物種別 | マンション | 建物構造 | RC(鉄筋コンクリート) |
この部屋の取扱い不動産会社
| 会社名 | (株)グッドルーム(SUUMO経由) | ||
|---|---|---|---|
| 所在地 | 神奈川県横浜市中区尾上町5-69 KIT関内ビル3階-B | 交通 | - |
| 営業時間 | 10:00 ~ 21:00 | 定休日 | - |
| 免許番号 | 神奈川県知事31968 | 取引態様 | 仲介 |
| 不動産会社管理番号 | 100492218259 | 当社管理番号 | 89 |
| 取扱い物件情報 | 物件詳細へ | ||
※各種情報と現状に差異がある場合は、現状優先となります。問い合わせをすることで、より詳しい条件、情報を確認する事ができます。
提供:(株)グッドルーム(SUUMO経由)
この物件が気になったら掲載期限まであと12日
クオス横浜大通公園に条件(家賃・エリア)が近い物件一覧
| 写真 | 家賃 管理費等 | 敷金 礼金 | 間取り 専有面積 | 築年数 | 最寄り駅 所在地 | キープ | 詳細 |
|---|---|---|---|---|---|---|---|
マンション SYFORME KAWASAKI-IKEDA(2K/4階) | |||||||
![]() | 10.4万円 1万円 | 10.4万円 10.4万円 | 2K 25.52m2 | 新築 | JR南武線 八丁畷駅 徒歩6分 京急本線 八丁畷駅 徒歩6分 神奈川県川崎市川崎区池田 | 詳細を見る | |
アパート 大庭貸アパート2F(2LDK/2階) | |||||||
![]() | 17.2万円 3,000円 | 34.4万円 17.2万円 | 2LDK 64.79m2 | 築1年 | 神奈川県藤沢市大庭 | 詳細を見る | |
テラスハウス コスモパークタウンつきみ野(3LDK) | |||||||
![]() | 12万円 なし | 24万円 なし | 3LDK 84.7m2 | 築37年 | 東急田園都市線 つきみ野駅 徒歩7分 東急田園都市線 中央林間駅 徒歩18分 神奈川県大和市つきみ野3丁目 | 詳細を見る | |
マンション RELUXIA GRANDE川崎(1K/2階) | |||||||
![]() | 11.8万円 1万円 | なし 11.8万円 | 1K 25.07m2 | 新築 | 京浜急行電鉄本線 京急川崎駅 徒歩8分 神奈川県川崎市幸区幸町2丁目 | 詳細を見る | |
アパート 相武佐助ビルディング(1LDK/3階) | |||||||
![]() | 13.4万円 5,000円 | 26.8万円 13.4万円 | 1LDK 43.37m2 | 築1年 | JR横須賀線 鎌倉駅 徒歩10分 江ノ島電鉄線 由比ケ浜駅 徒歩15分 江ノ島電鉄線 和田塚駅 徒歩15分 神奈川県鎌倉市佐助 | 詳細を見る | |
マンション スカイ エレジデンスツカゴシ(1LDK/4階) | |||||||
![]() | 12.9万円 1.5万円 | なし 15万円 | 1LDK 37.09m2 | 築1年 | JR南武線 矢向駅 徒歩12分 神奈川県川崎市幸区塚越 | 詳細を見る | |
マンション ネベル横浜関内(2LDK/7階) | |||||||
![]() | 20万円 1万円 | 20万円 なし | 2LDK 50.64m2 | 築2年 | ブルーライン 伊勢佐木長者町駅 徒歩3分 JR根岸線 関内駅 徒歩6分 みなとみらい線 日本大通り駅 徒歩13分 神奈川県横浜市中区不老町 | 詳細を見る | |
アパート ル・ラパン・ア・ローヴ(1LDK/1階) | |||||||
![]() | 10.1万円 4,000円 | なし 15.2万円 | 1LDK 48.5m2 | 築9年 | 東急田園都市線 二子新地駅 徒歩27分 神奈川県川崎市高津区下野毛 | 詳細を見る | |








