賃貸一戸建て
近鉄京都線 三山木駅 徒歩3分 2階建 築7年の賃貸物件情報(2SLDK)
| 家賃 | 管理費等 | 敷金 | 礼金 | 間取り | 専有面積 |
|---|---|---|---|---|---|
| 13万円 | なし | 13万円 | 13万円 | 2SLDK | 78.04m2 |
入居決定でお祝い金最大100,000円
Point
お問い合わせは京都ライフ京田辺店まで
提供:株式会社 京都ライフ 小倉店(賃貸スモッカ経由)

詳細情報 近鉄京都線 三山木駅 徒歩3分 2階建 築7年
物件紹介
近鉄京都線三山木駅から徒歩3分にあり、駅近で通勤通学に便利な一戸建てです。
人気の南向きのお部屋。また、フローリングなのでお掃除もラクラク。キッチンはシステムキッチン仕様になっていますので、お料理好きの方にもぴったり。また、バス・トイレは別で、のんびりお風呂タイムも楽しめるでしょう。
通信設備面では、インターネット接続が可能です(別途工事、契約料が必要な場合あり)。
人気の南向きのお部屋。また、フローリングなのでお掃除もラクラク。キッチンはシステムキッチン仕様になっていますので、お料理好きの方にもぴったり。また、バス・トイレは別で、のんびりお風呂タイムも楽しめるでしょう。
通信設備面では、インターネット接続が可能です(別途工事、契約料が必要な場合あり)。
お金・契約の情報
※「-」と表示されているものは、実際は料金が発生するものもございます。詳細はお問い合わせください。
| 家賃 | 13万円 | 管理費・共益費 | なし |
|---|---|---|---|
| 敷金 | 13万円 | 礼金 | 13万円 |
| 入居決定でお祝い金最大100,000円 | |||
| 保証金 | - | 償却・敷引 | - |
| 住宅保険料 | 住宅保険料あり | 更新料 | - |
| 契約形態 | - | 契約期間 | 2年 |
| 入居・引渡期間 | 2026年04月上旬 | 現況 | 賃貸中 |
| 契約備考 | 害虫駆除費:22,000円 LIFE SUPPORT:16,500円 更新料:無し 保証会社:利用必須 初回:月額賃料等の50%、更新時:1万円/1年 その他設備/条件:コンロ2口以上、独立洗面台、TVドアホン | ||
部屋の情報
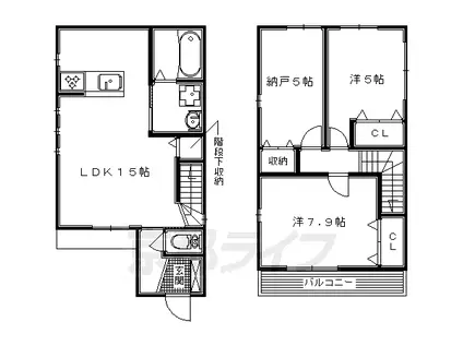
| 間取り | 2SLDK | 専有面積 | 78.04m2 |
|---|---|---|---|
| 間取り詳細 | 洋室(7.9帖)、洋室(5帖)、その他(5帖)、LDK(15帖) | ||
| 所在階 / 向き | 地下階 / 南 | バルコニー面積 | - |
| 水道 / ガス | - | ||
| 設備 | バス・トイレ別、追い焚き、インターネット対応、システムキッチン、カウンターキッチン、エアコン、温水洗浄便座、南向き、バルコニー、フローリング、洗濯機:室内 | ||
| 当社物件ID | 160360647 | ||
建物の情報
| 建物名 | 近鉄京都線 三山木駅 徒歩3分 2階建 築7年 | ||
|---|---|---|---|
| 所在地 | 京都府京田辺市 | ||
| 交通 | 近鉄京都線 三山木駅 徒歩3分 片町線 JR三山木駅 徒歩4分 | ||
| 階数 | 2階建 | 総戸数 | - |
| 築年月 | 2019年08月 / 築7年 | エレベーター | - |
| 駐車場 | 空有 | バイク置き場 | あり |
| 駐輪場 | - | 管理人/管理会社 | - |
| 建物種別 | 一戸建て | 建物構造 | 木造 |
この部屋の取扱い不動産会社
| 会社名 | 株式会社 京都ライフ 京田辺店(賃貸スモッカ経由) | ||
|---|---|---|---|
| 所在地 | 京都府京田辺市田辺中央1丁目7-11 | 交通 | - |
| 営業時間 | - | 定休日 | - |
| 免許番号 | 京都府知事(11)第6353号 | 取引態様 | 仲介 |
| 不動産会社管理番号 | kyotolife_055F8-1 | 当社管理番号 | 463 |
| 所属団体 | 京都府宅地建物取引業協会\n公益社団法人近畿地区不動産公正取引協議会 | ||
| 公正取引協議会 | 全国宅地建物取引業保証協会 | ||
| 取扱い物件情報 | 物件詳細へ | ||
※各種情報と現状に差異がある場合は、現状優先となります。問い合わせをすることで、より詳しい条件、情報を確認する事ができます。
提供:株式会社 京都ライフ 京田辺店(賃貸スモッカ経由)
この物件が気になったら掲載期限まであと5日
近鉄京都線 三山木駅 徒歩3分 2階建 築7年に条件(家賃・エリア)が近い物件一覧
| 写真 | 家賃 管理費等 | 敷金 礼金 | 間取り 専有面積 | 築年数 | 最寄り駅 所在地 | キープ | 詳細 |
|---|---|---|---|---|---|---|---|
マンション 奈良線 城陽駅 徒歩4分 築1年(2LDK/2階) | |||||||
![]() | 9.6万円 8,000円 | なし 9.6万円 | 2LDK 53.59m2 | 築1年 | 奈良線 城陽駅 徒歩4分 近鉄京都線 寺田駅(京都) 徒歩12分 京都府城陽市寺田 | 詳細を見る | |
マンション 片町線 京田辺駅 徒歩4分 築15年(2SLDK/3階) | |||||||
![]() | 15.9万円 7,000円 | 15.9万円 15.9万円 | 2SLDK 99.89m2 | 築15年 | 片町線 京田辺駅 徒歩4分 近鉄京都線 新田辺駅 徒歩8分 京都府京田辺市 | 詳細を見る | |
アパート ウッディ オアシス Ⅰ(2LDK/2階) | |||||||
![]() | 9.8万円 4,600円 | なし 19.6万円 | 2LDK 58.63m2 | 築6年 | 近鉄京都線 興戸駅 徒歩13分 京都府京田辺市 | 詳細を見る | |
マンション 奈良線 城陽駅 徒歩4分 築1年(1SLDK/1階) | |||||||
![]() | 9.6万円 8,000円 | なし 9.6万円 | 1SLDK 53.59m2 | 築1年 | 奈良線 城陽駅 徒歩4分 近鉄京都線 寺田駅(京都) 徒歩12分 京都府城陽市寺田 | 詳細を見る | |
アパート 近鉄京都線 寺田駅(京都) 徒歩3分 新築(2LDK/2階) | |||||||
![]() | 9.7万円 6,000円 | 9.7万円 なし | 2LDK 58.17m2 | 新築 | 近鉄京都線 寺田駅(京都) 徒歩3分 奈良線 城陽駅 徒歩11分 京都府城陽市寺田 | 詳細を見る | |
アパート 奈良線 城陽駅 徒歩4分 築1年(2LDK/3階) | |||||||
![]() | 10.4万円 9,000円 | なし 20万円 | 2LDK 57.52m2 | 築1年 | 奈良線 城陽駅 徒歩4分 近鉄京都線 寺田駅(京都) 徒歩13分 京都府城陽市寺田 | 詳細を見る | |
マンション 近鉄京都線 興戸駅 徒歩10分 築25年(2LDK/3階) | |||||||
![]() | 9.7万円 6,000円 | なし 9.7万円 | 2LDK 64.4m2 | 築25年 | 近鉄京都線 興戸駅 徒歩10分 近鉄京都線 新田辺駅 徒歩18分 京都府京田辺市 | 詳細を見る | |
マンション コートハウスTERADE(1LDK/1階) | |||||||
![]() | 7.9万円 7,000円 | 7.9万円 7.9万円 | 1LDK 66.28m2 | 築36年 | 近鉄京都線 寺田駅(京都) 徒歩10分 近鉄京都線 富野荘駅 徒歩15分 京都府城陽市寺田今橋 | 詳細を見る | |








