賃貸アパート
アクトIの賃貸物件情報(1LDK/1階)
| 家賃 | 管理費等 | 敷金 | 礼金 | 間取り | 専有面積 |
|---|---|---|---|---|---|
| 6.5万円 | 3,000円 | なし | なし | 1LDK | 31.73m2 |
入居決定でお祝い金最大100,000円
- 保証金
- -
- 償却・敷引
- -
- 築年数
- 築2年
- 所在階
- 1階
- 向き
- 南
Point
『来店不要』でのお部屋探しも承っております。インターネットを利用した資料のご提供・オンライン内見・WEB申込・IT重説を用いた契約手続き迄対応しております。詳細はお気軽に当店までご相談ください。【掲載
提供:ハウスコムFC仙台東口店(株)Ys8(SUUMO経由)

詳細情報 アクトI
物件紹介
アクトIはJR東北本線太子堂駅から徒歩12分にあるアパートです。
このお部屋のインターホンにはTVモニタがついているため、相手の顔を確認してから来客対応することができます。
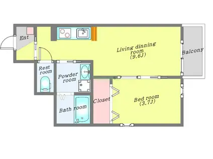
人気の南向き・フローリングのお部屋。角部屋でもあるため、周囲の居住者の生活音も気になりにくい場所です。キッチンはシステムキッチン仕様になっていますので、お料理好きの方にもぴったり。バス・トイレは別なので、のんびりお風呂タイムも楽しめるでしょう。また、雨の日でも浴室乾燥機を使えば、お洗濯も問題ありません。
通信設備面では、インターネットが無料で使えるので、月々の出費を抑えられるのも魅力です(別途工事等が必要な場合あり)。
共用部には宅配ボックスが設定されているので、不在の時にも荷物を受け取ることができます。
このお部屋のインターホンにはTVモニタがついているため、相手の顔を確認してから来客対応することができます。
人気の南向き・フローリングのお部屋。角部屋でもあるため、周囲の居住者の生活音も気になりにくい場所です。キッチンはシステムキッチン仕様になっていますので、お料理好きの方にもぴったり。バス・トイレは別なので、のんびりお風呂タイムも楽しめるでしょう。また、雨の日でも浴室乾燥機を使えば、お洗濯も問題ありません。
通信設備面では、インターネットが無料で使えるので、月々の出費を抑えられるのも魅力です(別途工事等が必要な場合あり)。
共用部には宅配ボックスが設定されているので、不在の時にも荷物を受け取ることができます。
お金・契約の情報
※「-」と表示されているものは、実際は料金が発生するものもございます。詳細はお問い合わせください。
| 家賃 | 6.5万円 | 管理費・共益費 | 3,000円 |
|---|---|---|---|
| 敷金 | なし | 礼金 | なし |
| 入居決定でお祝い金最大100,000円 | |||
| 保証金 | - | 償却・敷引 | - |
| 住宅保険料 | - | 更新料 | - |
| 保証会社利用 | 必須 | 保証会社名 | - |
| 保証会社費用 | - | 保証会社備考 | 保証会社利用必 初回保証料:月額賃料総額50%~(最低保証料2万円) |
| 契約形態 | - | 契約期間 | - |
| 入居・引渡期間 | 即時 | 現況 | - |
| 契約備考 | 巡回管理 合計5.5万円(内訳:クリーニング代5.5万円) 更新料 22000円 1LDK 二人入居可/事務所利用不可 普通借家2年 損保【2万円2年】 バストイレ別、バルコニー、エアコン、クロゼット、TVインターホン、浴室乾燥機、室内洗濯置、シューズボックス、システムキッチン、南向き、追焚機能浴室、角住戸、温水洗浄便座、脱衣所、2口コンロ、駐輪場、宅配ボックス、即入居可、礼金不要、敷金不要、IHクッキングヒーター、保証人不要、二人入居相談、全居室フローリング、2沿線利用可、駅まで平坦、ネット使用料不要、保証金不要、築2年以内、24時間換気システム、浴室未使用、トイレ未使用、2駅利用可、3駅以上利用可、敷地内ごみ置き場、プロパンガス、年内入居可、年度内入居可、敷金・礼金不要、保証会社利用可、IT重説対応物件 | ||
部屋の情報
| 間取り | 1LDK | 専有面積 | 31.73m2 |
|---|---|---|---|
| 所在階 / 向き | 1階 / 南 | バルコニー面積 | - |
| 水道 / ガス | - | ||
| 設備 | バス・トイレ別、テレビドアホン、宅配ボックス、浴室乾燥機、追い焚き、インターネット対応、システムキッチン、エアコン、温水洗浄便座、南向き、角部屋、バルコニー、フローリング、2口コンロ、コンロ:IH、インターネット使用料無料、洗濯機:室内 | ||
| 当社物件ID | 158179534 | ||
建物の情報
| 建物名 | アクトI | ||
|---|---|---|---|
| 所在地 | 宮城県仙台市太白区郡山 | ||
| 交通 | JR東北本線 太子堂駅 徒歩12分 JR東北本線 長町駅 徒歩15分 仙台市地下鉄南北線 長町駅 徒歩17分 | ||
| 階数 | 2階建 | 総戸数 | - |
| 築年月 | 2024年12月 / 築2年 | エレベーター | - |
| 駐車場 | なし | バイク置き場 | - |
| 駐輪場 | あり | 管理人/管理会社 | - |
| 周辺環境 | その他 ファミリーマート あすと長町店(コンビニ)まで690m その他 ヨークタウンあすと長町(ショッピングセンター)まで965m その他 IKEA(ショッピングセンター)まで1060m その他 ツルハドラッグ あすと長町店(ドラッグストア)まで775m その他 仙台八本松郵便局(郵便局)まで1033m | ||
| 建物種別 | アパート | 建物構造 | 木造 |
この部屋の取扱い不動産会社
| 会社名 | (株)LiELU本店(SUUMO経由) | ||
|---|---|---|---|
| 所在地 | 宮城県仙台市青葉区本町1-1-8 第一日本オフィスビル2階9号室 | 交通 | - |
| 営業時間 | 09時~19時 | 定休日 | 年末年始 |
| 免許番号 | 宮城県知事6616 | 取引態様 | 仲介 |
| 不動産会社管理番号 | 100480881503 | 当社管理番号 | 89 |
| 所属団体 | (公社)全日本不動産協会宮城県本部会員 | ||
| 公正取引協議会 | 東北地区不動産公正取引協議会加盟 | ||
| 取扱い物件情報 | 物件詳細へ | ||
※各種情報と現状に差異がある場合は、現状優先となります。問い合わせをすることで、より詳しい条件、情報を確認する事ができます。
提供:(株)LiELU本店(SUUMO経由)
この物件が気になったら掲載期限まであと11日
アクトIに条件(家賃・エリア)が近い物件一覧
| 写真 | 家賃 管理費等 | 敷金 礼金 | 間取り 専有面積 | 築年数 | 最寄り駅 所在地 | キープ | 詳細 |
|---|---|---|---|---|---|---|---|
アパート クラークコート(2LDK/2階) | |||||||
![]() | 6.9万円 2,500円 | なし なし | 2LDK 49.85m2 | 築12年 | 宮城県黒川郡大和町吉岡字天皇寺 | 詳細を見る | |
アパート サニープレイス向山(ワンルーム/1階) | |||||||
![]() | 4.1万円 2,000円 | なし なし | ワンルーム 26m2 | 築21年 | 仙台市地下鉄東西線 大町西公園駅 徒歩19分 仙台市地下鉄南北線 愛宕橋駅 徒歩23分 宮城県仙台市太白区向山 | 詳細を見る | |
アパート アンビックス利府 伍番館(1LDK/1階) | |||||||
![]() | 5.4万円 4,000円 | なし なし | 1LDK 41.26m2 | 築20年 | 東北本線 利府駅 徒歩26分 宮城県宮城郡利府町加瀬字十三本塚 | 詳細を見る | |
アパート レオパレスミナミ(1K/2階) | |||||||
![]() | 5.8万円 6,000円 | なし なし | 1K 22.35m2 | 築18年 | 仙石線 下馬駅 徒歩18分 宮城県多賀城市笠神1丁目 | 詳細を見る | |
アパート プリムヴェールⅤ(1K/2階) | |||||||
![]() | 5.2万円 2,300円 | なし 5.2万円 | 1K 36.03m2 | 築16年 | 東北本線 国府多賀城駅 徒歩6分 宮城県多賀城市高崎2丁目 | 詳細を見る | |
アパート BAUアザヒガ(1LDK/1階) | |||||||
![]() | 6万円 3,000円 | なし なし | 1LDK 29.59m2 | 築1年 | JR東北本線 南仙台駅 徒歩29分 JR常磐線 南仙台駅 徒歩29分 仙台空港鉄道 名取駅 徒歩35分 宮城県仙台市太白区中田町東 | 詳細を見る | |
アパート レオネクストブラン(1K/2階) | |||||||
![]() | 5.7万円 4,000円 | なし なし | 1K 35.84m2 | 築11年 | JR東北本線 南仙台駅 徒歩20分 宮城県仙台市太白区中田町前沖北 | 詳細を見る | |
アパート ハーモニーテラス若林 II(1K/2階) | |||||||
![]() | 5.7万円 4,000円 | なし 5.7万円 | 1K 20.58m2 | 築8年 | 仙台市地下鉄南北線 長町一丁目駅 徒歩8分 仙台市地下鉄南北線 河原町駅(宮城) 徒歩12分 仙台市地下鉄南北線 長町駅 徒歩17分 宮城県仙台市若林区若林 | 詳細を見る | |








