賃貸マンション
ハウス大山の賃貸物件情報(ワンルーム/2階)
| 家賃 | 管理費等 | 敷金 | 礼金 | 間取り | 専有面積 |
|---|---|---|---|---|---|
| 6.3万円 | 2,000円 | 6.3万円 | 6.3万円 | ワンルーム | 17.8m2 |
入居決定でお祝い金最大100,000円
- 保証金
- -
- 償却・敷引
- -
- 築年数
- 築35年
- 所在階
- 2階
- 向き
- 南東
Point
通勤・通学に便利な立地で、生活環境も充実しております。
提供:ピタットハウス本郷三丁目駅前店(株)ライズコーポレーション(SUUMO経由)

詳細情報 ハウス大山
物件紹介
ハウス大山は都電荒川線早稲田駅から徒歩5分にあり、駅近で通勤通学に便利なマンションです。
このお部屋は2階以上に位置しているので、通行人や周囲の住人からの視線が気になりにくく、防犯面でも安心です。
人気の南向き・フローリングのお部屋。角部屋でもあるため、周囲の居住者の生活音も気になりにくい場所です。キッチンはシステムキッチン仕様になっていますので、お料理好きの方にもぴったり。
通信設備面では、インターネット接続が可能です。また、CATVにも対応しているので、おうち時間も充実するでしょう(別途工事、契約料が必要な場合あり)。
このお部屋は2階以上に位置しているので、通行人や周囲の住人からの視線が気になりにくく、防犯面でも安心です。
人気の南向き・フローリングのお部屋。角部屋でもあるため、周囲の居住者の生活音も気になりにくい場所です。キッチンはシステムキッチン仕様になっていますので、お料理好きの方にもぴったり。
通信設備面では、インターネット接続が可能です。また、CATVにも対応しているので、おうち時間も充実するでしょう(別途工事、契約料が必要な場合あり)。
お金・契約の情報
※「-」と表示されているものは、実際は料金が発生するものもございます。詳細はお問い合わせください。
| 家賃 | 6.3万円 | 管理費・共益費 | 2,000円 |
|---|---|---|---|
| 敷金 | 6.3万円 | 礼金 | 6.3万円 |
| 入居決定でお祝い金最大100,000円 | |||
| 保証金 | - | 償却・敷引 | - |
| 住宅保険料 | - | 更新料 | - |
| 保証会社利用 | 必須 | 保証会社名 | - |
| 保証会社費用 | - | 保証会社備考 | 保証会社利用必 貸主指定 連帯保証人有りの場合 賃料等の50% 更新料無し連帯保証人無しの場合 賃料等の50% 毎年10,000円の更新料学生 10,000円 更新料無し |
| 契約形態 | - | 契約期間 | - |
| 入居・引渡期間 | 相談 | 現況 | - |
| 契約備考 | ワンルーム 単身者可 損保【1.8万円2年】 バルコニー、エアコン、フローリング、室内洗濯置、シューズボックス、システムキッチン、外壁タイル張り、閑静な住宅地、IHクッキングヒーター、駅徒歩5分以内、駅徒歩10分以内、敷地内ごみ置き場、東南向き | ||
部屋の情報
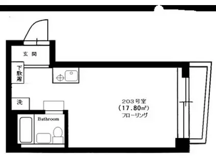
| 間取り | ワンルーム | 専有面積 | 17.8m2 |
|---|---|---|---|
| 所在階 / 向き | 2階 / 南東 | バルコニー面積 | - |
| 水道 / ガス | - | ||
| 設備 | 2階以上、システムキッチン、エアコン、南向き、バルコニー、フローリング、コンロ:IH、洗濯機:室内 | ||
| 当社物件ID | 298660 | ||
建物の情報
| 建物名 | ハウス大山 | ||
|---|---|---|---|
| 所在地 | 東京都文京区目白台 | ||
| 交通 | 都電荒川線 早稲田駅(都電) 徒歩5分 都電荒川線 面影橋駅 徒歩9分 都電荒川線 学習院下駅 徒歩12分 | ||
| 階数 | 4階建 | 総戸数 | 5戸 |
| 築年月 | 1991年07月 / 築35年 | エレベーター | - |
| 駐車場 | なし | バイク置き場 | - |
| 駐輪場 | - | 管理人/管理会社 | - |
| 周辺環境 | その他 ダイエー高田店(スーパー)まで130m その他 ファミリーマート豊島高田一丁目店(コンビニ)まで375m その他 ドラッグストアいわい早稲田店(ドラッグストア)まで111m その他 私立日本女子大学(大学・短大)まで482m その他 ほっともっと西早稲田店(飲食店)まで379m | ||
| 建物種別 | マンション | 建物構造 | RC(鉄筋コンクリート) |
この部屋の取扱い不動産会社
| 会社名 | ピタットハウス本郷三丁目駅前店(株)ライズコーポレーション(SUUMO経由) | ||
|---|---|---|---|
| 所在地 | 東京都文京区本郷4-2-4 本郷Aビル1階 | 交通 | - |
| 営業時間 | 10:00~19:00 | 定休日 | 毎週水曜日 |
| 免許番号 | 東京都知事109446 | 取引態様 | 仲介 |
| 不動産会社管理番号 | 100484559265 | 当社管理番号 | 89 |
| 所属団体 | (公社)東京都宅地建物取引業協会会員 | ||
| 公正取引協議会 | (公社)首都圏不動産公正取引協議会加盟 | ||
| 取扱い物件情報 | 物件詳細へ | ||
※各種情報と現状に差異がある場合は、現状優先となります。問い合わせをすることで、より詳しい条件、情報を確認する事ができます。
提供:ピタットハウス本郷三丁目駅前店(株)ライズコーポレーション(SUUMO経由)
この物件が気になったら掲載期限まであと10日
ハウス大山に条件(家賃・エリア)が近い物件一覧
| 写真 | 家賃 管理費等 | 敷金 礼金 | 間取り 専有面積 | 築年数 | 最寄り駅 所在地 | キープ | 詳細 |
|---|---|---|---|---|---|---|---|
マンション メゾンエーデルワイス(1K/2階) | |||||||
![]() | 8.3万円 3,000円 | 8.3万円 8.3万円 | 1K 20.09m2 | 築32年 | JR山手線 大塚駅(東京) 徒歩5分 都電荒川線 巣鴨新田駅 徒歩6分 JR山手線 巣鴨駅 徒歩10分 東京都豊島区北大塚 | 詳細を見る | |
マンション ラヴィン(ワンルーム/5階) | |||||||
![]() | 9.6万円 1万円 | 9.6万円 なし | ワンルーム 30.9m2 | 築18年 | 東武伊勢崎・大師線 浅草駅(東武・都営・メトロ) 徒歩16分 東京地下鉄銀座線 浅草駅(東武・都営・メトロ) 徒歩18分 東京地下鉄日比谷線 南千住駅 徒歩18分 東京都台東区今戸2丁目 | 詳細を見る | |
マンション ヴェラハイツ御徒町(ワンルーム/6階) | |||||||
![]() | 7.5万円 5,000円 | 7.5万円 7.5万円 | ワンルーム 19.84m2 | 築41年 | 東京都大江戸線 新御徒町駅 徒歩1分 東京地下鉄日比谷線 仲御徒町駅 徒歩7分 山手線 御徒町駅 徒歩9分 東京都台東区台東4丁目 | 詳細を見る | |




