賃貸アパート
KEIAI RESIDENCE 久米川IIの賃貸物件情報(1LDK/1階)
| 家賃 | 管理費等 | 敷金 | 礼金 | 間取り | 専有面積 |
|---|---|---|---|---|---|
| 7.6万円 | 3,500円 | なし | 7.6万円 | 1LDK | 28.15m2 |
入居決定でお祝い金最大100,000円
- 保証金
- -
- 償却・敷引
- -
- 築年数
- 築1年
- 所在階
- 1階
- 向き
- 西
Point
オンラインにて申込みから契約までのお手続きも可能です。入居日が合わずにお悩みの方、契約金のお見積もりや室内写真のご要望などお気軽にお問い合わせください。初期費用の分割払いも承ります。
提供:(株)エールーム立川店(SUUMO経由)

詳細情報 KEIAI RESIDENCE 久米川II
物件紹介
KEIAI RESIDENCE 久米川IIは西武新宿線久米川駅から徒歩10分にあり、駅近で通勤通学に便利なアパートです。
建物のエントランスはオートロックがついており、インターホンにはTVモニタもついているため、相手の顔を確認してから来客対応することができます。
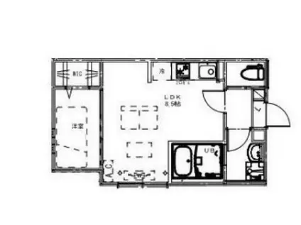
人気の角部屋で周囲の居住者の生活音も気になりにくく、また、フローリングのお部屋なのでお掃除もラクラク。室内にはウォークインクローゼットがありますので、たくさんの荷物も効率的に収納ができます。キッチンはシステムキッチン仕様になっていますので、お料理好きの方にもぴったり。バス・トイレは別なので、のんびりお風呂タイムも楽しめるでしょう。また、雨の日でも浴室乾燥機を使えば、お洗濯も問題ありません。
通信設備面では、インターネットが無料で使えるので、月々の出費を抑えられるのも魅力です。また、CATVにも対応しているので、おうち時間も充実するでしょう(別途工事、CATVの契約料等が必要な場合あり)。
共用部には宅配ボックスが設定されているので、不在の時にも荷物を受け取ることができます。
建物のエントランスはオートロックがついており、インターホンにはTVモニタもついているため、相手の顔を確認してから来客対応することができます。
人気の角部屋で周囲の居住者の生活音も気になりにくく、また、フローリングのお部屋なのでお掃除もラクラク。室内にはウォークインクローゼットがありますので、たくさんの荷物も効率的に収納ができます。キッチンはシステムキッチン仕様になっていますので、お料理好きの方にもぴったり。バス・トイレは別なので、のんびりお風呂タイムも楽しめるでしょう。また、雨の日でも浴室乾燥機を使えば、お洗濯も問題ありません。
通信設備面では、インターネットが無料で使えるので、月々の出費を抑えられるのも魅力です。また、CATVにも対応しているので、おうち時間も充実するでしょう(別途工事、CATVの契約料等が必要な場合あり)。
共用部には宅配ボックスが設定されているので、不在の時にも荷物を受け取ることができます。
お金・契約の情報
※「-」と表示されているものは、実際は料金が発生するものもございます。詳細はお問い合わせください。
| 家賃 | 7.6万円 | 管理費・共益費 | 3,500円 |
|---|---|---|---|
| 敷金 | なし | 礼金 | 7.6万円 |
| 入居決定でお祝い金最大100,000円 | |||
| 保証金 | - | 償却・敷引 | - |
| 住宅保険料 | - | 更新料 | - |
| 保証会社利用 | 必須 | 保証会社名 | - |
| 保証会社費用 | - | 保証会社備考 | 保証会社利用必 初回保証料 賃料・管理費の50パーセント 月額保証料 800円 |
| 契約形態 | - | 契約期間 | - |
| 入居・引渡期間 | - | 現況 | - |
| 契約備考 | 初期費用の分割・クレジットカード決済可能です!お気軽にご相談下さい。短期違約金として、半年以内の解約は賃料の2ヶ月となり、1年未満の解約は賃料の1ヶ月となります。 合計2.75万円(内訳:鍵交換代2.75万円) 更新料 新賃料1.00ヶ月分 室内清掃費用 55000円 KEIAICLUB会費(火災保険含む) 月額2750円 1LDK 普通借家2年 損保【要】 バストイレ別、エアコン、ガスコンロ対応、クロゼット、フローリング、TVインターホン、浴室乾燥機、オートロック、室内洗濯置、シューズボックス、システムキッチン、角住戸、温水洗浄便座、脱衣所、洗面所独立、洗面化粧台、2口コンロ、宅配ボックス、CATV、敷金不要、ウォークインクロゼット、二人入居相談、2沿線利用可、ディンプルキー、ネット専用回線、ネット使用料不要、保証金不要、24時間換気システム、浴室未使用、トイレ未使用、2駅利用可、3駅以上利用可、駅徒歩10分以内、敷地内ごみ置き場、キッチン未使用、洗面所にドア、初期費用カード決済可 入居日:'26年1月上旬 | ||
部屋の情報
| 間取り | 1LDK | 専有面積 | 28.15m2 |
|---|---|---|---|
| 所在階 / 向き | 1階 / 西 | バルコニー面積 | - |
| 水道 / ガス | - | ||
| 設備 | バス・トイレ別、オートロック、テレビドアホン、宅配ボックス、浴室乾燥機、ウォークインクローゼット、インターネット対応、システムキッチン、エアコン、温水洗浄便座、角部屋、フローリング、洗髪洗面化粧台、2口コンロ、コンロ:ガス、CATV、インターネット使用料無料、洗濯機:室内 | ||
| 当社物件ID | 159630145 | ||
建物の情報
| 建物名 | KEIAI RESIDENCE 久米川II | ||
|---|---|---|---|
| 所在地 | 東京都東村山市美住町 | ||
| 交通 | 西武新宿線 久米川駅 徒歩10分 西武多摩湖線 八坂駅(東京) 徒歩12分 西武新宿線 東村山駅 徒歩17分 | ||
| 階数 | 3階建 | 総戸数 | 12戸 |
| 築年月 | 2025年11月 / 築1年 | エレベーター | - |
| 駐車場 | なし | バイク置き場 | - |
| 駐輪場 | - | 管理人/管理会社 | - |
| 周辺環境 | その他 久米川駅(その他)まで863m その他 東村山駅(その他)まで1302m その他 小川(東京都)(その他)まで2050m その他 食品の店おおた 久米川店(スーパー)まで876m その他 TAIRAYA久米川八坂店(スーパー)まで861m その他 ファミリーマート 東村山八坂駅前店(コンビニ)まで833m | ||
| 建物種別 | アパート | 建物構造 | 木造 |
この部屋の取扱い不動産会社
| 会社名 | (株)エールーム立川店(SUUMO経由) | ||
|---|---|---|---|
| 所在地 | 東京都立川市柴崎町3-4-17 岡部ビル3階 | 交通 | - |
| 営業時間 | 10:00~19:00 | 定休日 | 水曜日 |
| 免許番号 | 国土交通大臣9710 | 取引態様 | 仲介 |
| 不動産会社管理番号 | 100465193722 | 当社管理番号 | 89 |
| 所属団体 | (公社)東京都宅地建物取引業協会会員 | ||
| 公正取引協議会 | (公社)首都圏不動産公正取引協議会加盟 | ||
| 取扱い物件情報 | 物件詳細へ | ||
※各種情報と現状に差異がある場合は、現状優先となります。問い合わせをすることで、より詳しい条件、情報を確認する事ができます。
提供:(株)エールーム立川店(SUUMO経由)
この物件が気になったら掲載期限まであと11日
KEIAI RESIDENCE 久米川IIに条件(家賃・エリア)が近い物件一覧
| 写真 | 家賃 管理費等 | 敷金 礼金 | 間取り 専有面積 | 築年数 | 最寄り駅 所在地 | キープ | 詳細 |
|---|---|---|---|---|---|---|---|
アパート シティパレス東久留米Ⅱ(1K/2階) | |||||||
![]() | 5万円 2,000円 | 5万円 5万円 | 1K 17m2 | 築37年 | 西武池袋・豊島線 東久留米駅 徒歩13分 東京都東久留米市中央町1丁目 | 詳細を見る | |
マンション サンモール(1LDK/2階) | |||||||
![]() | 9.2万円 4,000円 | 9.2万円 9.2万円 | 1LDK 41.4m2 | 築3年 | 西武池袋線 清瀬駅 徒歩12分 西武池袋線 東久留米駅 徒歩35分 西武池袋線 秋津駅 徒歩37分 東京都清瀬市上清戸 | 詳細を見る | |
アパート クレストハイツ(2DK/2階) | |||||||
![]() | 5.8万円 なし | 5.8万円 なし | 2DK 38m2 | 築36年 | 西武鉄道多摩湖線 武蔵大和駅 徒歩4分 西武鉄道多摩湖線 多摩湖駅 徒歩17分 西武鉄道新宿線 東村山駅 徒歩23分 東京都東村山市廻田町3丁目 | 詳細を見る | |
マンション リヴェール滝山(3LDK/3階) | |||||||
![]() | 9.8万円 7,500円 | なし 19.6万円 | 3LDK 65.02m2 | 築32年 | 西武池袋・豊島線 ひばりケ丘駅(東京) 徒歩44分 東京都東久留米市前沢4丁目 | 詳細を見る | |
アパート クローバーハウス(2K/1階) | |||||||
![]() | 4.9万円 3,000円 | なし なし | 2K 30m2 | 築37年 | 武蔵野線 新秋津駅 徒歩17分 西武池袋・豊島線 秋津駅 徒歩22分 西武鉄道新宿線 東村山駅 徒歩36分 東京都東村山市青葉町3丁目 | 詳細を見る | |
アパート カームコート(1LDK/3階) | |||||||
![]() | 9.5万円 7,000円 | なし 12万円 | 1LDK 40.07m2 | 築12年 | 西武鉄道新宿線 花小金井駅 徒歩26分 西武鉄道新宿線 小平駅 徒歩34分 西武鉄道新宿線 田無駅 徒歩44分 東京都東久留米市前沢5丁目 | 詳細を見る | |
マンション ドミネント清水(1K/2階) | |||||||
![]() | 5万円 3,000円 | 5万円 5万円 | 1K 27m2 | 築23年 | 西武鉄道多摩湖線 武蔵大和駅 徒歩4分 西武鉄道多摩湖線 多摩湖駅 徒歩18分 西武鉄道新宿線 東村山駅 徒歩30分 東京都東大和市清水3丁目 | 詳細を見る | |
アパート キャメル所沢4(1K/1階) | |||||||
![]() | 6.65万円 3,000円 | なし 6.65万円 | 1K 25.05m2 | 築1年 | 西武池袋・豊島線 所沢駅 徒歩13分 西武池袋・豊島線 西所沢駅 徒歩27分 西武鉄道新宿線 東村山駅 徒歩29分 埼玉県所沢市大字久米 | 詳細を見る | |









