賃貸マンション
アイボリーハウス恵比寿の賃貸物件情報(1DK/1階)
| 家賃 | 管理費等 | 敷金 | 礼金 | 間取り | 専有面積 |
|---|---|---|---|---|---|
| 14万円 | 5,000円 | 14万円 | 14万円 | 1DK | 31.5m2 |
入居決定でお祝い金最大100,000円
- 保証金
- -
- 償却・敷引
- -
- 築年数
- 築12年
- 所在階
- 1階
- 向き
- 北西
Point
まずはお問い合わせ!
不動産会社は街のプロ、あなたに合った物件がきっと見つかります。
提供:(株)エムケーシー・パートナーズ(SUUMO経由)

詳細情報 アイボリーハウス恵比寿
物件紹介
アイボリーハウス恵比寿は東京メトロ日比谷線恵比寿駅から徒歩8分にあり、駅近で通勤通学に便利なマンションです。
このお部屋のインターホンにはTVモニタがついているため、相手の顔を確認してから来客対応することができます。
人気の角部屋で周囲の居住者の生活音も気になりにくく、また、フローリングのお部屋なのでお掃除もラクラク。キッチンはシステムキッチン仕様になっていますので、お料理好きの方にもぴったり。バス・トイレは別なので、のんびりお風呂タイムも楽しめるでしょう。また、雨の日でも浴室乾燥機を使えば、お洗濯も問題ありません。
建物にはエレベーターがついているので、重い荷物があっても安心。共用部には宅配ボックスが設定されているので、不在の時にも荷物を受け取ることができます。
このお部屋のインターホンにはTVモニタがついているため、相手の顔を確認してから来客対応することができます。
人気の角部屋で周囲の居住者の生活音も気になりにくく、また、フローリングのお部屋なのでお掃除もラクラク。キッチンはシステムキッチン仕様になっていますので、お料理好きの方にもぴったり。バス・トイレは別なので、のんびりお風呂タイムも楽しめるでしょう。また、雨の日でも浴室乾燥機を使えば、お洗濯も問題ありません。
建物にはエレベーターがついているので、重い荷物があっても安心。共用部には宅配ボックスが設定されているので、不在の時にも荷物を受け取ることができます。
お金・契約の情報
※「-」と表示されているものは、実際は料金が発生するものもございます。詳細はお問い合わせください。
| 家賃 | 14万円 | 管理費・共益費 | 5,000円 |
|---|---|---|---|
| 敷金 | 14万円 | 礼金 | 14万円 |
| 入居決定でお祝い金最大100,000円 | |||
| 保証金 | - | 償却・敷引 | - |
| 住宅保険料 | - | 更新料 | - |
| 契約形態 | - | 契約期間 | - |
| 入居・引渡期間 | - | 現況 | - |
| 入居可能条件 | 事務所可 | ||
| 契約備考 | 山手線恵比寿駅徒歩8分 1DK 事務所利用相談 普通借家2年 損保【2万円2年】 バストイレ別、バルコニー、エアコン、ガスコンロ対応、クロゼット、TVインターホン、浴室乾燥機、室内洗濯置、陽当り良好、シューズボックス、システムキッチン、追焚機能浴室、角住戸、温水洗浄便座、脱衣所、エレベーター、洗面所独立、2口コンロ、駐輪場、宅配ボックス、閑静な住宅地、2面採光、グリル付、敷金1ヶ月、防犯シャッター、全居室フローリング、眺望良好、保証金不要、事務所相談、3駅以上利用可、3沿線以上利用可、駅徒歩10分以内、都市ガス、室内物干機、礼金1ヶ月 入居日:'26年1月下旬 | ||
部屋の情報
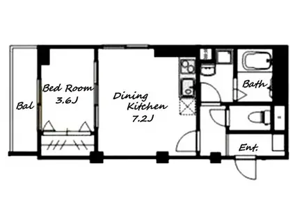
| 間取り | 1DK | 専有面積 | 31.5m2 |
|---|---|---|---|
| 所在階 / 向き | 1階 / 北西 | バルコニー面積 | - |
| 水道 / ガス | - | ||
| 設備 | バス・トイレ別、テレビドアホン、宅配ボックス、浴室乾燥機、追い焚き、システムキッチン、エアコン、エレベーター、温水洗浄便座、角部屋、バルコニー、フローリング、洗髪洗面化粧台、2口コンロ、コンロ:ガス、洗濯機:室内 | ||
| 当社物件ID | 159994700 | ||
建物の情報
| 建物名 | アイボリーハウス恵比寿 | ||
|---|---|---|---|
| 所在地 | 東京都目黒区三田 | ||
| 交通 | 東京メトロ日比谷線 恵比寿駅 徒歩8分 都営三田線 目黒駅 徒歩13分 東急目黒線 目黒駅 徒歩13分 | ||
| 階数 | 5階建 | 総戸数 | - |
| 築年月 | 2014年07月 / 築12年 | エレベーター | あり |
| 駐車場 | なし | バイク置き場 | - |
| 駐輪場 | あり | 管理人/管理会社 | - |
| 周辺環境 | その他 恵比寿ガーデンプレイス(ショッピングセンター)まで343m その他 トモズ恵比寿ガーデンプレイス店(ドラッグストア)まで463m その他 恵比寿ガーデンプレイス郵便局(郵便局)まで462m その他 ファミリーマート恵比寿ガーデンプレイス店(コンビニ)まで455m | ||
| 建物種別 | マンション | 建物構造 | 鉄骨造 |
この部屋の取扱い不動産会社
| 会社名 | (株)エムケーシー・パートナーズ(SUUMO経由) | ||
|---|---|---|---|
| 所在地 | 東京都港区南青山5-10-6 テラアシオス表参道4階 | 交通 | - |
| 営業時間 | AM9:30~PM19:00 | 定休日 | 年中無休 |
| 免許番号 | 東京都知事48530 | 取引態様 | 仲介 |
| 不動産会社管理番号 | 100476243842 | 当社管理番号 | 89 |
| 所属団体 | (公社)全日本不動産協会東京都本部会員 | ||
| 公正取引協議会 | (公社)首都圏不動産公正取引協議会加盟 | ||
| 取扱い物件情報 | 物件詳細へ | ||
※各種情報と現状に差異がある場合は、現状優先となります。問い合わせをすることで、より詳しい条件、情報を確認する事ができます。
提供:(株)エムケーシー・パートナーズ(SUUMO経由)
この物件が気になったら掲載期限まであと11日
アイボリーハウス恵比寿に条件(家賃・エリア)が近い物件一覧
| 写真 | 家賃 管理費等 | 敷金 礼金 | 間取り 専有面積 | 築年数 | 最寄り駅 所在地 | キープ | 詳細 |
|---|---|---|---|---|---|---|---|
アパート ラメゾネットヴェルトゥ(3LDK/1階) | |||||||
![]() | 19.9万円 5,500円 | 19.9万円 19.9万円 | 3LDK 84.84m2 | 築12年 | 東急多摩川線 下丸子駅 徒歩5分 東急池上線 久が原駅 徒歩5分 東急多摩川線 鵜の木駅 徒歩9分 東京都大田区南久が原 | 詳細を見る | |
マンション アーバネックス南品川2(1K/2階) | |||||||
![]() | 11.2万円 1.5万円 | 11.2万円 11.2万円 | 1K 20.64m2 | 築5年 | 京急本線 新馬場駅 徒歩5分 JR京浜東北線 大井町駅 徒歩12分 JR山手線 大崎駅 徒歩15分 東京都品川区南品川 | 詳細を見る | |
マンション コンフォリア・リヴ南品川(2LDK/6階) | |||||||
![]() | 19.8万円 1.5万円 | 19.8万円 なし | 2LDK 37.84m2 | 築1年 | 京浜急行電鉄本線 青物横丁駅 徒歩5分 東京都品川区南品川3丁目 | 詳細を見る | |
マンション XEBEC池上Ⅲ(1K/2階) | |||||||
![]() | 10.7万円 1.5万円 | なし 10.7万円 | 1K 25.84m2 | 築8年 | 東急池上線 池上駅 徒歩5分 東急池上線 千鳥町駅 徒歩13分 東京都大田区池上3丁目 | 詳細を見る | |
アパート SEED SAVE PETIRASU Ⅲ(1LDK/3階) | |||||||
![]() | 10.7万円 1万円 | 21.4万円 10.7万円 | 1LDK 30.55m2 | 新築 | 東京モノレール羽田 昭和島駅 徒歩12分 京浜急行電鉄本線 大森町駅 徒歩18分 東京都大田区大森東5丁目 | 詳細を見る | |
アパート M SONIA KUGAHARA(ワンルーム/1階) | |||||||
![]() | 9.3万円 3,000円 | 9.3万円 13.95万円 | ワンルーム 24.57m2 | 築1年 | 東急池上線 久が原駅 徒歩8分 東急池上線 御嶽山駅 徒歩9分 東急多摩川線 鵜の木駅 徒歩13分 東京都大田区西嶺町 | 詳細を見る | |
マンション ARCOBALENO UMEYASHIKI(1K/4階) | |||||||
![]() | 10.5万円 1.5万円 | なし 10.5万円 | 1K 25.57m2 | 築2年 | 京急本線 梅屋敷駅(東京) 徒歩11分 京急本線 大森町駅 徒歩15分 京急本線 京急蒲田駅 徒歩19分 東京都大田区北糀谷 | 詳細を見る | |
マンション コンフォリア東大井Ⅱ(1DK/12階) | |||||||
![]() | 13.8万円 1万円 | 13.8万円 なし | 1DK 25.01m2 | 築2年 | 京浜急行電鉄本線 立会川駅 徒歩5分 京浜急行電鉄本線 鮫洲駅 徒歩7分 京浜東北・根岸線 大井町駅 徒歩11分 東京都品川区東大井3丁目 | 詳細を見る | |









