賃貸マンション
リビオーヌ五日市中央の賃貸物件情報(1LDK/4階)
| 家賃 | 管理費等 | 敷金 | 礼金 | 間取り | 専有面積 |
|---|---|---|---|---|---|
| 5.5万円 | 2,000円 | 11万円 | 5.5万円 | 1LDK | 41.18m2 |
入居決定でお祝い金最大100,000円
- 保証金
- -
- 償却・敷引
- -
- 築年数
- 築25年
- 所在階
- 4階
- 向き
- 南
Point
◆最寄りのスーパーまで徒歩6分!◆南向きで日当たり良好♪◆うれしいエアコン、シャワー付き洗面台あり♪◆バストイレ別、室内洗濯機置き場◆駐輪場◆オートロック◆お気軽に良和ハウスまでお問い合わせください★
提供:(株)良和ハウス広島西店(SUUMO経由)

詳細情報 リビオーヌ五日市中央
物件紹介
リビオーヌ五日市中央は広島電鉄宮島線楽々園駅から徒歩20分にあるマンションです。
このお部屋は2階以上に位置しているので通行人や周囲の住人からの視線が気になりにくく、建物のエントランスはオートロックがついているので防犯性が高くなっています。
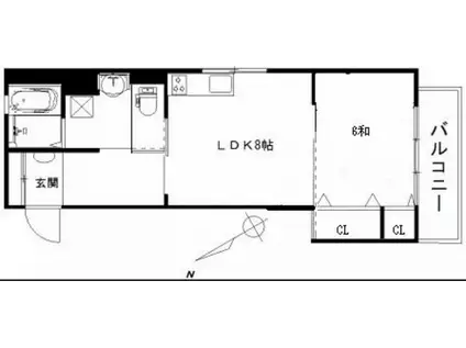
人気の南向きのお部屋。角部屋でもあるため、周囲の居住者の生活音も気になりにくい場所です。キッチンはシステムキッチン仕様になっていますので、お料理好きの方にもぴったり。また、バス・トイレは別で、のんびりお風呂タイムも楽しめるでしょう。
通信設備面では、インターネット接続が可能です。また、BSアンテナもありますので、おうち時間も充実するでしょう(別途工事、契約料が必要な場合あり)。
建物にはエレベーターがついているので、重い荷物があっても安心。
このお部屋は2階以上に位置しているので通行人や周囲の住人からの視線が気になりにくく、建物のエントランスはオートロックがついているので防犯性が高くなっています。
人気の南向きのお部屋。角部屋でもあるため、周囲の居住者の生活音も気になりにくい場所です。キッチンはシステムキッチン仕様になっていますので、お料理好きの方にもぴったり。また、バス・トイレは別で、のんびりお風呂タイムも楽しめるでしょう。
通信設備面では、インターネット接続が可能です。また、BSアンテナもありますので、おうち時間も充実するでしょう(別途工事、契約料が必要な場合あり)。
建物にはエレベーターがついているので、重い荷物があっても安心。
お金・契約の情報
※「-」と表示されているものは、実際は料金が発生するものもございます。詳細はお問い合わせください。
| 家賃 | 5.5万円 | 管理費・共益費 | 2,000円 |
|---|---|---|---|
| 敷金 | 11万円 | 礼金 | 5.5万円 |
| 入居決定でお祝い金最大100,000円 | |||
| 保証金 | - | 償却・敷引 | - |
| 住宅保険料 | - | 更新料 | - |
| 保証会社利用 | 必須 | 保証会社名 | - |
| 保証会社費用 | - | 保証会社備考 | 保証会社利用必 要確認 |
| 契約形態 | - | 契約期間 | - |
| 入居・引渡期間 | 相談 | 現況 | - |
| 契約備考 | 合計1.87万円(内訳:カギ交換代:18700円) 1LDK 損保【1.6万円2年】 バストイレ別、バルコニー、エアコン、クロゼット、シャワー付洗面台、オートロック、室内洗濯置、陽当り良好、シューズボックス、システムキッチン、南向き、角住戸、脱衣所、エレベーター、洗面所独立、2口コンロ、駐輪場、光ファイバー、2面採光、3口以上コンロ、IHクッキングヒーター、単身者相談、二人入居相談、カードキー、3面採光、2沿線利用可、キッチンに窓、浴室に窓、学生相談、3駅以上利用可、敷地内ごみ置き場、和室、全居室6畳以上、オープンキッチン、南面バルコニー、BS、初期費用カード決済可、通風良好 | ||
部屋の情報
| 間取り | 1LDK | 専有面積 | 41.18m2 |
|---|---|---|---|
| 所在階 / 向き | 4階 / 南 | バルコニー面積 | - |
| 水道 / ガス | - | ||
| 設備 | バス・トイレ別、2階以上、オートロック、インターネット対応、システムキッチン、エアコン、エレベーター、南向き、角部屋、バルコニー、洗髪洗面化粧台、2口コンロ、コンロ:IH、BSアンテナ、洗濯機:室内 | ||
| 当社物件ID | 134344642 | ||
建物の情報
| 建物名 | リビオーヌ五日市中央 | ||
|---|---|---|---|
| 所在地 | 広島県広島市佐伯区五日市中央 | ||
| 交通 | 広島電鉄宮島線 楽々園駅 徒歩20分 広島電鉄宮島線 佐伯区役所前駅 徒歩22分 JR山陽本線 五日市駅 徒歩27分 | ||
| 階数 | 5階建 | 総戸数 | 17戸 |
| 築年月 | 2001年03月 / 築25年 | エレベーター | あり |
| 駐車場 | 空有 8800円 | バイク置き場 | - |
| 駐輪場 | あり | 管理人/管理会社 | - |
| 周辺環境 | その他 ローソン五日市中央北店(コンビニ)まで271m その他 五日市福屋(ショッピングセンター)まで1909m その他 ユアーズ三筋店(スーパー)まで465m その他 ウォンツ五日市コイン通り店(ドラッグストア)まで1224m その他 広島市立五日市観音小学校(小学校)まで679m その他 石原脳神経外科病院(病院)まで1024m | ||
| 建物種別 | マンション | 建物構造 | RC(鉄筋コンクリート) |
この部屋の取扱い不動産会社
| 会社名 | (株)良和ハウス上安店(SUUMO経由) | ||
|---|---|---|---|
| 所在地 | 広島県広島市安佐南区上安2-29-3 | 交通 | - |
| 営業時間 | 10時~18時、日祝10時~18時 | 定休日 | 水曜日 |
| 免許番号 | 国土交通大臣9113 | 取引態様 | 仲介 |
| 不動産会社管理番号 | 100459923917 | 当社管理番号 | 89 |
| 所属団体 | (公社)広島県宅地建物取引業協会会員 | ||
| 公正取引協議会 | 中国地区不動産公正取引協議会加盟 | ||
| 取扱い物件情報 | 物件詳細へ | ||
※各種情報と現状に差異がある場合は、現状優先となります。問い合わせをすることで、より詳しい条件、情報を確認する事ができます。
提供:(株)良和ハウス上安店(SUUMO経由)
この物件が気になったら掲載期限まであと11日
リビオーヌ五日市中央に条件(家賃・エリア)が近い物件一覧
| 写真 | 家賃 管理費等 | 敷金 礼金 | 間取り 専有面積 | 築年数 | 最寄り駅 所在地 | キープ | 詳細 |
|---|---|---|---|---|---|---|---|
アパート コスモメゾン Ⅱ(2LDK/2階) | |||||||
![]() | 8.2万円 3,300円 | なし 9.2万円 | 2LDK 59.55m2 | 新築 | 広島県東広島市西条町御薗宇 | 詳細を見る | |
アパート 西原アパート(3DK/1階) | |||||||
![]() | 5.7万円 2,000円 | 11.4万円 5.7万円 | 3DK 47.28m2 | 築38年 | JR山陽本線 寺家駅 徒歩16分 JR山陽本線 西条駅(広島) 徒歩21分 広島県東広島市西条町寺家 | 詳細を見る | |
アパート レオパレスASEBAIII(1K/2階) | |||||||
![]() | 5.3万円 4,500円 | なし なし | 1K 19.87m2 | 築19年 | 広島電鉄宮島線 広電五日市駅 徒歩19分 JR山陽本線 五日市駅 徒歩20分 広島電鉄宮島線 井口駅(広島) 徒歩20分 広島県広島市西区井口 | 詳細を見る | |
アパート サニーハイツMARU(1K/1階) | |||||||
![]() | 3.9万円 4,000円 | なし 5.85万円 | 1K 24.71m2 | 築28年 | 広島電鉄宮島線 山陽女学園前駅 徒歩17分 広島電鉄宮島線 楽々園駅 徒歩20分 JR山陽本線 廿日市駅 徒歩24分 広島県広島市佐伯区屋代 | 詳細を見る | |
マンション サンマリオビル(2LDK/5階) | |||||||
![]() | 5.5万円 1,500円 | 16.5万円 5.5万円 | 2LDK 45.57m2 | 築53年 | 山陽本線 五日市駅 徒歩6分 広島県広島市佐伯区五日市駅前1丁目 | 詳細を見る | |
アパート セジュールMEきりた(2DK/1階) | |||||||
![]() | 5.2万円 4,500円 | なし 5万円 | 2DK 50.12m2 | 築26年 | 山陽本線 寺家駅 徒歩24分 広島県東広島市八本松東2丁目 | 詳細を見る | |
マンション 池口ビル(1K/4階) | |||||||
![]() | 4万円 なし | 8万円 4万円 | 1K 24.55m2 | 築34年 | JR山陽本線 安芸中野駅 徒歩20分 JR山陽本線 海田市駅 徒歩32分 JR呉線 矢野駅 徒歩48分 広島県安芸郡海田町国信 | 詳細を見る | |
マンション JR山陽本線 西条駅(広島) 徒歩14分 築17年(2LDK/3階) | |||||||
![]() | 6.3万円 3,000円 | 6.3万円 6.3万円 | 2LDK 61.43m2 | 築17年 | JR山陽本線 西条駅(広島) 徒歩14分 広島県東広島市西条土与丸 | 詳細を見る | |








