賃貸マンション
近江マンションの賃貸物件情報(1K/4階)
| 家賃 | 管理費等 | 敷金 | 礼金 | 間取り | 専有面積 |
|---|---|---|---|---|---|
| 6.8万円 | 5,000円 | 6.8万円 | なし | 1K | 23m2 |
入居決定でお祝い金最大100,000円
- 保証金
- -
- 償却・敷引
- 6.8万円
- 築年数
- 築51年
- 所在階
- 4階
- 向き
- 南
Point
池袋駅徒歩5分のマンション!利便性も良く、公園もあり住環境良好です!☆弊社のみ仲介可能です☆
提供:(有)青山グループ(SUUMO経由)

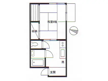
詳細情報 近江マンション
物件紹介
近江マンションはJR山手線池袋駅から徒歩5分にあり、駅近で通勤通学に便利なマンションです。
このお部屋は2階以上に位置しているので、通行人や周囲の住人からの視線が気になりにくく、防犯面でも安心です。
人気の南向きのお部屋。角部屋でもあるため、周囲の居住者の生活音も気になりにくい場所です。バス・トイレ別の仕様で、のんびりお風呂タイムも楽しめます。
建物にはエレベーターがついているので、重い荷物があっても安心。
このお部屋は2階以上に位置しているので、通行人や周囲の住人からの視線が気になりにくく、防犯面でも安心です。
人気の南向きのお部屋。角部屋でもあるため、周囲の居住者の生活音も気になりにくい場所です。バス・トイレ別の仕様で、のんびりお風呂タイムも楽しめます。
建物にはエレベーターがついているので、重い荷物があっても安心。
お金・契約の情報
※「-」と表示されているものは、実際は料金が発生するものもございます。詳細はお問い合わせください。
| 家賃 | 6.8万円 | 管理費・共益費 | 5,000円 |
|---|---|---|---|
| 敷金 | 6.8万円 | 礼金 | なし |
| 入居決定でお祝い金最大100,000円 | |||
| 保証金 | - | 償却・敷引 | 6.8万円 |
| 住宅保険料 | - | 更新料 | - |
| 保証会社利用 | 必須 | 保証会社名 | - |
| 保証会社費用 | - | 保証会社備考 | 保証会社利用必 j-リース初回賃料共益費の50%1年毎10000円 |
| 契約形態 | - | 契約期間 | - |
| 入居・引渡期間 | 即時 | 現況 | - |
| 契約備考 | 常駐管理 1K 二人入居可 損保【1.8万円2年】 バストイレ別、バルコニー、エアコン、ガスコンロ対応、室内洗濯置、陽当り良好、南向き、角住戸、エレベーター、2口コンロ、駐輪場、即入居可、南西角住戸、駅まで平坦、眺望良好、3駅以上利用可、3沿線以上利用可、駅徒歩5分以内、敷地内ごみ置き場、専有面積30坪以上、都市ガス、通風良好 | ||
部屋の情報
| 間取り | 1K | 専有面積 | 23m2 |
|---|---|---|---|
| 所在階 / 向き | 4階 / 南 | バルコニー面積 | - |
| 水道 / ガス | - | ||
| 設備 | バス・トイレ別、2階以上、エアコン、エレベーター、南向き、角部屋、バルコニー、2口コンロ、コンロ:ガス、洗濯機:室内 | ||
| 当社物件ID | 158182622 | ||
建物の情報
| 建物名 | 近江マンション | ||
|---|---|---|---|
| 所在地 | 東京都豊島区西池袋 | ||
| 交通 | JR山手線 池袋駅 徒歩5分 東京メトロ有楽町線 要町駅 徒歩10分 JR山手線 目白駅 徒歩17分 | ||
| 階数 | 6階建 | 総戸数 | - |
| 築年月 | 1975年04月 / 築51年 | エレベーター | あり |
| 駐車場 | なし | バイク置き場 | - |
| 駐輪場 | あり | 管理人/管理会社 | - |
| 周辺環境 | その他 SUIT SELECT IKEBUKURO WEST(ショッピングセンター)まで476m その他 Tabio Echika池袋店(ショッピングセンター)まで551m その他 まいばすけっと西池袋3丁目店(スーパー)まで151m その他 エチカ池袋(ショッピングセンター)まで442m その他 ファミリーマート西池袋三丁目店(コンビニ)まで198m その他 東武ストア西池袋店(スーパー)まで216m | ||
| 建物種別 | マンション | 建物構造 | SRC(鉄骨鉄筋コンクリート) |
この部屋の取扱い不動産会社
| 会社名 | (有)青山グループ(SUUMO経由) | ||
|---|---|---|---|
| 所在地 | 東京都豊島区西池袋3-26-1 | 交通 | - |
| 営業時間 | 9:30~18:30 | 定休日 | 水曜日 |
| 免許番号 | 東京都知事47253 | 取引態様 | 仲介 |
| 不動産会社管理番号 | 100483900010 | 当社管理番号 | 89 |
| 所属団体 | (公社)全日本不動産協会東京都本部会員 | ||
| 公正取引協議会 | (公社)首都圏不動産公正取引協議会加盟 | ||
| 取扱い物件情報 | 物件詳細へ | ||
※各種情報と現状に差異がある場合は、現状優先となります。問い合わせをすることで、より詳しい条件、情報を確認する事ができます。
提供:(有)青山グループ(SUUMO経由)
この物件が気になったら掲載期限まであと9日
近江マンションに条件(家賃・エリア)が近い物件一覧
| 写真 | 家賃 管理費等 | 敷金 礼金 | 間取り 専有面積 | 築年数 | 最寄り駅 所在地 | キープ | 詳細 |
|---|---|---|---|---|---|---|---|
アパート リブフラット北新宿(ワンルーム/1階) | |||||||
![]() | 6.9万円 4,000円 | なし なし | ワンルーム 10.07m2 | 築9年 | JR中央線 東中野駅 徒歩10分 JR中央線 大久保駅(東京) 徒歩12分 東京メトロ東西線 落合駅 徒歩16分 東京都新宿区北新宿 | 詳細を見る | |
アパート ケラモス(ワンルーム/1階) | |||||||
![]() | 6.6万円 2,000円 | 6.6万円 6.6万円 | ワンルーム 20.28m2 | 築6年 | 都営大江戸線 練馬駅 徒歩13分 西武池袋線 桜台駅(東京) 徒歩14分 都営大江戸線 新江古田駅 徒歩16分 東京都練馬区豊玉中 | 詳細を見る | |
アパート サンヒルズ江古田(ワンルーム/2階) | |||||||
![]() | 6万円 2,000円 | 6万円 なし | ワンルーム 13.6m2 | 築24年 | 西武有楽町線 新桜台駅 徒歩2分 西武池袋線 江古田駅 徒歩6分 都営大江戸線 新江古田駅 徒歩13分 東京都練馬区栄町 | 詳細を見る | |
マンション スカイコート茗荷谷壱番館(1K/5階) | |||||||
![]() | 8.69万円 8,100円 | 8.69万円 8.69万円 | 1K 21.7m2 | 築20年 | 東京メトロ丸ノ内線 茗荷谷駅 徒歩9分 都営三田線 白山駅(東京) 徒歩13分 東京メトロ南北線 本駒込駅 徒歩21分 東京都文京区白山 | 詳細を見る | |
アパート 城山ハウス(1K/2階) | |||||||
![]() | 5.3万円 2,000円 | 5.3万円 5.3万円 | 1K 15m2 | 築40年 | 東京都三田線 志村三丁目駅 徒歩6分 東京都三田線 志村坂上駅 徒歩10分 東京都板橋区志村2丁目 | 詳細を見る | |
アパート ホワイトパレス東山(ワンルーム/1階) | |||||||
![]() | 4.5万円 なし | 4.5万円 なし | ワンルーム 13.1m2 | 築39年 | 東武東上線 ときわ台駅(東京) 徒歩11分 東武東上線 中板橋駅 徒歩13分 東京メトロ有楽町線 小竹向原駅 徒歩19分 東京都板橋区東山町 | 詳細を見る | |
アパート 結城アパート(1DK/2階) | |||||||
![]() | 7万円 なし | 7万円 7万円 | 1DK 24.01m2 | 築70年 | 埼京線 十条駅(東京) 徒歩7分 京浜東北・根岸線 東十条駅 徒歩7分 東京都北区中十条1丁目 | 詳細を見る | |
マンション ピアーチェ落合(1K/1階) | |||||||
![]() | 6.7万円 3,000円 | 6.7万円 6.7万円 | 1K 20.4m2 | 築28年 | 東京メトロ東西線 落合駅 徒歩3分 都営大江戸線 中井駅 徒歩6分 JR中央線 東中野駅 徒歩12分 東京都新宿区上落合 | 詳細を見る | |









