賃貸マンション
ダイアパレス湘南ヒルズ 二宮の賃貸物件情報(4LDK/1階)
| 家賃 | 管理費等 | 敷金 | 礼金 | 間取り | 専有面積 |
|---|---|---|---|---|---|
| 7.9万円 | 1万円 | 7.9万円 | なし | 4LDK | 85.05m2 |
入居決定でお祝い金最大100,000円
- 保証金
- -
- 償却・敷引
- -
- 築年数
- 築34年
- 所在階
- 1階
- 向き
- 南東
Point
賃貸住宅仲介業店舗数NO.1のアパマンショップまで。
提供:アパマンショップ藤沢北口店

詳細情報 ダイアパレス湘南ヒルズ 二宮
物件紹介
ダイアパレス湘南ヒルズ 二宮はJR東海道本線二宮駅から徒歩27分にあるマンションです。
建物のエントランスはオートロックがついており、インターホンにはTVモニタもついているため、相手の顔を確認してから来客対応することができます。
人気の南向き・フローリングのお部屋。角部屋でもあるため、周囲の居住者の生活音も気になりにくい場所です。キッチンはシステムキッチン仕様になっていますので、お料理好きの方にもぴったり。また、バス・トイレは別で、のんびりお風呂タイムも楽しめるでしょう。
通信設備面では、インターネット接続が可能です。また、CATVにも対応しているので、おうち時間も充実するでしょう(別途工事、契約料が必要な場合あり)。
ペット飼育の相談ができますので、あなたの大切な家族の一員も快適に暮らせるか、ぜひ確認してみてください。
コンビニまで徒歩57分の場所にあり、日用品や食料品のお買い物にも便利です。
建物のエントランスはオートロックがついており、インターホンにはTVモニタもついているため、相手の顔を確認してから来客対応することができます。
人気の南向き・フローリングのお部屋。角部屋でもあるため、周囲の居住者の生活音も気になりにくい場所です。キッチンはシステムキッチン仕様になっていますので、お料理好きの方にもぴったり。また、バス・トイレは別で、のんびりお風呂タイムも楽しめるでしょう。
通信設備面では、インターネット接続が可能です。また、CATVにも対応しているので、おうち時間も充実するでしょう(別途工事、契約料が必要な場合あり)。
ペット飼育の相談ができますので、あなたの大切な家族の一員も快適に暮らせるか、ぜひ確認してみてください。
コンビニまで徒歩57分の場所にあり、日用品や食料品のお買い物にも便利です。
お金・契約の情報
※「-」と表示されているものは、実際は料金が発生するものもございます。詳細はお問い合わせください。
| 家賃 | 7.9万円 | 管理費・共益費 | 1万円 |
|---|---|---|---|
| 敷金 | 7.9万円 | 礼金 | なし |
| 入居決定でお祝い金最大100,000円 | |||
| 保証金 | - | 償却・敷引 | - |
| 住宅保険料 | 1.1万円(2年) | 更新料 | - |
| 保証会社利用 | 必須 | 保証会社名 | 全保連 |
| 保証会社費用 | - | 保証会社備考 | ※契約時月額賃料の50%(最低保証料20,000円)/1年毎に13,000円 |
| 契約形態 | 定期借家 | 契約期間 | 1年 |
| 入居・引渡期間 | 相談 | 現況 | - |
| 入居可能条件 | 2人入居可、ペット可 | ||
| 契約備考 | 再契約型定期借家契約/24コールセンター 契約開始後1年未満解約の場合違約金2ヶ月(賃料+共益費)有 ペット:敷金2ヶ月償却1.5ヶ月 鍵交換費 22000円/その他費用(諸費用:0.33万円/他) 6600円 | ||
部屋の情報
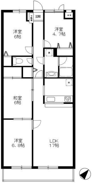
| 間取り | 4LDK | 専有面積 | 85.05m2 |
|---|---|---|---|
| 間取り詳細 | LDK(16帖)、洋室(4.9帖)、洋室(5.6帖)、洋室(5.6帖)、和室(6帖) | ||
| 所在階 / 向き | 1階 / 南東 | バルコニー面積 | - |
| 水道 / ガス | ガス【都市】 | ||
| 設備 | バス・トイレ別、オートロック、テレビドアホン、追い焚き、インターネット対応、システムキッチン、バルコニー、フローリング、コンロ:ガス、CATV、シャワー、給湯、洗濯機:室内、閑静な住宅街 | ||
| 当社物件ID | 102699522 | ||
建物の情報
| 建物名 | ダイアパレス湘南ヒルズ 二宮 | ||
|---|---|---|---|
| 所在地 | 神奈川県中郡二宮町中里2丁目 | ||
| 交通 | 東海道本線 二宮駅 バス乗車時間:10分 南五号前バス停で下車 徒歩2分 | ||
| 階数 | 6階建 | 総戸数 | 27戸 |
| 築年月 | 1992年09月 / 築34年 | エレベーター | - |
| 駐車場 | - | バイク置き場 | - |
| 駐輪場 | あり | 管理人/管理会社 | - |
| 周辺環境 | その他 セブン−イレブン小田原国府津北店 徒歩84分(6711m) その他 セブン−イレブン小田原国府津西店 徒歩87分(6958m) その他 セブン−イレブン小田原国府津西店 徒歩88分(6975m) その他 スリーエフ二宮中里店 徒歩4分(310m) | ||
| 建物種別 | マンション | 建物構造 | RC(鉄筋コンクリート) |
この部屋の取扱い不動産会社
| 会社名 | アパマンショップ辻堂店 | ||
|---|---|---|---|
| 所在地 | 神奈川県藤沢市辻堂2丁目 1-1湘南フラワービル1階 | 交通 | 東海道本線辻堂から徒歩1分 |
| 営業時間 | 10:00〜18:30 | 定休日 | 水曜日 |
| 免許番号 | 神奈川県知事(4)27699 | 取引態様 | 仲介 |
| 不動産会社管理番号 | 110701080 | 当社管理番号 | 4 |
| 所属団体 | (公社)神奈川県宅地建物取引業協会 | ||
| 公正取引協議会 | (公社) 首都圏不動産公正取引協議会加盟 | ||
| 取扱い物件情報 | 物件詳細へ | ||
※各種情報と現状に差異がある場合は、現状優先となります。問い合わせをすることで、より詳しい条件、情報を確認する事ができます。
提供:アパマンショップ辻堂店
この物件が気になったら掲載期限まであと9日
ダイアパレス湘南ヒルズ 二宮に条件(家賃・エリア)が近い物件一覧
| 写真 | 家賃 管理費等 | 敷金 礼金 | 間取り 専有面積 | 築年数 | 最寄り駅 所在地 | キープ | 詳細 |
|---|---|---|---|---|---|---|---|
アパート シティハイム湘南A(2DK/2階) | |||||||
![]() | 5.2万円 3,000円 | なし なし | 2DK 43.06m2 | 築43年 | JR東海道本線 鴨宮駅 徒歩7分 神奈川県小田原市酒匂 | 詳細を見る | |
アパート ベルローズ(1K/1階) | |||||||
![]() | 6.6万円 5,000円 | 6.6万円 なし | 1K 30.96m2 | 築16年 | JR東海道本線 平塚駅 徒歩15分 湘南新宿ライン高海 平塚駅 徒歩15分 JR東海道本線 大磯駅 徒歩35分 神奈川県平塚市平塚 | 詳細を見る | |
アパート フォレスト(1LDK/1階) | |||||||
![]() | 7.4万円 5,500円 | なし 7.4万円 | 1LDK 52.57m2 | 築11年 | 伊豆箱根大雄山線 五百羅漢駅 徒歩6分 神奈川県小田原市扇町5丁目 | 詳細を見る | |
アパート レオパレスくすの木II(1K/2階) | |||||||
![]() | 4.9万円 5,000円 | なし 4.9万円 | 1K 20.28m2 | 築22年 | 神奈川県平塚市西八幡 | 詳細を見る | |
アパート レオパレス卯月 2003(1K/1階) | |||||||
![]() | 5.2万円 5,000円 | なし なし | 1K 19.87m2 | 築23年 | 神奈川県平塚市纒1丁目 | 詳細を見る | |
アパート レオパレスメルベーユⅡ(1K/1階) | |||||||
![]() | 4.9万円 5,000円 | なし なし | 1K 19.87m2 | 築20年 | 神奈川県平塚市田村7丁目 | 詳細を見る | |
アパート ポートフィールド(1K/2階) | |||||||
![]() | 5.2万円 3,000円 | なし なし | 1K 20m2 | 築9年 | 小田急小田原線 東海大学前駅 徒歩25分 小田急小田原線 鶴巻温泉駅 徒歩31分 小田急小田原線 伊勢原駅 徒歩72分 神奈川県平塚市北金目 | 詳細を見る | |
アパート サントル ヴィラージュⅡ(ワンルーム/1階) | |||||||
![]() | 6.5万円 5,000円 | なし 6.5万円 | ワンルーム 30.96m2 | 築10年 | 小田急電鉄小田原線 東海大学前駅 徒歩22分 神奈川県平塚市北金目1丁目 | 詳細を見る | |








