賃貸アパート
サニープレインD棟の賃貸物件情報(1LDK/2階)
| 家賃 | 管理費等 | 敷金 | 礼金 | 間取り | 専有面積 |
|---|---|---|---|---|---|
| 4.4万円 | 3,000円 | 6.6万円 | なし | 1LDK | 48.03m2 |
入居決定でお祝い金最大100,000円
- 保証金
- -
- 償却・敷引
- -
- 築年数
- 築24年
- 所在階
- 2階
- 向き
- 南西
Point
追い焚き機能付きでいつでも温かいお風呂に入れます。
提供:いい部屋ネット大東建託リーシング(株)倉敷店(SUUMO経由)

詳細情報 サニープレインD棟
物件紹介
サニープレインD棟は水島臨海鉄道弥生駅から徒歩25分にあるアパートです。
このお部屋は2階以上に位置しているので、通行人や周囲の住人からの視線が気になりにくく、防犯面でも安心。インターホンにはTVモニタもついているため、相手の顔を確認してから来客対応することができます。
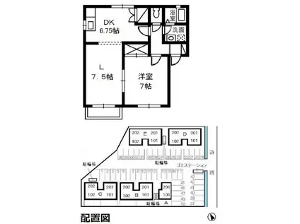
人気の南向き・フローリングのお部屋。角部屋でもあるため、周囲の居住者の生活音も気になりにくい場所です。バス・トイレ別の仕様で、のんびりお風呂タイムも楽しめます。
通信設備面では、インターネット接続が可能です。また、CATVにも対応しているので、おうち時間も充実するでしょう(別途工事、契約料が必要な場合あり)。
このお部屋は2階以上に位置しているので、通行人や周囲の住人からの視線が気になりにくく、防犯面でも安心。インターホンにはTVモニタもついているため、相手の顔を確認してから来客対応することができます。
人気の南向き・フローリングのお部屋。角部屋でもあるため、周囲の居住者の生活音も気になりにくい場所です。バス・トイレ別の仕様で、のんびりお風呂タイムも楽しめます。
通信設備面では、インターネット接続が可能です。また、CATVにも対応しているので、おうち時間も充実するでしょう(別途工事、契約料が必要な場合あり)。
お金・契約の情報
※「-」と表示されているものは、実際は料金が発生するものもございます。詳細はお問い合わせください。
| 家賃 | 4.4万円 | 管理費・共益費 | 3,000円 |
|---|---|---|---|
| 敷金 | 6.6万円 | 礼金 | なし |
| 入居決定でお祝い金最大100,000円 | |||
| 保証金 | - | 償却・敷引 | - |
| 住宅保険料 | - | 更新料 | - |
| 保証会社利用 | 必須 | 保証会社名 | - |
| 保証会社費用 | - | 保証会社備考 | 保証会社利用必 初回保証料賃料総額の50%(最低保証料20000円)・月額保証料賃料総額の1% |
| 契約形態 | - | 契約期間 | - |
| 入居・引渡期間 | - | 現況 | - |
| 契約備考 | 2台目駐車料3300円/月 合計1.32万円(内訳:鍵交換代 13200円税込) 1LDK 二人入居可 普通借家2年 損保【要】 バストイレ別、バルコニー、エアコン、ガスコンロ対応、フローリング、TVインターホン、室内洗濯置、シューズボックス、追焚機能浴室、角住戸、温水洗浄便座、洗面所独立、洗面化粧台、駐輪場、CATV、礼金不要、最上階、駐車場1台無料、保証人不要、駐車2台可、二人入居相談、南西角住戸、全居室フローリング、2沿線利用可、3駅以上利用可、敷地内ごみ置き場、南西向き、LDK12畳以上、全居室6畳以上、プロパンガス、洗面所にドア、IT重説対応物件、初期費用カード決済可 入居日:'26年4月下旬 | ||
部屋の情報
| 間取り | 1LDK | 専有面積 | 48.03m2 |
|---|---|---|---|
| 所在階 / 向き | 2階 / 南西 | バルコニー面積 | - |
| 水道 / ガス | - | ||
| 設備 | バス・トイレ別、2階以上、テレビドアホン、追い焚き、エアコン、温水洗浄便座、南向き、角部屋、バルコニー、フローリング、洗髪洗面化粧台、コンロ:ガス、CATV、洗濯機:室内 | ||
| 当社物件ID | 2511150 | ||
建物の情報
| 建物名 | サニープレインD棟 | ||
|---|---|---|---|
| 所在地 | 岡山県倉敷市連島中央 | ||
| 交通 | 水島臨海鉄道 弥生駅 徒歩26分 JR山陽本線 西阿知駅 徒歩72分 JR山陽本線 新倉敷駅 徒歩80分 | ||
| 階数 | 2階建 | 総戸数 | 4戸 |
| 築年月 | 2002年02月 / 築24年 | エレベーター | - |
| 駐車場 | 空有 付無料 | バイク置き場 | - |
| 駐輪場 | あり | 管理人/管理会社 | - |
| 周辺環境 | その他 セブンイレブン 連島中央3丁目店(コンビニ)まで472m その他 ニシナフードバスケット 連島中央店(スーパー)まで622m その他 ザ・ビッグ連島店(スーパー)まで1464m その他 ハローズ 連島店(スーパー)まで1207m | ||
| 建物種別 | アパート | 建物構造 | 木造 |
この部屋の取扱い不動産会社
| 会社名 | ミニミニFC玉島店(電話番号→お問い合わせ係)(株)さくらコーポレーション(SUUMO経由) | ||
|---|---|---|---|
| 所在地 | 岡山県倉敷市新倉敷駅前1-12-1 | 交通 | - |
| 営業時間 | 10:00~18:00 | 定休日 | 水曜日 |
| 免許番号 | 岡山県知事3778 | 取引態様 | 仲介 |
| 不動産会社管理番号 | 100485332745 | 当社管理番号 | 89 |
| 所属団体 | (公社)岡山県宅地建物取引業協会会員 | ||
| 公正取引協議会 | 中国地区不動産公正取引協議会加盟 | ||
| 取扱い物件情報 | 物件詳細へ | ||
※各種情報と現状に差異がある場合は、現状優先となります。問い合わせをすることで、より詳しい条件、情報を確認する事ができます。
提供:ミニミニFC玉島店(電話番号→お問い合わせ係)(株)さくらコーポレーション(SUUMO経由)
この物件が気になったら掲載期限まであと11日
サニープレインD棟に条件(家賃・エリア)が近い物件一覧
| 写真 | 家賃 管理費等 | 敷金 礼金 | 間取り 専有面積 | 築年数 | 最寄り駅 所在地 | キープ | 詳細 |
|---|---|---|---|---|---|---|---|
マンション ブロードヒル(1K/5階) | |||||||
![]() | 4.8万円 3,000円 | なし なし | 1K 29.81m2 | 築29年 | JR山陽本線 中庄駅 徒歩17分 JR山陽本線 庭瀬駅 徒歩56分 岡山県倉敷市松島 | 詳細を見る | |
アパート レオパレス ディアコート中島(1K/1階) | |||||||
![]() | 3.4万円 4,500円 | なし 3.4万円 | 1K 23.18m2 | 築23年 | 水島臨海鉄道 福井駅(岡山) 徒歩14分 岡山県倉敷市中島 | 詳細を見る | |
アパート シャルマンA棟(1LDK/1階) | |||||||
![]() | 5.2万円 4,000円 | なし 5.2万円 | 1LDK 49.05m2 | 築23年 | JR山陽本線 倉敷駅 徒歩25分 水島臨海鉄道 倉敷市駅 徒歩31分 水島臨海鉄道 球場前駅(岡山) 徒歩36分 岡山県倉敷市酒津 | 詳細を見る | |
マンション リビンコートSTUDIO奉還町ウエスト(1K/2階) | |||||||
![]() | 5.7万円 6,000円 | 5.7万円 5.7万円 | 1K 30.03m2 | 築3年 | 山陽本線 岡山駅 徒歩12分 岡山県岡山市北区奉還町4丁目 | 詳細を見る | |
アパート レオパレス浜野二丁目(1K/2階) | |||||||
![]() | 4.8万円 6,500円 | なし 4.8万円 | 1K 20.28m2 | 築20年 | 岡山県岡山市南区浜野2丁目 | 詳細を見る | |
アパート レオパレスファーストK(1K/2階) | |||||||
![]() | 4.9万円 4,500円 | なし なし | 1K 23.18m2 | 築18年 | JR山陽本線 鴨方駅 徒歩17分 JR山陽本線 金光駅 徒歩45分 JR山陽本線 里庄駅 徒歩62分 岡山県浅口市鴨方町鴨方 | 詳細を見る | |
マンション サンジェルマン番町(2DK/6階) | |||||||
![]() | 3.3万円 5,000円 | なし なし | 2DK 46m2 | 築58年 | 岡山電軌東山本線 柳川駅 徒歩10分 岡山電軌東山本線 城下駅(岡山) 徒歩12分 岡山電軌東山本線 西川緑道公園駅 徒歩13分 岡山県岡山市北区番町 | 詳細を見る | |
マンション サンハイム一番館(2LDK/2階) | |||||||
![]() | 6万円 5,000円 | 6万円 6万円 | 2LDK 50m2 | 築24年 | JR山陽本線 高島駅(岡山) 徒歩6分 岡山県岡山市中区赤田 | 詳細を見る | |








