賃貸アパート
YSメディカ郡山の賃貸物件情報(1LDK/3階)
| 家賃 | 管理費等 | 敷金 | 礼金 | 間取り | 専有面積 |
|---|---|---|---|---|---|
| 6.5万円 | 3,500円 | 6.5万円 | 6.5万円 | 1LDK | 41.29m2 |
入居決定でお祝い金最大100,000円
- 保証金
- -
- 償却・敷引
- -
- 築年数
- 築10年
- 所在階
- 3階
- 向き
- 南
Point
WYFI(1G高速大容量)のinteranet。制限なしにご利用可能
提供:(有)タイメックス都市開発(SUUMO経由)

詳細情報 YSメディカ郡山
物件紹介
YSメディカ郡山はJR磐越西線郡山富田駅から徒歩8分にあり、駅近で通勤通学に便利なアパートです。
このお部屋は2階以上に位置しているので通行人や周囲の住人からの視線が気になりにくく、建物のエントランスはオートロックがついているので防犯性が高くなっています。
人気の南向き・フローリングのお部屋。室内にはウォークインクローゼットがありますので、たくさんの荷物も効率的に収納ができます。バス・トイレ別の仕様で、のんびりお風呂タイムも楽しめます。
通信設備面では、インターネットが無料で使えるので、月々の出費を抑えられるのも魅力です(別途工事等が必要な場合あり)。
共用部には宅配ボックスが設定されているので、不在の時にも荷物を受け取ることができます。
このお部屋は2階以上に位置しているので通行人や周囲の住人からの視線が気になりにくく、建物のエントランスはオートロックがついているので防犯性が高くなっています。
人気の南向き・フローリングのお部屋。室内にはウォークインクローゼットがありますので、たくさんの荷物も効率的に収納ができます。バス・トイレ別の仕様で、のんびりお風呂タイムも楽しめます。
通信設備面では、インターネットが無料で使えるので、月々の出費を抑えられるのも魅力です(別途工事等が必要な場合あり)。
共用部には宅配ボックスが設定されているので、不在の時にも荷物を受け取ることができます。
お金・契約の情報
※「-」と表示されているものは、実際は料金が発生するものもございます。詳細はお問い合わせください。
| 家賃 | 6.5万円 | 管理費・共益費 | 3,500円 |
|---|---|---|---|
| 敷金 | 6.5万円 | 礼金 | 6.5万円 |
| 入居決定でお祝い金最大100,000円 | |||
| 保証金 | - | 償却・敷引 | - |
| 住宅保険料 | - | 更新料 | - |
| 保証会社利用 | 必須 | 保証会社名 | - |
| 保証会社費用 | - | 保証会社備考 | 保証会社利用必 アーク株式会社 初回保証料月額賃貸料金総合計40% 月額保証料970円 |
| 契約形態 | - | 契約期間 | - |
| 入居・引渡期間 | - | 現況 | - |
| 契約備考 | ヨークタウンまで1100m/カインズホームまで600m/巡回管理 1LDK バストイレ別、バルコニー、エアコン、フローリング、オートロック、南向き、追焚機能浴室、温水洗浄便座、洗面所独立、洗面化粧台、駐輪場、宅配ボックス、対面式キッチン、防犯カメラ、IHクッキングヒーター、照明付、ウォークインクロゼット、ネット使用料不要、眺望良好、敷地内ごみ置き場 入居日:'26年2月中旬 | ||
部屋の情報
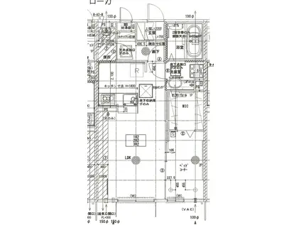
| 間取り | 1LDK | 専有面積 | 41.29m2 |
|---|---|---|---|
| 所在階 / 向き | 3階 / 南 | バルコニー面積 | - |
| 水道 / ガス | - | ||
| 設備 | バス・トイレ別、2階以上、オートロック、宅配ボックス、ウォークインクローゼット、追い焚き、インターネット対応、エアコン、温水洗浄便座、南向き、バルコニー、フローリング、洗髪洗面化粧台、コンロ:IH、インターネット使用料無料 | ||
| 当社物件ID | 160308513 | ||
建物の情報
| 建物名 | YSメディカ郡山 | ||
|---|---|---|---|
| 所在地 | 福島県郡山市富田東 | ||
| 交通 | JR磐越西線 郡山富田駅 徒歩8分 JR東北本線 郡山駅(福島) 徒歩46分 JR磐越西線 喜久田駅 徒歩60分 | ||
| 階数 | 3階建 | 総戸数 | - |
| 築年月 | 2016年09月 / 築10年 | エレベーター | - |
| 駐車場 | 空有 3300円 | バイク置き場 | - |
| 駐輪場 | あり | 管理人/管理会社 | - |
| 周辺環境 | その他 カインズホーム郡山富田店(ホームセンター)まで742m その他 ツルハドラッグ富田店(ドラッグストア)まで643m その他 ファミリーマート郡山曲田店(コンビニ)まで535m その他 ヨークベニマル八山田店(スーパー)まで1176m その他 東邦銀行富田支店(銀行)まで743m その他 私立奥羽大学(大学・短大)まで868m | ||
| 建物種別 | アパート | 建物構造 | 軽量鉄骨造 |
この部屋の取扱い不動産会社
| 会社名 | (有)タイメックス都市開発(SUUMO経由) | ||
|---|---|---|---|
| 所在地 | 福島県郡山市富田東1-16 | 交通 | - |
| 営業時間 | - | 定休日 | - |
| 免許番号 | 福島県知事1768 | 取引態様 | 代理 |
| 不動産会社管理番号 | 100319564793 | 当社管理番号 | 89 |
| 所属団体 | (公社)福島県宅地建物取引業協会会員 | ||
| 公正取引協議会 | 東北地区不動産公正取引協議会加盟 | ||
| 取扱い物件情報 | 物件詳細へ | ||
※各種情報と現状に差異がある場合は、現状優先となります。問い合わせをすることで、より詳しい条件、情報を確認する事ができます。
提供:(有)タイメックス都市開発(SUUMO経由)
この物件が気になったら掲載期限まであと10日
YSメディカ郡山に条件(家賃・エリア)が近い物件一覧
| 写真 | 家賃 管理費等 | 敷金 礼金 | 間取り 専有面積 | 築年数 | 最寄り駅 所在地 | キープ | 詳細 |
|---|---|---|---|---|---|---|---|
アパート フラットすわB(3DK/2階) | |||||||
![]() | 5.6万円 4,000円 | なし なし | 3DK 53m2 | 築28年 | 福島県郡山市富田町字諏訪西 | 詳細を見る | |
アパート グリーンハイツ石井(3K/1階) | |||||||
![]() | 6万円 なし | 6万円 6万円 | 3K 62.16m2 | 築12年 | 東北本線 二本松駅 徒歩5分 福島県二本松市茶園1丁目 | 詳細を見る | |
アパート ヴェルアベニュー(2K/2階) | |||||||
![]() | 4.5万円 3,000円 | なし なし | 2K 30m2 | 築28年 | JR水郡線 安積永盛駅 徒歩16分 JR東北本線 安積永盛駅 徒歩16分 東北新幹線 郡山駅(福島) 徒歩73分 福島県郡山市安積町南長久保 | 詳細を見る | |
アパート ゼンポーハイツフルマチA(2LDK/3階) | |||||||
![]() | 5.5万円 1,000円 | なし なし | 2LDK 50.22m2 | 築27年 | JR東北本線 郡山駅(福島) 徒歩25分 福島県郡山市富久山町久保田古町 | 詳細を見る | |
アパート リバーウッド絆(2LDK/2階) | |||||||
![]() | 6.1万円 2,500円 | 6.1万円 なし | 2LDK 56.31m2 | 築14年 | 福島県二本松市三保内 | 詳細を見る | |
マンション メゾンKUMADA(1LDK/3階) | |||||||
![]() | 4.3万円 3,000円 | なし なし | 1LDK 32.83m2 | 築38年 | 東北新幹線 郡山駅(福島) 徒歩17分 JR東北本線 郡山駅(福島) 徒歩17分 JR磐越西線 郡山駅(福島) 徒歩17分 福島県郡山市堂前町 | 詳細を見る | |
アパート 鈴木アパートC棟(3DK/1階) | |||||||
![]() | 6万円 なし | 12万円 なし | 3DK 59.62m2 | 築26年 | JR東北本線 日和田駅 徒歩17分 福島県郡山市日和田町財ノ木原 | 詳細を見る | |


/105x80-f1-q70-wp1)
/105x80-f1-q70-wp1)


/105x80-f1-q70-wp1)

