賃貸アパート
YSメディカ郡山の賃貸物件情報(1LDK/1階)
| 家賃 | 管理費等 | 敷金 | 礼金 | 間取り | 専有面積 |
|---|---|---|---|---|---|
| 6万円 | 3,500円 | 6万円 | 6万円 | 1LDK | 41.29m2 |
入居決定でお祝い金最大100,000円
- 保証金
- -
- 償却・敷引
- -
- 築年数
- 築10年
- 所在階
- 1階
- 向き
- 南
Point
郡山富田駅徒歩圏内、商業施設も豊富なエリアで生活便利です。駐車場契約が必須となります。
提供:(有)タイメックス都市開発(SUUMO経由)

詳細情報 YSメディカ郡山
物件紹介
YSメディカ郡山はJR磐越西線郡山富田駅から徒歩8分にあり、駅近で通勤通学に便利なアパートです。
建物のエントランスはオートロックがついており、インターホンにはTVモニタもついているため、相手の顔を確認してから来客対応することができます。
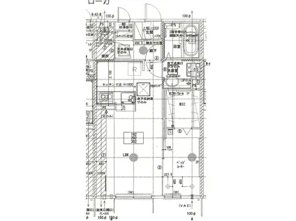
人気の南向き・フローリングのお部屋。室内にはウォークインクローゼットがありますので、たくさんの荷物も効率的に収納ができます。キッチンはシステムキッチン仕様になっていますので、お料理好きの方にもぴったり。バス・トイレは別なので、のんびりお風呂タイムも楽しめるでしょう。また、雨の日でも浴室乾燥機を使えば、お洗濯も問題ありません。
通信設備面では、インターネットが無料で使えるので、月々の出費を抑えられるのも魅力です。また、BSアンテナもありますので、おうち時間も充実するでしょう(別途工事、BSの契約料等が必要な場合あり)。
共用部には宅配ボックスが設定されているので、不在の時にも荷物を受け取ることができます。
建物のエントランスはオートロックがついており、インターホンにはTVモニタもついているため、相手の顔を確認してから来客対応することができます。
人気の南向き・フローリングのお部屋。室内にはウォークインクローゼットがありますので、たくさんの荷物も効率的に収納ができます。キッチンはシステムキッチン仕様になっていますので、お料理好きの方にもぴったり。バス・トイレは別なので、のんびりお風呂タイムも楽しめるでしょう。また、雨の日でも浴室乾燥機を使えば、お洗濯も問題ありません。
通信設備面では、インターネットが無料で使えるので、月々の出費を抑えられるのも魅力です。また、BSアンテナもありますので、おうち時間も充実するでしょう(別途工事、BSの契約料等が必要な場合あり)。
共用部には宅配ボックスが設定されているので、不在の時にも荷物を受け取ることができます。
お金・契約の情報
※「-」と表示されているものは、実際は料金が発生するものもございます。詳細はお問い合わせください。
| 家賃 | 6万円 | 管理費・共益費 | 3,500円 |
|---|---|---|---|
| 敷金 | 6万円 | 礼金 | 6万円 |
| 入居決定でお祝い金最大100,000円 | |||
| 保証金 | - | 償却・敷引 | - |
| 住宅保険料 | - | 更新料 | - |
| 保証会社利用 | 必須 | 保証会社名 | - |
| 保証会社費用 | - | 保証会社備考 | 保証会社利用必 月額保証料:賃料総額3.6% |
| 契約形態 | - | 契約期間 | - |
| 入居・引渡期間 | - | 現況 | - |
| 契約備考 | コメダ珈琲店郡山富田店まで370m/トライアル郡山富田店まで650m/内環状線沿い/駐輪場が敷地内/2台目駐車料5,000円(税別)空き都度確認要。契約時保証会社の審査要。別途保証料あり。 1LDK バストイレ別、バルコニー、エアコン、クロゼット、フローリング、シャワー付洗面台、TVインターホン、浴室乾燥機、オートロック、室内洗濯置、陽当り良好、シューズボックス、システムキッチン、南向き、追焚機能浴室、温水洗浄便座、洗面所独立、洗面化粧台、2口コンロ、駐輪場、宅配ボックス、3口以上コンロ、対面式キッチン、IHクッキングヒーター、照明付、グリル付、ウォークインクロゼット、全居室フローリング、ネット使用料不要、床下収納、トランクルーム、複層ガラス、浴室1坪以上、3沿線以上利用可、敷地内ごみ置き場、セキュリティ会社加入済、LDK12畳以上、オープンキッチン、プロパンガス、洗面所にドア、シャッター、BS、IT重説対応物件、初期費用カード決済可 入居日:'26年4月上旬 | ||
部屋の情報
| 間取り | 1LDK | 専有面積 | 41.29m2 |
|---|---|---|---|
| 所在階 / 向き | 1階 / 南 | バルコニー面積 | - |
| 水道 / ガス | - | ||
| 設備 | バス・トイレ別、オートロック、テレビドアホン、宅配ボックス、浴室乾燥機、ウォークインクローゼット、追い焚き、インターネット対応、システムキッチン、エアコン、温水洗浄便座、南向き、バルコニー、フローリング、トランクルーム、床下収納、洗髪洗面化粧台、2口コンロ、コンロ:IH、BSアンテナ、インターネット使用料無料、洗濯機:室内 | ||
| 当社物件ID | 160496425 | ||
建物の情報
| 建物名 | YSメディカ郡山 | ||
|---|---|---|---|
| 所在地 | 福島県郡山市富田東 | ||
| 交通 | 東北新幹線 郡山駅(福島) バス乗車時間:20分 最寄りバス停で下車 徒歩6分 JR東北本線 郡山駅(福島) バス乗車時間:20分 最寄りバス停で下車 徒歩6分 JR磐越東線 郡山駅(福島) バス乗車時間:20分 最寄りバス停で下車 徒歩6分 | ||
| 階数 | 3階建 | 総戸数 | 24戸 |
| 築年月 | 2016年09月 / 築10年 | エレベーター | - |
| 駐車場 | 空有 3300円/平置駐 | バイク置き場 | - |
| 駐輪場 | あり | 管理人/管理会社 | - |
| 周辺環境 | その他 セブンイレブン郡山奥羽大学前店(コンビニ)まで754m その他 ブイチェーン富田東店(スーパー)まで907m その他 ウエルシア郡山富田店(ドラッグストア)まで878m その他 カインズ郡山富田店(ホームセンター)まで689m その他 マクドナルド郡山富田カインズホー(飲食店)まで658m その他 ゲオ郡山うねめ通り店(レンタルビデオ)まで1927m | ||
| 建物種別 | アパート | 建物構造 | 軽量鉄骨造 |
この部屋の取扱い不動産会社
| 会社名 | ミニミニFC郡山桑野店(株)アイル(SUUMO経由) | ||
|---|---|---|---|
| 所在地 | 福島県郡山市桑野2-34-1 ロイヤル桑野101号 | 交通 | - |
| 営業時間 | 10:00~18:00 | 定休日 | 毎週火曜日、水曜日 |
| 免許番号 | 福島県知事2383 | 取引態様 | 仲介 |
| 不動産会社管理番号 | 100492347085 | 当社管理番号 | 89 |
| 所属団体 | (公社)福島県宅地建物取引業協会会員 | ||
| 公正取引協議会 | 東北地区不動産公正取引協議会加盟 | ||
| 取扱い物件情報 | 物件詳細へ | ||
※各種情報と現状に差異がある場合は、現状優先となります。問い合わせをすることで、より詳しい条件、情報を確認する事ができます。
提供:ミニミニFC郡山桑野店(株)アイル(SUUMO経由)
この物件が気になったら掲載期限まであと11日
YSメディカ郡山に条件(家賃・エリア)が近い物件一覧
| 写真 | 家賃 管理費等 | 敷金 礼金 | 間取り 専有面積 | 築年数 | 最寄り駅 所在地 | キープ | 詳細 |
|---|---|---|---|---|---|---|---|
マンション ランドパレスアミティエ(2K/2階) | |||||||
![]() | 4.7万円 2,000円 | なし なし | 2K 39.74m2 | 築31年 | JR磐越西線 郡山富田駅 徒歩41分 JR東北本線 郡山駅(福島) 徒歩47分 JR磐越西線 喜久田駅 徒歩77分 福島県郡山市亀田 | 詳細を見る | |
アパート クレイノランブラス(1K/1階) | |||||||
![]() | 5.2万円 4,500円 | なし なし | 1K 25.06m2 | 築8年 | 東北本線 須賀川駅 徒歩10分 福島県須賀川市崩免 | 詳細を見る | |
アパート アークパレス(ワンルーム/1階) | |||||||
![]() | 4.2万円 5,000円 | なし なし | ワンルーム 29.5m2 | 築16年 | 福島県郡山市田村町徳定下河原 | 詳細を見る | |
一戸建て 福島県二本松市 築44年(2K) | |||||||
| 6万円 なし | 12万円 6万円 | 2K 81.27m2 | 築44年 | 福島県二本松市平石高田2丁目 | 詳細を見る | ||
アパート フレグランス八山田 CII(2DK/2階) | |||||||
![]() | 4万円 なし | 8万円 なし | 2DK 35m2 | 築34年 | JR磐越西線 郡山富田駅 徒歩27分 JR東北本線 日和田駅 徒歩38分 福島県郡山市八山田 | 詳細を見る | |
マンション エクセル長者(1DK/2階) | |||||||
![]() | 5万円 なし | なし なし | 1DK 28m2 | 築30年 | 福島県郡山市長者 | 詳細を見る | |
アパート ラムダップ・ベータ(2LDK/2階) | |||||||
![]() | 7.2万円 4,000円 | なし なし | 2LDK 55m2 | 築15年 | 福島県郡山市東原3丁目 | 詳細を見る | |
アパート ユニティー郡山(2DK/1階) | |||||||
![]() | 3.9万円 なし | なし なし | 2DK 40m2 | 築34年 | 福島県郡山市大槻町麦塚 | 詳細を見る | |



/105x80-f1-q70-wp1)



/105x80-f1-q70-wp1)
