賃貸マンション
ハイムピア21の賃貸物件情報(ワンルーム/4階)
| 家賃 | 管理費等 | 敷金 | 礼金 | 間取り | 専有面積 |
|---|---|---|---|---|---|
| 5.6万円 | 5,000円 | なし | なし | ワンルーム | 15m2 |
入居決定でお祝い金最大100,000円
Point
室内設備はエアコン・フローリングなどが揃っており、とても充実しています。
提供:(株)タウンハウジング東京 府中店(SUUMO経由)

詳細情報 ハイムピア21
物件紹介
ハイムピア21は京王線柴崎駅から徒歩9分にあり、駅近で通勤通学に便利なマンションです。
こちらの物件は女性限定の物件となっているため、セキュリティ面を重視する女性にも安心してお選びいただけます。また、2階以上に位置しているので、通行人や周囲の住人からの視線が気になりにくいのも安心できるポイントです。建物のエントランスはオートロックがついており、インターホンにはTVモニタもついているため、相手の顔を確認してから来客対応することができます。
人気の南向き・フローリングのお部屋。角部屋でもあるため、周囲の居住者の生活音も気になりにくい場所です。キッチンはシステムキッチン仕様になっていますので、お料理好きの方にもぴったり。
通信設備面では、インターネット接続が可能です。また、BSアンテナがありCATVにも対応しているので、おうち時間も充実するでしょう(別途工事、契約料が必要な場合あり)。
共用部には宅配ボックスが設定されているので、不在の時にも荷物を受け取ることができます。
こちらの物件は女性限定の物件となっているため、セキュリティ面を重視する女性にも安心してお選びいただけます。また、2階以上に位置しているので、通行人や周囲の住人からの視線が気になりにくいのも安心できるポイントです。建物のエントランスはオートロックがついており、インターホンにはTVモニタもついているため、相手の顔を確認してから来客対応することができます。
人気の南向き・フローリングのお部屋。角部屋でもあるため、周囲の居住者の生活音も気になりにくい場所です。キッチンはシステムキッチン仕様になっていますので、お料理好きの方にもぴったり。
通信設備面では、インターネット接続が可能です。また、BSアンテナがありCATVにも対応しているので、おうち時間も充実するでしょう(別途工事、契約料が必要な場合あり)。
共用部には宅配ボックスが設定されているので、不在の時にも荷物を受け取ることができます。
お金・契約の情報
※「-」と表示されているものは、実際は料金が発生するものもございます。詳細はお問い合わせください。
| 家賃 | 5.6万円 | 管理費・共益費 | 5,000円 |
|---|---|---|---|
| 敷金 | なし | 礼金 | なし |
| 入居決定でお祝い金最大100,000円 | |||
| 保証金 | - | 償却・敷引 | - |
| 住宅保険料 | 1円 | 更新料 | - |
| その他費用 | サポート24円:2.2万円 | ||
| 保証会社利用 | 必須 | 保証会社名 | - |
| 保証会社費用 | - | 保証会社備考 | 初回:総賃料の50% 総賃料の1%/月 |
| 契約形態 | - | 契約期間 | 2年 |
| 入居・引渡期間 | 2026年03月 | 現況 | - |
| 入居可能条件 | 女性限定、事務所不可、ペット不可 | ||
| 契約備考 | 女性限定 室内清掃費用:55000 その他設備/条件:室内洗濯機置き場、シューズボックス | ||
部屋の情報
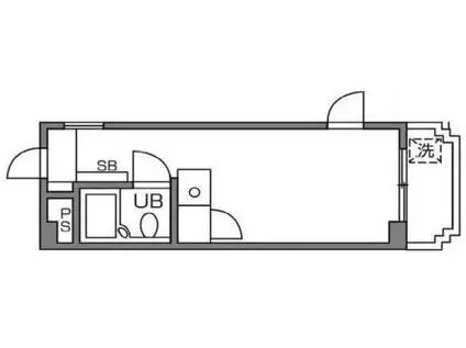
| 間取り | ワンルーム | 専有面積 | 15m2 |
|---|---|---|---|
| 所在階 / 向き | 4階 / 東 | バルコニー面積 | - |
| 水道 / ガス | 水道【公営】、ガス【都市】 | ||
| 設備 | オートロック、宅配ボックス、エアコン、角部屋、バルコニー、フローリング、コンロ:IH、シャワー、給湯、1口コンロ | ||
| 当社物件ID | 2159181 | ||
建物の情報
| 建物名 | ハイムピア21 | ||
|---|---|---|---|
| 所在地 | 東京都調布市西つつじケ丘1丁目 | ||
| 交通 | 京王電鉄京王線 柴崎駅 徒歩9分 京王電鉄京王線 つつじケ丘駅 徒歩11分 | ||
| 階数 | 4階建 | 総戸数 | 34戸 |
| 築年月 | 1989年04月 / 築37年 | エレベーター | - |
| 駐車場 | なし | バイク置き場 | - |
| 駐輪場 | - | 管理人/管理会社 | - |
| 周辺環境 | 販売店 徒歩12分(935m) その他 ドラッグストア その他 公園 その他 銀行 その他 * | ||
| 建物種別 | マンション | 建物構造 | RC(鉄筋コンクリート) |
この部屋の取扱い不動産会社
| 会社名 | ハウスコム東神奈川株式会社 登戸店 | ||
|---|---|---|---|
| 所在地 | 神奈川県川崎市多摩区3414-2DESIRE登戸3階 | 交通 | - |
| 営業時間 | 10:00~18:00 | 定休日 | 水曜定休 |
| 免許番号 | 神奈川県知事(1)第31769号 | 取引態様 | 仲介 |
| 不動産会社管理番号 | HC2-518999-401-0267 | 当社管理番号 | 468 |
| 所属団体 | 、 | ||
| 取扱い物件情報 | 物件詳細へ | ||
※各種情報と現状に差異がある場合は、現状優先となります。問い合わせをすることで、より詳しい条件、情報を確認する事ができます。
提供:ハウスコム東神奈川株式会社 登戸店
この物件が気になったら掲載期限まであと5日
ハイムピア21に条件(家賃・エリア)が近い物件一覧
| 写真 | 家賃 管理費等 | 敷金 礼金 | 間取り 専有面積 | 築年数 | 最寄り駅 所在地 | キープ | 詳細 |
|---|---|---|---|---|---|---|---|
アパート サンザシ(1K/2階) | |||||||
![]() | 7.2万円 なし | 7.2万円 7.2万円 | 1K 21m2 | 築47年 | 小田急線 下北沢駅 徒歩5分 京王井の頭線 下北沢駅 徒歩5分 小田急線 東北沢駅 徒歩9分 東京都世田谷区北沢 | 詳細を見る | |
アパート SH メゾンイグレック(1DK/1階) | |||||||
![]() | 6万円 3,000円 | 6万円 なし | 1DK 25m2 | 築43年 | 京王線 西調布駅 徒歩25分 京王線 飛田給駅 徒歩32分 西武多摩川線 多磨駅 徒歩33分 東京都三鷹市大沢 | 詳細を見る | |
マンション エスペランサ武蔵野(1K/3階) | |||||||
![]() | 6.5万円 3,000円 | 6.5万円 6.5万円 | 1K 19.44m2 | 築33年 | JR中央線 三鷹駅 徒歩8分 JR総武線 吉祥寺駅 徒歩20分 京王井の頭線 井の頭公園駅 徒歩27分 東京都三鷹市下連雀 | 詳細を見る | |
マンション パインニードル(1K/3階) | |||||||
![]() | 8.2万円 9,500円 | なし 8.2万円 | 1K 27.94m2 | 築17年 | 京王線 仙川駅 徒歩27分 京王線 つつじケ丘駅 徒歩29分 京王線 柴崎駅 徒歩32分 東京都三鷹市中原 | 詳細を見る | |
マンション えびすハイム(1K/2階) | |||||||
![]() | 6.3万円 なし | 6.3万円 6.3万円 | 1K 18.18m2 | 築36年 | 東急田園都市線 二子玉川駅 徒歩9分 東急田園都市線 用賀駅 徒歩22分 東京都世田谷区玉川3丁目 | 詳細を見る | |
マンション メイプルハウス(1K/3階) | |||||||
![]() | 7.8万円 3,000円 | なし なし | 1K 20m2 | 築40年 | 小田急電鉄小田原線 祖師ケ谷大蔵駅 徒歩17分 小田急電鉄小田原線 千歳船橋駅 徒歩23分 東京都世田谷区千歳台2丁目 | 詳細を見る | |
マンション 東京園マンション(1DK/1階) | |||||||
![]() | 7.3万円 なし | なし なし | 1DK 28m2 | 築40年 | 東急大井町線 尾山台駅 徒歩18分 東急大井町線 等々力駅 徒歩23分 東急大井町線 九品仏駅 徒歩24分 東京都世田谷区玉堤 | 詳細を見る | |
マンション スターホームズ千歳烏山(1K/3階) | |||||||
![]() | 5.5万円 5,000円 | 5.5万円 なし | 1K 16.87m2 | 築40年 | 京王電鉄京王線 千歳烏山駅 徒歩4分 京王電鉄京王線 芦花公園駅 徒歩11分 東京都世田谷区南烏山4丁目 | 詳細を見る | |








