賃貸マンション
デュオフラッツ板橋大山の賃貸物件情報(3LDK/2階)
| 家賃 | 管理費等 | 敷金 | 礼金 | 間取り | 専有面積 |
|---|---|---|---|---|---|
| 29.6万円 | 2万円 | 29.6万円 | なし | 3LDK | 70.34m2 |
入居決定でお祝い金最大100,000円
Point
まずはお問い合わせ!
不動産会社は街のプロ、あなたに合った物件がきっと見つかります。
提供:アパマンショップ茗荷谷店

詳細情報 デュオフラッツ板橋大山
物件紹介
デュオフラッツ板橋大山は東武鉄道東上線大山駅から徒歩8分にあり、駅近で通勤通学に便利なマンションです。
このお部屋は2階以上に位置しているので、通行人や周囲の住人からの視線が気になりにくく、防犯面でも安心。建物のエントランスはオートロックがついており、インターホンにはTVモニタもついているため、相手の顔を確認してから来客対応することができます。
こちらは楽器相談が可能な物件。楽器演奏をお考えの方はぜひ相談してみてください。人気の南向き・フローリングのお部屋。角部屋でもあるため、周囲の居住者の生活音も気になりにくい場所です。室内にはウォークインクローゼットがありますので、たくさんの荷物も効率的に収納ができます。キッチンはシステムキッチン仕様になっていますので、お料理好きの方にもぴったり。バス・トイレは別なので、のんびりお風呂タイムも楽しめるでしょう。また、雨の日でも浴室乾燥機を使えば、お洗濯も問題ありません。
通信設備面では、インターネットが無料で使えるので、月々の出費を抑えられるのも魅力です。また、BSアンテナもありますので、おうち時間も充実するでしょう(別途工事、BSの契約料等が必要な場合あり)。
建物にはエレベーターがついているので、重い荷物があっても安心。共用部には宅配ボックスが設定されているので、不在の時にも荷物を受け取ることができます。また、ペット飼育の相談ができますので、あなたの大切な家族の一員も快適に暮らせるか、ぜひ確認してみてください。
コンビニまで徒歩9分の場所にあり、日用品や食料品のお買い物にも便利です。
このお部屋は2階以上に位置しているので、通行人や周囲の住人からの視線が気になりにくく、防犯面でも安心。建物のエントランスはオートロックがついており、インターホンにはTVモニタもついているため、相手の顔を確認してから来客対応することができます。
こちらは楽器相談が可能な物件。楽器演奏をお考えの方はぜひ相談してみてください。人気の南向き・フローリングのお部屋。角部屋でもあるため、周囲の居住者の生活音も気になりにくい場所です。室内にはウォークインクローゼットがありますので、たくさんの荷物も効率的に収納ができます。キッチンはシステムキッチン仕様になっていますので、お料理好きの方にもぴったり。バス・トイレは別なので、のんびりお風呂タイムも楽しめるでしょう。また、雨の日でも浴室乾燥機を使えば、お洗濯も問題ありません。
通信設備面では、インターネットが無料で使えるので、月々の出費を抑えられるのも魅力です。また、BSアンテナもありますので、おうち時間も充実するでしょう(別途工事、BSの契約料等が必要な場合あり)。
建物にはエレベーターがついているので、重い荷物があっても安心。共用部には宅配ボックスが設定されているので、不在の時にも荷物を受け取ることができます。また、ペット飼育の相談ができますので、あなたの大切な家族の一員も快適に暮らせるか、ぜひ確認してみてください。
コンビニまで徒歩9分の場所にあり、日用品や食料品のお買い物にも便利です。
お金・契約の情報
※「-」と表示されているものは、実際は料金が発生するものもございます。詳細はお問い合わせください。
| 家賃 | 29.6万円 | 管理費・共益費 | 2万円 |
|---|---|---|---|
| 敷金 | 29.6万円 | 礼金 | なし |
| 入居決定でお祝い金最大100,000円 | |||
| 保証金 | - | 償却・敷引 | - |
| 住宅保険料 | 3.2万円(2年) | 更新料 | - |
| 保証会社利用 | 必須 | 保証会社名 | その他 |
| 保証会社費用 | - | 保証会社備考 | 当社指定:初期費用は賃料等の50%、月次保証料は賃料等の1%。その他保証会社条件有 |
| 契約形態 | - | 契約期間 | 2年 |
| 入居・引渡期間 | 2026年02月下旬 | 現況 | - |
| 入居可能条件 | 楽器可、ペット可 | ||
| 契約備考 | M−REALプレミアム会費2年 19800円 | ||
部屋の情報
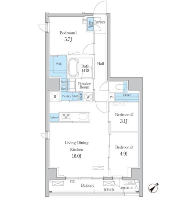
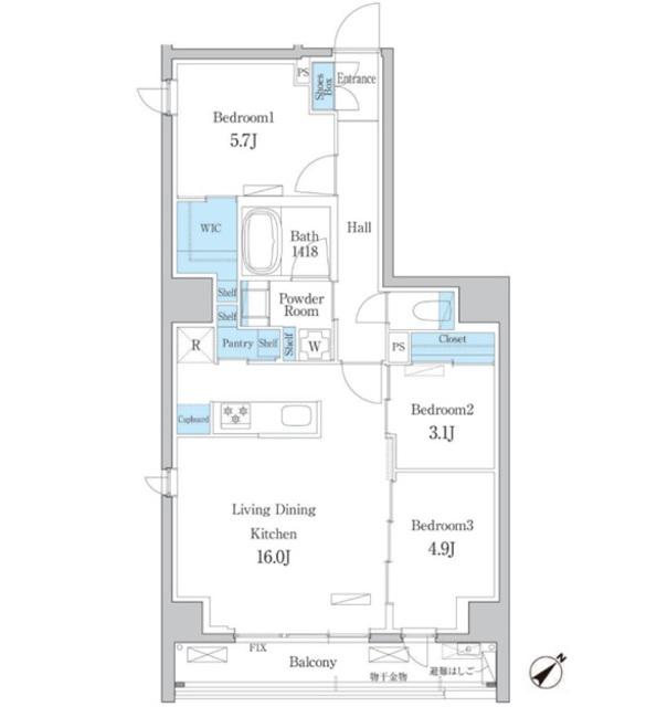
| 間取り | 3LDK | 専有面積 | 70.34m2 |
|---|---|---|---|
| 間取り詳細 | LDK(16帖)、洋室(5.7帖)、洋室(4.9帖)、洋室(3.1帖) | ||
| 所在階 / 向き | 2階 / 南東 | バルコニー面積 | - |
| 水道 / ガス | - | ||
| 設備 | バス・トイレ別、オートロック、テレビドアホン、宅配ボックス、浴室乾燥機、ウォークインクローゼット、追い焚き、光ファイバー対応、システムキッチン、エレベーター、温水洗浄便座、角部屋、バルコニー、フローリング、BSアンテナ、インターネット使用料無料、洗濯機:室内 | ||
| 当社物件ID | 159981270 | ||
建物の情報
| 建物名 | デュオフラッツ板橋大山 | ||
|---|---|---|---|
| 所在地 | 東京都板橋区熊野町 | ||
| 交通 | 東武鉄道東上線 大山駅(東京) 徒歩8分 | ||
| 階数 | 14階建 | 総戸数 | 29戸 |
| 築年月 | 2026年02月 / 新築 | エレベーター | あり |
| 駐車場 | - | バイク置き場 | あり |
| 駐輪場 | あり | 管理人/管理会社 | - |
| 周辺環境 | その他 まいばすけっと熊野町山手通り 徒歩5分(386m) その他 ツルハドラッグ大山駅前店 徒歩10分(772m) その他 100円ショップキャンドゥハッピーロード大山商店街店 徒歩10分(774m) その他 サンドラッグ 大山ハッピーロード店 徒歩10分(787m) その他 マツモトキヨシ大山店 徒歩11分(825m) その他 トモズ 大山店 徒歩12分(901m) その他 ローソンストア100 池袋本町一丁目店 徒歩11分(869m) その他 まいばすけっと 板橋2丁目店 徒歩14分(1110m) | ||
| 建物種別 | マンション | 建物構造 | RC(鉄筋コンクリート) |
この部屋の取扱い不動産会社
| 会社名 | アパマンショップ十条店 | ||
|---|---|---|---|
| 所在地 | 東京都北区上十条2丁目 30-1ミヤワキビル2F | 交通 | 埼京線十条から徒歩1分 |
| 営業時間 | 10:00〜19:00 | 定休日 | 水曜日 |
| 免許番号 | 国土交通大臣(5)6971 | 取引態様 | 仲介 |
| 不動産会社管理番号 | 111352312 | 当社管理番号 | 4 |
| 所属団体 | (公社)東京都宅地建物取引業協会 | ||
| 公正取引協議会 | (公社) 首都圏不動産公正取引協議会加盟 | ||
| 取扱い物件情報 | 物件詳細へ | ||
※各種情報と現状に差異がある場合は、現状優先となります。問い合わせをすることで、より詳しい条件、情報を確認する事ができます。
提供:アパマンショップ十条店
この物件が気になったら掲載期限まであと8日
デュオフラッツ板橋大山に条件(家賃・エリア)が近い物件一覧
| 写真 | 家賃 管理費等 | 敷金 礼金 | 間取り 専有面積 | 築年数 | 最寄り駅 所在地 | キープ | 詳細 |
|---|---|---|---|---|---|---|---|
マンション RJRプレシア東十条ガーデン(3LDK/9階) | |||||||
![]() | 26.1万円 1.5万円 | 26.1万円 なし | 3LDK 66.86m2 | 築1年 | JR京浜東北線 東十条駅 徒歩5分 東京メトロ南北線 王子神谷駅 徒歩9分 JR埼京線 十条駅(東京) 徒歩13分 東京都北区東十条 | 詳細を見る | |
マンション アトラス加賀(3LDK/11階) | |||||||
![]() | 29万円 なし | 58万円 29万円 | 3LDK 74.65m2 | 築6年 | 都営三田線 新板橋駅 徒歩9分 都営三田線 板橋区役所前駅 徒歩10分 JR埼京線 板橋駅 徒歩14分 東京都板橋区加賀 | 詳細を見る | |
マンション コンフォリア・リヴ東池袋(2LDK/8階) | |||||||
![]() | 22.2万円 1.5万円 | 22.2万円 なし | 2LDK 43.19m2 | 築1年 | 都電荒川線 向原駅(東京) 徒歩3分 JR山手線 大塚駅(東京) 徒歩7分 東京メトロ丸ノ内線 池袋駅 徒歩14分 東京都豊島区東池袋 | 詳細を見る | |
一戸建て 東武鉄道東上線 下板橋駅 徒歩6分 築31年(4DK) | |||||||
![]() | 19.5万円 なし | 19.5万円 19.5万円 | 4DK 70.58m2 | 築31年 | 東武鉄道東上線 下板橋駅 徒歩6分 東京都豊島区池袋本町2丁目 | 詳細を見る | |
マンション エスティメゾン赤羽(2DK/13階) | |||||||
![]() | 21万円 1万円 | 21万円 21万円 | 2DK 50.8m2 | 築17年 | 東京メトロ南北線 赤羽岩淵駅 徒歩5分 JR京浜東北線 赤羽駅 徒歩7分 東京メトロ南北線 志茂駅 徒歩14分 東京都北区赤羽 | 詳細を見る | |
マンション サントゥール駒込(2LDK/4階) | |||||||
![]() | 26万円 1万円 | 26万円 26万円 | 2LDK 55.89m2 | 築1年 | JR山手線 駒込駅 徒歩2分 東京メトロ南北線 駒込駅 徒歩2分 都営三田線 千石駅 徒歩17分 東京都豊島区駒込 | 詳細を見る | |
マンション GRANPASEO田端A(2LDK/11階) | |||||||
![]() | 23.5万円 2万円 | 23.5万円 なし | 2LDK 56.1m2 | 築5年 | 日暮里・舎人ライナー 赤土小学校前駅 徒歩6分 JR山手線 田端駅 徒歩9分 京成本線 新三河島駅 徒歩12分 東京都北区田端新町 | 詳細を見る | |
マンション レジディアタワー上池袋(2LDK/13階) | |||||||
![]() | 28.4万円 2.5万円 | 28.4万円 なし | 2LDK 68.26m2 | 築17年 | JR山手線 大塚駅(東京) 徒歩11分 東武東上線 北池袋駅 徒歩11分 都営三田線 西巣鴨駅 徒歩14分 東京都豊島区上池袋 | 詳細を見る | |




/105x80-f1-q70-wp1)



