賃貸アパート
長谷ハイツの賃貸物件情報(1DK/1階)
| 家賃 | 管理費等 | 敷金 | 礼金 | 間取り | 専有面積 |
|---|---|---|---|---|---|
| 4.5万円 | なし | なし | なし | 1DK | 32.4m2 |
入居決定でお祝い金最大100,000円
- 保証金
- -
- 償却・敷引
- -
- 築年数
- 築69年
- 所在階
- 1階
- 向き
- 南東
Point
クレジットカードでのお支払い(初期費用)OK。悪天候時やお急ぎの方には写真やパノラマ・動画などでもご内覧可能ですのでお気軽にご相談ください!
提供:ミニミニFC阪神御影店シティネット(株)(SUUMO経由)

詳細情報 長谷ハイツ
物件紹介
長谷ハイツはJR山陽本線塩屋駅から徒歩4分にあり、駅近で通勤通学に便利なアパートです。
人気の南向き・フローリングのお部屋。角部屋でもあるため、周囲の居住者の生活音も気になりにくい場所です。バス・トイレ別の仕様で、のんびりお風呂タイムも楽しめます。
人気の南向き・フローリングのお部屋。角部屋でもあるため、周囲の居住者の生活音も気になりにくい場所です。バス・トイレ別の仕様で、のんびりお風呂タイムも楽しめます。
お金・契約の情報
※「-」と表示されているものは、実際は料金が発生するものもございます。詳細はお問い合わせください。
| 家賃 | 4.5万円 | 管理費・共益費 | なし |
|---|---|---|---|
| 敷金 | なし | 礼金 | なし |
| 入居決定でお祝い金最大100,000円 | |||
| 保証金 | - | 償却・敷引 | - |
| 住宅保険料 | - | 更新料 | - |
| 保証会社利用 | 必須 | 保証会社名 | - |
| 保証会社費用 | - | 保証会社備考 | 保証会社利用必 ■保証会社利用必須 初回保証料:総賃料80%,更新料:無し |
| 契約形態 | - | 契約期間 | - |
| 入居・引渡期間 | 即時 | 現況 | - |
| 契約備考 | 短期解約違約金有1ヵ月(1年未満) 決済サービス料:330円/月 1DK 損保【1.9万円2年】 バストイレ別、バルコニー、エアコン、ガスコンロ対応、フローリング、室内洗濯置、角住戸、温水洗浄便座、洗面所独立、全居室洋室、2沿線利用可、専用庭、2駅利用可、3駅以上利用可、都市ガス、IT重説対応物件、初期費用カード決済可 | ||
部屋の情報
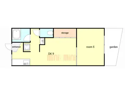
| 間取り | 1DK | 専有面積 | 32.4m2 |
|---|---|---|---|
| 所在階 / 向き | 1階 / 南東 | バルコニー面積 | - |
| 水道 / ガス | - | ||
| 設備 | バス・トイレ別、エアコン、温水洗浄便座、南向き、角部屋、バルコニー、フローリング、洗髪洗面化粧台、コンロ:ガス、専用庭、洗濯機:室内 | ||
| 当社物件ID | 158644837 | ||
建物の情報
| 建物名 | 長谷ハイツ | ||
|---|---|---|---|
| 所在地 | 兵庫県神戸市垂水区塩屋町 | ||
| 交通 | JR山陽本線 塩屋駅(兵庫) 徒歩4分 山陽電鉄本線 山陽塩屋駅 徒歩4分 山陽電鉄本線 須磨浦公園駅 徒歩20分 | ||
| 階数 | 2階建 | 総戸数 | - |
| 築年月 | 1958年01月 / 築69年 | エレベーター | - |
| 駐車場 | 近隣 300m16500円 | バイク置き場 | - |
| 駐輪場 | - | 管理人/管理会社 | - |
| 周辺環境 | その他 神戸市立塩屋北小学校(小学校)まで2242m その他 神戸市立塩屋小学校(小学校)まで801m | ||
| 建物種別 | アパート | 建物構造 | 軽量鉄骨造 |
この部屋の取扱い不動産会社
| 会社名 | ミニミニFC六甲道店シティネット(株)(SUUMO経由) | ||
|---|---|---|---|
| 所在地 | 兵庫県神戸市灘区深田町4-1-1-110 | 交通 | - |
| 営業時間 | 10:00~18:00(時間外もご相談下さいませ) | 定休日 | - |
| 免許番号 | 兵庫県知事10417 | 取引態様 | 仲介 |
| 不動産会社管理番号 | 100439702899 | 当社管理番号 | 89 |
| 所属団体 | (公社)全日本不動産協会兵庫県本部会員 | ||
| 公正取引協議会 | (公社)近畿地区不動産公正取引協議会加盟 | ||
| 取扱い物件情報 | 物件詳細へ | ||
※各種情報と現状に差異がある場合は、現状優先となります。問い合わせをすることで、より詳しい条件、情報を確認する事ができます。
提供:ミニミニFC六甲道店シティネット(株)(SUUMO経由)
この物件が気になったら掲載期限まであと10日
長谷ハイツに条件(家賃・エリア)が近い物件一覧
| 写真 | 家賃 管理費等 | 敷金 礼金 | 間取り 専有面積 | 築年数 | 最寄り駅 所在地 | キープ | 詳細 |
|---|---|---|---|---|---|---|---|
マンション ビレッジハウス志染(3DK/5階) | |||||||
![]() | 5.49万円 なし | なし なし | 3DK 54.38m2 | 築47年 | 神戸電鉄粟生線 志染駅 徒歩19分 神戸電鉄粟生線 恵比須駅 徒歩27分 兵庫県三木市志染町西自由が丘2丁目 | 詳細を見る | |
アパート 神戸電鉄粟生線 広野ゴルフ場前駅 徒歩17分 築19年(1K/1階) | |||||||
![]() | 5万円 5,000円 | なし 5万円 | 1K 29.98m2 | 築19年 | 神戸電鉄粟生線 広野ゴルフ場前駅 徒歩17分 神戸電鉄粟生線 緑が丘駅(兵庫) 徒歩19分 神戸電鉄粟生線 押部谷駅 徒歩40分 兵庫県三木市緑が丘町西2丁目 | 詳細を見る | |
アパート シャーメゾン北王子A(1K/1階) | |||||||
![]() | 5.5万円 7,500円 | 2万円 なし | 1K 29.25m2 | 築19年 | 山陽電鉄本線 西新町駅 徒歩14分 JR山陽本線 明石駅 徒歩21分 山陽電鉄本線 山陽明石駅 徒歩21分 兵庫県明石市北王子町 | 詳細を見る | |
アパート SMILE HEART Ⅱ(1LDK/2階) | |||||||
![]() | 6.5万円 8,000円 | 3万円 15万円 | 1LDK 40.1m2 | 築9年 | 神戸電鉄粟生線 大村駅(兵庫) 徒歩18分 神戸電鉄粟生線 三木駅(神戸電鉄) 徒歩25分 神戸電鉄粟生線 樫山駅 徒歩36分 兵庫県三木市別所町近藤 | 詳細を見る | |
アパート クラリティ スカイⅡ(1LDK/2階) | |||||||
![]() | 6.6万円 3,200円 | なし 13.2万円 | 1LDK 45.86m2 | 築9年 | 山陽電気鉄道本線 大蔵谷駅 徒歩5分 山陽電気鉄道本線 人丸前駅 徒歩9分 山陽本線 朝霧駅 徒歩16分 兵庫県明石市東野町 | 詳細を見る | |
アパート サニープレイス(1LDK/2階) | |||||||
![]() | 6万円 2,000円 | 6万円 6万円 | 1LDK 44.81m2 | 築11年 | 山陽電鉄本線 西江井ケ島駅 徒歩4分 山陽電鉄本線 山陽魚住駅 徒歩14分 山陽電鉄本線 江井ケ島駅 徒歩19分 兵庫県明石市大久保町西島 | 詳細を見る | |
アパート MSシーサイドプラザⅡ(3DK/2階) | |||||||
![]() | 5.4万円 2,000円 | 2万円 なし | 3DK 56m2 | 築32年 | 山陽電気鉄道本線 東二見駅 徒歩9分 山陽電気鉄道本線 西二見駅 徒歩19分 山陽本線 魚住駅 徒歩31分 兵庫県明石市二見町東二見 | 詳細を見る | |
アパート アバンツァート 西島(2DK/1階) | |||||||
![]() | 5.7万円 2,900円 | なし 11.4万円 | 2DK 45.39m2 | 築13年 | 山陽電気鉄道本線 西江井ケ島駅 徒歩10分 山陽電気鉄道本線 江井ケ島駅 徒歩12分 山陽本線 魚住駅 徒歩30分 兵庫県明石市大久保町西島 | 詳細を見る | |








