賃貸マンション
パラドール北加賀屋の賃貸物件情報(1K/1階)
| 家賃 | 管理費等 | 敷金 | 礼金 | 間取り | 専有面積 |
|---|---|---|---|---|---|
| 4.2万円 | 8,000円 | なし | なし | 1K | 22.54m2 |
入居決定でお祝い金最大100,000円
- 保証金
- -
- 償却・敷引
- -
- 築年数
- 築36年
- 所在階
- 1階
- 向き
- -
Point
このコメントを見たとお伝えいただくと今なら・・・★全物件仲介手数料0円★さらに★大阪市内全物件ご紹介できます★ ★現地待ち合わせ大歓迎★
提供:いい部屋ネット天王寺店(株)アイホーム(SUUMO経由)

詳細情報 パラドール北加賀屋
物件紹介
パラドール北加賀屋は地下鉄四つ橋線北加賀屋駅から徒歩8分にあり、駅近で通勤通学に便利なマンションです。
建物のエントランスはオートロックがついており、インターホンにはTVモニタもついているため、相手の顔を確認してから来客対応することができます。
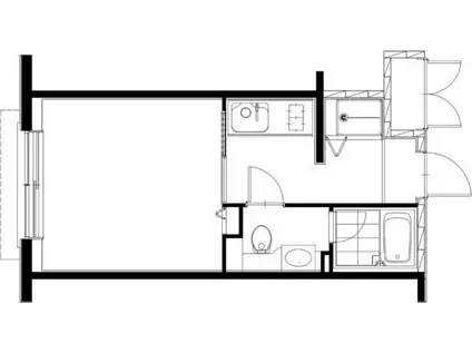
おしゃれなデザイナーズ物件!また、楽器相談が可能な物件となっているので、楽器演奏をお考えの方はぜひ相談してみてください。人気の南向き・フローリングのお部屋。角部屋でもあるため、周囲の居住者の生活音も気になりにくい場所です。キッチンはシステムキッチン仕様になっていますので、お料理好きの方にもぴったり。また、バス・トイレは別で、のんびりお風呂タイムも楽しめるでしょう。
通信設備面では、インターネットが無料で使えるので、月々の出費を抑えられるのも魅力です。また、BSアンテナ・CSアンテナがありCATVにも対応しているので、おうち時間も充実するでしょう(別途工事、BS・CS・CATVの契約料等が必要な場合あり)。
建物にはエレベーターがついているので、重い荷物があっても安心。共用部には宅配ボックスが設定されているので、不在の時にも荷物を受け取ることができます。
建物のエントランスはオートロックがついており、インターホンにはTVモニタもついているため、相手の顔を確認してから来客対応することができます。
おしゃれなデザイナーズ物件!また、楽器相談が可能な物件となっているので、楽器演奏をお考えの方はぜひ相談してみてください。人気の南向き・フローリングのお部屋。角部屋でもあるため、周囲の居住者の生活音も気になりにくい場所です。キッチンはシステムキッチン仕様になっていますので、お料理好きの方にもぴったり。また、バス・トイレは別で、のんびりお風呂タイムも楽しめるでしょう。
通信設備面では、インターネットが無料で使えるので、月々の出費を抑えられるのも魅力です。また、BSアンテナ・CSアンテナがありCATVにも対応しているので、おうち時間も充実するでしょう(別途工事、BS・CS・CATVの契約料等が必要な場合あり)。
建物にはエレベーターがついているので、重い荷物があっても安心。共用部には宅配ボックスが設定されているので、不在の時にも荷物を受け取ることができます。
お金・契約の情報
※「-」と表示されているものは、実際は料金が発生するものもございます。詳細はお問い合わせください。
| 家賃 | 4.2万円 | 管理費・共益費 | 8,000円 |
|---|---|---|---|
| 敷金 | なし | 礼金 | なし |
| 入居決定でお祝い金最大100,000円 | |||
| 保証金 | - | 償却・敷引 | - |
| 住宅保険料 | - | 更新料 | - |
| 保証会社利用 | 必須 | 保証会社名 | - |
| 保証会社費用 | - | 保証会社備考 | 保証会社利用必 :保証会社、保証プランにより異なる為お問合せ下さい。 |
| 契約形態 | - | 契約期間 | - |
| 入居・引渡期間 | 即時 | 現況 | - |
| 入居可能条件 | 楽器相談 | ||
| 契約備考 | 通勤管理 1K 楽器相談 普通借家2年 損保【1.8万円2年】 バストイレ別、エアコン、ガスコンロ対応、クロゼット、シューズボックス、システムキッチン、脱衣所、洗面所独立、洗面化粧台、2口コンロ、即入居可、礼金不要、2沿線利用可、ネット使用料不要、楽器相談、2駅利用可、3駅以上利用可、敷地内ごみ置き場、都市ガス、敷金・礼金不要 | ||
部屋の情報
| 間取り | 1K | 専有面積 | 22.54m2 |
|---|---|---|---|
| 所在階 / 向き | 1階 / - | バルコニー面積 | - |
| 水道 / ガス | - | ||
| 設備 | バス・トイレ別、インターネット対応、システムキッチン、エアコン、洗髪洗面化粧台、2口コンロ、コンロ:ガス、インターネット使用料無料 | ||
| 当社物件ID | 19627854 | ||
建物の情報
| 建物名 | パラドール北加賀屋 | ||
|---|---|---|---|
| 所在地 | 大阪府大阪市住之江区北加賀屋 | ||
| 交通 | 地下鉄四つ橋線 北加賀屋駅 徒歩8分 地下鉄四つ橋線 玉出駅 徒歩23分 南海本線 粉浜駅 徒歩26分 | ||
| 階数 | 3階建 | 総戸数 | 47戸 |
| 築年月 | 1990年10月 / 築36年 | エレベーター | - |
| 駐車場 | 近隣 20m14300円/平置駐 | バイク置き場 | - |
| 駐輪場 | - | 管理人/管理会社 | - |
| 周辺環境 | その他 成南中学校(中学校)まで2065m その他 無添 くら寿司 加賀屋店(飲食店)まで1176m その他 中加賀屋公園(公園)まで1147m その他 ダイエー 住之江店(スーパー)まで735m その他 食品館アプロ 東加賀屋店(スーパー)まで1391m その他 KINSHO住吉店(スーパー)まで1902m | ||
| 建物種別 | マンション | 建物構造 | RC(鉄筋コンクリート) |
この部屋の取扱い不動産会社
| 会社名 | ポテト不動産(株)ハイフォレスト(SUUMO経由) | ||
|---|---|---|---|
| 所在地 | 大阪府大阪市西成区千本中1-3-2 日丸ビル206 | 交通 | - |
| 営業時間 | 9:00~20:00 | 定休日 | 定休日無し |
| 免許番号 | 大阪府知事65623 | 取引態様 | 仲介 |
| 不動産会社管理番号 | 100470221114 | 当社管理番号 | 89 |
| 所属団体 | (公社)全日本不動産協会大阪府本部会員 | ||
| 公正取引協議会 | (公社)近畿地区不動産公正取引協議会加盟 | ||
| 取扱い物件情報 | 物件詳細へ | ||
※各種情報と現状に差異がある場合は、現状優先となります。問い合わせをすることで、より詳しい条件、情報を確認する事ができます。
提供:ポテト不動産(株)ハイフォレスト(SUUMO経由)
この物件が気になったら掲載期限まであと10日
パラドール北加賀屋に条件(家賃・エリア)が近い物件一覧
| 写真 | 家賃 管理費等 | 敷金 礼金 | 間取り 専有面積 | 築年数 | 最寄り駅 所在地 | キープ | 詳細 |
|---|---|---|---|---|---|---|---|
アパート カーサバウム(ワンルーム/2階) | |||||||
![]() | 6.2万円 なし | 2万円 5万円 | ワンルーム 23.05m2 | 築25年 | 阪和線 鳳駅 徒歩8分 阪和線 津久野駅 徒歩16分 南海電鉄南海本線 浜寺公園駅 徒歩20分 大阪府堺市西区鳳北町2丁 | 詳細を見る | |
マンション ストーリア藤田(ワンルーム/1階) | |||||||
![]() | 2.7万円 3,500円 | なし なし | ワンルーム 15m2 | 築36年 | 京阪電気鉄道京阪線 大和田駅(大阪) 徒歩10分 京阪電気鉄道京阪線 古川橋駅 徒歩14分 京阪電気鉄道京阪線 萱島駅 徒歩15分 大阪府守口市藤田町3丁目 | 詳細を見る | |
マンション グランノーブル(1K/4階) | |||||||
![]() | 6.2万円 9,500円 | なし 10万円 | 1K 29.47m2 | 築13年 | 阪和線 鳳駅 徒歩5分 阪和線 富木駅 徒歩17分 阪和線 津久野駅 徒歩23分 大阪府堺市西区鳳南町4丁 | 詳細を見る | |
マンション ネオコーポ寺澤(2DK/2階) | |||||||
![]() | 5.3万円 3,000円 | なし なし | 2DK 38m2 | 築41年 | 大阪モノレール本線 門真市駅 徒歩21分 京阪電気鉄道京阪線 西三荘駅 徒歩21分 大阪市長堀鶴見緑地 門真南駅 徒歩24分 大阪府守口市寺方本通3丁目 | 詳細を見る | |
アパート フジパレス弥刀駅北番館(1K/1階) | |||||||
![]() | 5.8万円 4,500円 | なし なし | 1K 28.2m2 | 築1年 | 近鉄大阪線 弥刀駅 徒歩3分 近鉄大阪線 久宝寺口駅 徒歩14分 おおさか東線 衣摺加美北駅 徒歩23分 大阪府東大阪市友井3丁目 | 詳細を見る | |
マンション 東明マンション江坂(ワンルーム/3階) | |||||||
| 6.1万円 1.1万円 | なし 6.1万円 | ワンルーム 20.7m2 | 築33年 | 北大阪急行南北線 江坂駅 徒歩3分 阪急電鉄千里線 豊津駅(大阪) 徒歩23分 おおさか東線 南吹田駅 徒歩29分 大阪府吹田市豊津町15-4 | 詳細を見る | ||
マンション ワールドアイ大阪イースト CITY(1K/5階) | |||||||
![]() | 6.0199万円 1万円 | なし なし | 1K 23.77m2 | 新築 | 地下鉄中央線 長田駅(大阪) 徒歩2分 近鉄けいはんな線 長田駅(大阪) 徒歩2分 近鉄けいはんな線 荒本駅 徒歩13分 大阪府東大阪市長田東 | 詳細を見る | |
アパート MAIZON AZUMA(ワンルーム/2階) | |||||||
![]() | 5.3万円 なし | なし 15.9万円 | ワンルーム 29.92m2 | 築40年 | 京阪電気鉄道京阪線 門真市駅 徒歩5分 京阪電気鉄道京阪線 西三荘駅 徒歩7分 京阪電気鉄道京阪線 古川橋駅 徒歩17分 大阪府門真市本町 | 詳細を見る | |







