賃貸アパート
FSTYLE八尾北久宝寺の賃貸物件情報(1LDK/3階)
| 家賃 | 管理費等 | 敷金 | 礼金 | 間取り | 専有面積 |
|---|---|---|---|---|---|
| 6.58万円 | 5,000円 | なし | 8万円 | 1LDK | 28.61m2 |
入居決定でお祝い金最大100,000円
- 保証金
- -
- 償却・敷引
- -
- 築年数
- 築1年
- 所在階
- 3階
- 向き
- -
Point
■☆オートロック・宅配BOX・IHキッチン・エアコン・ウォシュレット完備です☆■☆八尾市内の物件は【地元密着!サン阪和ホーム】全物件ご相談可!初期費用をお安く♪当店にて申込受付中です☆■
提供:(有)サン阪和ホーム(SUUMO経由)

詳細情報 FSTYLE八尾北久宝寺
物件紹介
FSTYLE八尾北久宝寺は近鉄大阪線久宝寺口駅から徒歩6分にあり、駅近で通勤通学に便利なアパートです。
このお部屋は2階以上に位置しているので、通行人や周囲の住人からの視線が気になりにくく、防犯面でも安心。建物のエントランスはオートロックがついており、インターホンにはTVモニタもついているため、相手の顔を確認してから来客対応することができます。
人気の南向きのお部屋。また、フローリングなのでお掃除もラクラク。キッチンはシステムキッチン仕様になっていますので、お料理好きの方にもぴったり。バス・トイレは別なので、のんびりお風呂タイムも楽しめるでしょう。また、雨の日でも浴室乾燥機を使えば、お洗濯も問題ありません。
通信設備面では、インターネットが無料で使えるので、月々の出費を抑えられるのも魅力です。また、BSアンテナがありCATVにも対応しているので、おうち時間も充実するでしょう(別途工事、BS・CATVの契約料等が必要な場合あり)。
共用部には宅配ボックスが設定されているので、不在の時にも荷物を受け取ることができます。
このお部屋は2階以上に位置しているので、通行人や周囲の住人からの視線が気になりにくく、防犯面でも安心。建物のエントランスはオートロックがついており、インターホンにはTVモニタもついているため、相手の顔を確認してから来客対応することができます。
人気の南向きのお部屋。また、フローリングなのでお掃除もラクラク。キッチンはシステムキッチン仕様になっていますので、お料理好きの方にもぴったり。バス・トイレは別なので、のんびりお風呂タイムも楽しめるでしょう。また、雨の日でも浴室乾燥機を使えば、お洗濯も問題ありません。
通信設備面では、インターネットが無料で使えるので、月々の出費を抑えられるのも魅力です。また、BSアンテナがありCATVにも対応しているので、おうち時間も充実するでしょう(別途工事、BS・CATVの契約料等が必要な場合あり)。
共用部には宅配ボックスが設定されているので、不在の時にも荷物を受け取ることができます。
お金・契約の情報
※「-」と表示されているものは、実際は料金が発生するものもございます。詳細はお問い合わせください。
| 家賃 | 6.58万円 | 管理費・共益費 | 5,000円 |
|---|---|---|---|
| 敷金 | なし | 礼金 | 8万円 |
| 入居決定でお祝い金最大100,000円 | |||
| 保証金 | - | 償却・敷引 | - |
| 住宅保険料 | - | 更新料 | - |
| 保証会社利用 | 必須 | 保証会社名 | - |
| 保証会社費用 | - | 保証会社備考 | 保証会社利用必 初回保証委託料:月額総賃料(共益費等含む)の50%、月額利用料2,540円(内訳:継続保証料1,750円+火災保険料790円+口座振替手数料込み) |
| 契約形態 | - | 契約期間 | - |
| 入居・引渡期間 | - | 現況 | - |
| 契約備考 | ■更新事務手数料11,000円/2年毎・ハウスクリーニング代退去時44,000円(税込)・短期解約違約金:1年未満の解約は総家賃の2ヶ月分、1年以上2年未満の解約は総家賃の1ヶ月分■画像は参考イメージです。設備仕様配色配置等異なることがございます■☆八尾市でお部屋をお探しなら♪河内山本駅すぐ【地元密着!サン阪和ホーム】にてお気軽にご相談ください♪☆■ 合計2.2万円(内訳:カギ交換費用22000円) 水道料金:1人月額2,750円。2人月額5,500円。安心サポート費用16500円/2年。駐輪代月額220円/台。 1LDK 単身者可/二人入居可 普通借家2年 バストイレ別、バルコニー、エアコン、クロゼット、フローリング、シャワー付洗面台、TVインターホン、浴室乾燥機、オートロック、室内洗濯置、シューズボックス、システムキッチン、温水洗浄便座、脱衣所、洗面所独立、洗面化粧台、2口コンロ、駐輪場、宅配ボックス、CATV、閑静な住宅地、最上階、敷金不要、IHクッキングヒーター、オートバス、保証人不要、24時間緊急通報システム、玄関ホール、2沿線利用可、ネット使用料不要、保証金不要、築2年以内、複層ガラス、平坦地、南面リビング、学生相談、浴室未使用、トイレ未使用、未入居、3駅以上利用可、駅徒歩10分以内、上階無し、敷地内ごみ置き場、平面駐車場、キッチン5畳以上、都市ガス、洗面所にドア、南面バルコニー、BS、高速ネット対応、通風良好 入居日:'26年4月中旬 | ||
部屋の情報
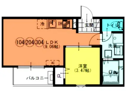
| 間取り | 1LDK | 専有面積 | 28.61m2 |
|---|---|---|---|
| 所在階 / 向き | 3階 / - | バルコニー面積 | - |
| 水道 / ガス | - | ||
| 設備 | バス・トイレ別、2階以上、オートロック、テレビドアホン、宅配ボックス、浴室乾燥機、追い焚き、インターネット対応、システムキッチン、エアコン、温水洗浄便座、南向き、バルコニー、フローリング、洗髪洗面化粧台、2口コンロ、コンロ:IH、CATV、BSアンテナ、インターネット使用料無料、洗濯機:室内 | ||
| 当社物件ID | 160474467 | ||
建物の情報
| 建物名 | FSTYLE八尾北久宝寺 | ||
|---|---|---|---|
| 所在地 | 大阪府八尾市北久宝寺 | ||
| 交通 | 近鉄大阪線 久宝寺口駅 徒歩6分 JR関西本線 久宝寺駅 徒歩17分 近鉄大阪線 近鉄八尾駅 徒歩19分 | ||
| 階数 | 3階建 | 総戸数 | 15戸 |
| 築年月 | 2026年04月 / 築1年 | エレベーター | - |
| 駐車場 | 空有 11000円 | バイク置き場 | - |
| 駐輪場 | あり | 管理人/管理会社 | - |
| 周辺環境 | その他 コノミヤ大蓮東店(スーパー)まで544m その他 ファミリーマート 北久宝寺一丁目店(コンビニ)まで224m その他 welcia(ウエルシア) 八尾東久宝寺店(ドラッグストア)まで139m その他 はま寿司 八尾東久宝寺店(その他)まで136m | ||
| 建物種別 | アパート | 建物構造 | 木造 |
この部屋の取扱い不動産会社
| 会社名 | (有)サン阪和ホーム(SUUMO経由) | ||
|---|---|---|---|
| 所在地 | 大阪府八尾市山本町1-3-15 | 交通 | - |
| 営業時間 | 10:00~18:00 | 定休日 | 水曜日・他 |
| 免許番号 | 大阪府知事45356 | 取引態様 | 仲介 |
| 不動産会社管理番号 | 100490611924 | 当社管理番号 | 89 |
| 所属団体 | (公社)全日本不動産協会大阪府本部会員 | ||
| 公正取引協議会 | (公社)近畿地区不動産公正取引協議会加盟 | ||
| 取扱い物件情報 | 物件詳細へ | ||
※各種情報と現状に差異がある場合は、現状優先となります。問い合わせをすることで、より詳しい条件、情報を確認する事ができます。
提供:(有)サン阪和ホーム(SUUMO経由)
この物件が気になったら掲載期限まであと10日
FSTYLE八尾北久宝寺に条件(家賃・エリア)が近い物件一覧
| 写真 | 家賃 管理費等 | 敷金 礼金 | 間取り 専有面積 | 築年数 | 最寄り駅 所在地 | キープ | 詳細 |
|---|---|---|---|---|---|---|---|
アパート フジパレス ダイドウ2丁目(1LDK/1階) | |||||||
![]() | 7.2万円 5,300円 | なし 11万円 | 1LDK 40.59m2 | 新築 | 大阪市今里筋線 だいどう豊里駅 徒歩5分 大阪市今里筋線 瑞光四丁目駅 徒歩7分 阪急電鉄京都線 上新庄駅 徒歩14分 大阪府大阪市東淀川区大桐2丁目不 | 詳細を見る | |
マンション サンローゼ松原(2LDK/6階) | |||||||
![]() | 6.5万円 6,000円 | なし 6.5万円 | 2LDK 45.92m2 | 築34年 | 近鉄南大阪線 布忍駅 徒歩2分 近鉄南大阪線 高見ノ里駅 徒歩10分 近鉄南大阪線 河内天美駅 徒歩15分 大阪府松原市東新町4丁目 | 詳細を見る | |
マンション サンハイム天美(2LDK/3階) | |||||||
![]() | 6.4万円 6,000円 | なし 10万円 | 2LDK 45.18m2 | 築37年 | 大阪市御堂筋線 北花田駅 徒歩15分 近鉄南大阪線 河内天美駅 徒歩20分 近鉄南大阪線 布忍駅 徒歩20分 大阪府松原市天美我堂1丁目 | 詳細を見る | |
マンション 旭ガーデンハイツ(2DK/3階) | |||||||
![]() | 4.6万円 6,000円 | なし なし | 2DK 47.3m2 | 築48年 | 近鉄難波・奈良線 瓢箪山駅(大阪) 徒歩12分 大阪府東大阪市旭町 | 詳細を見る | |
マンション ELSIA SHINOSAKA(1DK/7階) | |||||||
![]() | 8.1万円 8,000円 | なし なし | 1DK 24.2m2 | 築9年 | 大阪市御堂筋線 西中島南方駅 徒歩9分 東海道本線 新大阪駅 徒歩9分 阪急電鉄京都線 崇禅寺駅 徒歩12分 大阪府大阪市東淀川区東中島1丁目 | 詳細を見る | |
マンション セイキハイツ(2LDK/2階) | |||||||
![]() | 5.4万円 3,000円 | なし なし | 2LDK 46m2 | 築39年 | 近鉄難波・奈良線 石切駅 徒歩24分 近鉄けいはんな線 新石切駅 徒歩29分 近鉄難波・奈良線 額田駅(大阪) 徒歩34分 大阪府東大阪市池之端町 | 詳細を見る | |
マンション サンルミエール(2LDK/2階) | |||||||
![]() | 6.5万円 1万円 | なし 13万円 | 2LDK 51.03m2 | 築36年 | 近鉄南大阪線 河内松原駅 徒歩2分 近鉄南大阪線 高見ノ里駅 徒歩15分 近鉄南大阪線 恵我ノ荘駅 徒歩20分 大阪府松原市上田6丁目 | 詳細を見る | |
マンション さんさん松原(2DK/2階) | |||||||
![]() | 5.6万円 6,000円 | 6万円 なし | 2DK 40.87m2 | 築37年 | 近鉄南大阪線 高見ノ里駅 徒歩7分 近鉄南大阪線 河内松原駅 徒歩9分 近鉄南大阪線 布忍駅 徒歩15分 大阪府松原市高見の里4丁目 | 詳細を見る | |
八尾市の町名から探す
八尾市の部屋を間取りから探す
八尾市の駅から探す
八尾市と隣接している市区町村から探す
- 八尾市(2,081)
- 大阪市都島区(2,180)
- 大阪市福島区(2,607)
- 大阪市此花区(353)
- 大阪市西区(4,838)
- 大阪市港区(1,019)
- 大阪市大正区(329)
- 大阪市天王寺区(1,627)
- 大阪市浪速区(3,756)
- 大阪市西淀川区(1,445)
- 大阪市東淀川区(4,026)
- 大阪市東成区(2,807)
- 大阪市生野区(1,482)
- 大阪市旭区(2,058)
- 大阪市城東区(2,143)
- 大阪市阿倍野区(1,306)
- 大阪市住吉区(2,024)
- 大阪市東住吉区(1,886)
- 大阪市西成区(584)
- 大阪市淀川区(5,745)
- 大阪市鶴見区(752)
- 大阪市住之江区(766)
- 大阪市平野区(1,405)
- 大阪市北区(5,515)
- 大阪市中央区(5,961)
- 松原市(968)
- 柏原市(737)
- 藤井寺市(911)
- 東大阪市(6,729)







