賃貸マンション
西津田マンションIIの賃貸物件情報(2LDK/2階)
| 家賃 | 管理費等 | 敷金 | 礼金 | 間取り | 専有面積 |
|---|---|---|---|---|---|
| 7.2万円 | 1,000円 | 14.4万円 | 7.2万円 | 2LDK | 81.22m2 |
入居決定でお祝い金最大100,000円
Point
スタッフ一同、お客様のご来店をこころよりお待ちしております!
提供:いい部屋ネット大東建託リーシング(株)松江店(SUUMO経由)

詳細情報 西津田マンションII
物件紹介
西津田マンションIIはJR山陰本線松江駅から徒歩23分にあるマンションです。
このお部屋は2階以上に位置しているので、通行人や周囲の住人からの視線が気になりにくく、防犯面でも安心。インターホンにはTVモニタもついているため、相手の顔を確認してから来客対応することができます。
人気の南向き・フローリングのお部屋。角部屋でもあるため、周囲の居住者の生活音も気になりにくい場所です。バス・トイレ別の仕様で、のんびりお風呂タイムも楽しめます。
通信設備面ではCATVに対応しているので、おうち時間も充実するでしょう(別途工事、契約料が必要な場合あり)。
このお部屋は2階以上に位置しているので、通行人や周囲の住人からの視線が気になりにくく、防犯面でも安心。インターホンにはTVモニタもついているため、相手の顔を確認してから来客対応することができます。
人気の南向き・フローリングのお部屋。角部屋でもあるため、周囲の居住者の生活音も気になりにくい場所です。バス・トイレ別の仕様で、のんびりお風呂タイムも楽しめます。
通信設備面ではCATVに対応しているので、おうち時間も充実するでしょう(別途工事、契約料が必要な場合あり)。
お金・契約の情報
※「-」と表示されているものは、実際は料金が発生するものもございます。詳細はお問い合わせください。
| 家賃 | 7.2万円 | 管理費・共益費 | 1,000円 |
|---|---|---|---|
| 敷金 | 14.4万円 | 礼金 | 7.2万円 |
| 入居決定でお祝い金最大100,000円 | |||
| 保証金 | - | 償却・敷引 | - |
| 住宅保険料 | - | 更新料 | - |
| 保証会社利用 | 必須 | 保証会社名 | 日本セーフティー |
| 保証会社費用 | - | 保証会社備考 | 日本セーフティー利用必 ■保証会社要加入:保証会社 日本セーフティー 初回保証料:賃料総額の40% / 連帯保証人1名必要 1年毎更新料:15,000円 / 賃料振替手数料:月額440円 |
| 契約形態 | - | 契約期間 | - |
| 入居・引渡期間 | - | 現況 | - |
| 契約備考 | ■入居時:鍵交換費用必要 11,000円(税込) ■退去時:ハウスクリーニング費用をご負担いただきます ■くらしーど24要加入:月額880円 保険加入情報:住宅総合保険加入要 2階以上、学生可駐車場備考:駐車場:有(料金込み) 駐車料金: 備考:■駐車場:2台目駐車料 月額4,400円 敷地外 ※確認必要 2LDK 損保【要】 バストイレ別、バルコニー、エアコン、クロゼット、フローリング、TVインターホン、室内洗濯置、南向き、角住戸、温水洗浄便座、洗面所独立、駐輪場、CATV、対面式キッチン、駐車場1台無料、駐車2台可、IT重説対応物件、初期費用カード決済可 入居日:'25年12月中旬 | ||
部屋の情報
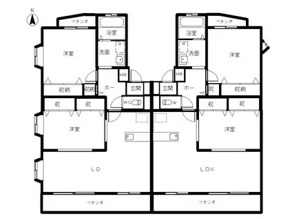
| 間取り | 2LDK | 専有面積 | 81.22m2 |
|---|---|---|---|
| 所在階 / 向き | 2階 / 南 | バルコニー面積 | - |
| 水道 / ガス | - | ||
| 設備 | バス・トイレ別、2階以上、テレビドアホン、エアコン、温水洗浄便座、南向き、角部屋、バルコニー、フローリング、洗髪洗面化粧台、CATV、洗濯機:室内 | ||
| 当社物件ID | 159784016 | ||
建物の情報
| 建物名 | 西津田マンションII | ||
|---|---|---|---|
| 所在地 | 島根県松江市西津田 | ||
| 交通 | JR山陰本線 松江駅 徒歩23分 | ||
| 階数 | 3階建 | 総戸数 | - |
| 築年月 | 2006年03月 / 築20年 | エレベーター | - |
| 駐車場 | 空有 付無料 | バイク置き場 | - |
| 駐輪場 | あり | 管理人/管理会社 | - |
| 周辺環境 | その他 マルマン 津田店(スーパー)まで1155m その他 Mishimaya(みしまや) 津田店(スーパー)まで982m その他 まるごう 古志原店(古志原ショッピングセンター)(スーパー)まで1511m その他 ローソン 松江上乃木店(コンビニ)まで1409m その他 ファミリーマート 松江東津田店(コンビニ)まで1326m その他 ドラッグストアウェルネス 古志原店(ドラッグストア)まで1407m | ||
| 建物種別 | マンション | 建物構造 | RC(鉄筋コンクリート) |
この部屋の取扱い不動産会社
| 会社名 | いい部屋ネット大東建託リーシング(株)鳥取店(SUUMO経由) | ||
|---|---|---|---|
| 所在地 | 鳥取県鳥取市南吉方2-32 | 交通 | - |
| 営業時間 | 10: 00~12:30、 13:30~18:00 | 定休日 | 火・水・12月11日(木) |
| 免許番号 | 国土交通大臣9120 | 取引態様 | 仲介 |
| 不動産会社管理番号 | 100470472703 | 当社管理番号 | 89 |
| 所属団体 | (公財)日本賃貸住宅管理協会会員 | ||
| 公正取引協議会 | (公社)首都圏不動産公正取引協議会加盟 | ||
| 取扱い物件情報 | 物件詳細へ | ||
※各種情報と現状に差異がある場合は、現状優先となります。問い合わせをすることで、より詳しい条件、情報を確認する事ができます。
提供:いい部屋ネット大東建託リーシング(株)鳥取店(SUUMO経由)
この物件が気になったら掲載期限まであと10日
西津田マンションIIに条件(家賃・エリア)が近い物件一覧
| 写真 | 家賃 管理費等 | 敷金 礼金 | 間取り 専有面積 | 築年数 | 最寄り駅 所在地 | キープ | 詳細 |
|---|---|---|---|---|---|---|---|
アパート クオレール(2LDK/2階) | |||||||
![]() | 7.1万円 2,000円 | なし 7.1万円 | 2LDK 68.17m2 | 築14年 | JR山陰本線 出雲市駅 徒歩11分 一畑電車北松江線 電鉄出雲市駅 徒歩13分 一畑電車北松江線 出雲科学館パークタウン前駅 徒歩21分 島根県出雲市塩冶町 | 詳細を見る | |
アパート レオネクスト出雲の里(1K/2階) | |||||||
![]() | 5.2万円 4,500円 | なし 5.2万円 | 1K 34.31m2 | 築11年 | 島根県出雲市古志町 | 詳細を見る | |
アパート セジュールアクィールⅡ(1LDK/1階) | |||||||
![]() | 6.5万円 4,500円 | なし 6.5万円 | 1LDK 51.15m2 | 築14年 | 島根県松江市比津町 | 詳細を見る | |
アパート クレメント ブリーズ B(2DK/1階) | |||||||
![]() | 5.4万円 2,300円 | なし 6.4万円 | 2DK 45.33m2 | 築15年 | JR山陰本線 玉造温泉駅 徒歩16分 島根県松江市玉湯町玉造 | 詳細を見る | |
アパート クレストールⅢ B(1LDK/2階) | |||||||
![]() | 7.55万円 2,200円 | なし 7.55万円 | 1LDK 48.74m2 | 新築 | 島根県松江市東津田町 | 詳細を見る | |
アパート フレグランスKII(2DK/2階) | |||||||
![]() | 5.5万円 2,000円 | 5.5万円 5.5万円 | 2DK 50.48m2 | 築32年 | JR山陰本線 松江駅 徒歩38分 島根県松江市菅田町 | 詳細を見る | |
アパート サンシャイン(1LDK/3階) | |||||||
![]() | 6.5万円 3,000円 | 6.5万円 6.5万円 | 1LDK 47.58m2 | 築10年 | 山陰本線 松江駅 徒歩33分 島根県松江市西川津町 | 詳細を見る | |
アパート SUN VIVACE塩冶(1K/2階) | |||||||
![]() | 4.8万円 3,000円 | なし 4.8万円 | 1K 28.36m2 | 築8年 | 山陰本線 出雲市駅 徒歩5分 島根県出雲市塩冶善行町 | 詳細を見る | |








