賃貸アパート
三番木木福大前の賃貸物件情報(1LDK/1階)
| 家賃 | 管理費等 | 敷金 | 礼金 | 間取り | 専有面積 |
|---|---|---|---|---|---|
| 6.4万円 | 4,000円 | なし | 6.4万円 | 1LDK | 32.59m2 |
入居決定でお祝い金最大100,000円
- 保証金
- -
- 償却・敷引
- -
- 築年数
- 築2年
- 所在階
- 1階
- 向き
- -
Point
初期費用を全額カードで分割払いできます/当社提携駐車場あり(3時間無料)/土日祝日営業中
提供:リロの賃貸 大橋店(株)ルーム(SUUMO経由)

詳細情報 三番木木福大前
物件紹介
三番木木福大前は地下鉄七隈線福大前駅から徒歩9分にあり、駅近で通勤通学に便利なアパートです。
建物のエントランスはオートロックがついており、インターホンにはTVモニタもついているため、相手の顔を確認してから来客対応することができます。
おしゃれなデザイナーズ物件!人気の角部屋で周囲の居住者の生活音も気になりにくく、また、フローリングのお部屋なのでお掃除もラクラク。室内にはウォークインクローゼットがありますので、たくさんの荷物も効率的に収納ができます。キッチンはシステムキッチン仕様になっていますので、お料理好きの方にもぴったり。バス・トイレは別なので、のんびりお風呂タイムも楽しめるでしょう。また、雨の日でも浴室乾燥機を使えば、お洗濯も問題ありません。
通信設備面では、インターネットが無料で使えるので、月々の出費を抑えられるのも魅力です。また、BSアンテナがありCATVにも対応しているので、おうち時間も充実するでしょう(別途工事、BS・CATVの契約料等が必要な場合あり)。
建物のエントランスはオートロックがついており、インターホンにはTVモニタもついているため、相手の顔を確認してから来客対応することができます。
おしゃれなデザイナーズ物件!人気の角部屋で周囲の居住者の生活音も気になりにくく、また、フローリングのお部屋なのでお掃除もラクラク。室内にはウォークインクローゼットがありますので、たくさんの荷物も効率的に収納ができます。キッチンはシステムキッチン仕様になっていますので、お料理好きの方にもぴったり。バス・トイレは別なので、のんびりお風呂タイムも楽しめるでしょう。また、雨の日でも浴室乾燥機を使えば、お洗濯も問題ありません。
通信設備面では、インターネットが無料で使えるので、月々の出費を抑えられるのも魅力です。また、BSアンテナがありCATVにも対応しているので、おうち時間も充実するでしょう(別途工事、BS・CATVの契約料等が必要な場合あり)。
お金・契約の情報
※「-」と表示されているものは、実際は料金が発生するものもございます。詳細はお問い合わせください。
| 家賃 | 6.4万円 | 管理費・共益費 | 4,000円 |
|---|---|---|---|
| 敷金 | なし | 礼金 | 6.4万円 |
| 入居決定でお祝い金最大100,000円 | |||
| 保証金 | - | 償却・敷引 | - |
| 住宅保険料 | - | 更新料 | - |
| 保証会社利用 | 必須 | 保証会社名 | - |
| 保証会社費用 | - | 保証会社備考 | 保証会社利用必 初回保証料60%(更新保証料なし、毎月保証料(口座振替手数料含む)800円(非課税)/月) |
| 契約形態 | - | 契約期間 | - |
| 入居・引渡期間 | 相談 | 現況 | - |
| 契約備考 | 巡回管理/室内クリーニング代:49500円 合計4.51万円(内訳:入居時消毒代17600円/ネット初期設定代5500円/鍵交換代22000円) 町費100円/月、安心サポート880円/月 1LDK 二人入居可 普通借家2年 損保【要】 バストイレ別、バルコニー、エアコン、ガスコンロ対応、クロゼット、フローリング、TVインターホン、浴室乾燥機、オートロック、室内洗濯置、シューズボックス、システムキッチン、角住戸、温水洗浄便座、脱衣所、洗面所独立、洗面化粧台、2口コンロ、駐輪場、CATV、光ファイバー、敷金不要、対面式キッチン、24時間緊急通報システム、全居室フローリング、デザイナーズ、ネット専用回線、駅まで平坦、ネット使用料不要、眺望良好、築2年以内、24時間換気システム、平坦地、3駅以上利用可、駅徒歩10分以内、敷地内ごみ置き場、BS、高速ネット対応、礼金1ヶ月、IT重説対応物件、初期費用カード決済可、通風良好 | ||
部屋の情報
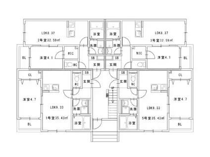
| 間取り | 1LDK | 専有面積 | 32.59m2 |
|---|---|---|---|
| 所在階 / 向き | 1階 / - | バルコニー面積 | - |
| 水道 / ガス | - | ||
| 設備 | バス・トイレ別、オートロック、テレビドアホン、浴室乾燥機、インターネット対応、システムキッチン、エアコン、温水洗浄便座、角部屋、バルコニー、フローリング、洗髪洗面化粧台、2口コンロ、コンロ:ガス、デザイナーズ、CATV、BSアンテナ、インターネット使用料無料、洗濯機:室内 | ||
| 当社物件ID | 160436578 | ||
建物の情報
| 建物名 | 三番木木福大前 | ||
|---|---|---|---|
| 所在地 | 福岡県福岡市城南区西片江 | ||
| 交通 | 地下鉄七隈線 福大前駅 徒歩9分 地下鉄七隈線 梅林駅(福岡) 徒歩12分 地下鉄七隈線 七隈駅 徒歩17分 | ||
| 階数 | 3階建 | 総戸数 | - |
| 築年月 | 2024年04月 / 築2年 | エレベーター | - |
| 駐車場 | 近隣 120m9900円 | バイク置き場 | - |
| 駐輪場 | あり | 管理人/管理会社 | - |
| 周辺環境 | その他 ローソンサテライト 福岡大学病院店(コンビニ)まで615m その他 【7/19オープン】ドラッグストアモリ 梅林店(ドラッグストア)まで569m その他 ドラッグストアモリ 梅林店(ドラッグストア)まで569m その他 ファミリーマート 城南梅林2丁目店(コンビニ)まで431m | ||
| 建物種別 | アパート | 建物構造 | 木造 |
この部屋の取扱い不動産会社
| 会社名 | バッチリ賃貸 箱崎店(株)バッチリ賃貸福岡(SUUMO経由) | ||
|---|---|---|---|
| 所在地 | 福岡県福岡市東区箱崎1-6-6 舞福ビル1階 | 交通 | - |
| 営業時間 | 10:00~18:00 | 定休日 | 年末年始、GW、お盆 |
| 免許番号 | 福岡県知事19148 | 取引態様 | 仲介 |
| 不動産会社管理番号 | 100489431826 | 当社管理番号 | 89 |
| 所属団体 | (公社)福岡県宅地建物取引業協会会員 | ||
| 公正取引協議会 | (一社)九州不動産公正取引協議会加盟 | ||
| 取扱い物件情報 | 物件詳細へ | ||
※各種情報と現状に差異がある場合は、現状優先となります。問い合わせをすることで、より詳しい条件、情報を確認する事ができます。
提供:バッチリ賃貸 箱崎店(株)バッチリ賃貸福岡(SUUMO経由)
この物件が気になったら掲載期限まであと11日
三番木木福大前に条件(家賃・エリア)が近い物件一覧
| 写真 | 家賃 管理費等 | 敷金 礼金 | 間取り 専有面積 | 築年数 | 最寄り駅 所在地 | キープ | 詳細 |
|---|---|---|---|---|---|---|---|
マンション アルバス・ケイ(1LDK/2階) | |||||||
![]() | 8.8万円 3,300円 | なし 8.8万円 | 1LDK 41.3m2 | 築1年 | 福岡県大野城市若草3丁目 | 詳細を見る | |
アパート リバーサイド春日(2LDK/1階) | |||||||
![]() | 5.1万円 2,000円 | なし 5.1万円 | 2LDK 52.8m2 | 築38年 | 西鉄天神大牟田線 白木原駅 徒歩27分 鹿児島本線 大野城駅 徒歩28分 鹿児島本線 春日駅(福岡) 徒歩30分 福岡県春日市 | 詳細を見る | |
アパート ヴェルネスM(1LDK/2階) | |||||||
![]() | 6.5万円 なし | なし 13万円 | 1LDK 35.5m2 | 築24年 | 福岡県春日市須玖南 | 詳細を見る | |
マンション メゾン・ド・ファミーユ(2LDK/1階) | |||||||
![]() | 8万円 3,000円 | なし 8万円 | 2LDK 50m2 | 築29年 | JR鹿児島本線 春日駅(福岡) 徒歩12分 JR鹿児島本線 南福岡駅 徒歩14分 西鉄天神大牟田線 春日原駅 徒歩20分 福岡県春日市宝町 | 詳細を見る | |
マンション ラインビル西村(3DK/3階) | |||||||
![]() | 6万円 なし | なし 12万円 | 3DK 55.5m2 | 築47年 | 鹿児島本線 南福岡駅 徒歩13分 鹿児島本線 春日駅(福岡) 徒歩16分 西鉄天神大牟田線 春日原駅 徒歩22分 福岡県春日市宝町4丁目 | 詳細を見る | |
マンション アリビオ春日野(2LDK/3階) | |||||||
![]() | 10.3万円 6,000円 | なし 20.6万円 | 2LDK 63.28m2 | 築1年 | 西鉄天神大牟田線 白木原駅 徒歩21分 鹿児島本線 大野城駅 徒歩22分 西鉄天神大牟田線 下大利駅 徒歩33分 福岡県春日市 | 詳細を見る | |
アパート オブジュダールSHIBATA(3LDK/2階) | |||||||
![]() | 7万円 なし | なし 14万円 | 3LDK 67.18m2 | 築36年 | 博多南線 博多南駅 徒歩17分 鹿児島本線 南福岡駅 徒歩38分 鹿児島本線 春日駅(福岡) 徒歩40分 福岡県春日市下白水北4丁目 | 詳細を見る | |
アパート フラワーポテト正弥Ⅱ(3DK/2階) | |||||||
![]() | 5.2万円 3,000円 | なし なし | 3DK 59m2 | 築29年 | 博多南線 博多南駅 徒歩56分 福岡県大野城市月の浦1丁目 | 詳細を見る | |









