賃貸マンション
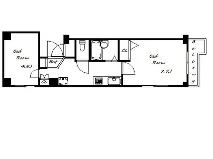
ブロスコート六甲IIの賃貸物件情報(2K/2階)
| 家賃 | 管理費等 | 敷金 | 礼金 | 間取り | 専有面積 |
|---|---|---|---|---|---|
| 7.3万円 | 1.1万円 | なし | 7.3万円 | 2K | 32.31m2 |
入居決定でお祝い金最大100,000円
- 保証金
- -
- 償却・敷引
- -
- 築年数
- 築23年
- 所在階
- 2階
- 向き
- 西
Point
オートロック設備がついており、防犯性が高い物件です。室内設備はエアコン・ネット使用料不要などが揃っており、とても充実しています。風通しが良好なので、いつでも新鮮な空気がはいってきます。
提供:ピタットハウス元町店(株)ライブデザイン兵庫(SUUMO経由)

詳細情報 ブロスコート六甲II
物件紹介
ブロスコート六甲IIはJR東海道本線六甲道駅から徒歩5分にあり、駅近で通勤通学に便利なマンションです。
このお部屋は2階以上に位置しているので通行人や周囲の住人からの視線が気になりにくく、建物のエントランスはオートロックがついているので防犯性が高くなっています。
フローリングのお部屋なのでお掃除もラクラク。バス・トイレ別の仕様で、のんびりお風呂タイムも楽しめます。
通信設備面では、インターネットが無料で使えるので、月々の出費を抑えられるのも魅力です。また、BSアンテナ・CSアンテナがありCATVにも対応しているので、おうち時間も充実するでしょう(別途工事、BS・CS・CATVの契約料等が必要な場合あり)。
建物にはエレベーターがついているので、重い荷物があっても安心。また、ペット飼育の相談ができますので、あなたの大切な家族の一員も快適に暮らせるか、ぜひ確認してみてください。
このお部屋は2階以上に位置しているので通行人や周囲の住人からの視線が気になりにくく、建物のエントランスはオートロックがついているので防犯性が高くなっています。
フローリングのお部屋なのでお掃除もラクラク。バス・トイレ別の仕様で、のんびりお風呂タイムも楽しめます。
通信設備面では、インターネットが無料で使えるので、月々の出費を抑えられるのも魅力です。また、BSアンテナ・CSアンテナがありCATVにも対応しているので、おうち時間も充実するでしょう(別途工事、BS・CS・CATVの契約料等が必要な場合あり)。
建物にはエレベーターがついているので、重い荷物があっても安心。また、ペット飼育の相談ができますので、あなたの大切な家族の一員も快適に暮らせるか、ぜひ確認してみてください。
お金・契約の情報
※「-」と表示されているものは、実際は料金が発生するものもございます。詳細はお問い合わせください。
| 家賃 | 7.3万円 | 管理費・共益費 | 1.1万円 |
|---|---|---|---|
| 敷金 | なし | 礼金 | 7.3万円 |
| 入居決定でお祝い金最大100,000円 | |||
| 保証金 | - | 償却・敷引 | - |
| 住宅保険料 | - | 更新料 | - |
| 保証会社利用 | 必須 | 保証会社名 | - |
| 保証会社費用 | - | 保証会社備考 | 保証会社利用必 初回保証料:月額賃料合計の100%、年更新20000円、月額手数料2330円、引落手数料330円 |
| 契約形態 | 定期借家 | 契約期間 | 2年 |
| 入居・引渡期間 | - | 現況 | - |
| 入居可能条件 | ペット相談 | ||
| 契約備考 | 短期解約違約金:1年未満で月家賃合計の1か月分。退去時精算手数料5500円 合計11万円(内訳:室内清掃費5.5万円契約事務手数料2.2万円鍵交換代3.3万円) 更新料 新賃料1.00ヶ月分 火災保険 800円(月額) クラブ会費 2200円(月額) 2K ペット相談 定期借家2年 損保【要】 バストイレ別、バルコニー、エアコン、クロゼット、フローリング、オートロック、室内洗濯置、陽当り良好、エレベーター、敷金不要、ペット相談、ネット使用料不要、礼金1ヶ月、IT重説対応物件、初期費用カード決済可、通風良好 入居日:'26年3月下旬 | ||
部屋の情報
| 間取り | 2K | 専有面積 | 32.31m2 |
|---|---|---|---|
| 所在階 / 向き | 2階 / 西 | バルコニー面積 | - |
| 水道 / ガス | - | ||
| 設備 | バス・トイレ別、2階以上、オートロック、インターネット対応、エアコン、エレベーター、バルコニー、フローリング、インターネット使用料無料、洗濯機:室内 | ||
| 当社物件ID | 17694740 | ||
建物の情報
| 建物名 | ブロスコート六甲II | ||
|---|---|---|---|
| 所在地 | 兵庫県神戸市灘区桜口町 | ||
| 交通 | 阪神本線 新在家駅 徒歩6分 JR東海道本線 六甲道駅 徒歩9分 阪急神戸線 六甲駅 徒歩17分 | ||
| 階数 | 8階建 | 総戸数 | - |
| 築年月 | 2003年06月 / 築23年 | エレベーター | あり |
| 駐車場 | なし | バイク置き場 | - |
| 駐輪場 | - | 管理人/管理会社 | - |
| 周辺環境 | その他 神戸大学様(大学・短大)まで1961m その他 ダイエー六甲道店様(スーパー)まで541m その他 フォレスタ六甲店様(ショッピングセンター)まで698m その他 ダイコクドラッグ 六甲道駅前店様(ドラッグストア)まで608m その他 セブンイレブン 神戸大和町4丁目店様(コンビニ)まで602m その他 西病院様(病院)まで348m | ||
| 建物種別 | マンション | 建物構造 | RC(鉄筋コンクリート) |
この部屋の取扱い不動産会社
| 会社名 | いい部屋ネット大東建託リーシング(株)三宮店(SUUMO経由) | ||
|---|---|---|---|
| 所在地 | 兵庫県神戸市中央区北長狭通1-2-14 ポートビル201 | 交通 | - |
| 営業時間 | 10:00~12:30、13:30~18:00 | 定休日 | 火・水曜日 |
| 免許番号 | 国土交通大臣9120 | 取引態様 | 仲介 |
| 不動産会社管理番号 | 100460200263 | 当社管理番号 | 89 |
| 所属団体 | (公財)日本賃貸住宅管理協会会員 | ||
| 公正取引協議会 | (公社)首都圏不動産公正取引協議会加盟 | ||
| 取扱い物件情報 | 物件詳細へ | ||
※各種情報と現状に差異がある場合は、現状優先となります。問い合わせをすることで、より詳しい条件、情報を確認する事ができます。
提供:いい部屋ネット大東建託リーシング(株)三宮店(SUUMO経由)
この物件が気になったら掲載期限まであと10日
ブロスコート六甲IIに条件(家賃・エリア)が近い物件一覧
| 写真 | 家賃 管理費等 | 敷金 礼金 | 間取り 専有面積 | 築年数 | 最寄り駅 所在地 | キープ | 詳細 |
|---|---|---|---|---|---|---|---|
アパート MKホーム広野(1LDK/1階) | |||||||
![]() | 6.5万円 なし | なし 13万円 | 1LDK 45.36m2 | 築47年 | 神戸電鉄粟生線 広野ゴルフ場前駅 徒歩11分 神戸電鉄粟生線 志染駅 徒歩20分 神戸電鉄粟生線 緑が丘駅(兵庫) 徒歩20分 兵庫県三木市志染町広野6丁目 | 詳細を見る | |
マンション ガーデンハウス・K(1K/2階) | |||||||
![]() | 5.85万円 3,500円 | なし 8万円 | 1K 30.96m2 | 築18年 | JR山陽本線 西明石駅 徒歩14分 山陽電鉄本線 林崎松江海岸駅 徒歩15分 山陽電鉄本線 西新町駅 徒歩19分 兵庫県明石市西明石町 | 詳細を見る | |
マンション 天城ビル(2DK/1階) | |||||||
![]() | 5万円 2,000円 | 5万円 5万円 | 2DK 30m2 | 築57年 | 阪急電鉄神戸線 王子公園駅 徒歩8分 東海道本線 摩耶駅 徒歩13分 兵庫県神戸市灘区天城通6丁目1−5 | 詳細を見る | |
アパート ルミエール魚住(2LDK/2階) | |||||||
![]() | 6.1万円 2,900円 | なし 9万円 | 2LDK 55.84m2 | 築17年 | 兵庫県明石市魚住町金ケ崎 | 詳細を見る | |
マンション ビレッジハウス志染(3DK/2階) | |||||||
![]() | 5.89万円 なし | なし なし | 3DK 54.38m2 | 築46年 | 神戸電鉄粟生線 志染駅 徒歩19分 神戸電鉄粟生線 恵比須駅 徒歩29分 神戸電鉄粟生線 広野ゴルフ場前駅 徒歩29分 兵庫県三木市志染町西自由が丘2丁目 | 詳細を見る | |
マンション シーサイドパストラル林崎II(2LDK/1階) | |||||||
![]() | 8.6万円 6,000円 | なし 20万円 | 2LDK 67.12m2 | 築29年 | 山陽電気鉄道本線 林崎松江海岸駅 徒歩3分 山陽電気鉄道本線 西新町駅 徒歩23分 山陽本線 西明石駅 徒歩30分 兵庫県明石市林崎町3丁目 | 詳細を見る | |
アパート ヒカルサ稲美天満Ⅰ(1LDK/1階) | |||||||
![]() | 7.35万円 3,900円 | なし 7.35万円 | 1LDK 44.7m2 | 新築 | 兵庫県加古郡稲美町六分一 | 詳細を見る | |
一戸建て 神戸電鉄粟生線 緑が丘駅(兵庫) 徒歩6分 築23年(3LDK) | |||||||
![]() | 9.8万円 3,500円 | 2万円 14万円 | 3LDK 92.29m2 | 築23年 | 神戸電鉄粟生線 緑が丘駅(兵庫) 徒歩6分 神戸電鉄粟生線 広野ゴルフ場前駅 徒歩13分 神戸電鉄粟生線 押部谷駅 徒歩22分 兵庫県三木市緑が丘町本町1丁目 | 詳細を見る | |







