賃貸マンション
レジデンス新蒲田スクエアの賃貸物件情報(1LDK/4階)
| 家賃 | 管理費等 | 敷金 | 礼金 | 間取り | 専有面積 |
|---|---|---|---|---|---|
| 16.9万円 | 1万円 | なし | なし | 1LDK | 45.52m2 |
入居決定でお祝い金最大100,000円
- 保証金
- -
- 償却・敷引
- -
- 築年数
- 築24年
- 所在階
- 4階
- 向き
- 東
Point
まずはお問い合わせ!
不動産会社は街のプロ、あなたに合った物件がきっと見つかります。
提供:株式会社日商ベックス リロの不動産 蒲田店(賃貸スモッカ経由)

詳細情報 レジデンス新蒲田スクエア
物件紹介
レジデンス新蒲田スクエアは東急池上線蓮沼駅から徒歩8分にあり、駅近で通勤通学に便利なマンションです。
このお部屋は2階以上に位置しているので、通行人や周囲の住人からの視線が気になりにくく、防犯面でも安心。建物のエントランスはオートロックがついており、インターホンにはTVモニタもついているため、相手の顔を確認してから来客対応することができます。
人気の角部屋で周囲の居住者の生活音も気になりにくく、また、フローリングのお部屋なのでお掃除もラクラク。室内にはウォークインクローゼットがありますので、たくさんの荷物も効率的に収納ができます。キッチンはシステムキッチン仕様になっていますので、お料理好きの方にもぴったり。バス・トイレは別なので、のんびりお風呂タイムも楽しめるでしょう。また、雨の日でも浴室乾燥機を使えば、お洗濯も問題ありません。
通信設備面では、インターネットが無料で使えるので、月々の出費を抑えられるのも魅力です(別途工事等が必要な場合あり)。
建物にはエレベーターがついているので、重い荷物があっても安心。共用部には宅配ボックスが設定されているので、不在の時にも荷物を受け取ることができます。
このお部屋は2階以上に位置しているので、通行人や周囲の住人からの視線が気になりにくく、防犯面でも安心。建物のエントランスはオートロックがついており、インターホンにはTVモニタもついているため、相手の顔を確認してから来客対応することができます。
人気の角部屋で周囲の居住者の生活音も気になりにくく、また、フローリングのお部屋なのでお掃除もラクラク。室内にはウォークインクローゼットがありますので、たくさんの荷物も効率的に収納ができます。キッチンはシステムキッチン仕様になっていますので、お料理好きの方にもぴったり。バス・トイレは別なので、のんびりお風呂タイムも楽しめるでしょう。また、雨の日でも浴室乾燥機を使えば、お洗濯も問題ありません。
通信設備面では、インターネットが無料で使えるので、月々の出費を抑えられるのも魅力です(別途工事等が必要な場合あり)。
建物にはエレベーターがついているので、重い荷物があっても安心。共用部には宅配ボックスが設定されているので、不在の時にも荷物を受け取ることができます。
お金・契約の情報
※「-」と表示されているものは、実際は料金が発生するものもございます。詳細はお問い合わせください。
| 家賃 | 16.9万円 | 管理費・共益費 | 1万円 |
|---|---|---|---|
| 敷金 | なし | 礼金 | なし |
| フリーレント | あり | ||
| 入居決定でお祝い金最大100,000円 | |||
| 保証金 | - | 償却・敷引 | - |
| 住宅保険料 | 住宅保険料あり | 更新料 | - |
| 契約形態 | - | 契約期間 | 2年 |
| 入居・引渡期間 | 即時 | 現況 | 空室 |
| 契約備考 | エアコン清掃費1基辺り:16,500円 鍵交換代:27,500円 更新料:1ヶ月 保証会社:利用必須 エポス(初回:40%、月次:無、更新:10000円/1年or14000円/1年)※他保証会社による その他設備/条件:IT重説 対応物件、防犯カメラ、コンロ2口以上、独立洗面台、TVドアホン、即入居可、エアコン複数、敷地内ゴミ置場 | ||
部屋の情報
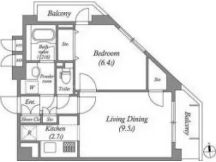
| 間取り | 1LDK | 専有面積 | 45.52m2 |
|---|---|---|---|
| 間取り詳細 | LDK(12.2帖)、洋室(6.4帖) | ||
| 所在階 / 向き | 4階 / 東 | バルコニー面積 | - |
| 水道 / ガス | ガス【都市】 | ||
| 設備 | バス・トイレ別、2階以上、オートロック、宅配ボックス、浴室乾燥機、システムキッチン、エアコン、エレベーター、温水洗浄便座、バルコニー、フローリング、コンロ:ガス、洗濯機:室内、タイル張り | ||
| 当社物件ID | 160109940 | ||
建物の情報
| 建物名 | レジデンス新蒲田スクエア | ||
|---|---|---|---|
| 所在地 | 東京都大田区新蒲田1丁目 | ||
| 交通 | 東急池上線 蓮沼駅 徒歩9分 東急多摩川線 蒲田駅 徒歩10分 東急多摩川線 矢口渡駅 徒歩14分 | ||
| 階数 | 9階建 | 総戸数 | - |
| 築年月 | 2002年02月 / 築24年 | エレベーター | あり |
| 駐車場 | - | バイク置き場 | - |
| 駐輪場 | あり | 管理人/管理会社 | - |
| 建物種別 | マンション | 建物構造 | RC(鉄筋コンクリート) |
この部屋の取扱い不動産会社
| 会社名 | 株式会社日商ベックス リロの不動産 蒲田店(賃貸スモッカ経由) | ||
|---|---|---|---|
| 所在地 | 東京都大田区西蒲田7丁目1-6 谷口ビル 1F | 交通 | - |
| 営業時間 | - | 定休日 | - |
| 免許番号 | 国土交通大臣免許(10)第3273号 | 取引態様 | 仲介 |
| 不動産会社管理番号 | nvrelo_100_100_00013527456 | 当社管理番号 | 463 |
| 取扱い物件情報 | 物件詳細へ | ||
※各種情報と現状に差異がある場合は、現状優先となります。問い合わせをすることで、より詳しい条件、情報を確認する事ができます。
提供:株式会社日商ベックス リロの不動産 蒲田店(賃貸スモッカ経由)
この物件が気になったら掲載期限まであと5日
レジデンス新蒲田スクエアに条件(家賃・エリア)が近い物件一覧
| 写真 | 家賃 管理費等 | 敷金 礼金 | 間取り 専有面積 | 築年数 | 最寄り駅 所在地 | キープ | 詳細 |
|---|---|---|---|---|---|---|---|
マンション イプセ蒲田Ⅲ(1K/4階) | |||||||
![]() | 11.3万円 1.2万円 | 11.3万円 なし | 1K 25.51m2 | 築10年 | 東急池上線 蓮沼駅 徒歩5分 東急多摩川線 蒲田駅 徒歩9分 京浜東北・根岸線 蒲田駅 徒歩10分 東京都大田区東矢口3丁目 | 詳細を見る | |
アパート SEED SAVE PETIRASU Ⅲ(1LDK/1階) | |||||||
![]() | 11.5万円 1万円 | 23万円 11.5万円 | 1LDK 35.83m2 | 新築 | 東京モノレール羽田 昭和島駅 徒歩12分 京浜急行電鉄本線 大森町駅 徒歩18分 東京都大田区大森東5丁目 | 詳細を見る | |
マンション シーズンフラッツ大森北(1LDK/14階) | |||||||
![]() | 15.3万円 1.5万円 | 15.3万円 15.3万円 | 1LDK 29.88m2 | 築2年 | 京浜急行電鉄本線 大森海岸駅 徒歩8分 京浜東北・根岸線 大森駅(東京) 徒歩11分 京浜急行電鉄本線 平和島駅 徒歩13分 東京都大田区大森北2丁目 | 詳細を見る | |
マンション コンフォリア・リヴ豊洲キャナル(3LDK/2階) | |||||||
![]() | 25.8万円 1.5万円 | 25.8万円 なし | 3LDK 58.32m2 | 築1年 | 東京地下鉄有楽町線 豊洲駅 徒歩14分 東京都江東区枝川1丁目 | 詳細を見る | |
マンション AUGUSTA RESIDENCE大森(1SLDK/8階) | |||||||
![]() | 21.4万円 1万円 | なし なし | 1SLDK 41.24m2 | 築1年 | 京浜東北・根岸線 大森駅(東京) 徒歩10分 東京都品川区南大井3丁目 | 詳細を見る | |
アパート エトワール(1LDK/2階) | |||||||
![]() | 12.9万円 6,000円 | なし 12.9万円 | 1LDK 32.59m2 | 築14年 | JR京浜東北線 大森駅(東京) 徒歩20分 都営浅草線 西馬込駅 徒歩21分 東急池上線 池上駅 徒歩21分 東京都大田区中央 | 詳細を見る | |
一戸建て 東急池上線 蓮沼駅 徒歩8分 築20年(2LDK) | |||||||
![]() | 23.35万円 なし | 23.35万円 23.35万円 | 2LDK 79.92m2 | 築20年 | 東急池上線 蓮沼駅 徒歩8分 東急多摩川線 蒲田駅 徒歩9分 東急多摩川線 矢口渡駅 徒歩14分 東京都大田区西蒲田8丁目 | 詳細を見る | |







