賃貸マンション
グランフォーレプライム大濠南の賃貸物件情報(1LDK/12階)
| 家賃 | 管理費等 | 敷金 | 礼金 | 間取り | 専有面積 |
|---|---|---|---|---|---|
| 8.9万円 | 3,000円 | 8.9万円 | 17.8万円 | 1LDK | 28.09m2 |
入居決定でお祝い金最大100,000円
- 保証金
- -
- 償却・敷引
- -
- 築年数
- 築13年
- 所在階
- 12階
- 向き
- 西
Point
新築・デザイナーズ物件・ペット可・敷金礼金ゼロ物件なんでもご相談ください。時間外のご対応も事前予約でご対応可能です。全物件初期費用分割可能。博多駅から徒歩5分の店舗なのでお気軽にお立ちより下さい。
提供:(株)Linoクラシオン博多店(SUUMO経由)

詳細情報 グランフォーレプライム大濠南
物件紹介
グランフォーレプライム大濠南は地下鉄七隈線六本松駅から徒歩3分にあり、駅近で通勤通学に便利なマンションです。
このお部屋は2階以上に位置しているので、通行人や周囲の住人からの視線が気になりにくく、防犯面でも安心。建物のエントランスはオートロックがついており、インターホンにはTVモニタもついているため、相手の顔を確認してから来客対応することができます。
おしゃれなデザイナーズ物件!人気の角部屋で周囲の居住者の生活音も気になりにくく、また、フローリングのお部屋なのでお掃除もラクラク。室内にはウォークインクローゼットがありますので、たくさんの荷物も効率的に収納ができます。キッチンはシステムキッチン仕様になっていますので、お料理好きの方にもぴったり。バス・トイレは別なので、のんびりお風呂タイムも楽しめるでしょう。また、雨の日でも浴室乾燥機を使えば、お洗濯も問題ありません。
通信設備面では、インターネットが無料で使えるので、月々の出費を抑えられるのも魅力です。また、BSアンテナ・CSアンテナもありますので、おうち時間も充実するでしょう(別途工事、BS・CSの契約料等が必要な場合あり)。
建物にはエレベーターがついているので、重い荷物があっても安心。共用部には宅配ボックスが設定されているので、不在の時にも荷物を受け取ることができます。また、ペット飼育の相談ができますので、あなたの大切な家族の一員も快適に暮らせるか、ぜひ確認してみてください。
このお部屋は2階以上に位置しているので、通行人や周囲の住人からの視線が気になりにくく、防犯面でも安心。建物のエントランスはオートロックがついており、インターホンにはTVモニタもついているため、相手の顔を確認してから来客対応することができます。
おしゃれなデザイナーズ物件!人気の角部屋で周囲の居住者の生活音も気になりにくく、また、フローリングのお部屋なのでお掃除もラクラク。室内にはウォークインクローゼットがありますので、たくさんの荷物も効率的に収納ができます。キッチンはシステムキッチン仕様になっていますので、お料理好きの方にもぴったり。バス・トイレは別なので、のんびりお風呂タイムも楽しめるでしょう。また、雨の日でも浴室乾燥機を使えば、お洗濯も問題ありません。
通信設備面では、インターネットが無料で使えるので、月々の出費を抑えられるのも魅力です。また、BSアンテナ・CSアンテナもありますので、おうち時間も充実するでしょう(別途工事、BS・CSの契約料等が必要な場合あり)。
建物にはエレベーターがついているので、重い荷物があっても安心。共用部には宅配ボックスが設定されているので、不在の時にも荷物を受け取ることができます。また、ペット飼育の相談ができますので、あなたの大切な家族の一員も快適に暮らせるか、ぜひ確認してみてください。
お金・契約の情報
※「-」と表示されているものは、実際は料金が発生するものもございます。詳細はお問い合わせください。
| 家賃 | 8.9万円 | 管理費・共益費 | 3,000円 |
|---|---|---|---|
| 敷金 | 8.9万円 | 礼金 | 17.8万円 |
| 入居決定でお祝い金最大100,000円 | |||
| 保証金 | - | 償却・敷引 | - |
| 住宅保険料 | - | 更新料 | - |
| 保証会社利用 | 必須 | 保証会社名 | - |
| 保証会社費用 | - | 保証会社備考 | 保証会社利用必 賃貸保証料:0.70ヶ月 |
| 契約形態 | - | 契約期間 | - |
| 入居・引渡期間 | 相談 | 現況 | - |
| 入居可能条件 | ペット相談 | ||
| 契約備考 | 合計4.62万円(内訳:鍵交換代:33000円/消毒代:13200円) 更新料金額(円):5500円、駐輪場:空有:220円/月、町費:300円/月、24時間サポート:990円/月 1LDK 単身者可/二人入居可/ペット相談 普通借家1年 損保【1.8万円2年】 バストイレ別、バルコニー、エアコン、ガスコンロ対応、クロゼット、フローリング、シャワー付洗面台、TVインターホン、浴室乾燥機、オートロック、室内洗濯置、シューズボックス、システムキッチン、角住戸、温水洗浄便座、脱衣所、エレベーター、洗面所独立、洗面化粧台、2口コンロ、駐輪場、宅配ボックス、光ファイバー、外壁タイル張り、2面採光、BS・CS、対面式キッチン、防犯カメラ、独立型キッチン、ペット相談、分譲賃貸、オートバス、全居室洋室、ウォークインクロゼット、単身者相談、敷金1ヶ月、二人入居相談、全居室フローリング、デザイナーズ、2沿線利用可、ディンプルキー、駅まで平坦、ネット使用料不要、キッチンに窓、保証金不要、24時間換気システム、平坦地、ペット専用設備、3駅以上利用可、駅徒歩5分以内、バス停徒歩3分以内、24時間ゴミ出し可、敷地内ごみ置き場、都市ガス、洗面所にドア、高速ネット対応、LAN、礼金2ヶ月、IT重説対応物件、初期費用カード決済可 | ||
部屋の情報
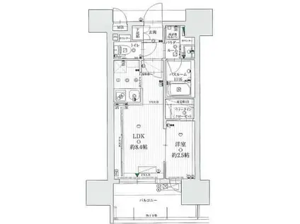
| 間取り | 1LDK | 専有面積 | 28.09m2 |
|---|---|---|---|
| 所在階 / 向き | 12階 / 西 | バルコニー面積 | - |
| 水道 / ガス | - | ||
| 設備 | バス・トイレ別、2階以上、オートロック、テレビドアホン、宅配ボックス、浴室乾燥機、ウォークインクローゼット、追い焚き、インターネット対応、システムキッチン、エアコン、エレベーター、温水洗浄便座、角部屋、バルコニー、フローリング、洗髪洗面化粧台、2口コンロ、コンロ:ガス、デザイナーズ、CSアンテナ、BSアンテナ、インターネット使用料無料、洗濯機:室内 | ||
| 当社物件ID | 11609703 | ||
建物の情報
| 建物名 | グランフォーレプライム大濠南 | ||
|---|---|---|---|
| 所在地 | 福岡県福岡市中央区草香江 | ||
| 交通 | 地下鉄七隈線 六本松駅 徒歩3分 地下鉄七隈線 別府駅(福岡) 徒歩10分 地下鉄七隈線 桜坂駅 徒歩14分 | ||
| 階数 | 13階建 | 総戸数 | - |
| 築年月 | 2013年12月 / 築13年 | エレベーター | あり |
| 駐車場 | なし | バイク置き場 | - |
| 駐輪場 | あり | 管理人/管理会社 | - |
| 周辺環境 | その他 エルロク六本松店(スーパー)まで210m その他 ローソン六本松店(コンビニ)まで240m その他 マツモトキヨシ六本松店(ドラッグストア)まで50m その他 エディオン六本松店(ホームセンター)まで80m その他 ほっともっと六本松駅前店(飲食店)まで130m その他 福岡六本松郵便局(郵便局)まで190m | ||
| 建物種別 | マンション | 建物構造 | RC(鉄筋コンクリート) |
この部屋の取扱い不動産会社
| 会社名 | (株)Linoクラシオン博多店(SUUMO経由) | ||
|---|---|---|---|
| 所在地 | 福岡県福岡市博多区博多駅前3-4-25-615 | 交通 | - |
| 営業時間 | 10:00~19:00 | 定休日 | - |
| 免許番号 | 福岡県知事20127 | 取引態様 | 仲介 |
| 不動産会社管理番号 | 100480761056 | 当社管理番号 | 89 |
| 取扱い物件情報 | 物件詳細へ | ||
※各種情報と現状に差異がある場合は、現状優先となります。問い合わせをすることで、より詳しい条件、情報を確認する事ができます。
提供:(株)Linoクラシオン博多店(SUUMO経由)
この物件が気になったら掲載期限まであと10日
グランフォーレプライム大濠南に条件(家賃・エリア)が近い物件一覧
| 写真 | 家賃 管理費等 | 敷金 礼金 | 間取り 専有面積 | 築年数 | 最寄り駅 所在地 | キープ | 詳細 |
|---|---|---|---|---|---|---|---|
マンション RJRプレシア百年橋(1LDK/14階) | |||||||
| 9.9万円 5,000円 | 9.9万円 19.8万円 | 1LDK 35.51m2 | 築5年 | 西鉄天神大牟田線 西鉄平尾駅 徒歩11分 福岡市七隈線 渡辺通駅 徒歩15分 西鉄天神大牟田線 高宮駅(福岡) 徒歩18分 福岡県福岡市中央区清川3丁目9-25 | 詳細を見る | ||
アパート グレイス ケイ(1LDK/1階) | |||||||
![]() | 7.35万円 3,500円 | なし 7.35万円 | 1LDK 45.46m2 | 新築 | 西鉄天神大牟田線 雑餉隈駅 徒歩16分 西鉄天神大牟田線 桜並木駅 徒歩17分 鹿児島本線 笹原駅 徒歩32分 福岡県大野城市仲畑4丁目 | 詳細を見る | |
マンション 西鉄天神大牟田線 井尻駅 徒歩21分 築11年(1LDK/2階) | |||||||
![]() | 6.5万円 2,000円 | 6.5万円 6.5万円 | 1LDK 41.33m2 | 築11年 | 西鉄天神大牟田線 井尻駅 徒歩21分 鹿児島本線 南福岡駅 徒歩23分 福岡県春日市須玖南4丁目 | 詳細を見る | |
アパート デフィール春日C(2DK/2階) | |||||||
![]() | 5.5万円 3,000円 | 5.5万円 5.5万円 | 2DK 62m2 | 築38年 | 鹿児島本線 笹原駅 徒歩18分 鹿児島本線 南福岡駅 徒歩26分 福岡県春日市須玖北9丁目 | 詳細を見る | |
アパート プレジールSUGU(2LDK/1階) | |||||||
![]() | 7.9万円 3,000円 | なし 15.8万円 | 2LDK 52m2 | 築37年 | JR鹿児島本線 南福岡駅 徒歩20分 西鉄天神大牟田線 井尻駅 徒歩26分 JR博多南線 博多南駅 徒歩26分 福岡県春日市須玖南 | 詳細を見る | |
アパート 日の出パラシオ(1LDK/1階) | |||||||
![]() | 7.5万円 4,000円 | なし 7.5万円 | 1LDK 40.52m2 | 築1年 | JR鹿児島本線 南福岡駅 徒歩13分 西鉄天神大牟田線 雑餉隈駅 徒歩17分 JR鹿児島本線 笹原駅 徒歩20分 福岡県春日市日の出町 | 詳細を見る | |
マンション ソシアつつじヶ丘(2LDK/2階) | |||||||
![]() | 6.2万円 6,000円 | なし なし | 2LDK 54.23m2 | 築26年 | 鹿児島本線 水城駅 徒歩34分 鹿児島本線 都府楼南駅 徒歩36分 西鉄天神大牟田線 下大利駅 徒歩36分 福岡県大野城市つつじケ丘1丁目 | 詳細を見る | |
マンション SAKURA天神(1LDK/4階) | |||||||
| 10.6万円 8,000円 | なし 21.2万円 | 1LDK 34.39m2 | 築2年 | 福岡市空港線 天神駅 徒歩8分 福岡市空港線 赤坂駅(福岡) 徒歩9分 福岡市空港線 中洲川端駅 徒歩16分 福岡県福岡市中央区天神3丁目 | 詳細を見る | ||







