賃貸マンション
プラチナフォルム板橋本町Iの賃貸物件情報(ワンルーム/4階)
| 家賃 | 管理費等 | 敷金 | 礼金 | 間取り | 専有面積 |
|---|---|---|---|---|---|
| 7.9万円 | 1万円 | なし | なし | ワンルーム | 18.04m2 |
入居決定でお祝い金最大100,000円
- 保証金
- -
- 償却・敷引
- -
- 築年数
- 築1年
- 所在階
- 4階
- 向き
- 北
Point
収納はクロゼット・シューズボックスなどが備え付けられているので、衣類や日用品の収納に重宝します。セキュリティ面は、オートロック・TVインターホンなどを備え付けているので安心して暮らせます。
提供:ハウス・トゥ・ハウス・ネットサービス(株)赤羽駅前店(SUUMO経由)

詳細情報 プラチナフォルム板橋本町I
物件紹介
プラチナフォルム板橋本町Iは都営三田線板橋本町駅から徒歩8分にあり、駅近で通勤通学に便利なマンションです。
このお部屋は2階以上に位置しているので、通行人や周囲の住人からの視線が気になりにくく、防犯面でも安心。建物のエントランスはオートロックがついており、インターホンにはTVモニタもついているため、相手の顔を確認してから来客対応することができます。
人気の角部屋で周囲の居住者の生活音も気になりにくく、また、フローリングのお部屋なのでお掃除もラクラク。キッチンはシステムキッチン仕様になっていますので、お料理好きの方にもぴったり。バス・トイレは別なので、のんびりお風呂タイムも楽しめるでしょう。また、雨の日でも浴室乾燥機を使えば、お洗濯も問題ありません。
通信設備面では、インターネットが無料で使えるので、月々の出費を抑えられるのも魅力です(別途工事等が必要な場合あり)。
このお部屋は2階以上に位置しているので、通行人や周囲の住人からの視線が気になりにくく、防犯面でも安心。建物のエントランスはオートロックがついており、インターホンにはTVモニタもついているため、相手の顔を確認してから来客対応することができます。
人気の角部屋で周囲の居住者の生活音も気になりにくく、また、フローリングのお部屋なのでお掃除もラクラク。キッチンはシステムキッチン仕様になっていますので、お料理好きの方にもぴったり。バス・トイレは別なので、のんびりお風呂タイムも楽しめるでしょう。また、雨の日でも浴室乾燥機を使えば、お洗濯も問題ありません。
通信設備面では、インターネットが無料で使えるので、月々の出費を抑えられるのも魅力です(別途工事等が必要な場合あり)。
お金・契約の情報
※「-」と表示されているものは、実際は料金が発生するものもございます。詳細はお問い合わせください。
| 家賃 | 7.9万円 | 管理費・共益費 | 1万円 |
|---|---|---|---|
| 敷金 | なし | 礼金 | なし |
| 入居決定でお祝い金最大100,000円 | |||
| 保証金 | - | 償却・敷引 | - |
| 住宅保険料 | - | 更新料 | - |
| 保証会社利用 | 必須 | 保証会社名 | - |
| 保証会社費用 | - | 保証会社備考 | 保証会社利用必 初回保証委託料:賃料等の50% 月次保証料:賃料等の1.5% |
| 契約形態 | - | 契約期間 | - |
| 入居・引渡期間 | - | 現況 | - |
| 契約備考 | 収納はクロゼット・シューズボックスなど豊富なので、衣類や履き物の整理がしやすく便利です。セキュリティ面は、TVインターホン・オートロックなどを設置しているので安全面でも優れております。浴室は湿気が多くカビが増殖しやすいですが、この物件は浴室乾燥機がついているので、カビの増殖を抑えることができます。 合計5.5万円(内訳:ハウスクリーニング費用4.4万円エアコンクリーニング費用1.1万円) 更新料 新賃料1.00ヶ月分 24連絡サービス 月額1100円 町会費 月額200円 ワンルーム 普通借家2年 損保【1.8万円2年】 バストイレ別、エアコン、クロゼット、TVインターホン、浴室乾燥機、オートロック、室内洗濯置、シューズボックス、角住戸、温水洗浄便座、礼金不要、敷金不要、IHクッキングヒーター、2沿線利用可、ネット使用料不要、耐火構造、2駅利用可、3駅以上利用可、都市ガス、敷金・礼金不要、IT重説対応物件、初期費用カード決済可 入居日:'26年5月上旬 | ||
部屋の情報
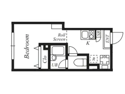
| 間取り | ワンルーム | 専有面積 | 18.04m2 |
|---|---|---|---|
| 所在階 / 向き | 4階 / 北 | バルコニー面積 | - |
| 水道 / ガス | - | ||
| 設備 | バス・トイレ別、2階以上、オートロック、テレビドアホン、浴室乾燥機、インターネット対応、エアコン、温水洗浄便座、角部屋、コンロ:IH、インターネット使用料無料、洗濯機:室内 | ||
| 当社物件ID | 160674096 | ||
建物の情報
| 建物名 | プラチナフォルム板橋本町I | ||
|---|---|---|---|
| 所在地 | 東京都板橋区双葉町 | ||
| 交通 | 都営三田線 板橋本町駅 徒歩10分 東武東上線 中板橋駅 徒歩10分 都営三田線 板橋区役所前駅 徒歩14分 | ||
| 階数 | 5階建 | 総戸数 | 14戸 |
| 築年月 | 2026年04月 / 築1年 | エレベーター | - |
| 駐車場 | なし | バイク置き場 | - |
| 駐輪場 | - | 管理人/管理会社 | - |
| 周辺環境 | その他 セブンイレブン 板橋大和町店(コンビニ)まで249m その他 氷川つり堀公園(公園)まで499m その他 富士見病院(病院)まで630m その他 板橋警察署 板橋本町交番(警察署・交番)まで598m その他 中板橋商店街(その他)まで472m その他 ファミリーマート 熊代栄町店(コンビニ)まで502m | ||
| 建物種別 | マンション | 建物構造 | RC(鉄筋コンクリート) |
この部屋の取扱い不動産会社
| 会社名 | ハウス・トゥ・ハウス・ネットサービス(株)板橋区役所前店(SUUMO経由) | ||
|---|---|---|---|
| 所在地 | 東京都板橋区仲宿 46-12 | 交通 | - |
| 営業時間 | 10:00~18:30(1月~3月は9:30~) | 定休日 | 水曜日 |
| 免許番号 | 国土交通大臣7400 | 取引態様 | 仲介 |
| 不動産会社管理番号 | 100498356237 | 当社管理番号 | 89 |
| 所属団体 | (公社)全日本不動産協会東京都本部会員 | ||
| 公正取引協議会 | (公社)首都圏不動産公正取引協議会加盟 | ||
| 取扱い物件情報 | 物件詳細へ | ||
※各種情報と現状に差異がある場合は、現状優先となります。問い合わせをすることで、より詳しい条件、情報を確認する事ができます。
提供:ハウス・トゥ・ハウス・ネットサービス(株)板橋区役所前店(SUUMO経由)
この物件が気になったら掲載期限まであと11日
プラチナフォルム板橋本町Iに条件(家賃・エリア)が近い物件一覧
| 写真 | 家賃 管理費等 | 敷金 礼金 | 間取り 専有面積 | 築年数 | 最寄り駅 所在地 | キープ | 詳細 |
|---|---|---|---|---|---|---|---|
マンション レオパレスガイア(1K/1階) | |||||||
![]() | 7.2万円 5,500円 | なし 7.2万円 | 1K 19.87m2 | 築17年 | 都営大江戸線 練馬春日町駅 徒歩10分 都営大江戸線 光が丘駅 徒歩14分 東京メトロ有楽町線 平和台駅(東京) 徒歩24分 東京都練馬区田柄 | 詳細を見る | |
アパート メゾンブランシュ(ワンルーム/2階) | |||||||
![]() | 7.2万円 3,000円 | 7.2万円 7.2万円 | ワンルーム 21.94m2 | 築24年 | 西武新宿線 上石神井駅 徒歩4分 西武新宿線 上井草駅 徒歩11分 JR中央線 西荻窪駅 徒歩35分 東京都練馬区上石神井 | 詳細を見る | |
マンション サンライト堀越(1K/3階) | |||||||
![]() | 6.4万円 2,000円 | なし なし | 1K 21.6m2 | 築39年 | 埼京線 浮間舟渡駅 徒歩6分 東京都板橋区舟渡2丁目 | 詳細を見る | |
マンション サンアームス(1K/2階) | |||||||
![]() | 6.9万円 2,000円 | 6.9万円 6.9万円 | 1K 22.6m2 | 築39年 | 東京メトロ副都心線 地下鉄成増駅 徒歩7分 東京メトロ有楽町線 地下鉄成増駅 徒歩8分 東武東上線 成増駅 徒歩10分 東京都板橋区成増 | 詳細を見る | |
アパート グラード平和台(ワンルーム/2階) | |||||||
![]() | 6.4万円 3,000円 | なし なし | ワンルーム 10.81m2 | 築10年 | 東京メトロ副都心線 平和台駅(東京) 徒歩9分 都営大江戸線 練馬春日町駅 徒歩16分 東京メトロ副都心線 地下鉄赤塚駅 徒歩19分 東京都練馬区春日町 | 詳細を見る | |
マンション ユリカロゼ成増(1K/3階) | |||||||
![]() | 11.05万円 1.5万円 | なし なし | 1K 25.26m2 | 築1年 | 東京メトロ有楽町線 地下鉄成増駅 徒歩7分 東京メトロ副都心線 地下鉄成増駅 徒歩7分 東武東上線 成増駅 徒歩10分 東京都板橋区成増 | 詳細を見る | |
マンション コーポ川見(1LDK/2階) | |||||||
![]() | 8万円 2,000円 | 8万円 なし | 1LDK 31.4m2 | 築54年 | 東武東上線 東武練馬駅 徒歩5分 東武東上線 上板橋駅 徒歩16分 東京メトロ有楽町線 平和台駅(東京) 徒歩27分 東京都板橋区徳丸 | 詳細を見る | |
マンション ジョイフル池袋(1K/1階) | |||||||
![]() | 5.7万円 5,000円 | 5.7万円 5.7万円 | 1K 16.51m2 | 築37年 | JR山手線 池袋駅 徒歩9分 東京メトロ丸ノ内線 池袋駅 徒歩9分 東京メトロ有楽町線 要町駅 徒歩14分 東京都豊島区池袋 | 詳細を見る | |









