賃貸マンション
ビレッジハウス大町1号棟の賃貸物件情報(2LDK/5階)
| 家賃 | 管理費等 | 敷金 | 礼金 | 間取り | 専有面積 |
|---|---|---|---|---|---|
| 3.11万円 | なし | なし | なし | 2LDK | 55.99m2 |
入居決定でお祝い金最大100,000円
Point
敷金・礼金ナシでお部屋の契約金がお安くなってます★管理人さんも居ますので安心して生活できますよ★
提供:ホームメイトFC札幌宮の沢店サン企画(株)(SUUMO経由)

詳細情報 ビレッジハウス大町1号棟
物件紹介
ビレッジハウス大町1号棟はJR根室本線赤平駅から徒歩9分にあり、駅近で通勤通学に便利なマンションです。
このお部屋は2階以上に位置しているので、通行人や周囲の住人からの視線が気になりにくく、防犯面でも安心です。
人気の南向きのお部屋。また、フローリングなのでお掃除もラクラク。バス・トイレ別の仕様で、のんびりお風呂タイムも楽しめます。
通信設備面では、インターネット接続が可能です(別途工事、契約料が必要な場合あり)。
このお部屋は2階以上に位置しているので、通行人や周囲の住人からの視線が気になりにくく、防犯面でも安心です。
人気の南向きのお部屋。また、フローリングなのでお掃除もラクラク。バス・トイレ別の仕様で、のんびりお風呂タイムも楽しめます。
通信設備面では、インターネット接続が可能です(別途工事、契約料が必要な場合あり)。
お金・契約の情報
※「-」と表示されているものは、実際は料金が発生するものもございます。詳細はお問い合わせください。
| 家賃 | 3.11万円 | 管理費・共益費 | なし |
|---|---|---|---|
| 敷金 | なし | 礼金 | なし |
| 入居決定でお祝い金最大100,000円 | |||
| 保証金 | - | 償却・敷引 | - |
| 住宅保険料 | - | 更新料 | - |
| 契約形態 | - | 契約期間 | - |
| 入居・引渡期間 | 即時 | 現況 | - |
| 契約備考 | 巡回管理 2LDK 二人入居可/子供可 損保【1万円2年】 バストイレ別、バルコニー、エアコン、ガスコンロ対応、クロゼット、フローリング、室内洗濯置、陽当り良好、シューズボックス、南向き、追焚機能浴室、脱衣所、洗面所独立、洗面化粧台、駐輪場、即入居可、24時間有人管理、灯油暖房、保証人不要、駐車2台可、二人入居相談、24時間緊急通報システム、ネット専用回線、眺望良好、初期費用10万円以下、トランクルーム、2駅利用可、駅徒歩10分以内、風除室、敷地内ごみ置き場、平面駐車場、日勤管理、セキュリティ会社加入済、和室、プロパンガス、シャワールーム、敷金・礼金不要、通風良好 | ||
部屋の情報
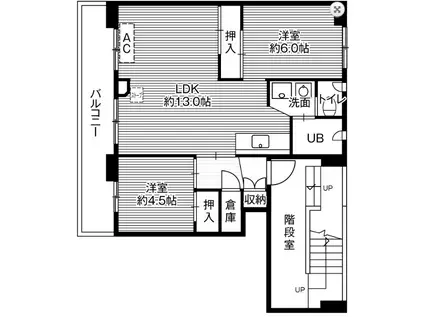
| 間取り | 2LDK | 専有面積 | 55.99m2 |
|---|---|---|---|
| 所在階 / 向き | 5階 / 南 | バルコニー面積 | - |
| 水道 / ガス | - | ||
| 設備 | バス・トイレ別、2階以上、追い焚き、インターネット対応、エアコン、南向き、バルコニー、フローリング、トランクルーム、洗髪洗面化粧台、コンロ:ガス、洗濯機:室内 | ||
| 当社物件ID | 158937450 | ||
建物の情報
| 建物名 | ビレッジハウス大町1号棟 | ||
|---|---|---|---|
| 所在地 | 北海道赤平市大町 | ||
| 交通 | JR根室本線 赤平駅 徒歩9分 JR根室本線 茂尻駅 徒歩39分 | ||
| 階数 | 5階建 | 総戸数 | - |
| 築年月 | 1986年08月 / 築40年 | エレベーター | - |
| 駐車場 | 空有 2750円/駐2台可 | バイク置き場 | - |
| 駐輪場 | あり | 管理人/管理会社 | - |
| 周辺環境 | その他 コープさっぽろあかびら店(スーパー)まで471m その他 セブンイレブン赤平文京町店(コンビニ)まで1871m その他 調剤薬局ツルハドラッグ赤平店(ドラッグストア)まで813m その他 赤平市役所(役所)まで1181m その他 赤歌警察署(警察署・交番)まで492m その他 マックスバリュ赤平店(スーパー)まで1324m | ||
| 建物種別 | マンション | 建物構造 | RC(鉄筋コンクリート) |
この部屋の取扱い不動産会社
| 会社名 | ホームメイトFC札幌宮の沢店サン企画(株)(SUUMO経由) | ||
|---|---|---|---|
| 所在地 | 北海道札幌市西区宮の沢一条1-6-28 | 交通 | - |
| 営業時間 | 10:00~18:00 | 定休日 | 年中無休 |
| 免許番号 | 北海道知事石狩8507 | 取引態様 | 仲介 |
| 不動産会社管理番号 | 100435865620 | 当社管理番号 | 89 |
| 所属団体 | (公社)北海道宅地建物取引業協会会員 | ||
| 公正取引協議会 | (一社)北海道不動産公正取引協議会加盟 | ||
| 取扱い物件情報 | 物件詳細へ | ||
※各種情報と現状に差異がある場合は、現状優先となります。問い合わせをすることで、より詳しい条件、情報を確認する事ができます。
提供:ホームメイトFC札幌宮の沢店サン企画(株)(SUUMO経由)
この物件が気になったら掲載期限まであと10日
ビレッジハウス大町1号棟に条件(家賃・エリア)が近い物件一覧
| 写真 | 家賃 管理費等 | 敷金 礼金 | 間取り 専有面積 | 築年数 | 最寄り駅 所在地 | キープ | 詳細 |
|---|---|---|---|---|---|---|---|
マンション 西町学生会館(1K/2階) | |||||||
![]() | 3.5万円 なし | 3.5万円 なし | 1K 29.1m2 | 築35年 | 北海道滝川市西町3丁目 | 詳細を見る | |
アパート レオパレス芽生ステラ(1K/1階) | |||||||
![]() | 4.9万円 6,500円 | なし 4.9万円 | 1K 23.18m2 | 築23年 | 北海道深川市文光町 | 詳細を見る | |
アパート 滝川第2総合ハイツ(ワンルーム/2階) | |||||||
![]() | 2万円 なし | なし なし | ワンルーム 19.44m2 | 築38年 | 北海道滝川市緑町5丁目 | 詳細を見る | |
アパート 北海道滝川市 築47年(2DK/2階) | |||||||
![]() | 3万円 なし | なし なし | 2DK 44.55m2 | 築47年 | 北海道滝川市西町1丁目 | 詳細を見る | |
アパート 深川総合ハイツ第3(1DK/2階) | |||||||
![]() | 3万円 なし | なし なし | 1DK 30.78m2 | 築33年 | JR函館本線 深川駅 徒歩12分 JR留萌本線 北一已駅 徒歩55分 JR函館本線 妹背牛駅 徒歩84分 北海道深川市三条 | 詳細を見る | |
アパート ROYAL・FAMILIA B棟(2LDK/1階) | |||||||
![]() | 4.8万円 2,000円 | 4.8万円 なし | 2LDK 57.01m2 | 築33年 | 函館本線 深川駅 徒歩22分 北海道深川市一条 | 詳細を見る | |
アパート シャーメゾン高屋(2LDK/1階) | |||||||
![]() | 7.3万円 3,500円 | なし 7.3万円 | 2LDK 61.5m2 | 築14年 | 山陽本線 高島駅(岡山) 徒歩25分 山陽本線 東岡山駅 徒歩28分 山陽本線 西川原駅 徒歩43分 岡山県岡山市中区高屋 | 詳細を見る | |
アパート コーポ創和(1DK/1階) | |||||||
![]() | 2.5万円 なし | なし なし | 1DK 26.44m2 | 築44年 | 北海道滝川市朝日町東4丁目 | 詳細を見る | |









