賃貸アパート
コスモ麻生の賃貸物件情報(1DK/2階)
| 家賃 | 管理費等 | 敷金 | 礼金 | 間取り | 専有面積 |
|---|---|---|---|---|---|
| 3.7万円 | 1,000円 | なし | なし | 1DK | 24.45m2 |
入居決定でお祝い金最大100,000円
Point
当店はオンラインにてお部屋探しのご相談・内覧が可能です。
提供:アパマンショップ北18条店

詳細情報 コスモ麻生
物件紹介
コスモ麻生は札沼線新琴似駅から徒歩4分にあり、駅近で通勤通学に便利なアパートです。
このお部屋は2階以上に位置しているので、通行人や周囲の住人からの視線が気になりにくく、防犯面でも安心です。
フローリングのお部屋なのでお掃除もラクラク。バス・トイレ別の仕様で、のんびりお風呂タイムも楽しめます。
通信設備面では、インターネット接続が可能です。また、CATVにも対応しているので、おうち時間も充実するでしょう(別途工事、契約料が必要な場合あり)。
このお部屋は2階以上に位置しているので、通行人や周囲の住人からの視線が気になりにくく、防犯面でも安心です。
フローリングのお部屋なのでお掃除もラクラク。バス・トイレ別の仕様で、のんびりお風呂タイムも楽しめます。
通信設備面では、インターネット接続が可能です。また、CATVにも対応しているので、おうち時間も充実するでしょう(別途工事、契約料が必要な場合あり)。
お金・契約の情報
※「-」と表示されているものは、実際は料金が発生するものもございます。詳細はお問い合わせください。
| 家賃 | 3.7万円 | 管理費・共益費 | 1,000円 |
|---|---|---|---|
| 敷金 | なし | 礼金 | なし |
| 入居決定でお祝い金最大100,000円 | |||
| 保証金 | - | 償却・敷引 | - |
| 住宅保険料 | 1.5万円(2年) | 更新料 | - |
| 保証会社利用 | 必須 | 保証会社名 | オリコフォレントインシュア |
| 保証会社費用 | - | 保証会社備考 | 初回保証委託料:月額賃料等総額の50%、月額保証委託料:月額賃料等総額の1.5% |
| 契約形態 | - | 契約期間 | 2年 |
| 入居・引渡期間 | 相談 | 現況 | - |
| 入居可能条件 | 事務所可、2人入居可 | ||
| 契約備考 | 水廻り消毒料 27500円/エアコン・ストーブ維持費 22000円 | ||
部屋の情報
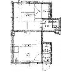
| 間取り | 1DK | 専有面積 | 24.45m2 |
|---|---|---|---|
| 所在階 / 向き | 2階 / - | バルコニー面積 | - |
| 水道 / ガス | ガス【プロパン】 | ||
| 設備 | バス・トイレ別、CATV、冷房、洗濯機:室内 | ||
| 当社物件ID | 25040041 | ||
建物の情報
| 建物名 | コスモ麻生 | ||
|---|---|---|---|
| 所在地 | 北海道札幌市北区新琴似七条1丁目 | ||
| 交通 | 札沼線 新琴似駅 徒歩4分 | ||
| 階数 | 2階建 | 総戸数 | 6戸 |
| 築年月 | 1981年10月 / 築45年 | エレベーター | - |
| 駐車場 | - | バイク置き場 | - |
| 駐輪場 | - | 管理人/管理会社 | - |
| 周辺環境 | その他 ニトリ 徒歩4分(314m) その他 まいばすけっと新琴似6条1丁目店 徒歩3分(223m) その他 びっくりドンキー麻生店 徒歩3分(164m) その他 和食レストランとんでん麻生店 徒歩4分(263m) その他 観音寺 徒歩4分(316m) その他 セブンイレブン 徒歩6分(442m) その他 ローソン 徒歩6分(446m) その他 北海道銀行北区麻生支店 徒歩8分(569m) | ||
| 建物種別 | アパート | 建物構造 | 木造 |
この部屋の取扱い不動産会社
| 会社名 | アパマンショップ北大前店 | ||
|---|---|---|---|
| 所在地 | 北海道札幌市北区北14条西4丁目 1-19北大病院前ビル1F | 交通 | 札幌市南北線北12条から徒歩3分 |
| 営業時間 | 09:30〜18:00(英語・中国語対応可能です。) | 定休日 | - |
| 免許番号 | 北海道知事石狩(5)7008 | 取引態様 | 仲介 |
| 不動産会社管理番号 | 76644041 | 当社管理番号 | 4 |
| 所属団体 | (公社)全日本不動産協会北海道本部 | ||
| 公正取引協議会 | (一社) 北海道不動産公正取引協議会加盟 | ||
| 取扱い物件情報 | 物件詳細へ | ||
※各種情報と現状に差異がある場合は、現状優先となります。問い合わせをすることで、より詳しい条件、情報を確認する事ができます。
提供:アパマンショップ北大前店
この物件が気になったら掲載期限まであと11日
コスモ麻生に条件(家賃・エリア)が近い物件一覧
| 写真 | 家賃 管理費等 | 敷金 礼金 | 間取り 専有面積 | 築年数 | 最寄り駅 所在地 | キープ | 詳細 |
|---|---|---|---|---|---|---|---|
アパート COAST船見坂(1K/2階) | |||||||
![]() | 3.2万円 なし | なし なし | 1K 23.49m2 | 築38年 | JR函館本線 小樽駅 徒歩6分 JR函館本線 南小樽駅 徒歩30分 JR函館本線 小樽築港駅 徒歩53分 北海道小樽市富岡 | 詳細を見る | |
アパート プルーリオンAY(1LDK/2階) | |||||||
![]() | 4.5万円 なし | 4.5万円 なし | 1LDK 39.6m2 | 築22年 | 北海道石狩市花川南七条4丁目 | 詳細を見る | |
一戸建て 北海道小樽市 築36年(2LDK) | |||||||
![]() | 2.5万円 なし | なし なし | 2LDK 207.16m2 | 築36年 | 北海道小樽市赤岩2丁目 | 詳細を見る | |
アパート ウイング スクエア(1DK/2階) | |||||||
![]() | 3.2万円 なし | なし なし | 1DK 28.07m2 | 築17年 | 函館本線 銭函駅 徒歩16分 北海道小樽市桂岡町 | 詳細を見る | |
アパート レオパレスシャルム(1K/2階) | |||||||
![]() | 5.3万円 6,500円 | なし 5.3万円 | 1K 23.18m2 | 築23年 | 札沼線 新琴似駅 徒歩14分 北海道札幌市北区屯田一条2丁目 | 詳細を見る | |
アパート サンクレスト(1DK/2階) | |||||||
![]() | 3.2万円 なし | なし なし | 1DK 24m2 | 築35年 | 千歳線 恵庭駅 徒歩10分 北海道恵庭市黄金中央4丁目 | 詳細を見る | |
アパート コーポ沢町(2DK/2階) | |||||||
![]() | 3.7万円 3,000円 | 3.7万円 なし | 2DK 42.2m2 | 築60年 | 函館本線 大麻駅 徒歩13分 北海道江別市大麻沢町 | 詳細を見る | |
アパート レオパレス新琴似6条(1K/2階) | |||||||
![]() | 5.2万円 6,500円 | なし 5.2万円 | 1K 23.18m2 | 築18年 | 札幌市南北線 麻生駅 徒歩16分 北海道札幌市北区新琴似六条4丁目 | 詳細を見る | |






/105x80-f1-q70-wp1)
/105x80-f1-q70-wp1)
