賃貸マンション
ハイムテクトピアの賃貸物件情報(1LDK/2階)
| 家賃 | 管理費等 | 敷金 | 礼金 | 間取り | 専有面積 |
|---|---|---|---|---|---|
| 7.1万円 | なし | なし | なし | 1LDK | 54.5m2 |
入居決定でお祝い金最大100,000円
Point
聖隷病院徒歩圏内の1LDK物件です。静大生にも人気のエリアです!お早めにご検討下さいませ(^_^)
提供:(株)ナカノハウジング(SUUMO経由)

詳細情報 ハイムテクトピア
物件紹介
ハイムテクトピアは遠州鉄道助信駅から徒歩16分にあるマンションです。
このお部屋は2階以上に位置しているので、通行人や周囲の住人からの視線が気になりにくく、防犯面でも安心。インターホンにはTVモニタもついているため、相手の顔を確認してから来客対応することができます。
人気の南向きのお部屋。また、フローリングなのでお掃除もラクラク。キッチンはシステムキッチン仕様になっていますので、お料理好きの方にもぴったり。バス・トイレは別なので、のんびりお風呂タイムも楽しめるでしょう。また、雨の日でも浴室乾燥機を使えば、お洗濯も問題ありません。
このお部屋は2階以上に位置しているので、通行人や周囲の住人からの視線が気になりにくく、防犯面でも安心。インターホンにはTVモニタもついているため、相手の顔を確認してから来客対応することができます。
人気の南向きのお部屋。また、フローリングなのでお掃除もラクラク。キッチンはシステムキッチン仕様になっていますので、お料理好きの方にもぴったり。バス・トイレは別なので、のんびりお風呂タイムも楽しめるでしょう。また、雨の日でも浴室乾燥機を使えば、お洗濯も問題ありません。
お金・契約の情報
※「-」と表示されているものは、実際は料金が発生するものもございます。詳細はお問い合わせください。
| 家賃 | 7.1万円 | 管理費・共益費 | なし |
|---|---|---|---|
| 敷金 | なし | 礼金 | なし |
| 入居決定でお祝い金最大100,000円 | |||
| 保証金 | - | 償却・敷引 | - |
| 住宅保険料 | - | 更新料 | - |
| 保証会社利用 | 必須 | 保証会社名 | - |
| 保証会社費用 | - | 保証会社備考 | 保証会社利用必 要確認 |
| 契約形態 | - | 契約期間 | - |
| 入居・引渡期間 | - | 現況 | - |
| 契約備考 | 合計8万円(内訳:修繕負担金8万円) 1LDK 損保【要】 バストイレ別、バルコニー、エアコン、クロゼット、フローリング、シャワー付洗面台、TVインターホン、浴室乾燥機、室内洗濯置、陽当り良好、システムキッチン、南向き、追焚機能浴室、温水洗浄便座、脱衣所、洗面所独立、洗面化粧台、礼金不要、閑静な住宅地、2面採光、最上階、敷金不要、3口以上コンロ、対面式キッチン、駐車場1台無料、グリル付、全居室洋室、保証人不要、全居室フローリング、ガスレンジ付、2面バルコニー、エアコン2台、キッチンに窓、食器洗乾燥機、眺望良好、全室南向き、浴室に窓、1フロア1住戸、平坦地、南面リビング、浴室1坪以上、学生敷金不要、バス停徒歩3分以内、平面駐車場、LDK12畳以上、全居室6畳以上、プロパンガス、ワイドバルコニー、南面バルコニー、天井高シューズクロゼット、敷金・礼金不要、保証会社利用可、通風良好 入居日:'26年2月下旬 | ||
部屋の情報
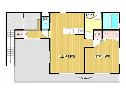
| 間取り | 1LDK | 専有面積 | 54.5m2 |
|---|---|---|---|
| 所在階 / 向き | 2階 / 南 | バルコニー面積 | - |
| 水道 / ガス | - | ||
| 設備 | バス・トイレ別、2階以上、テレビドアホン、浴室乾燥機、追い焚き、システムキッチン、エアコン、温水洗浄便座、南向き、バルコニー、フローリング、洗髪洗面化粧台、2口コンロ、コンロ:ガス、洗濯機:室内 | ||
| 当社物件ID | 160071278 | ||
建物の情報
| 建物名 | ハイムテクトピア | ||
|---|---|---|---|
| 所在地 | 静岡県浜松市中央区住吉 | ||
| 交通 | 遠州鉄道 助信駅 徒歩16分 東海道新幹線 浜松駅 車で13分 | ||
| 階数 | 2階建 | 総戸数 | 1戸 |
| 築年月 | 2018年02月 / 築8年 | エレベーター | - |
| 駐車場 | 空有 付無料 | バイク置き場 | - |
| 駐輪場 | - | 管理人/管理会社 | - |
| 周辺環境 | その他 マックスバリュエクスプレス浜松住吉店(スーパー)まで357m その他 ローソン浜松住吉2丁目店(コンビニ)まで183m その他 スギ薬局浜松住吉店(ドラッグストア)まで153m その他 社会福祉法人聖隷福祉事業団総合病院聖隷浜松病院(病院)まで415m その他 浜松和地山郵便局(郵便局)まで786m その他 国立静岡大学浜松キャンパス(大学・短大)まで1600m | ||
| 建物種別 | マンション | 建物構造 | RC(鉄筋コンクリート) |
この部屋の取扱い不動産会社
| 会社名 | (株)ナカノハウジング(SUUMO経由) | ||
|---|---|---|---|
| 所在地 | 静岡県浜松市中央区住吉1-39-12 | 交通 | - |
| 営業時間 | 9:00~18:00 | 定休日 | 木(2月・3月は無休) |
| 免許番号 | 静岡県知事10485 | 取引態様 | 仲介 |
| 不動産会社管理番号 | 100170328037 | 当社管理番号 | 89 |
| 所属団体 | (公社)静岡県宅地建物取引業協会会員 | ||
| 公正取引協議会 | 東海不動産公正取引協議会加盟 | ||
| 取扱い物件情報 | 物件詳細へ | ||
※各種情報と現状に差異がある場合は、現状優先となります。問い合わせをすることで、より詳しい条件、情報を確認する事ができます。
提供:(株)ナカノハウジング(SUUMO経由)
この物件が気になったら掲載期限まであと10日
ハイムテクトピアに条件(家賃・エリア)が近い物件一覧
| 写真 | 家賃 管理費等 | 敷金 礼金 | 間取り 専有面積 | 築年数 | 最寄り駅 所在地 | キープ | 詳細 |
|---|---|---|---|---|---|---|---|
マンション サングリーン富塚(1DK/1階) | |||||||
![]() | 4.4万円 なし | なし なし | 1DK 32.81m2 | 築25年 | 遠州鉄道 遠州病院駅 徒歩37分 静岡県浜松市中央区富塚町 | 詳細を見る | |
マンション プレステージアスター(2LDK/2階) | |||||||
![]() | 6.6万円 3,000円 | 13.2万円 なし | 2LDK 60.69m2 | 築24年 | 遠州鉄道 積志駅 徒歩29分 遠州鉄道 遠州西ケ崎駅 徒歩30分 静岡県浜松市中央区半田山3丁目 | 詳細を見る | |
テラスハウス 松本貸家(2LDK) | |||||||
![]() | 5.2万円 3,000円 | 10.4万円 なし | 2LDK 56.1m2 | 築24年 | 静岡県浜松市中央区福塚町 | 詳細を見る | |
マンション マ・メゾン蜆塚(3LDK/3階) | |||||||
![]() | 6.7万円 3,000円 | なし なし | 3LDK 66.15m2 | 築30年 | 静岡県浜松市中央区蜆塚3丁目 | 詳細を見る | |
マンション クリスタル・フォレスト(2LDK/4階) | |||||||
![]() | 7.2万円 3,000円 | なし なし | 2LDK 55.75m2 | 築26年 | 東海道本線 天竜川駅 徒歩11分 静岡県浜松市中央区青屋町 | 詳細を見る | |
アパート ラクーン(ワンルーム/1階) | |||||||
![]() | 5.4万円 なし | なし なし | ワンルーム 27.21m2 | 築6年 | 静岡県浜松市中央区布橋2丁目 | 詳細を見る | |
マンション グランドハイツ布橋(1K/3階) | |||||||
![]() | 4.3万円 2,800円 | なし なし | 1K 23.78m2 | 築38年 | 静岡県浜松市中央区布橋2丁目 | 詳細を見る | |






/105x80-f1-q70-wp1)

